Nhà vũng tàu hướng tây
Thông tin dự án
• Ngôi nhà Vũng Tàu, Việt Nam
• Kiến trúc sư: Architects
• • Diện tích: 68 m²
• • Năm: Năm 2020 Hình ảnh: Quang Tran

Hình ảnh thuộc bảng quyền của chủ đầu tư, chỉ sử dụng cho mục đích nghiên cứu tham khảo, không sử dụng cho mục đích thương mại xây nhà tương tự. Cảm ơn.
Nhà vũng tàu hướng tây

© Quang Tran
Mô tả văn bản do các kiến trúc sư cung cấp. Công trình được xây dựng trên lô đất điển hình của khu đô thị với công năng chính là tầng trệt và không gian sinh hoạt bên trên. Các khu đô thị có nhà đối diện nhau, đặc biệt là nhà hướng Tây khiến hầu hết người dân ngại mở ban công, cửa sổ, dẫn đến phụ thuộc vào điều hòa, đèn điện.

© Quang Tran

Sơ đồ tầng trệt

© Quang Tran
Với dự án này, chúng tôi tạo ra một lớp vỏ đầu tiên bằng gạch (gạch chịu lửa - chắc, nhẹ, ít bụi) xung quanh mặt trước và mặt sau và mái nhà là hệ thống thanh gỗ làm dây kéo và mái che pin mặt trời. Việc tạo lốp rỗng giúp hạn chế 70% ánh nắng chiếu trực tiếp vào không gian sống, tạo đối lưu không khí tối đa, giảm tầm nhìn trực diện từ nhà đối diện vào sinh hoạt của gia đình.

© Quang Tran
Lớp thứ hai là không gian đệm với sân vườn, ban công, thông tầng, sau đó là lớp trong cùng là hệ thống cửa kính đóng mở chủ động sáng tối và thông gió (đối lưu trước - sau nhà).

© Quang Tran

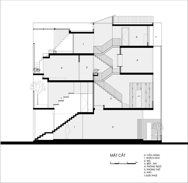
Tiết diện

© Quang Tran
Kết cấu lệch tầng được sử dụng linh hoạt ở giữa nhà và ngoài ban công, tạo ra những không gian mở cho tầm nhìn từ phòng khách, phòng ăn, ban công. Khoảng thông tầng lớn giữa nhà không chỉ giúp không gian bên trong sáng và thoáng (nắng được điều hòa nhờ hệ lam xoay và gió qua các khe gạch) mà còn tăng tính tương tác, kết nối giữa các thành viên trong gia đình.

© Quang Tran
Cầu thang giữa và trước nhà vừa tạo sự linh hoạt cho giao thông (trong phòng ngủ có thể đi thẳng ra vườn trên sân thượng mà không cần phải đi từ cầu thang giữa nhà) vừa tạo tầm nhìn ra các không gian thoáng đãng, tạo sự trải nghiệm hàng ngày. và khám phá cho người dùng.

© Quang Tran
