Ngôi nhà vườn thảo điền
Project Info
• NGÔI NHÀ THẢO ĐIỀN, VIỆT NAM
• Năm : 2016
• Ảnh: Quang Đạm
• Kỹ sư kết cấu: Nguyễn Hữu Tuấn
• Giám sát thi công: Nguyễn Thanh Sang, Đỗ Trung Châu
• Kiến trúc sư phụ trách: Đỗ Quốc Hiệp, Võ Duy Kim

Hình ảnh thuộc bảng quyền của chủ đầu tư, chỉ sử dụng cho mục đích nghiên cứu tham khảo, không sử dụng cho mục đích thương mại xây nhà tương tự. Cảm ơn.
Ngôi nhà vườn thảo điền
Kiến trúc Sài Gòn là một kỷ niệm đầy cảm hứng cho các kiến trúc sư sinh ra và lớn lên ở Sài Gòn. Nhà thiết kế là một chủ đề phức tạp trong kiến trúc như một ngôi nhà là một kiểu kiến trúc rất phổ biến với rất nhiều nhu cầu và khả năng.

Sơ đồ
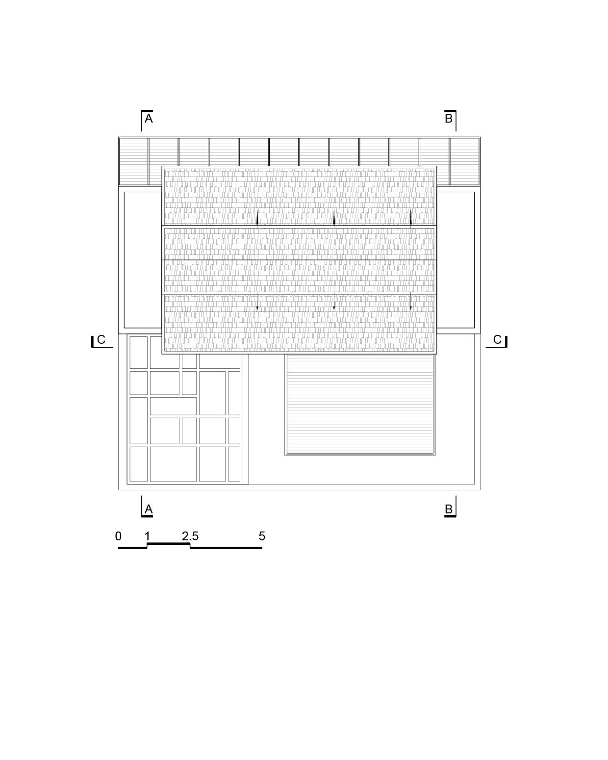
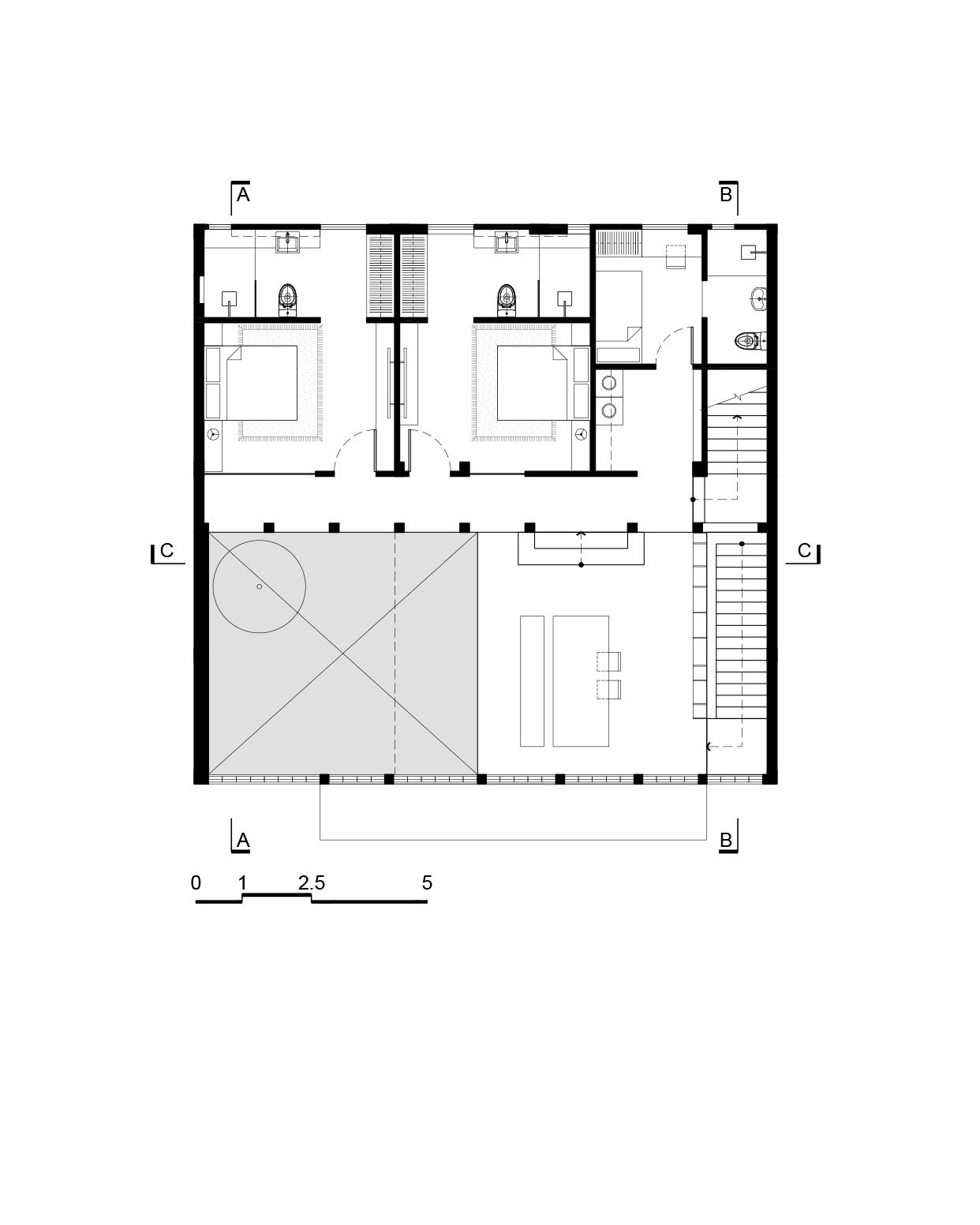
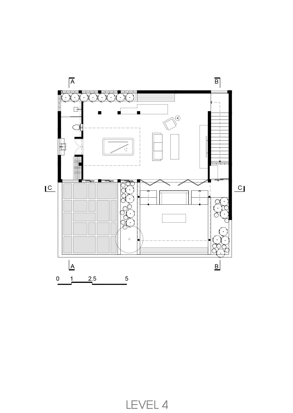
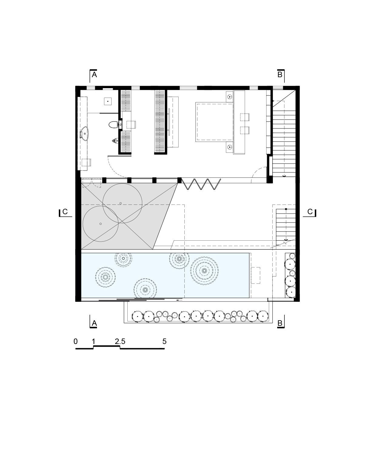
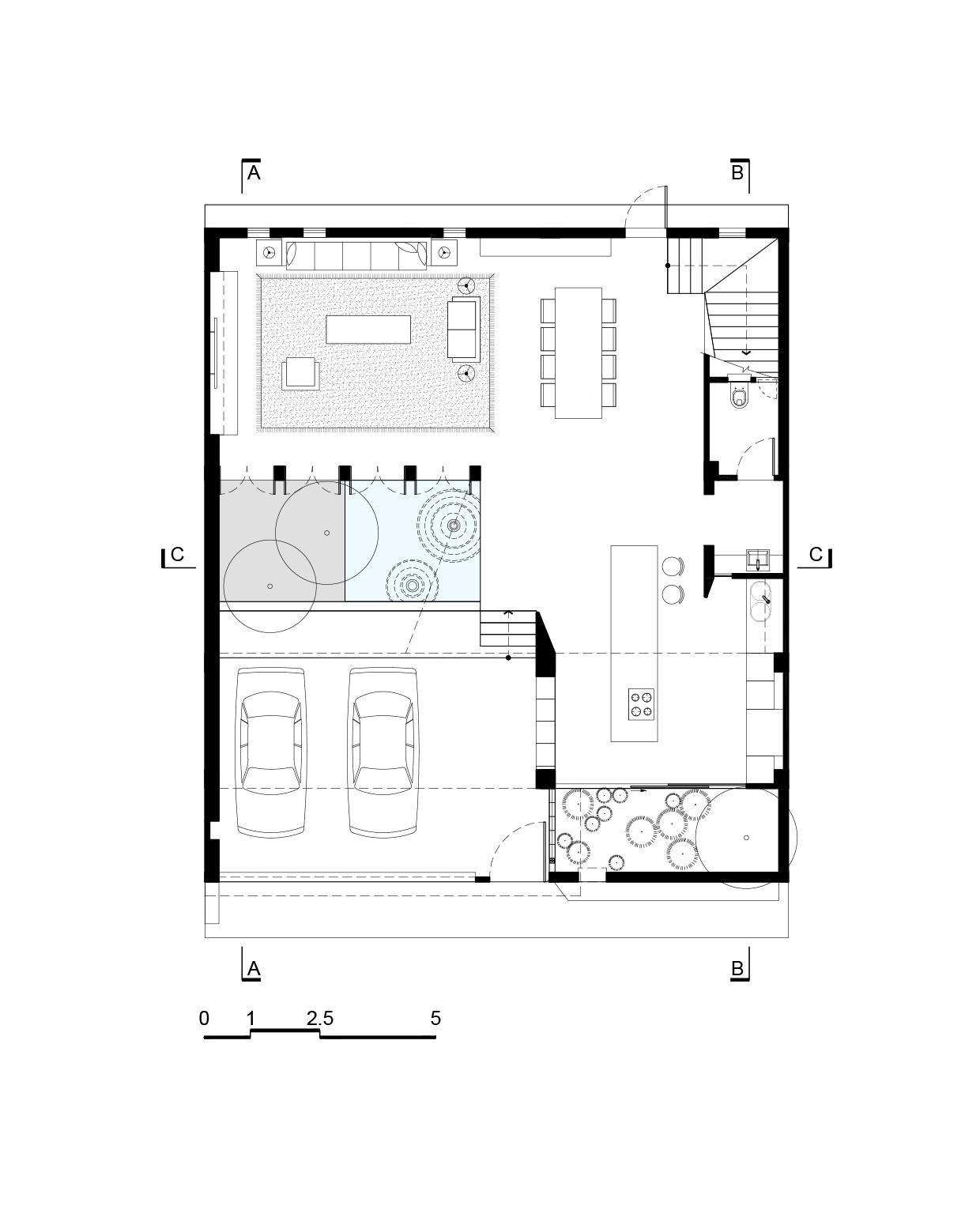
Ngôi nhà đòi hỏi nhiều chức năng khác nhau, được bố trí trong phạm vi giới hạn 12.5mx 14.5m. Các khu vực sinh hoạt cơ bản bao gồm phòng khách, phòng ngủ được đặt ở mặt sau của trang khu đất trong khi các tiện ích khác như nhà bếp, nhà để xe, hồ bơi, nghiên cứu được đặt ở phía trước và được kết nối thông qua các không gian mở. Với sự sắp xếp này, các không gian tiện ích nhận được ánh sáng và thông gió tối đa, trong khi các khu vực sinh hoạt lưu trữ mức độ im lặng và riêng tư cao hơn với đủ tầm nhìn, ánh sáng và không khí.


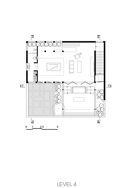
Tầng 4

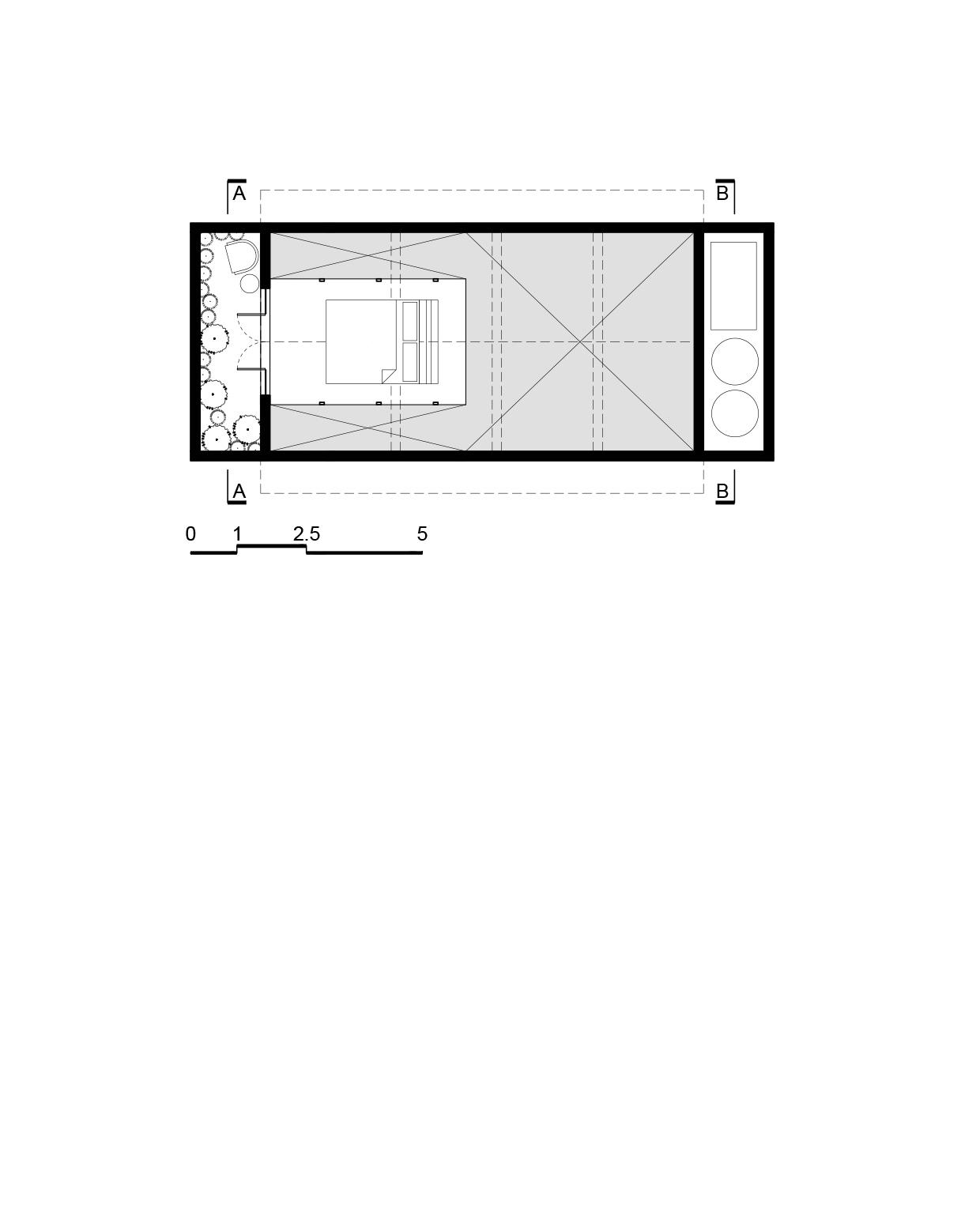
Nội thất nhà được lấy cảm hứng từ kiến trúc truyền thống Việt Nam thông qua việc sử dụng sân, ao cá, hiên, cửa sổ chớp và cây xanh. Các vật liệu tự nhiên như gỗ, đá kết hợp với bê tông tạo nên một bầu không khí nhiệt đới và thư giãn.

Bằng cách nâng cao hồ bơi, tầng trệt được mở cho các chức năng linh hoạt hơn. Hơn nữa, hồ bơi cũng giúp hạ nhiệt sân trong. Cấu trúc mặt tiền kéo dài 12,5m, giữ một số lượng lớn các khối thông gió thủ công, tinh tế “kết thúc” các khoảng trống bên trong. Bức tường màn hình này giúp ngăn chặn ánh sáng mặt trời nhiệt đới khắc nghiệt và đôi mắt tò mò từ bên ngoài, trong khi cho phép luồng không khí thông qua một cách đơn giản, tinh tế.

