Ngôi nhà tổ ấm nhà lồng
Thông tin dự án
Ngôi nhà Thành phố Thanh Hoá, Việt Nam
• • Diện tích: 240 m²
• • Năm: Năm 2020
• • Hình ảnh: Tana
• • Nhà sản xuất: AutoDesk , American Standard , Adobe , Hai Long glass , Kova Paint , Trimble , Uma

Hình ảnh thuộc bảng quyền của chủ đầu tư, chỉ sử dụng cho mục đích nghiên cứu tham khảo, không sử dụng cho mục đích thương mại xây nhà tương tự. Cảm ơn.
Ngôi nhà tổ ấm nhà lồng

© Tana
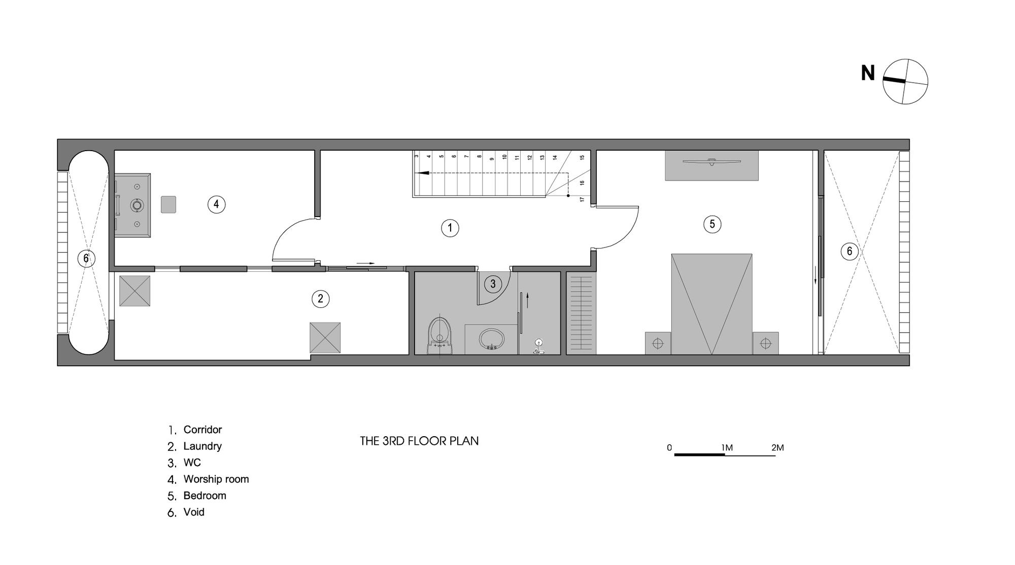
Mô tả văn bản do các kiến trúc sư cung cấp. Chúng tôi đã gặp khách hàng có yêu cầu thiết kế một ngôi nhà mới rộng 76m2 (rộng 4,5m, dài 17m) tại khu đô thị. Chủ nhân mong muốn có một ngôi nhà ba gian đủ chỗ cho một gia đình bốn người, một cặp vợ chồng trẻ và hai con. Trước khi lên ý tưởng, họ đưa ra một số yêu cầu cần tuân theo: một ngôi nhà khác biệt so với những ngôi nhà trong khu vực xung quanh và một ngôi nhà có sự kết nối chặt chẽ giữa các thành viên trong gia đình.

© Tana

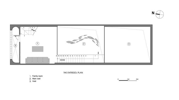
Mặt bằng tầng lửng

Mặt dựng

© Tana

© Tana
Sau một số cuộc thảo luận, chúng tôi đã đưa ra một số ý tưởng cho thiết kế của mình, tập trung vào ba điểm chính. Người đầu tiên, chúng tôiđề xuất một mặt tiền nhằm tạo không gian mở cho người dân có tầm nhìn bao quát nhưng vẫn có cảm giác riêng tư khi sống trong nhà. Mặt tiền được làm bằng các thanh tròn 10 mm có kiểu cấu trúc dựa trên hình thức lưới vuông. Vì vậy, những người sống trong ngôi nhà có thể có chỗ cho các hoạt động của họ bên trong nhưng họ vẫn ở khá gần với không gian bên ngoài để quan sát hoạt động và thế giới tự nhiên bên ngoài.

© Tana
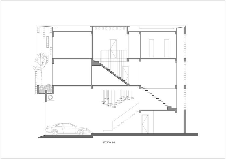
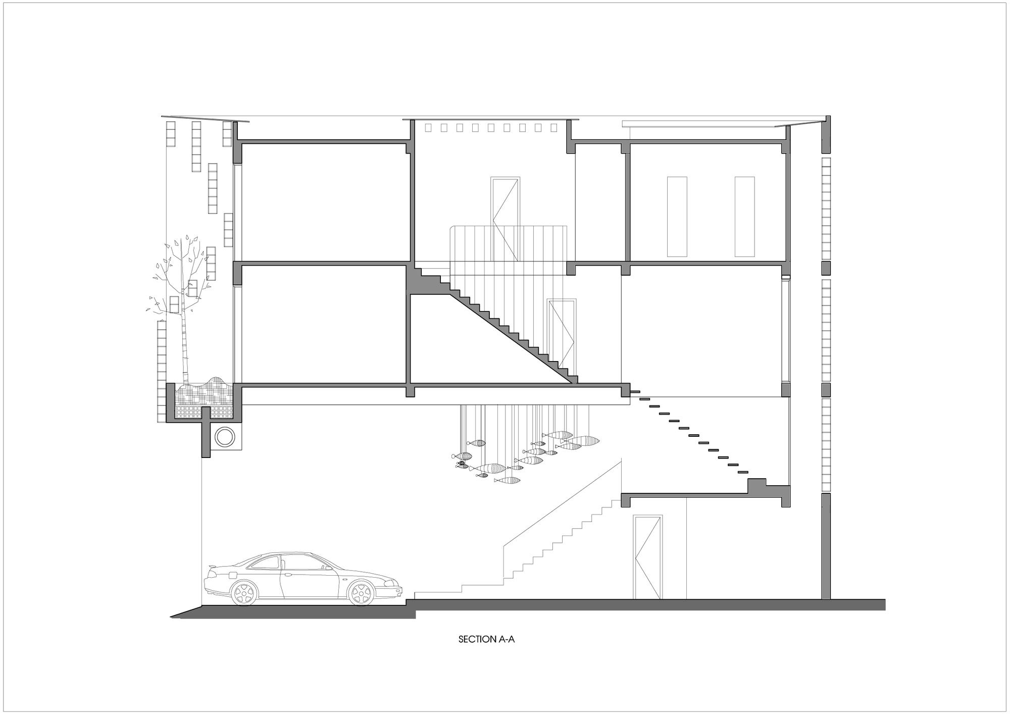
Ý định tiếp theo là thiết kế một lối sống mới cho gia đình họ bằng cách tạo ra nhiều khoảng trống trong nhà. Vì mục đích này, chúng tôi đã thiết kế một trung tâm ở giữa tầng một và tầng hai. Bằng cách này, nó có một khoảng trống lớn liên kết giữa phòng khách và phòng sinh hoạt gia đình để những không gian đó rộng hơn để sử dụng và có thể sử dụng linh hoạt cho các hoạt động sinh hoạt. Ngoài ra, giữa các không gian khác trong nhà cũng có những khoảng trống, đây là khu vực chung để các thành viên trong gia đình cùng sinh hoạt, chia sẻ nhằm xây dựng mối liên kết bền chặt giữa họ. Ngoài ra, các khoảng trống đã mang ánh sáng ban ngày vào nhà và tạo ra hệ thống thông gió tự nhiên đầy đủ giúp cho người ở có nhiều ánh sáng mặt trời và không khí trong lành.

© Tana
Điểm cuối cùng, thiết kế tập trung vào sở thích của người dùng như trồng cây và giữ cho khu vườn của họ khỏe mạnh. Tạo một khu vườn nhỏ phía trước tầng 2, ngôi nhà có “mặt xanh” nơi cây lá, cây leo kết hợp với lưới thép hình vuông tròn, vừa góp phần phủ xanh mặt bằng vừa tạo nên một không gian mới cho "Nghệ thuật trên mặt tiền". Chúng tôi đặt tên nó là “Nhà lồng” vì chúng tôi lặp lại một ngôn ngữ thiết kế dựa trên hình dạng của một cái lồng. Sự lặp lại có thể được nhìn thấy trong toàn bộ ngôi nhà từ mặt tiền vuông vắn (phía trước và phía sau cấu trúc), cửa chính vào đến đèn tre làm thủ công trong phòng khách.

© Tana
