Ngôi nhà tổ ấm của gió
Thông tin dự án
- Ngôi nhà Tân Phú, Việt Nam
- Khu vực : 309 m²
- Năm : 2015
- Ảnh: Hiroyuki Oki
- Nhà sản xuất: Eglo
Hình ảnh thuộc bảng quyền của chủ đầu tư, chỉ sử dụng cho mục đích nghiên cứu tham khảo, không sử dụng cho mục đích thương mại xây nhà tương tự. Cảm ơn.
Ngôi nhà tổ ấm của gió
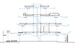
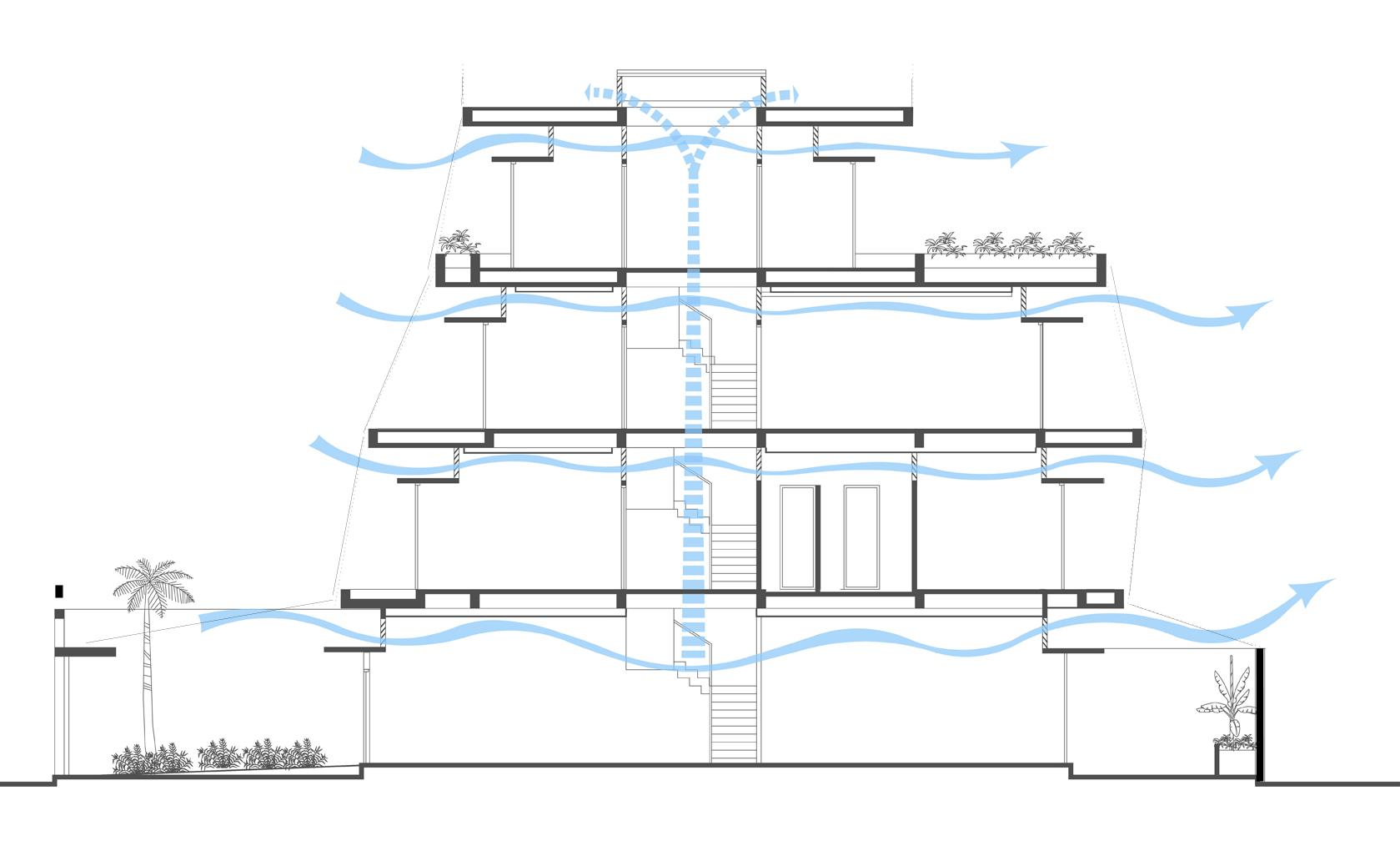
Ngôi nhà này là một cấu trúc hiện đại trong một thời đại thông tin. Đây là một thử nghiệm trong việc thể hiện sự vô định hình, sự ngẫu nhiên và sự bất hòa của thời đại thông tin. Phân tích chủ quan này được kết hợp với các quyết định hợp lý để giảm sử dụng năng lượng thông qua hệ thống thông gió tự nhiên.

Mục tiêu chính của ngôi nhà này là cung cấp một nơi thoải mái cho kiến trúc sư và gia đình ông về hưu. Rất nhiều ánh sáng và không khí được mong muốn tận dụng các cơ hội trong nhà / ngoài trời được cung cấp trong khí hậu nhiệt đới này. Thông gió tự nhiên là mong muốn trong khi giảm thiểu điều hòa không khí, do đó, một tỷ lệ lớn các mặt tiền bên ngoài được đưa ra để hở để cho làn gió chảy qua.

Các ngôi nhà thời hiện đại và thực dân Pháp đầu tiên ở Việt Nam có các lỗ thông hơi rộng ở các bức tường bên ngoài và bên trong trên mỗi tầng, và sau đó sử dụng quạt trần để di chuyển không khí qua các khe hở. Nhưng hầu hết các ngôi nhà ở Việt Nam trong hai thập kỷ qua đã trở thành giống như hang động như điều hòa không khí trở nên có sẵn hơn với chi phí hợp lý. Điều hòa không khí đòi hỏi phải có môi trường, do đó, cửa đã được loại bỏ và cửa ra vào và cửa sổ vẫn đóng cửa.

Ngôi nhà này có cửa sổ kính ở trên đỉnh của tất cả các bức tường bên trong và bên ngoài để cho phép thông gió trong nhà cũng như lên cầu thang mở. Các cửa sổ louver có thể được đóng lại nếu cần thiết để cho phép điều hòa không khí, nhưng trong thực tế, điều hòa không khí hiếm khi được yêu cầu và các làn gió di chuyển xuyên suốt ngôi nhà vào mọi lúc.

Cửa sổ và cửa ra vào được mở vào ban ngày ở hầu hết các ngôi nhà Việt Nam để thông gió, nhưng chúng phải đóng cửa vào ban đêm để đảm bảo an ninh. Trong hầu hết các ngôi nhà, lưới thép hoặc màn hình được cung cấp ở bên trong của tất cả các cửa sổ và cửa ra vào. Trong ngôi nhà này, lưới thép bao bọc ngôi nhà ở bên ngoài của tất cả các ban công, vì vậy cửa sổ và cửa ra vào có thể vẫn mở bất cứ lúc nào nếu muốn. Hiệu ứng giống như sống trong lồng chim thay vì các tế bào tù. Các màn hình thép bên ngoài ban công do đó mở rộng các phòng để bao gồm các ban công.

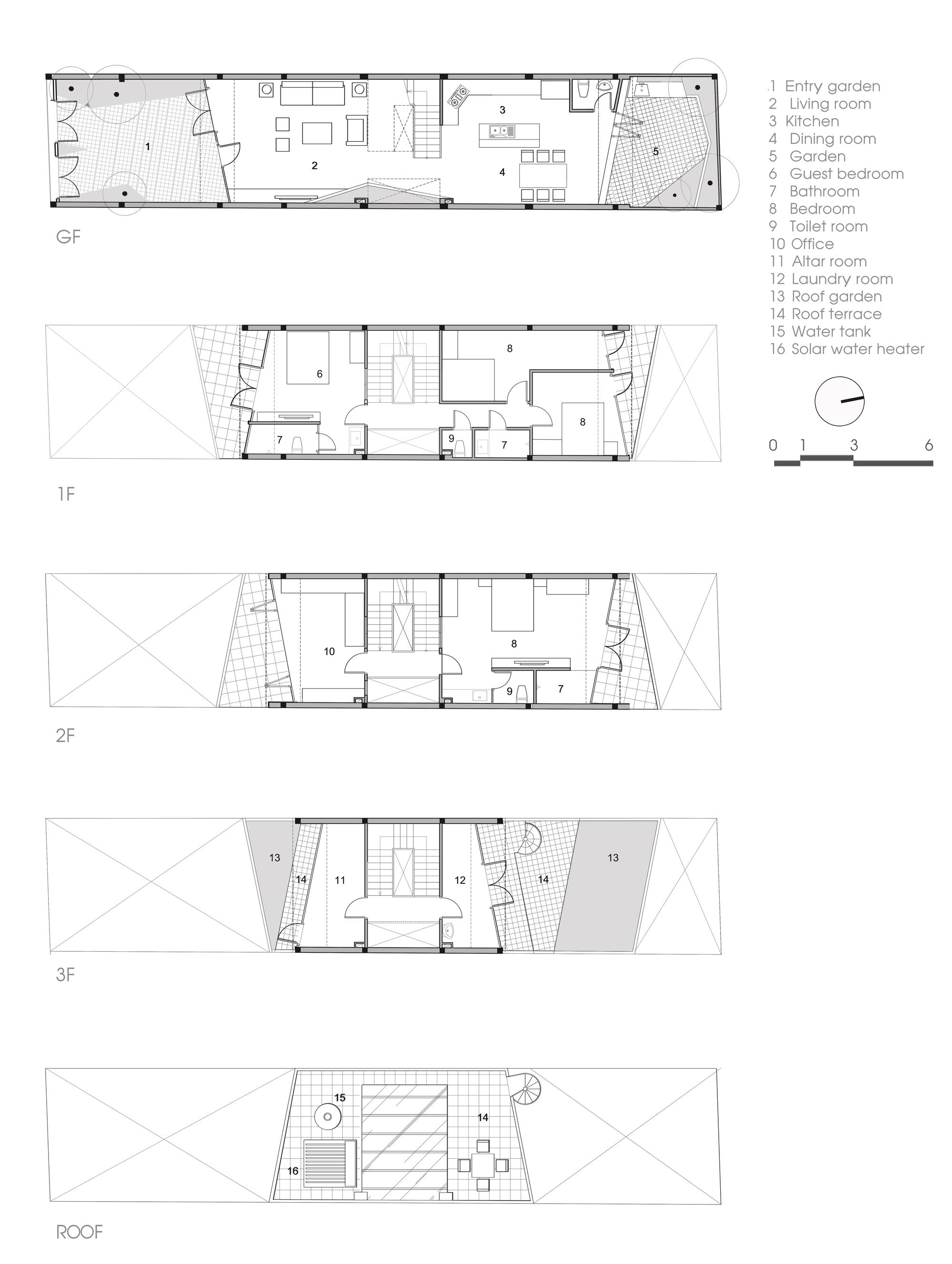
Ban công rất phổ biến trên các ngôi nhà Việt Nam, nhưng thường có hình chữ nhật rộng 1 mét, chỉ cho phép một hoặc hai chiếc ghế. Các cửa ra vào bên ngoài và cửa sổ và các cạnh ban công của ngôi nhà này được trải ra ở các góc để cho phép bàn ghế ở đầu 3 mét rộng của ban công.

Sự kết hợp của ban công trải rộng trên mỗi tầng, cũng như màn hình an ninh thép, tạo cơ hội cho một kiến trúc vượt ra ngoài chủ nghĩa hiện đại. Kiến trúc sư rất tôn trọng phong cách hiện đại Việt Nam độc đáo cho những ngôi nhà mà các kiến trúc sư Việt Nam đã phát triển trong 80 năm qua. Họ tiếp tục thử nghiệm với các tác phẩm trừu tượng của các dòng, hoa văn, vật liệu, kết cấu, màu sắc, hình dạng và khối lượng. Nhưng những tác phẩm này hầu như luôn trực giao. Thiết kế này không.

Các góc cạnh của ban công, với mỗi tầng đặt trở lại một mét từ một bên dưới, buộc lưới thép để thác xuống mặt bốn tầng của ngôi nhà, cong vênh khi nó đi. Sự cong vênh thể hiện sự vô định hình, mô hình của các thanh ngang thép thể hiện sự ngẫu nhiên, và sự phân tầng của màn hình chống lại các ban công và kệ sáng hiển thị sự bất hòa của thời đại thông tin. Độ phức tạp của thời đại thông tin được thể hiện trong một khái niệm đơn giản.


