Ngôi nhà Thạch Thất Đẹp
Project Info
Ngôi nhà Thạch Thất, Việt Nam
· · Năm : 2015
· · Ảnh: Lê Anh Đức
Nhà sản xuất: Lava VN , Vietnam Window
- Nhóm thiết kế: Lê Minh Hoàng, Ngô Hùng, Trần Việt Phú, Nguyên Thảo, Vũ Nam Sơn, Phạm Đình Hanh, Đặng Việt Anh
- Kiến trúc sư phụ trách: Tạ Tiến Vinh, Trương Tuấn Chung
- Hình ảnh thuộc bảng quyền của chủ đầu tư, chỉ sử dụng cho mục đích nghiên cứu tham khảo, không sử dụng cho mục đích thương mại xây nhà tương tự. Cảm ơn.
Ngôi nhà Thạch Thất Đẹp
Ngôi nhà này được xây dựng trên một hình dạng đất xấu được tách ra từ phần hẹp nhất của một vùng đất rộng lớn. Nó có hình dạng xấu xí và bị chật chội nhất. Ở ngoại thành, người dân thường xây nhà ở trên các thửa đất rất lớn, do đó, diện tích nhỏ (so với đất ở khu vực này) được chú ý ít hơn để xây dựng một ngôi nhà.

Nó gần như bị bỏ rơi cho đến khi một người đàn ông trẻ tuổi mua nó với giá rẻ. Anh ấy là người họ hàng của tôi và anh ấy muốn tôi thiết kế nó. Chúng tôi phải đối mặt với tình trạng đất nằm xa trung tâm và công nhân xây dựng địa phương không chuyên nghiệp và không thể đọc được với bản vẽ kiến trúc.

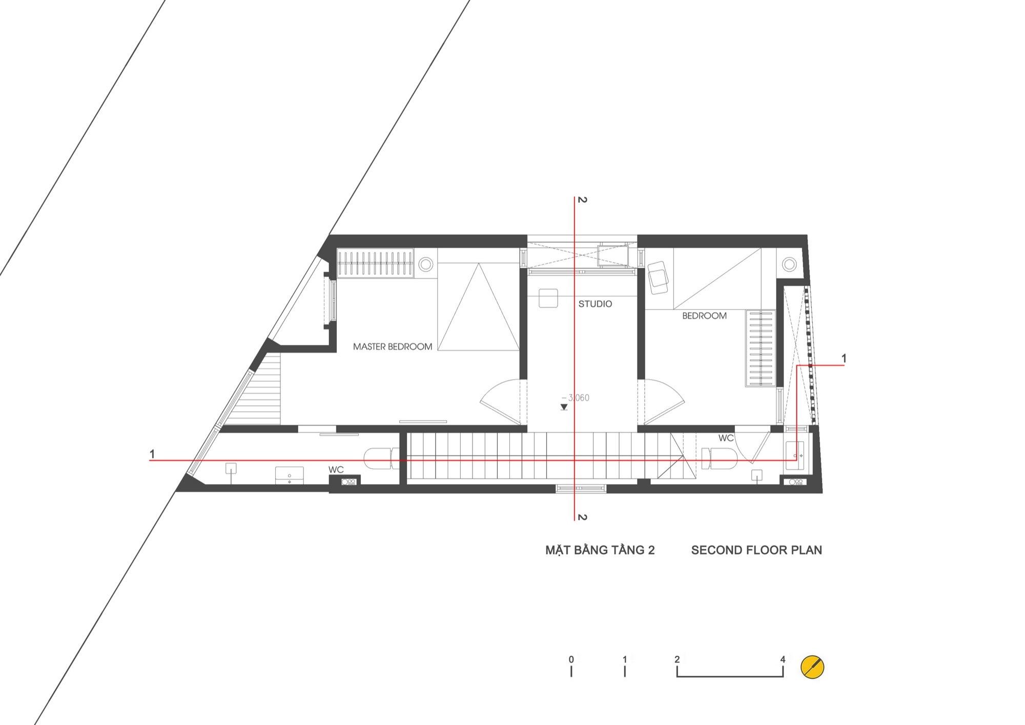
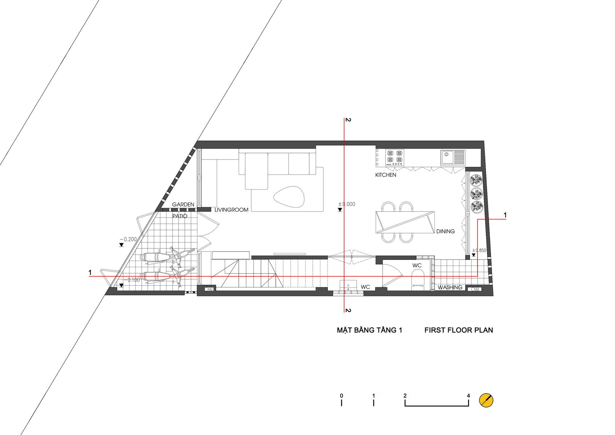
Phần
Thật khó để chúng tôi phát triển một khái niệm đặc biệt với nhiều chi tiết khi triển khai. Chúng tôi đã xem xét các giải pháp được thiết kế rất nhiều và cuối cùng chúng tôi chọn một khái niệm rất thực tế và tối giản. Một làn da được làm bằng gạch rỗng để tạo ra khoảng trống ở góc nghiêng nhiều nhất trước mặt đất, được sử dụng để trồng cây tạo sự riêng tư cho nội thất, tách biệt với đường nhưng vẫn cho phép thông gió và ánh sáng tốt cho phòng khách và mặt tiền phía trước. Ở phía sau của đất, trong cạnh thon nhất, một khoảng trống được tạo ra và chúng tôi làm một tấm bê tông treo trên mặt đất 70cm với tủ bên dưới và khu vườn ở trên. Thiết kế này cho phép ánh sáng, thông gió và tạo độ sâu cho nhà bếp và phòng ăn (ban đầu nó là khu vực rất hẹp).

Các không gian còn lại là phòng ngủ, cầu thang, mái nhà, nhà vệ sinh được thiết kế tối thiểu và thực tế để tối đa hóa việc sử dụng không gian và giảm thiểu chi phí xây dựng.
Ngôi nhà hoàn chỉnh với niềm vui của người dẫn chương trình và tạo ra bầu không khí thú vị mới cho những người dân đi ngang qua con đường phía trước ngôi nhà.
