Ngôi nhà ranh giới tường rèm
Project Info
Ngôi nhà Bình Dương Việt Nam
• Diện tích: 150 m²
• Năm: 2019
• Hình ảnh: Hoàng Lê
• Hãng sản xuất: Dulux , Hafele , Toto , DecoX , Vietceramics

- Hình ảnh thuộc bảng quyền của chủ đầu tư, chỉ sử dụng cho mục đích nghiên cứu tham khảo, không sử dụng cho mục đích thương mại xây nhà tương tự. Cảm ơn.
Ngôi nhà ranh giới tường rèm

© Hoàng Lê
Mô tả văn bản do các kiến trúc sư cung cấp. Có sự đánh đổi giữa sự phát triển công nghiệp của Bình Dương với chất lượng không khí xấu, ô nhiễm tiếng ồn, ùn tắc giao thông nghiêm trọng và nhiều vấn đề khác đang tác động mạnh đến chất lượng môi trường sống. Vị trí xây dựng nằm giữa 3 khu công nghiệp lớn.

© Hoàng Lê

Mặt đứng

© Hoàng Lê
Trước những bất lợi chung đến từ bối cảnh như vậy, ban đầu, phương án thiết kế ban đầu nhằm mục đích tách biệt ngôi nhà này với môi trường xung quanh, chỉ tập trung vào việc cải thiện chất lượng môi trường sống bên trong. Tuy nhiên, giải pháp này chống lại xu hướng hướng ngoại của các thành viên 3 thế hệ, những người từ lâu đã có mối liên hệ chặt chẽ với cộng đồng của con hẻm này.

Từ khóa của chúng tôi là "Ranh giới". Ranh giới dọc vạch ra vách ngăn giữa không gian bên trong và bên ngoài. Thay vì ý tưởng ban đầu về mặt tiền - hoàn toàn được đóng lại như một bức tường thẳng và kiên cố - sau đó nó được phát triển thành một nửa không gian được giới hạn bởi bức tường "rèm" đặc và không có khoảng trống và các bức tường của phòng bên trong. Những bức tường phòng này đóng vai trò là lớp thứ hai của mặt tiền, cùng với cây xanh và cầu thang đặt giữa hai phòng, tất cả những thứ đó đã tạo ra một vùng đệm chuyển tiếp.

© Hoàng Lê

© Hoàng Lê
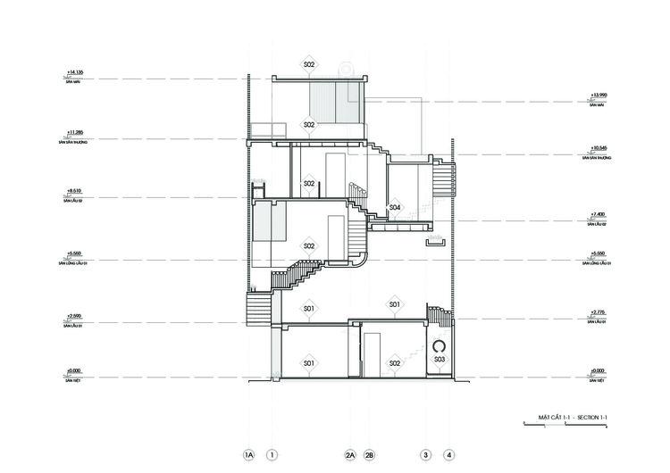
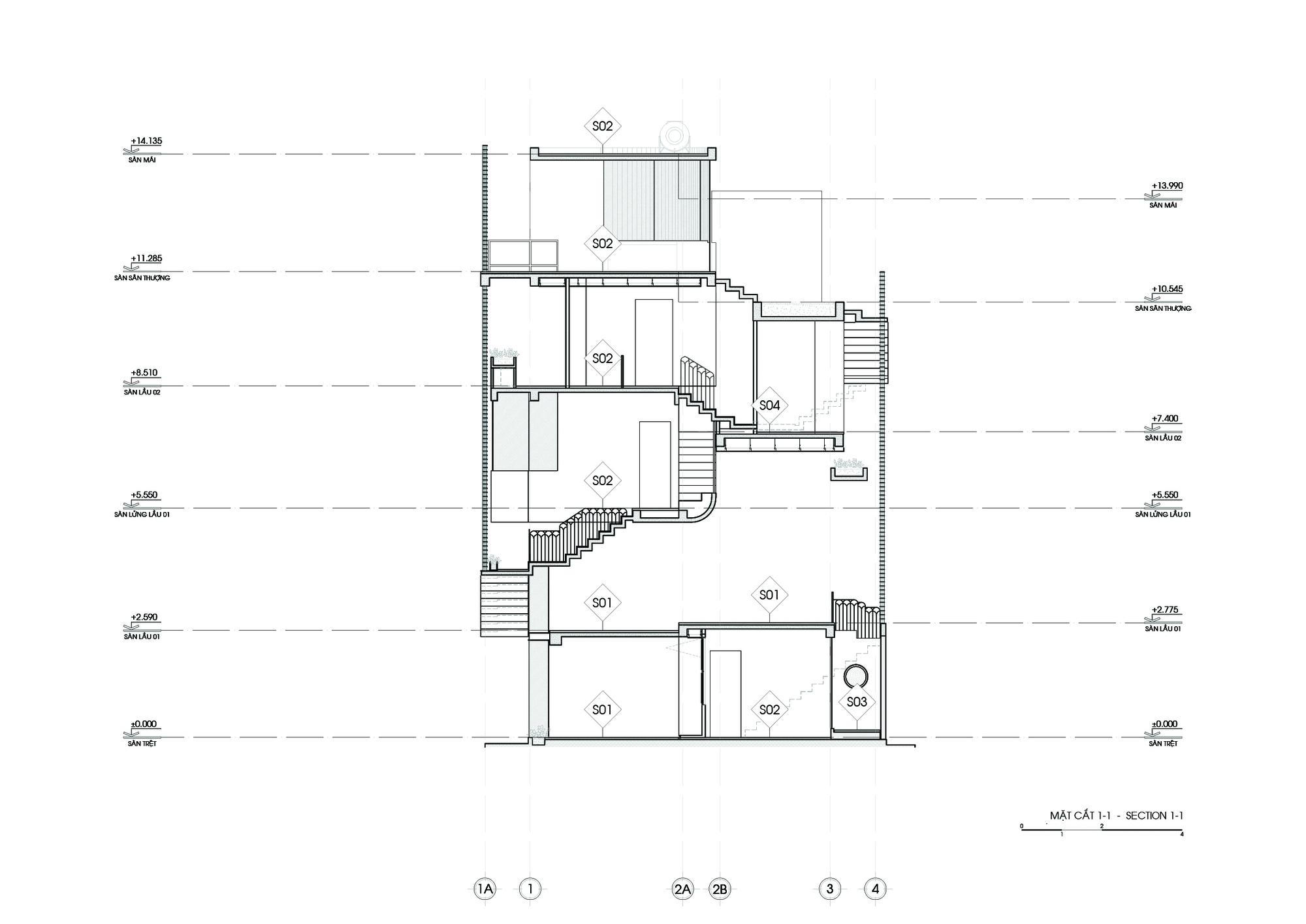
Sự kết hợp này tạo thành một cấu trúc da kép, giảm thiểu tác động xấu đến môi trường mà vẫn đảm bảo hiệu quả thông gió, chiếu sáng ban ngày và đặc biệt là giữ được sự tương tác giữa tòa nhà và hẻm trước nhà. Gạch nung, một vật liệu địa phương có khả năng tạo hình linh hoạt, được sử dụng cho "bức màn" của mặt tiền. Sự chuyển đổi màu sắc và độ rỗng của nó mô tả mức độ riêng tư và ý định của các không gian được bố trí phía sau, được phân loại theo chiều cao và chức năng sử dụng. Trong và ngoài tương tác giảm dần bởi các tầng trên cùng, nơi đặt phòng ngủ riêng của cặp đôi mới cưới và không gian làm việc sáng tạo của nghệ sĩ đồ họa đòi hỏi sự tập trung cao độ.

© Hoàng Lê

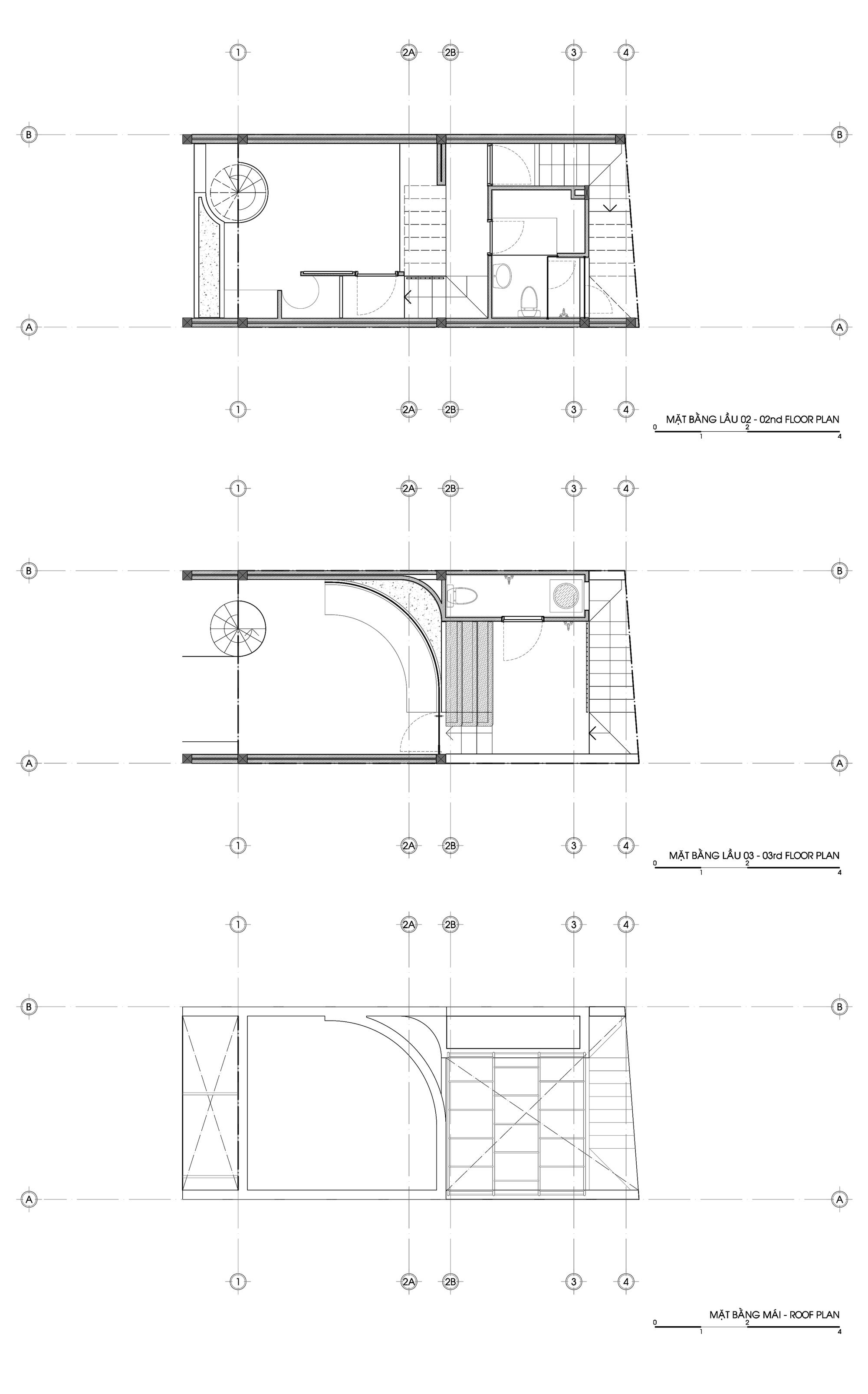
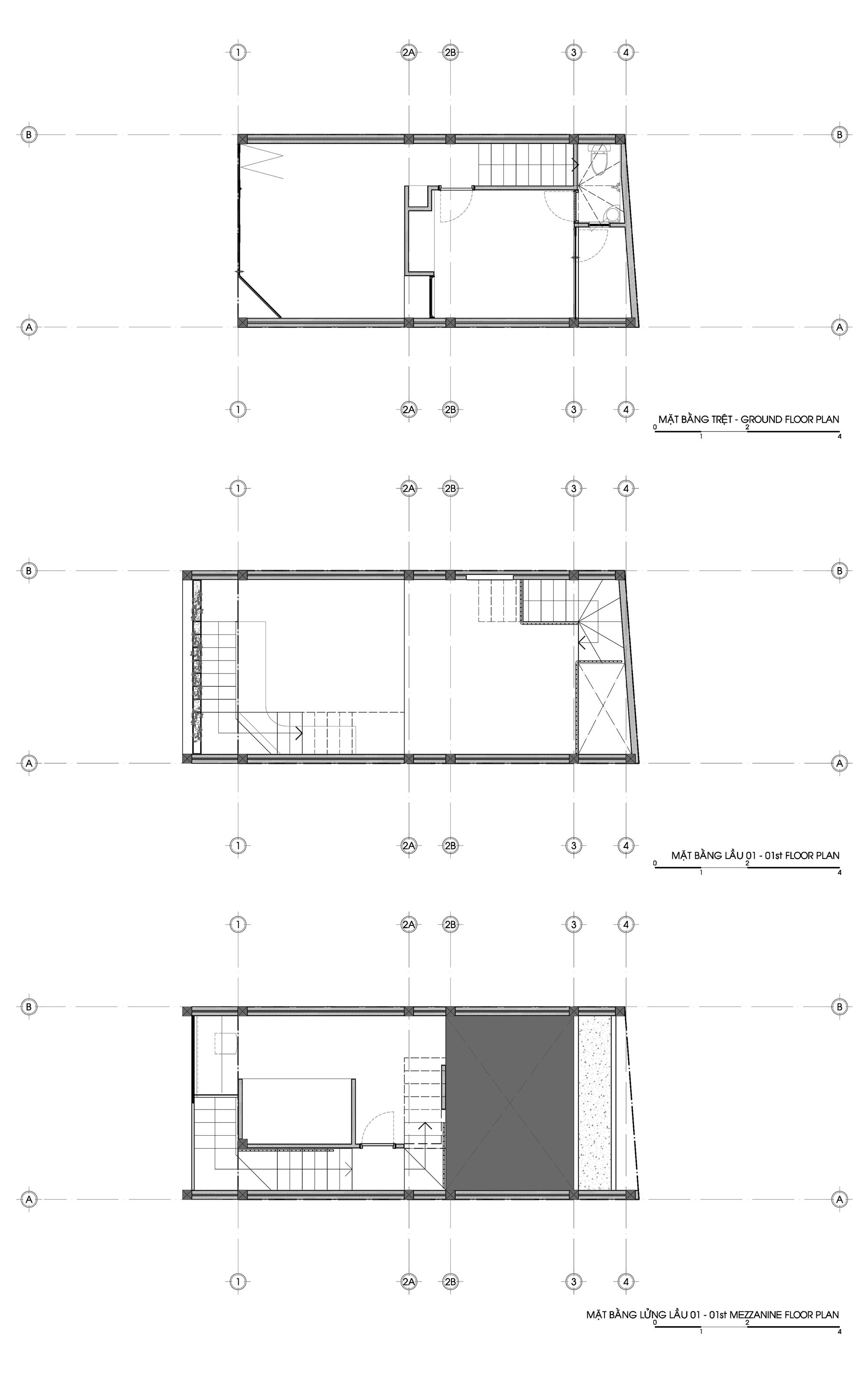
Sơ đồ thứ ba, thứ tư và mái nhà

© Hoàng Lê
Trong khi ranh giới dọc là một cách giao tiếp giữa tòa nhà và bối cảnh, thì ranh giới ngang được coi là ranh giới giữa các không gian bên trong. Thông qua sự đa dạng về chiều cao được tạo ra bởi các tấm sàn khác nhau - thay thế cho những tấm sàn liên tục thường thấy ở những ngôi nhà ống điển hình - mối liên kết các thành viên trong gia đình sẽ được nâng lên. Điều này cùng với hệ thống cầu thang linh hoạt chạy quanh nhà sẽ giảm bớt sự nhận biết về diện tích nhỏ hẹp của từng phòng chức năng, đồng thời tạo tầm nhìn bao quát khắp các không gian, giúp hình dung tổng thể rộng lớn hơn - trong diện tích xây dựng hạn chế 4x8 mét.

© Hoàng Lê
