Ngôi nhà hơi thở Breathing house
Project Info
Ngôi nhà Thành phố Hồ Chí Minh, Việt Nam
• • Khu vực : 343 m²
• • Năm : 2019
• • Ảnh: Hiroyuki Oki
• • Kiến trúc sư dự án: So Adachi
- Hình ảnh thuộc bảng quyền của chủ đầu tư, chỉ sử dụng cho mục đích nghiên cứu tham khảo, không sử dụng cho mục đích thương mại xây nhà tương tự. Cảm ơn.
Ngôi nhà hơi thở Breathing house

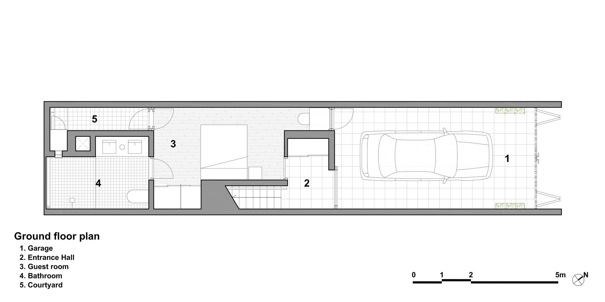
Ngôi nhà hơi thở dành cho một gia đình, nằm ở trung tâm thành phố Hồ Chí Minh . Khu đất rộng 3,9m và sâu 17,8m, chỉ có thể tiếp cận bởi một con hẻm nhỏ với môi trường xung quanh đông đúc. Trong khu dân cư cực kỳ dày đặc này, chúng tôi đã nhắm đến việc thiết kế một ngôi nhà giới thiệu môi trường bên ngoài trong khi vẫn đảm bảo sự riêng tư.

Do hoàn cảnh của công trường, việc mở tòa nhà bị hạn chế về mặt vật lý ở mặt trước, mặt trên và mặt sau của ngôi nhà. Để điều chỉnh khoảng cách giữa các tòa nhà lân cận trong khi tối đa hóa khu vực mở, chúng tôi bọc ba bề mặt đã nói ở trên bằng một tấm màn che màu xanh lá cây, được làm từ những cây leo mọc trên lưới thép. Lớp mềm này, như một bộ khuếch tán môi trường, lọc ánh sáng mặt trời trực tiếp và ngăn không gian bên trong tiếp xúc quá mức ra bên ngoài, mà không có cảm giác bị cô lập. Nó bao gồm các hộp trồng cây ở mỗi tấm sàn, với các yếu tố thép mạ kẽm được mô đun hóa gắn liền với nó. Cấu trúc này cung cấp một cái nhìn xanh trong toàn bộ ngôi nhà, cũng bảo vệ cư dân khỏi tội phạm đô thị.



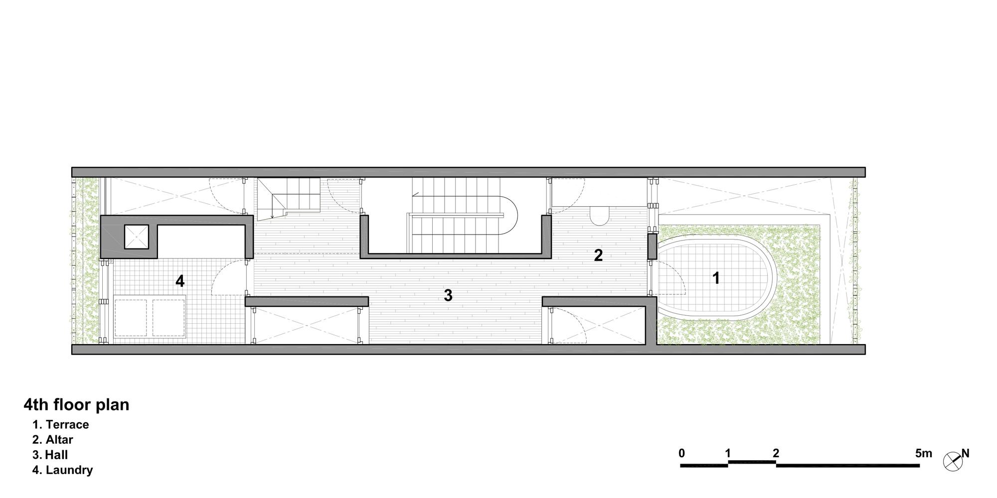
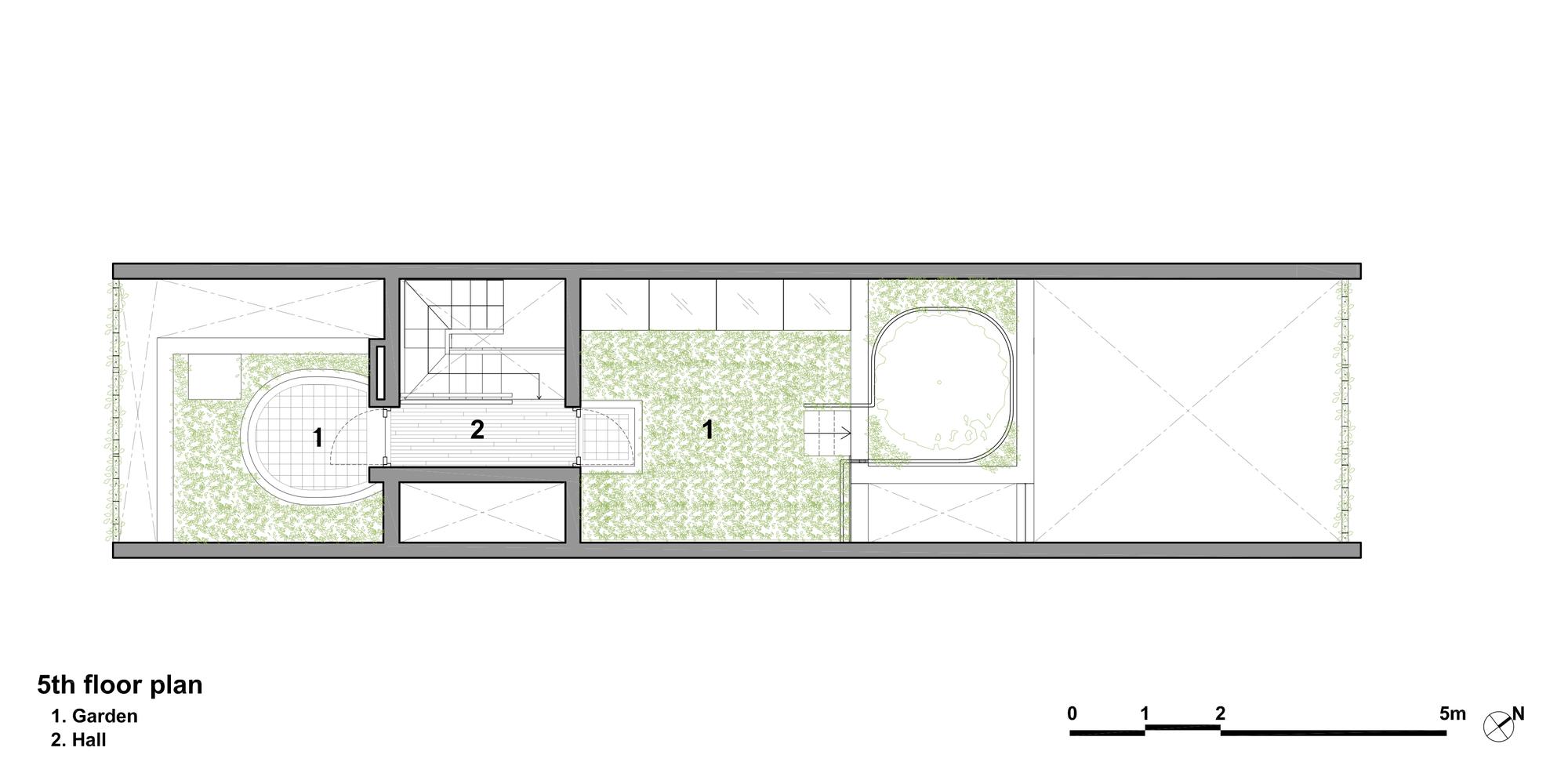
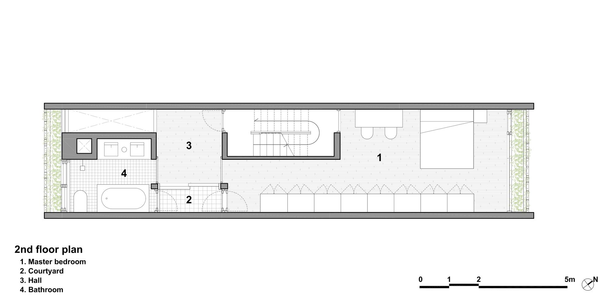
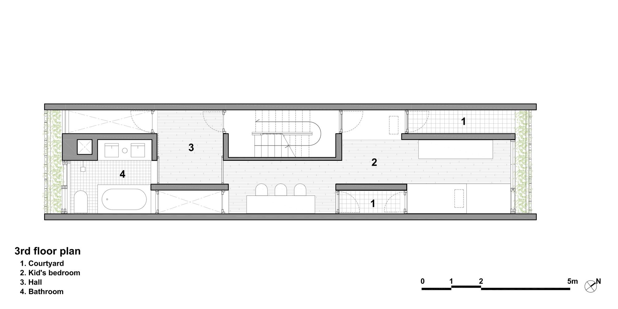
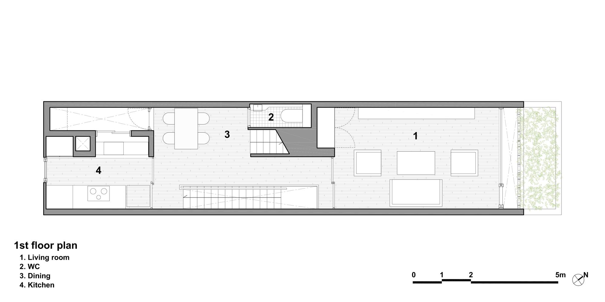
Bên trong mạng che mặt màu xanh lá cây, tòa nhà bao gồm 5 khối giống như các tòa tháp được đặt so le và kết nối với nhau, được bố trí ở giữa hai bức tường ranh giới. Các không gian bên ngoài được tạo ra bởi sự sắp xếp so le của các tập, mà chúng tôi gọi là siêu âm Micro Microids, đóng vai trò trong việc cung cấp vô số tuyến đường chiếu sáng và thông gió gián tiếp trong toàn bộ tòa nhà. Trong lô đất hẹp và sâu được hàng xóm hai bên che chắn, sẽ hiệu quả hơn về mặt môi trường để thúc đẩy thông gió cho từng góc của ngôi nhà, bởi nhiều micro voids voọc, thay vì có một khoảng sân rộng. Các vi voids của Nhật Bản có các lỗ mở trên mỗi tầng, qua đó cư dân có tầm nhìn xuyên suốt và chéo hơn từ mọi nơi, nhìn vào không gian xanh và các không gian khác. Cầu thang cũng được thiết kế là một trong những khoảng trống siêu nhỏ với ánh sáng trên cùng và mở ra đối diện với các phòng. Thành phần xốp của tòa nhà làm giảm việc sử dụng điều hòa không khí để tăng cường thông gió tự nhiên, tạo ra cả kết nối không gian và hình ảnh và độ sâu trong nhà.



Sân thượng được bao phủ bởi mạng che mặt màu xanh lá cây, trở thành một không gian đầy cây xanh, điều hiếm thấy ở khu vực thành phố đông đúc. Ý nghĩa của dự án là nó tạo ra một không gian xanh, ở trung tâm của một thành phố lớn đang phát triển. Chúng tôi hy vọng bản chất của thiết kế này sẽ mang lại ảnh hưởng tích cực cho các thành phố ở Việt Nam, nơi đang mất đi không gian xanh với tốc độ đáng báo động.

