Tổ ấm lô gốc Hoa House
Project Info
Kiến trúc Sử dụng Hỗn hợp , Nhà ở , Căn hộ Việt Nam
• • Diện tích: 113 m²
• • Năm: Năm 2020
• • Hình ảnh: Quang Đạm
• • Hãng sản xuất: An Cường , Jotun , Toto , Megan Man , Xingfa
• • Kiến trúc sư trưởng: Trần Văn Huỳnh, Nguyễn Thị Xuân Hải, Nguyễn Đức Khánh, Nguyễn Văn Hóa, Đỗ Trọng Nhân Kiệt, Nguyễn Văn Trung
• Nội thất: KAA Studio
• Kết cấu: AT Nhược điểm.

Ghi chú: Hình ảnh thuộc bảng quyền của chủ đầu tư, chỉ sử dụng cho mục đích nghiên cứu tham khảo, không sử dụng cho mục đích thương mại xây nhà tương tự. Cảm ơn.
Tổ ấm lô gốc Hoa House

© Quang Đàm
Mô tả văn bản do các kiến trúc sư cung cấp. Ngôi nhà được xây dựng trên mảnh đất 113m2. Mục đích là không gian bên ngoài tối giản, bên trong hiện đại và đầy đủ chức năng. Ngôi nhà thể hiện rõ cá tính của gia chủ: thực tế, không gian tràn ngập cây xanh và vật liệu thô mộc.

© Quang Đàm

Sơ đồ tầng năm

© Quang Đàm
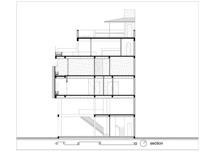
Công năng ngôi nhà gồm 6 tầng:
- Tầng 1: nhà để xe, cho thuê cửa hàng.
- Tầng 2: Cho thuê 03 căn hộ nhỏ.
- Tầng 3: Cho thuê 03 căn hộ lớn.
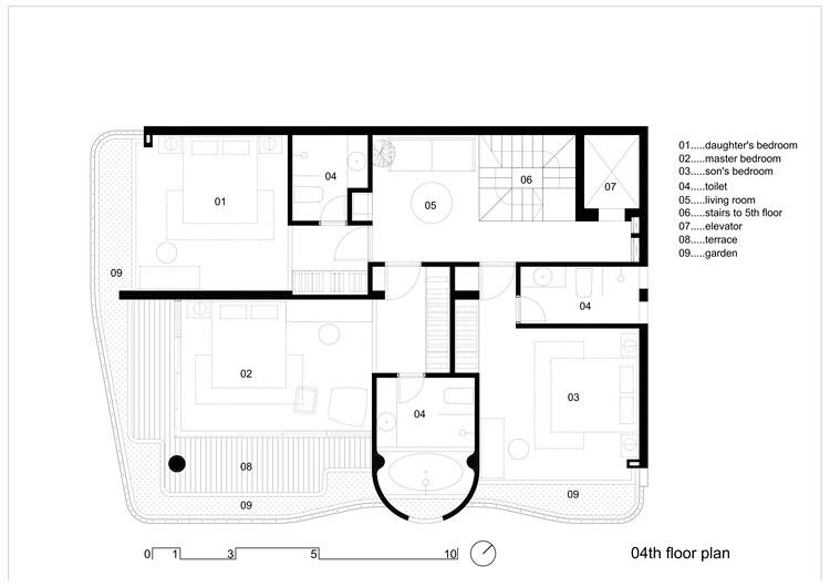
- Tầng 4: 01 phòng ngủ chính, 02 phòng ngủ nhỏ, 01 phòng khách.
- Tầng 5: phòng bếp + ăn.
- Tầng 6: văn phòng của chủ sở hữu.

© Quang Đàm

Sơ đồ tầng 4

© Quang Đàm
Do đất gần chợ nên chính chủ cho thuê tầng 1 để kinh doanh. Các tầng khác, chủ nhà muốn có sự khác biệt so với không gian bên ngoài nên H2 tạo mảng che bằng cây xanh kết hợp tường thông gió được làm bằng khung sắt và ván cemboard.

© Quang Đàm
Gia chủ sống tại Sài Gòn và có thời gian làm việc bận rộn nên mong muốn ngôi nhà của mình nơi có không gian tận hưởng phong cách nghỉ dưỡng đích thực và trở thành điểm nhấn ấm áp giữa phố chợ đông đúc. Vì vậy, tất cả các phòng ngủ, bếp, phòng làm việc, phòng vệ sinh đều được chiếu sáng bằng đèn vàng và có view xanh mát.

© Quang Đàm
Đặc biệt, chủ nhà dành tầng 5 nơi có tầm nhìn ra thành phố, làm không gian bếp mở tạo cảm giác hòa mình vào thiên nhiên. Không gian thoáng đãng này đối lập với nhịp sống tĩnh lặng ẩn hiện sau những bức tường bê tông hình vòng cung và vườn rau, cây ăn quả xung quanh.

© Quang Đàm

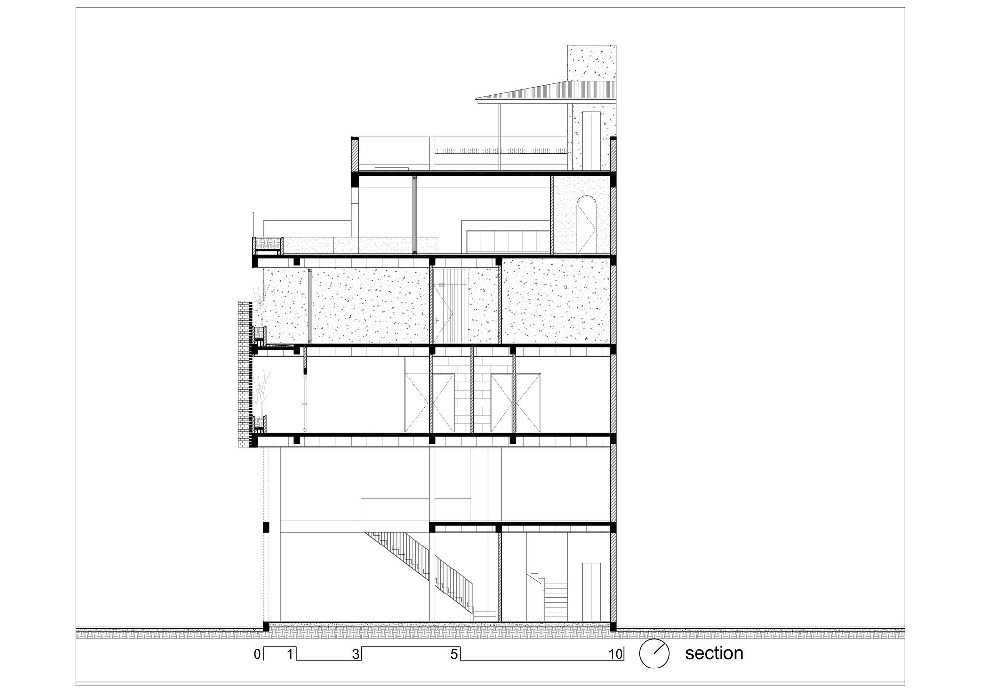
Tiết diện

© Quang Đàm
Tầng thượng là phòng làm việc của gia chủ, kết hợp với bếp thông qua một cầu thang nhỏ lộ thiên theo kiểu bậc tam cấp tạo nên không gian nhẹ nhàng hơn cho ngôi nhà.

© Quang Đàm
