Tổ ấm Hoa House
Project Info
Ngôi nhà Việt Nam
• Kiến trúc sư trưởng: Lê Vinh, Nguyễn Cường
• • Diện tích: 150 m²
• • Năm: Năm 2020
• • Hình ảnh: Nguyễn Cường
• • Nhà sản xuất: An Cường , Dulux , INAX
Nội thất: Nội thất PAD

Hình ảnh thuộc bảng quyền của chủ đầu tư, chỉ sử dụng cho mục đích nghiên cứu tham khảo, không sử dụng cho mục đích thương mại xây nhà tương tự. Cảm ơn.
Tổ ấm Hoa House

© Nguyễn Cường
Mô tả văn bản do các kiến trúc sư cung cấp. Ngôi nhà của Hoa là một ngôi nhà được thiết kế với triết lý gọi là “kiến trúc cảm xúc”. Sau một số cuộc gặp gỡ với chủ nhân ngôi nhà, xem xét sở thích và thảo luận, ý tưởng thiết kế và không gian được xây dựng từ chính hình ảnh tiềm thức của họ.

© Nguyễn Cường
Công trình được bố trí là một không gian mở, được kết nối trực tiếp với không gian bên ngoài. Toàn bộ không gian đệm trong nhà cùng với không gian cây xanh ngoài trời được tận dụng. Dù ánh nắng trực tiếp của khí hậu nhiệt đới gây khó chịu nhưng sẽ thật tuyệt vời nếu ánh nắng được tán cây xanh.

© Nguyễn Cường

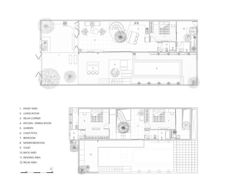
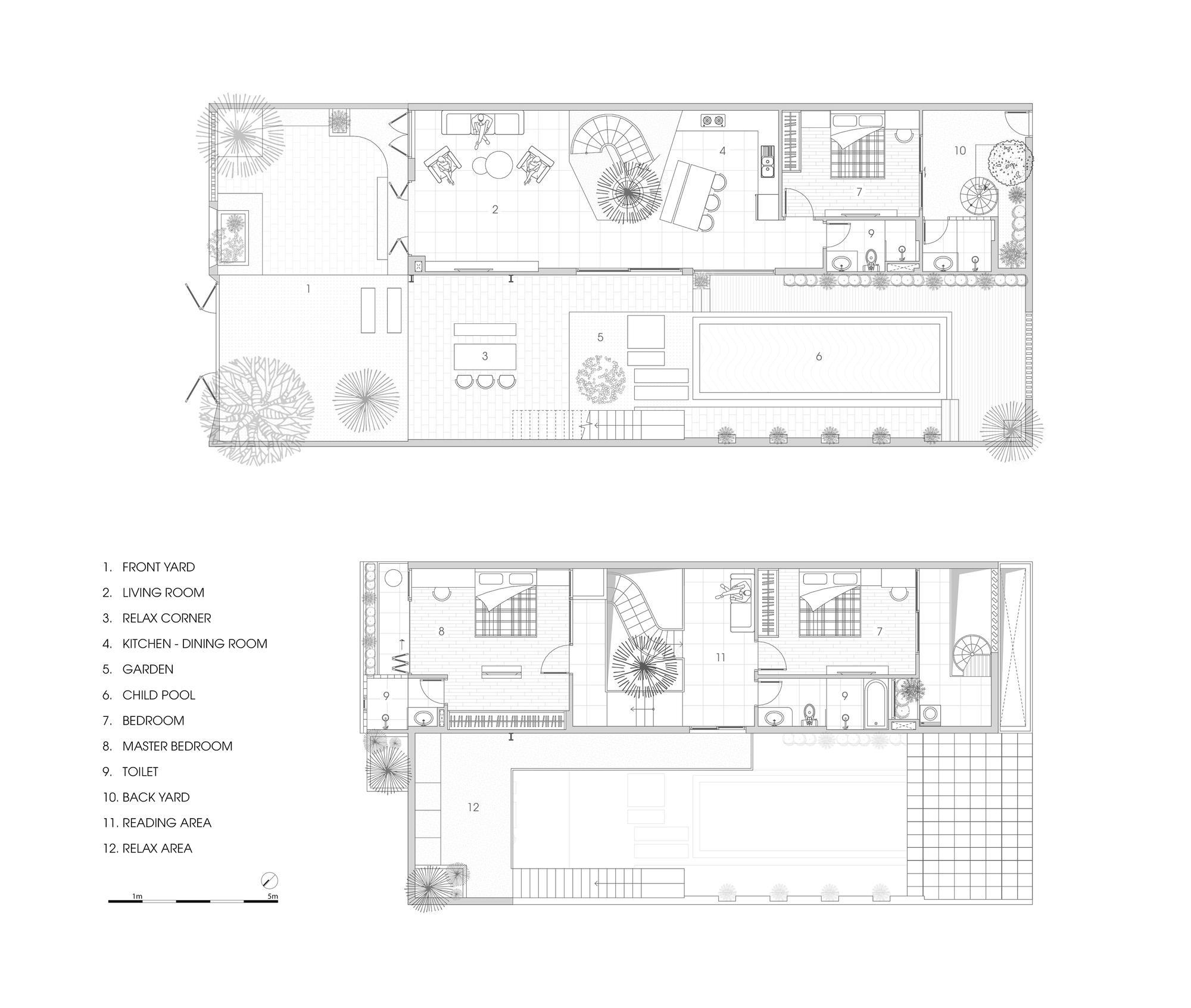
Các kế hoạch

© Nguyễn Cường
Không gian bên trong và bên ngoài ngôi nhà sẽ trở nên sinh động và mát mẻ với sự lưu thông không khí theo hướng bắc nam. Cả khu vực đóng và mở sẽ có gió chuyển động suốt cả ngày, giúp tận dụng tối đa các nguồn năng lượng tự nhiên.

© Nguyễn Cường

Tiết diện

© Nguyễn Cường
Với triết lý “kiến trúc cảm xúc”, việc sử dụng các vật liệu cơ bản như gạch, đá, bê tông, hoặc gỗ để xây dựng một ngôi nhà chỉ được coi là một khung vững chắc. Điều quan trọng nhất mà các kiến trúc sư lưu tâm là thổi hồn vào những vật liệu vô tri vô giác ấy để mỗi sớm mai thức dậy, bạn có thể tận hưởng cảm xúc cũng như những năng lượng tích cực.

© Nguyễn Cường
