Tổ ấm HL house Bình Thạnh
Project Info
Nhà ở , Nội thất trong nhà Việt Nam
• • Diện tích: 250 m²
• • Năm: Năm 2020
• • Hình ảnh: Thanh Pham, Chi.Arch
• • Hãng sản xuất: AutoDesk , Enscape , Jotun , Adobe , Anfaco Lighting , Egger , Gach Bong Viet , STA Interior , Trimble Navigation , Xinfa

Hình ảnh thuộc bảng quyền của chủ đầu tư, chỉ sử dụng cho mục đích nghiên cứu tham khảo, không sử dụng cho mục đích thương mại xây nhà tương tự. Cảm ơn.
Tổ ấm HL house Bình Thạnh

© Thanh Pham, Chi.Arch
Mô tả văn bản do các kiến trúc sư cung cấp. HL-House chiếm một khu đất nhỏ 4x18m được bao bọc bởi các khu dân cư khác trong khu dân cư Quận Bình Thạnh, Thành phố Hồ Chí Minh. Khu vực này rất gần trung tâm thành phố, thuận tiện đi làm. Tuy nhiên, đây là khu dân cư cũ gần trung tâm, ngõ rất hẹp chưa đầy 2m, mật độ xây dựng dày đặc, hệ thống thoát nước thấp, chất lượng cuộc sống chưa tốt.

© Thanh Pham, Chi.Arch

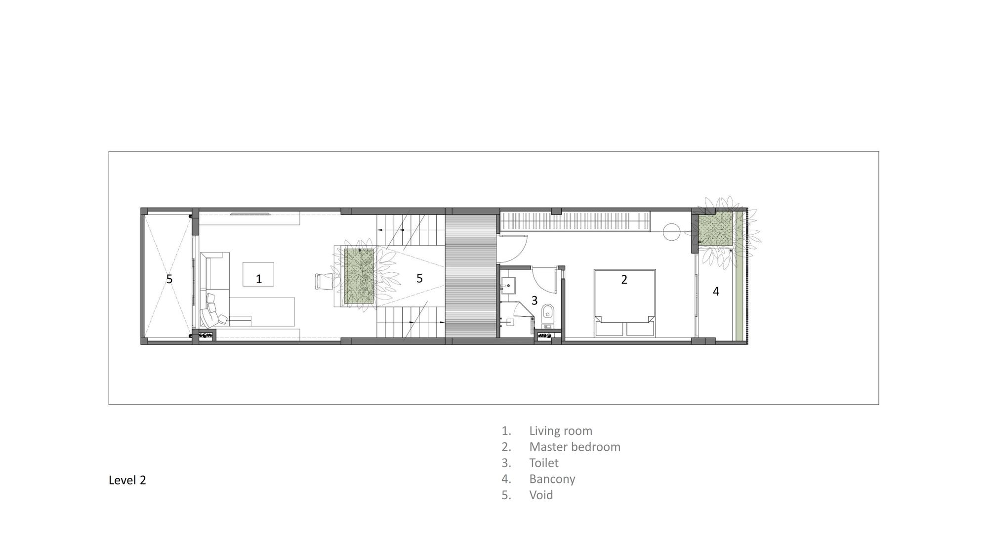
Sơ đồ tầng hai

Mục 02

© Thanh Pham, Chi.Arch
Chủ nhân của ngôi nhà là một gia đình trẻ 3 người, với mong muốn có một không gian sống tràn ngập ánh sáng và thông gió tự nhiên, họ muốn tránh xa cuộc sống đô thị ngột ngạt sau cả ngày dài làm việc. Hạn chế là mặt tiền hẹp, dưới 4m, giải pháp được KTS lựa chọn là mở một khoảng thông tầng lớn ở trung tâm ngôi nhà, cung cấp ánh sáng tự nhiên cho tất cả các không gian và các phòng, khoảng trống cuối nhà tạo không gian thông thoáng. thông gió.

© Thanh Pham, Chi.Arch
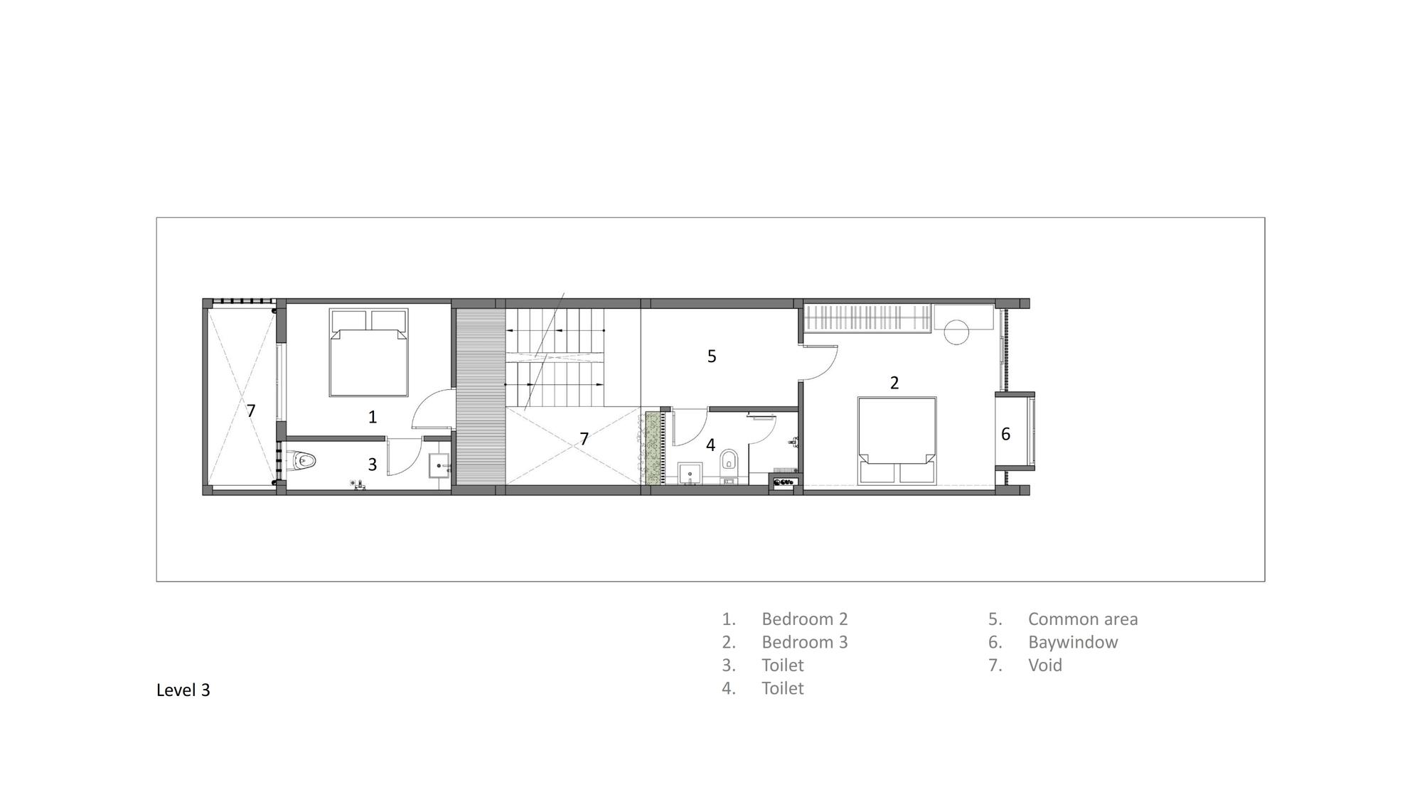
Tiêu chí là diện tích vừa đủ cho các phòng, gần 1/3 diện tích xây dựng được dùng chung cho giếng trời. Chất liệu bậc cầu thang là gỗ với kết cấu thép, chất liệu sàn hành lang là những thanh gỗ, gạch đỏ cổ kính cho toàn bộ phần tường tại giếng trời, đây là không gian kết nối cho tất cả các khu vực trong nhà. Bạn có thể giao tiếp với nhau thông qua khoảng trống này.

© Thanh Pham, Chi.Arch
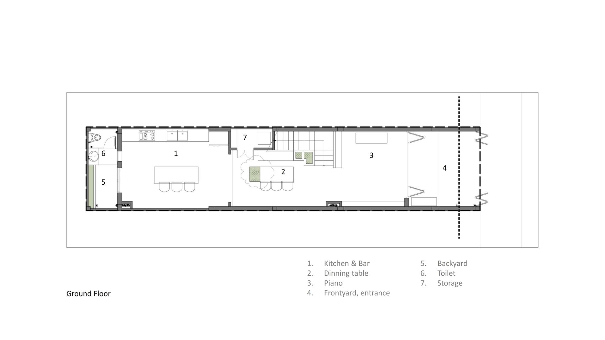
Tầng trệt bắt đầu với lối vào, không gian để đàn piano, khu vực chính là bếp và quầy bar phía sau nhà, bàn ăn được đặt tại khu vực giếng trời. Trong khi, phòng khách được đặt ở tầng lửng để giải phóng diện tích cho tầng trệt. Nơi đây có hướng nhìn ra cửa chính, phòng ngủ chính, diện tích này phù hợp với nhà lệch tầng, tạo thêm không gian sinh động trong ngôi nhà.

© Thanh Pham, Chi.Arch
Tất cả các không gian chức năng trong ngôi nhà đều được tiếp xúc với ánh sáng tự nhiên, thông gió và cây xanh, đây cũng là điều mong muốn ngay từ khi bắt đầu quá trình thiết kế của gia chủ và kiến trúc sư.

Mục 01
Diện tích hạn chế và khó đi trong ngõ hẹp là nhược điểm chung của nhà phố tại Việt Nam, đặc biệt là trong khu dân cư cũ. Cách duy nhất để tạo ra một không gian sống thực sự nếu bạn muốn đón gió và nắng vào ngôi nhà là loại bỏ một phần diện tích xây dựng. Đội ngũ thiết kế góp một phần công sức làm nên không gian đó, và chủ nhân của ngôi nhà là người hoàn thiện không gian đó và làm nên tổ ấm.

© Thanh Pham, Chi.Arch
