Nhà của Dế crickethouse
Project Info
Nhà ở , Nội thất nhà ở Thạch Thất, Việt Nam
Khu vực : 200 m²
Năm : 2018
Ảnh: Hoàng Lê
Nhà sản xuất: BETONLAB , Rustic Home , TME

Hình ảnh thuộc bảng quyền của chủ đầu tư, chỉ sử dụng cho mục đích nghiên cứu tham khảo, không sử dụng cho mục đích thương mại xây nhà tương tự. Cảm ơn.
Nhà của Dế crickethouse
Dự án nhà cricket diễn ra ở ngoại ô, Hà Nội. Với tổng diện tích 560m2, diện tích xây dựng 200m2, đây là một trong những dự án được thiết kế và hoàn thiện bởi 365 Design.


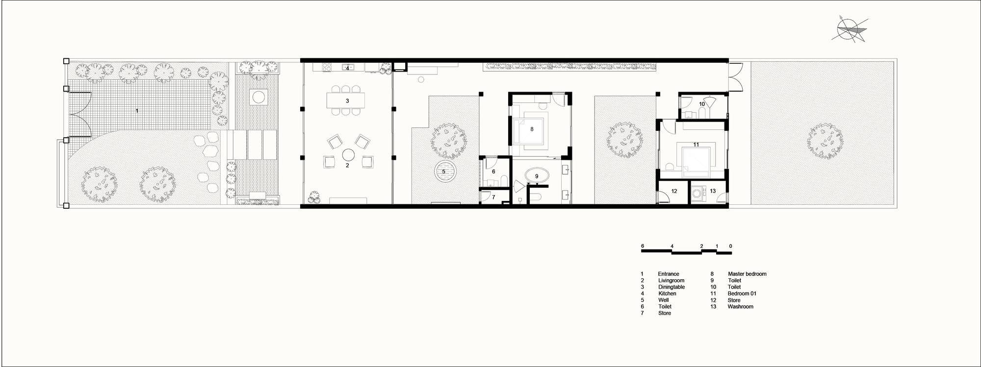
Kế hoạch sàn

Sau rất nhiều khái niệm tồn tại trên giấy, đây là khái niệm chúng tôi đã đầu tư rất nhiều thời gian và suy nghĩ để đưa vào thực tế. Cảm hứng chính của dự án này là Thiên nhiên. Nhà Cricket được thiết kế với không gian mở để tối đa hóa kết nối giữa con người và thiên nhiên.



Trong quá trình xây dựng, chúng tôi không thể tối ưu hóa vật liệu được sử dụng bởi địa điểm ở ngoại ô. Cuối cùng, chúng tôi đã sử dụng vật liệu có sẵn từ nhà cung cấp và nhà máy địa phương để tạo ra một không gian kiến trúc hiện đại có thể hòa nhập tốt với không gian xung quanh.

