Ngôi nhà tre saigon
Project Info
Nhà Saigon Vietnam
• • Diện tích: 217,0 m2
• • Năm: 2016
• Ảnh: Hiroyuki Oki
Hình ảnh thuộc bảng quyền của chủ đầu tư, chỉ sử dụng cho mục đích nghiên cứu tham khảo, không sử dụng cho mục đích thương mại xây nhà tương tự. Cảm ơn.
Ngôi nhà tre saigon
Mô tả văn bản được cung cấp bởi các kiến trúc sư. Dưới sự đô thị hóa nhanh chóng, các thành phố ở Việt Nam đã tách rời khỏi nguồn gốc của chúng là không gian xanh nhiệt đới mật độ thấp. Các khu đô thị mới phát triển đang mất kết nối với thiên nhiên. "Ngôi nhà tre" là một dự án khu dân cư nhỏ trong một con hẻm hẹp có tên là Hem Hem, ở thành phố Hồ Chí Minh. Dự án này nhằm phát triển khái niệm Ngôi nhà cho cây xanh ", một loạt các thiết kế nhà ở nguyên mẫu nhằm mục đích cung cấp không gian xanh trong khu dân cư mật độ cao.

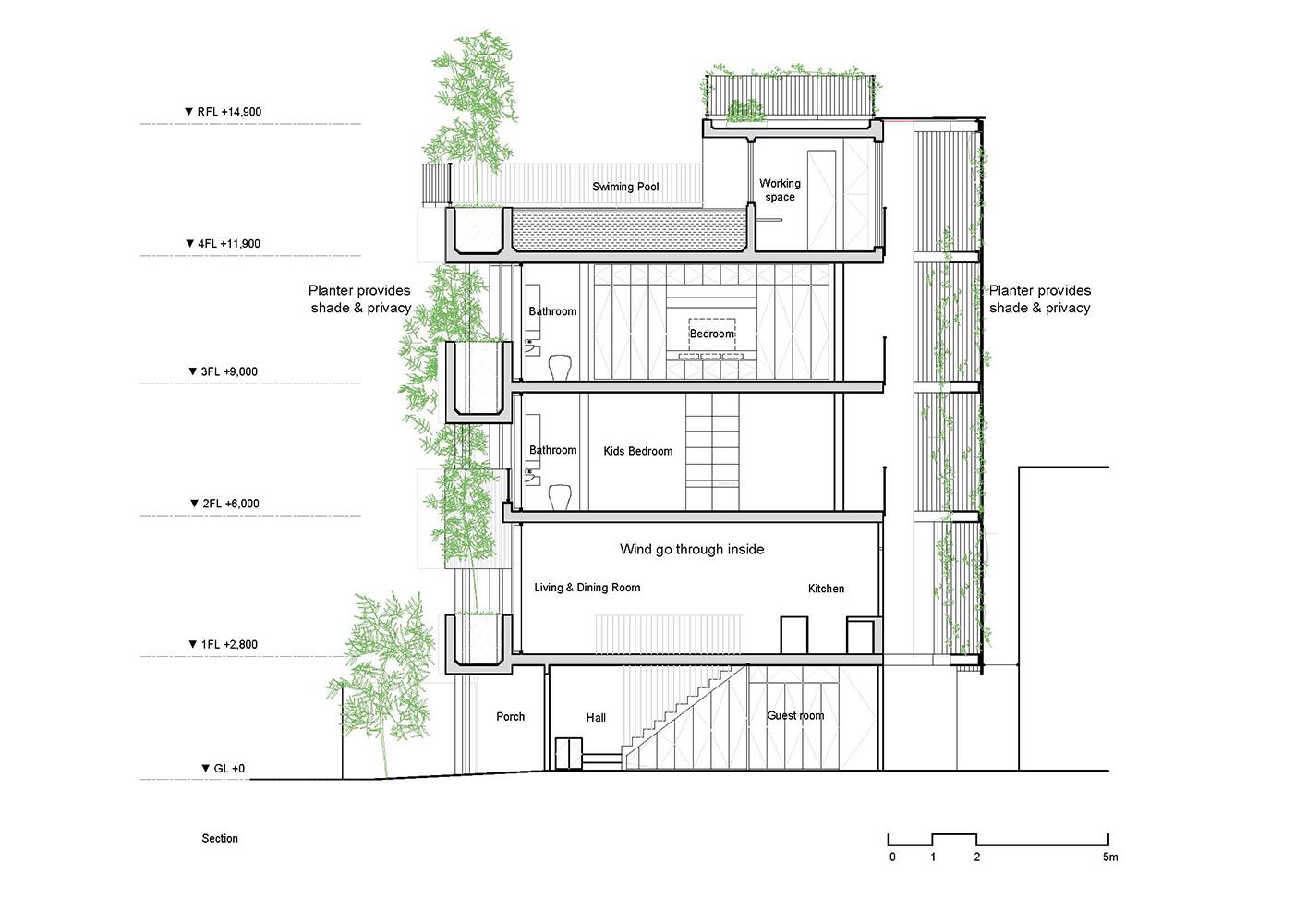
Ở Việt Nam, có vô số con hẻm chật hẹp có tên gọi là Hem Hem. Chúng rộng 2-3m, với các tòa nhà tương tự, hẹp và dài chạy dọc theo hai bên, giống như một khe núi. Các làn đường được lót bằng các hình thức hùng vĩ, và mặt tiền lạnh lẽo của chúng tạo cho đường phố một hào quang dày đặc và nặng nề. Các cửa sổ hầu hết được giữ kín để đảm bảo sự riêng tư của họ.

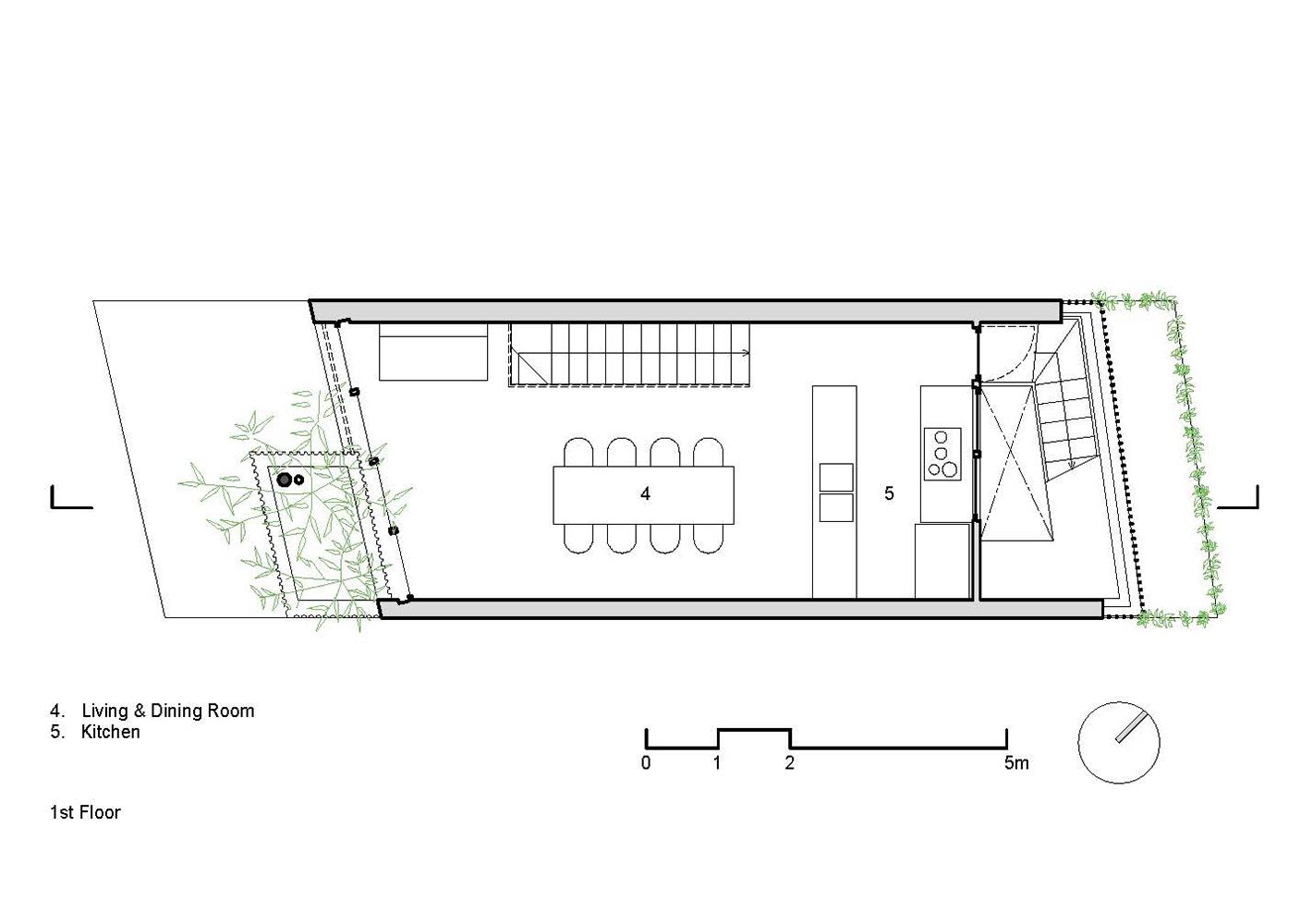
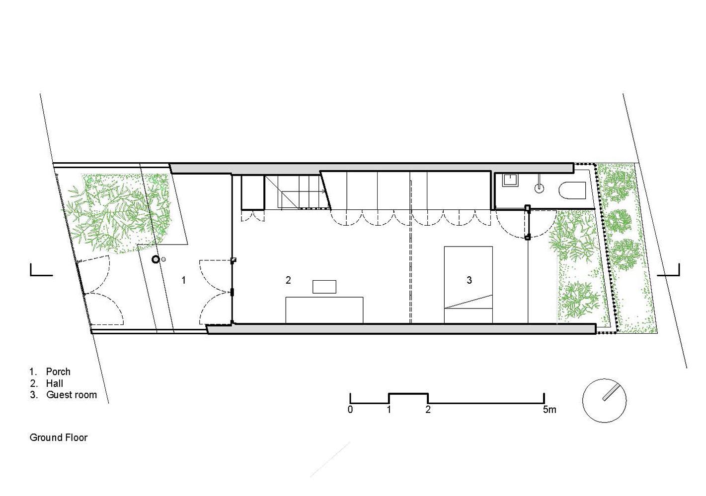
Với ý nghĩ này, 'Ngôi nhà tre', đã được thiết kế để tạo ra một không gian sống thoải mái, mặc dù diện tích hạn chế có sẵn. Khu vực này dày đặc và hẹp, chỉ có 2 mặt để cho phép thông gió tự nhiên và ánh sáng vào tòa nhà. Mặt tiền phía trước vui tươi với các hộp trồng cây được đặt tại các điểm ngẫu nhiên, tạo ra sự quan tâm và lối vào chào đón hơn.

Tình yêu của khách hàng đối với tre và sự phù hợp cao với bối cảnh châu Á của nó dẫn đến một mặt tiền được bao phủ bởi các đồn điền tre. Ngoài ra, các hộp trồng cây bật ra từ mặt tiền phía trước tạo thành mái hiên sâu cho phép các cửa sổ được giữ mở ngay cả trong mùa mưa.

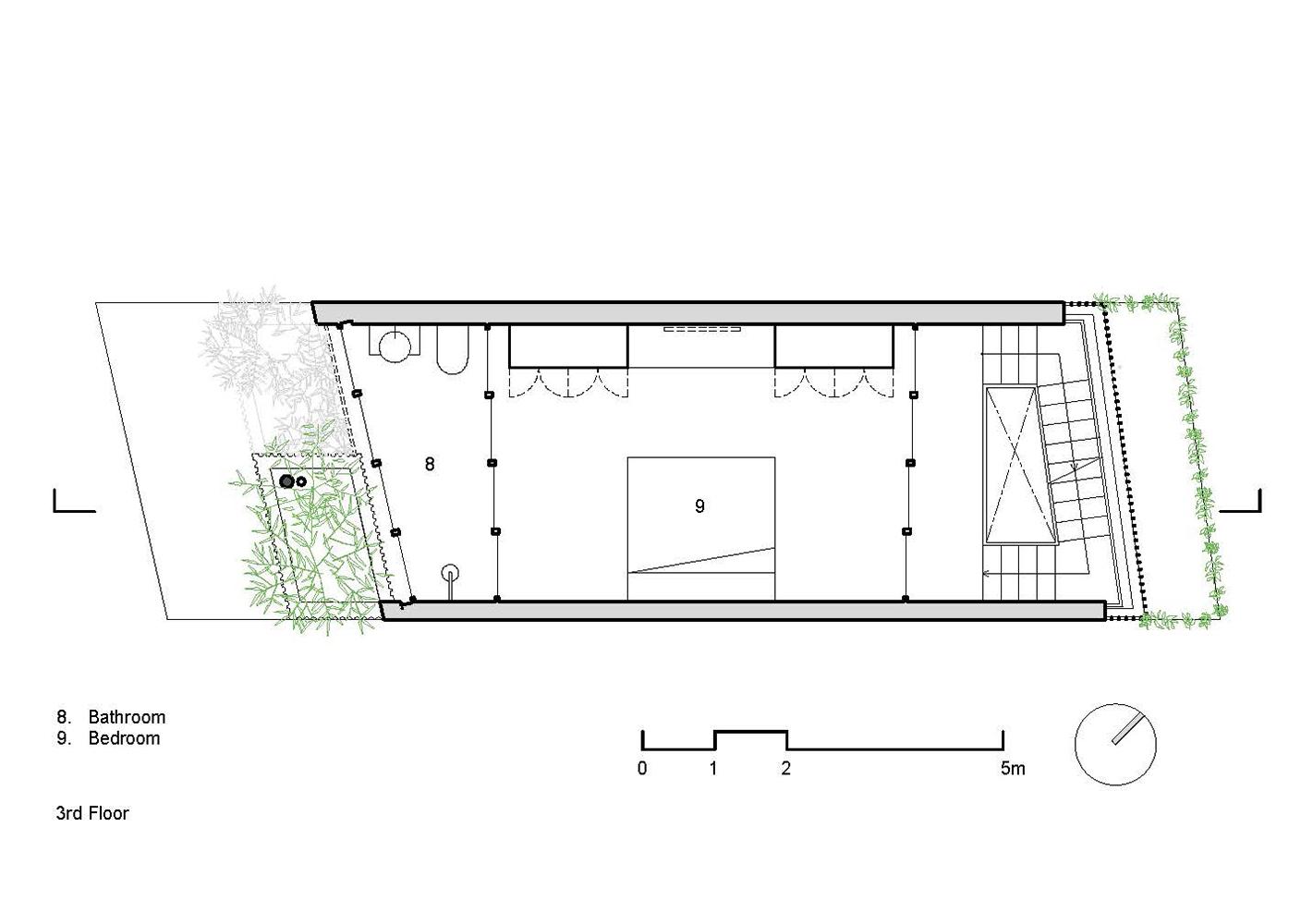
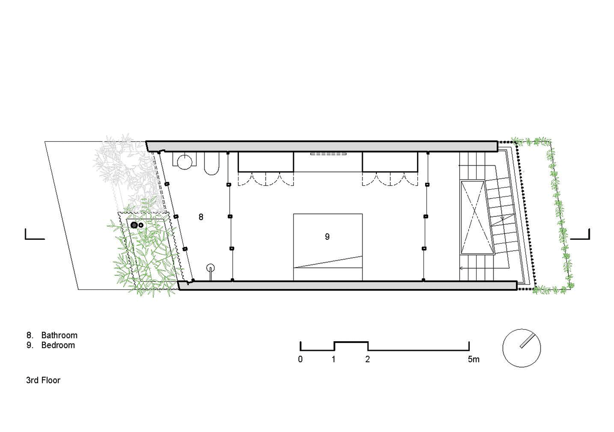
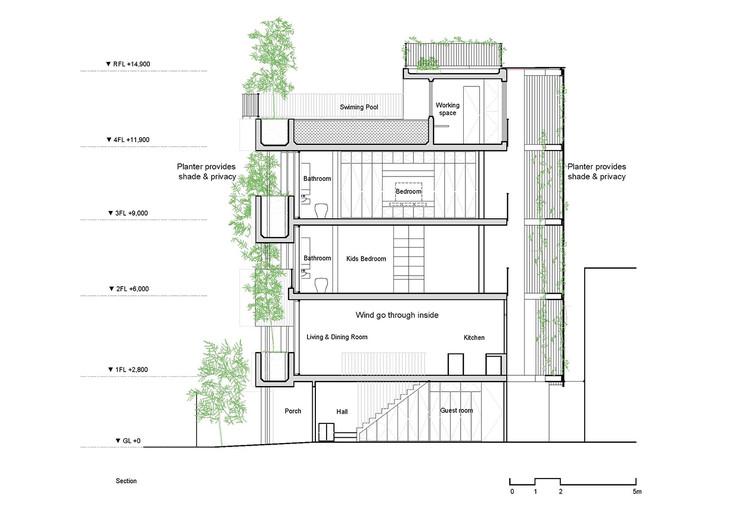
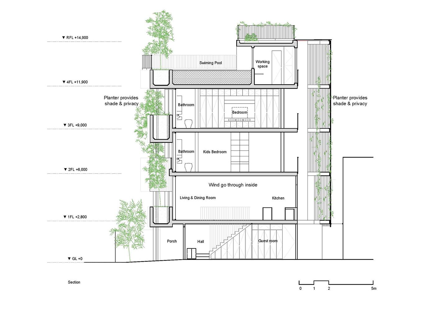
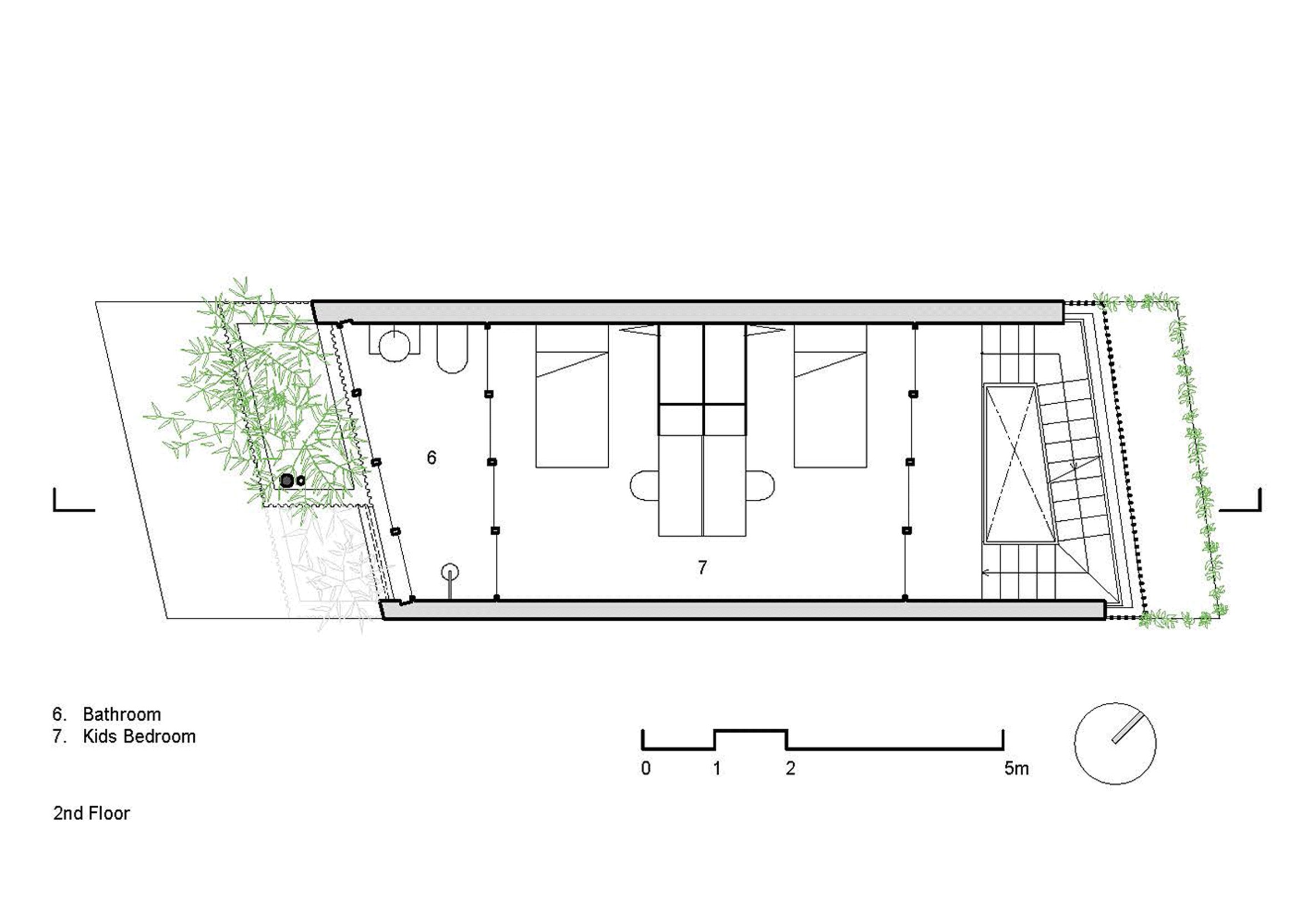
Hướng về phía cuối của ngôi nhà, thiết kế kết hợp một cầu thang bán mở được bao bọc bởi các dây leo, cho phép các nhánh và lá hoạt động như một lớp đệm cắt dòng chảy trực tiếp của ánh sáng mặt trời. Hơn nữa, nó cũng tạo ra một khoảng cách thoải mái giữa các khu phố. Điều này có thể thấy rõ trong phòng ngủ gần với phòng tắm và cầu thang mở.

Mặt trước và mặt tiền phía sau hầu hết mở, được bao phủ bởi cây xanh, cho phép gió mát đi qua nhà. Do đó, việc sử dụng không khí trong nhà đã giảm đáng kể.

Ngoài việc trồng tre ở mặt tiền, ván khuôn bê tông cũng được làm bằng cách sử dụng tre để cho phép một ngôn ngữ thiết kế nhất quán. Kết cấu tre cũng giúp làm giảm sự xuất hiện dữ dội và nặng nề của tường bê tông thông thường và do đó, cải thiện chất lượng thẩm mỹ tổng thể của ngôi nhà.

Khách hàng bày tỏ, 'Tôi thức dậy với tiếng chim hót líu lo mỗi sáng, khi các đồn điền thu hút họ. Nhà tôi có cảm giác như một khu rừng giữa thành phố nhộn nhịp. Các không gian xanh cũng giữ cho ngôi nhà luôn mát mẻ, giảm việc sử dụng điều hòa. Không gian cũng có cảm giác rộng hơn vì các lỗ mở lớn ở 2 bên. '

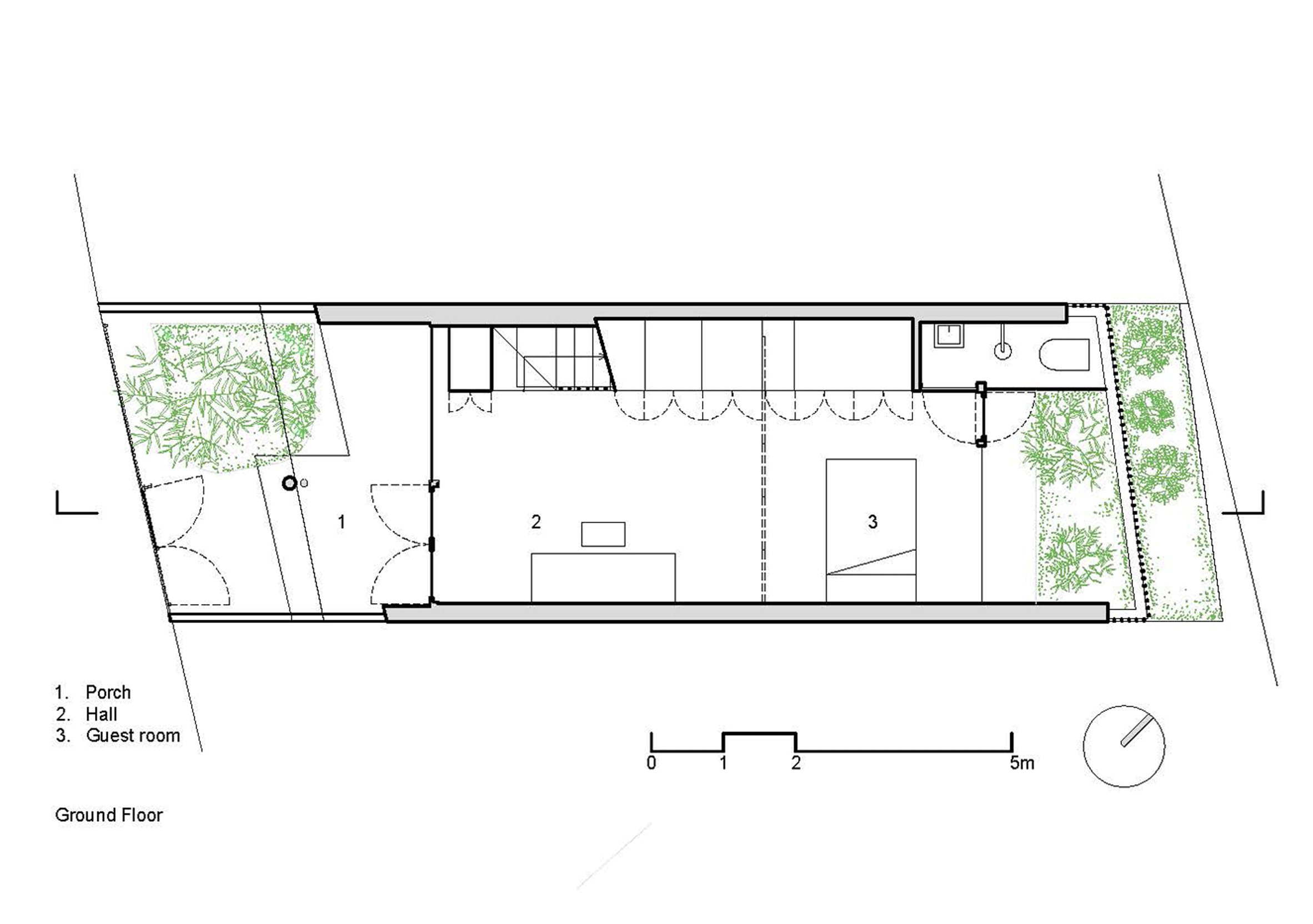
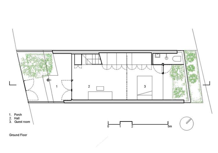
Mặt bằng tầng trệt

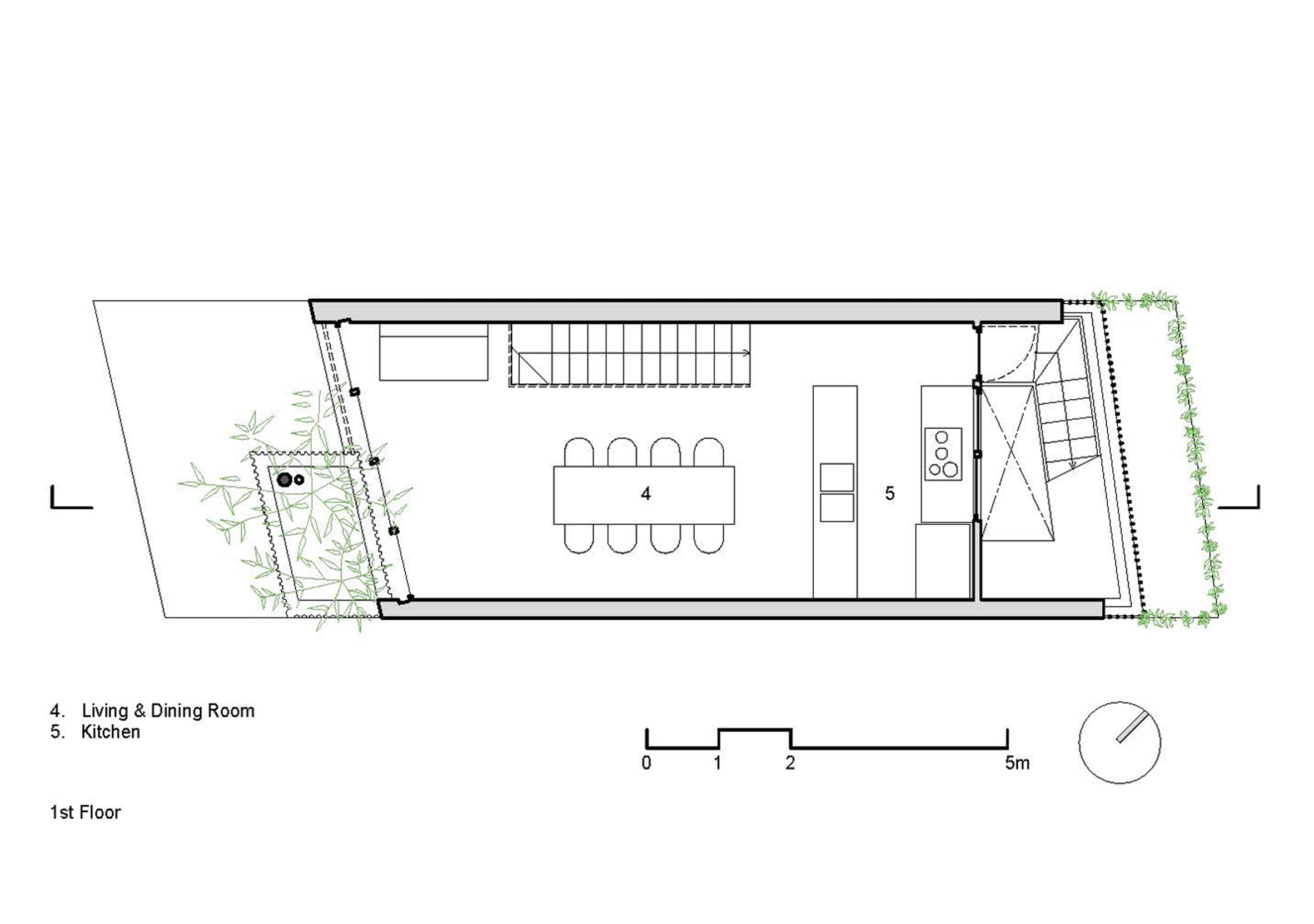
Kế hoạch tầng 1

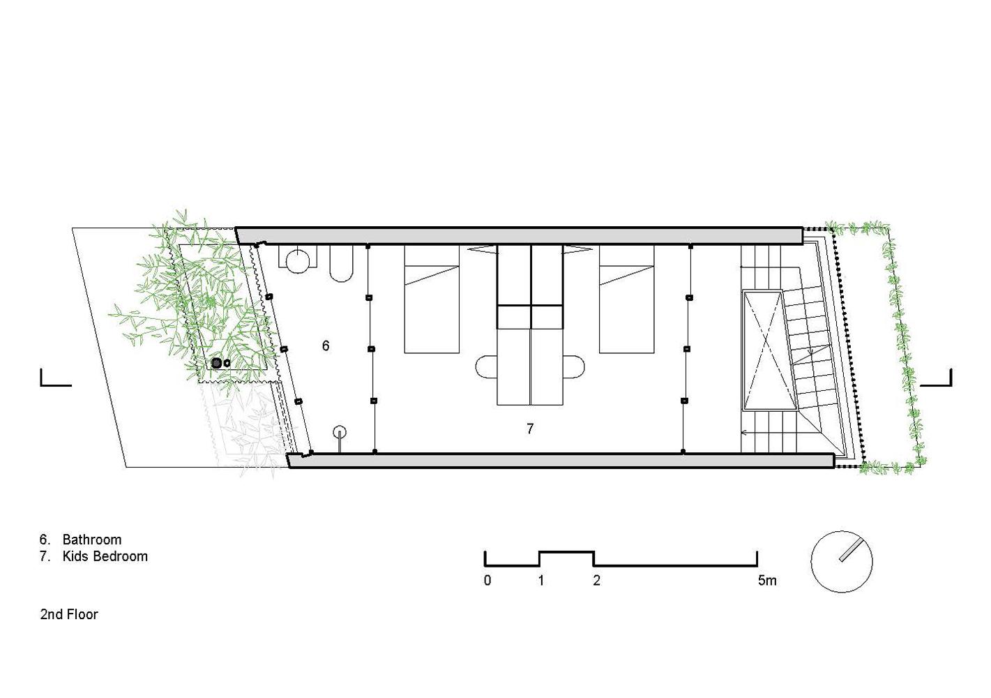
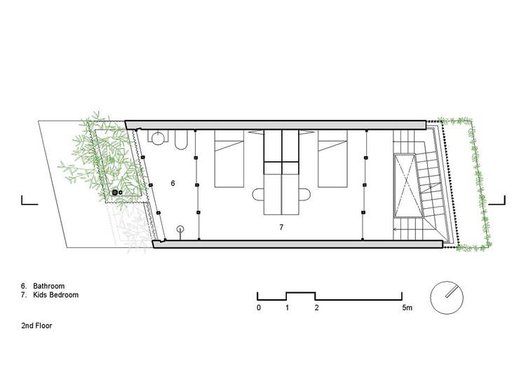
Kế hoạch tầng 2

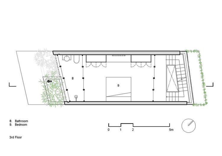
Kế hoạch tầng 3

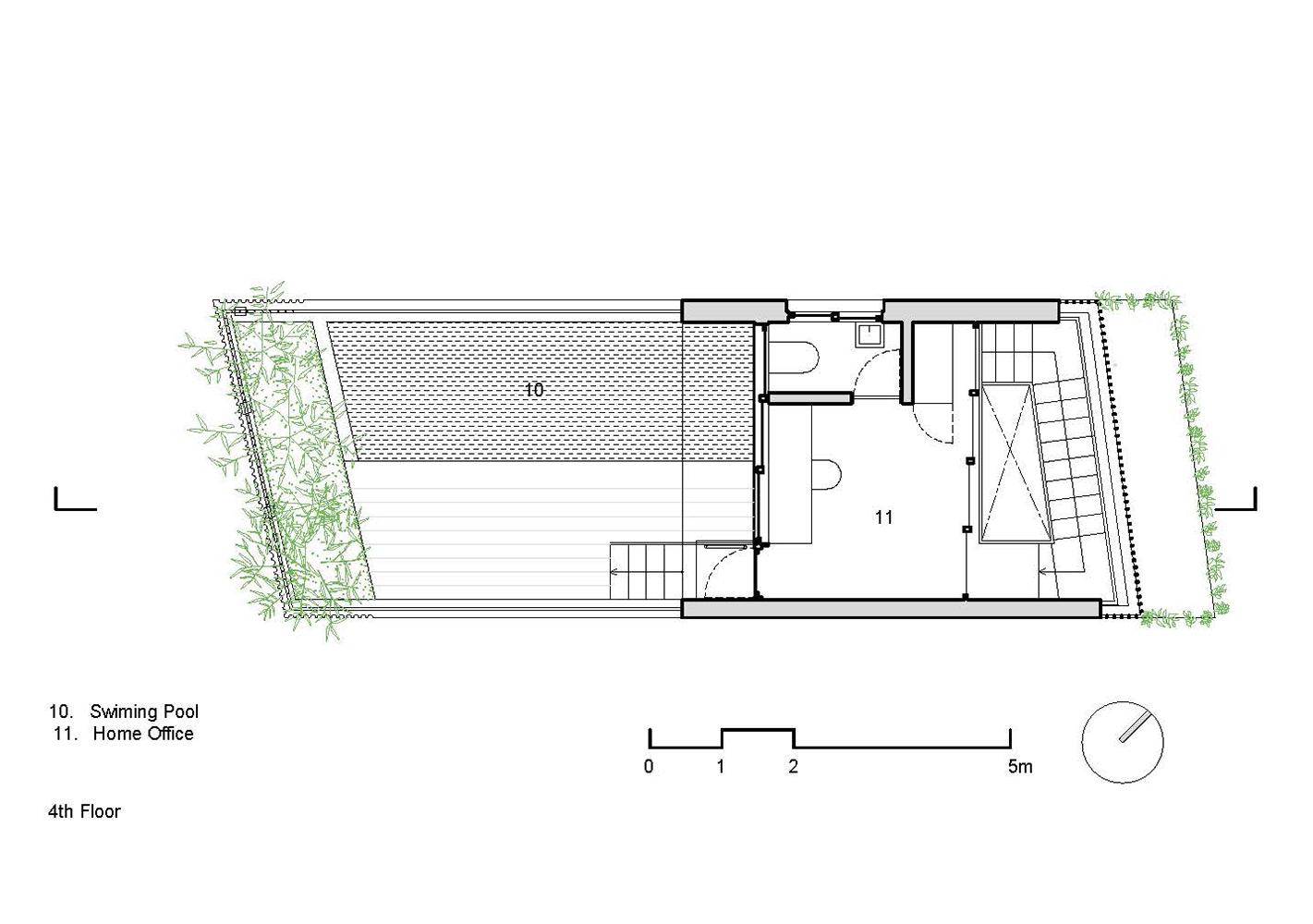
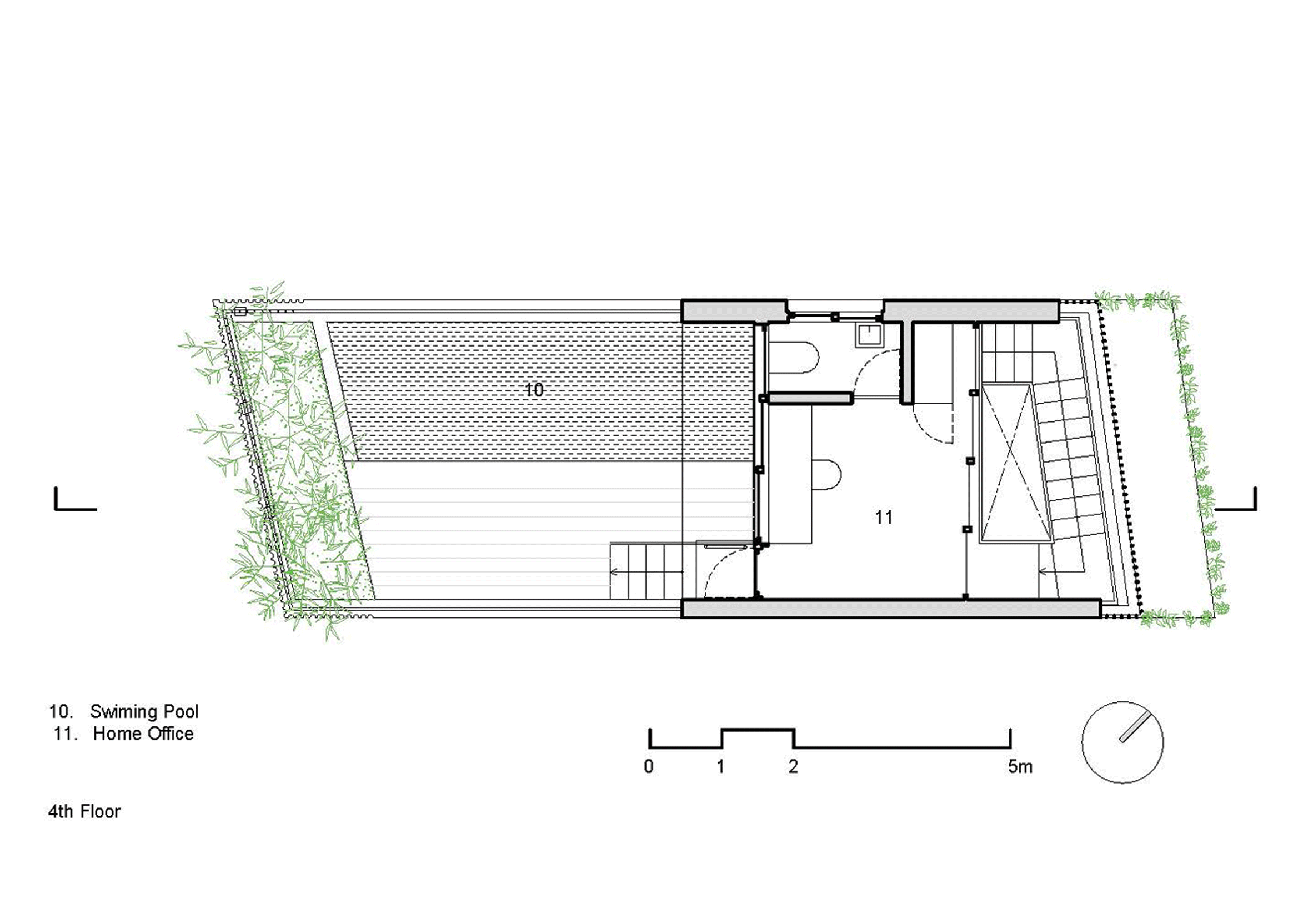
Kế hoạch tầng 4
Dự án này cung cấp một giải pháp để tạo ra một không gian sống thoải mái và cởi mở, được bao quanh bởi màu xanh lá cây trong một trang web rất dày đặc và nhỏ. Nó không chỉ đáp ứng nhu cầu chức năng và thẩm mỹ mà còn kết nối mọi người với nhau và quan trọng hơn là với thiên nhiên.

