Ngôi nhà thư thái AT
Thông tin dự án
• Những ngôi nhà Gia Kiệm, Việt Nam
• Kiến trúc sư: Hoàng GK
• • Diện tích: 309 m²
• • Năm: Năm 2020
• • Hình ảnh: Quang Tran
• • Nhà sản xuất: INAX , Toto , Mycolor , Xingfa

Ngôi nhà thư thái AT

© Quang Tran
Mô tả văn bản do các kiến trúc sư cung cấp. Ngôi nhà AT nằm trong khu dân cư đông đúc tại tỉnh Đồng Nai, ngôi nhà được thiết kế dành cho một cặp vợ chồng trẻ theo đạo thiên chúa với những đứa con tương lai của họ. Khách hàng là những người yêu thiên nhiên nên một trong những yêu cầu cơ bản của họ là tạo ra một không gian sống nhiều ánh sáng, gió, cây xanh và gắn kết với thiên nhiên một cách tối đa. Họ muốn ngủ trong một căn phòng nơi họ có thể nhìn thấy nhiều màu xanh khi thức dậy vào mỗi buổi sáng. Hơn nữa, người vợ muốn phòng ngủ của mình có màu trắng vì cô ấy muốn không khí riêng tư của mình trở nên độc đáo. Từ tất cả các sở thích này, chúng tôi đã đề xuất cho họ khái niệm phù hợp với họ.

© Quang Tran

Kế hoạch - Tầng trệt

© Quang Tran

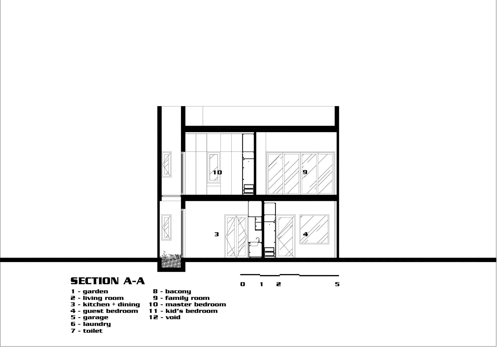
Phần 1-1
Ngôi nhà sử dụng vật liệu địa phương nhưng hiệu quả, với phương pháp phù hợp nhằm mang lại chất lượng cuộc sống tốt nhất cho gia chủ, Ngoài ra, ngôi nhà được thiết kế theo không gian mở, bố trí nhiều cây xanh, tận dụng được thiên nhiên. gió và ánh sáng vì vậy nó không cần ánh sáng nhân tạo vào ban ngày và điều hòa không khí vào ban đêm. Ngôi nhà tận dụng tối đa những khoảng xanh yên bình để khách hàng có thể bỏ lại mọi mệt mỏi sau một ngày làm việc dài.

© Quang Tran

© Quang Tran
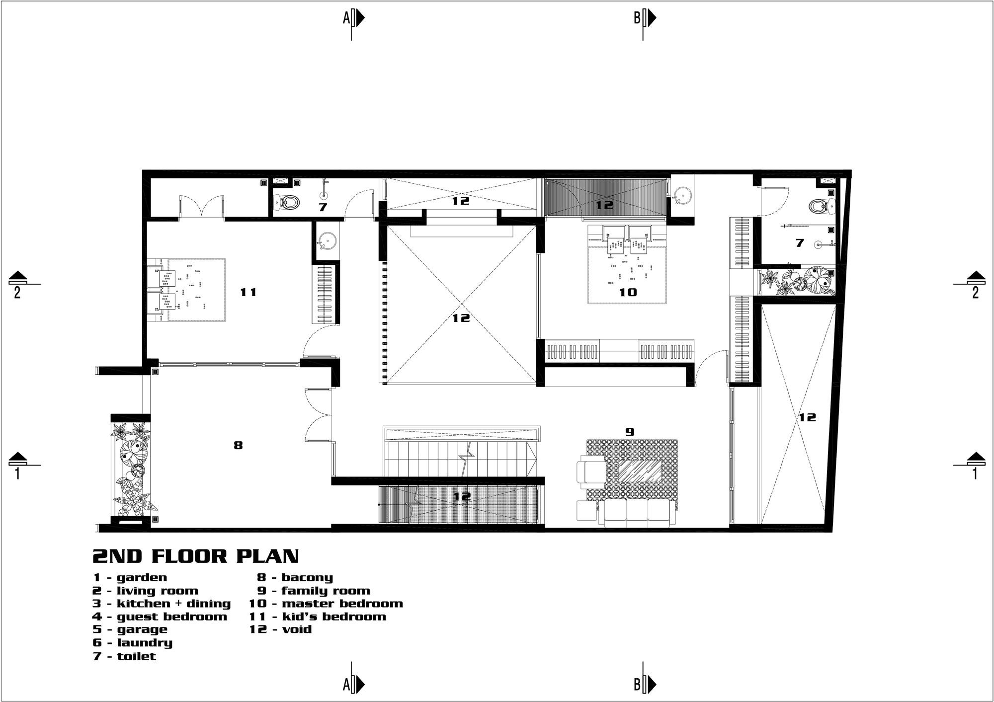
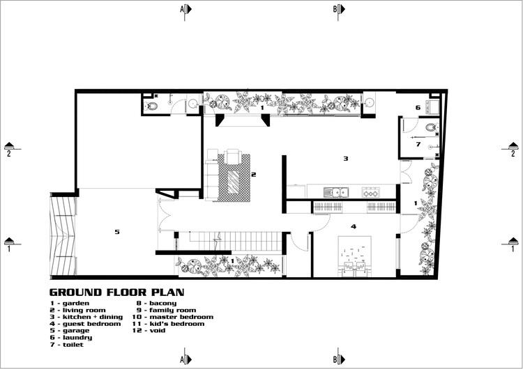
Tầng 1 là không gian sinh hoạt chính của gia đình bao gồm phòng khách, phòng ngủ, bếp, phòng ăn. Các khu vực này được bao quanh bởi các khu vườn nhỏ giúp ngôi nhà có thể thở và thông gió khắp ngôi nhà, ngoài ra còn có thể cho ánh sáng tự nhiên vào tất cả các phòng. Tầng 2 là nơi đặt phòng ngủ và phòng sinh hoạt chung của gia đình cùng với một lỗ thông gió lớn đã được tạo ra ở giữa mang đến sự kết nối giữa các không gian tốt hơn.

© Quang Tran

© Quang Tran
Hơn nữa, phòng ngủ và phòng sinh hoạt chung của gia đình được thiết kế với khoảng thông tầng và khoảng sân nhỏ giúp bạn có thể ngắm nhìn bầu trời thư thái và đón gió tự nhiên mỗi ngày. Ngôi nhà không chỉ có công năng và thẩm mỹ mà quan trọng nhất là ngôi nhà được thiết kế để tăng sự kết nối giữa con người với thiên nhiên thông qua không gian sống với các giải pháp kiến trúc nhằm tạo điều kiện sống tốt hơn cho con người trong khi đô thị hóa tác động xấu đến môi trường sống.

© Quang Tran
