Ngôi nhà không gian đệm cây xanh
Thông tin dự án
Ngôi nhà Huyện Nhà Bè, Việt Nam
• Kiến trúc sư: Architecture and Construction
• • Khu vực : 82 m²
• • Năm : 2014
• Ảnh: Lê Cảnh Văn, Vũ Ngọc Hà

Ghi chú: Hình ảnh thuộc bảng quyền của chủ đầu tư, chỉ sử dụng cho mục đích nghiên cứu tham khảo, không sử dụng cho mục đích thương mại xây nhà tương tự. Cảm ơn.
Ngôi nhà không gian đệm cây xanh
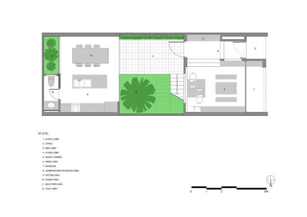
Ngôi nhà nằm không quá sâu trong một con đường khá yên tĩnh ở ngoại ô Sài Gòn. Giống như nhiều ngôi nhà ở Việt Nam, nó đã liên tục tiếp xúc với môi trường xung quanh nhộn nhịp như bụi, nhiệt, tiếng ồn… Vì những yếu tố này, chủ nhà (cũng hoạt động trong ngành thiết kế) chia sẻ khá nhiều với chúng tôi trong một quyết định để làm cho hoạt động tích cực hơn không gian sẽ hướng nội - "hướng nội" để xây dựng lõi với không gian đệm của cây xanh. Nói cách khác, không gian mở là ưu tiên cao nhất trong quá trình thiết kế cho các thế hệ của gia đình tương tác với nhau.

Các tiêu chí cụ thể cho ngôi nhà được trình bày như sau:
Mở không gian nhưng "hướng nội"; đơn giản, mộc mạc nhưng tinh tế. Ưu tiên chiếu sáng tự nhiên và thông gió. Giảm sự phụ thuộc vào và tiết kiệm tối đa năng lượng nhân tạo. Mượn ánh sáng và bóng tối để trang trí, tận dụng tối đa không khí mát mẻ, nhưng phải kiểm soát nhiệt, tiếng ồn và đảm bảo an ninh cho ngôi nhà. Tôn trọng lối sống và văn hóa sống của chủ sở hữu.

Sử dụng vật liệu thân thiện với môi trường. Sử dụng vật liệu độc đáo của địa phương để giảm chi phí đầu tư và bảo tồn ấn tượng và bản sắc khu vực. Có một không gian nhỏ để làm văn phòng chủ của chủ sở hữu.

Với nhiệm vụ thiết kế này, chúng tôi đã đề xuất phương pháp "nhà hai bên". Lớp da bên ngoài (hoặc lớp) là "tường" được xây dựng bằng gạch bê tông rỗng 30x30cm để gió, ánh sáng mặt trời và mưa trong nhà, đồng thời đảm bảo an ninh. Đằng sau "quần áo" đầu tiên là những không gian xen kẽ với cây xanh, để lọc bụi và giảm nhiệt, tiếng ồn trong nhà và mang lại một khung cảnh gần gũi, tự nhiên cho ngôi nhà. Tiếp theo là làn da bên trong với các tấm kính lớn mở ra đầy đủ, chủ sở hữu có thể tận hưởng cảm giác thân mật với mọi cảnh quan thiên nhiên bên ngoài.

Tuy nhiên, vấn đề đặc biệt nhất trong thiết kế không nằm trong kế hoạch “nhà đôi da” mà là một khu vườn nhỏ ở giữa ngôi nhà, nơi mà tất cả sự tách biệt không gian đều bị bãi bỏ, cho phép tất cả các thành viên trong gia đình tập hợp và xua tan mệt mỏi mỗi ngày sau giờ làm việc .

Một không gian nhỏ với sân chơi, vườn, cầu thang bằng gỗ tối giản và sắt, tất cả ngâm dưới ánh sáng tự nhiên thực sự có thể tạo ra trái tim của ngôi nhà. Ở đây, nhóm kiến trúc sư tạo ra một không gian cho tất cả các thế hệ có thể giao tiếp với nhau, từ xích đu cho trẻ nhỏ, khu vườn cho ông bà để thư giãn và chăm sóc cây, nơi cha mẹ có thể hiển thị kỹ năng nấu ăn của họ. Câu đố "không gian mở nhưng hướng nội" được giải quyết xuất sắc.

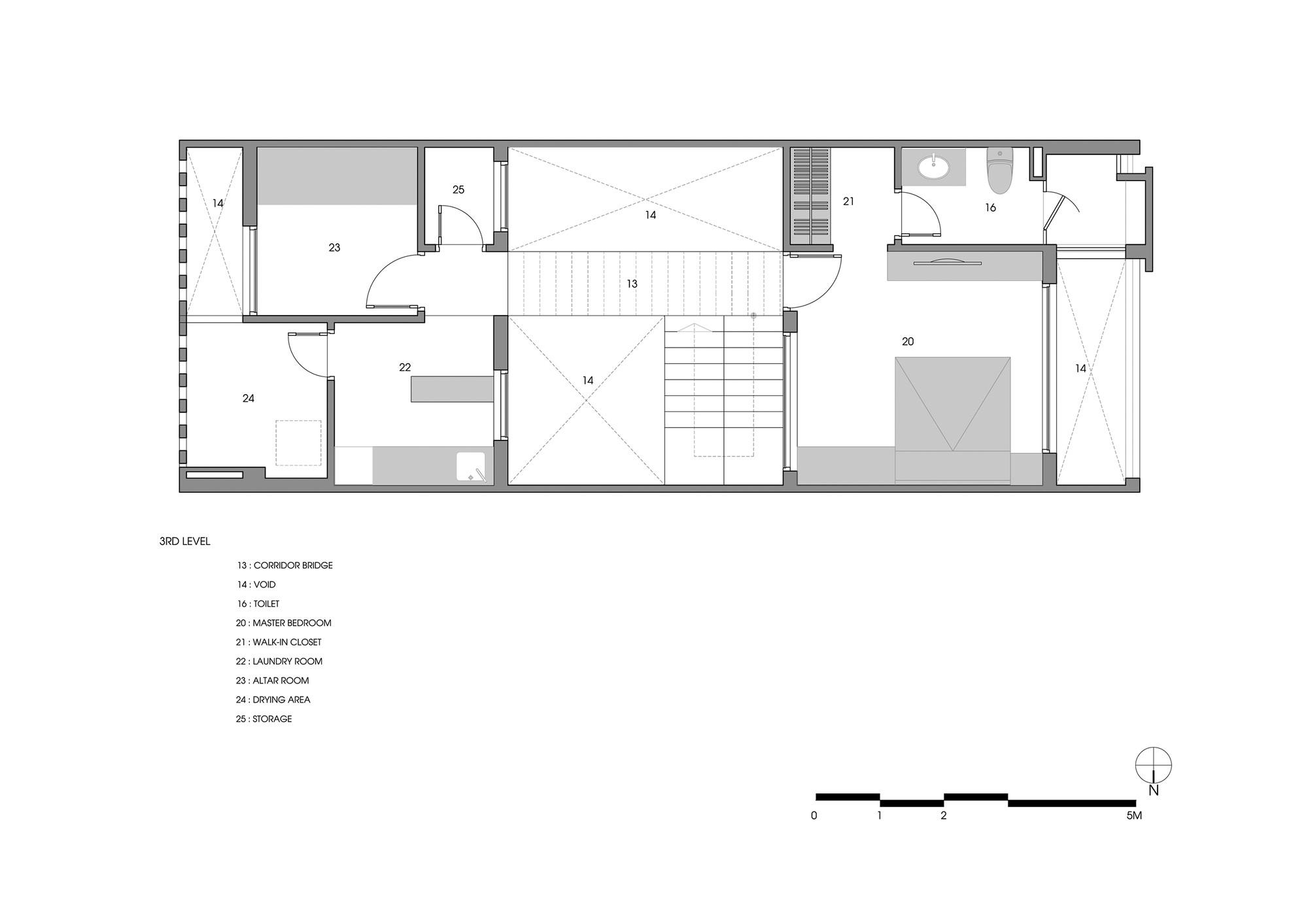
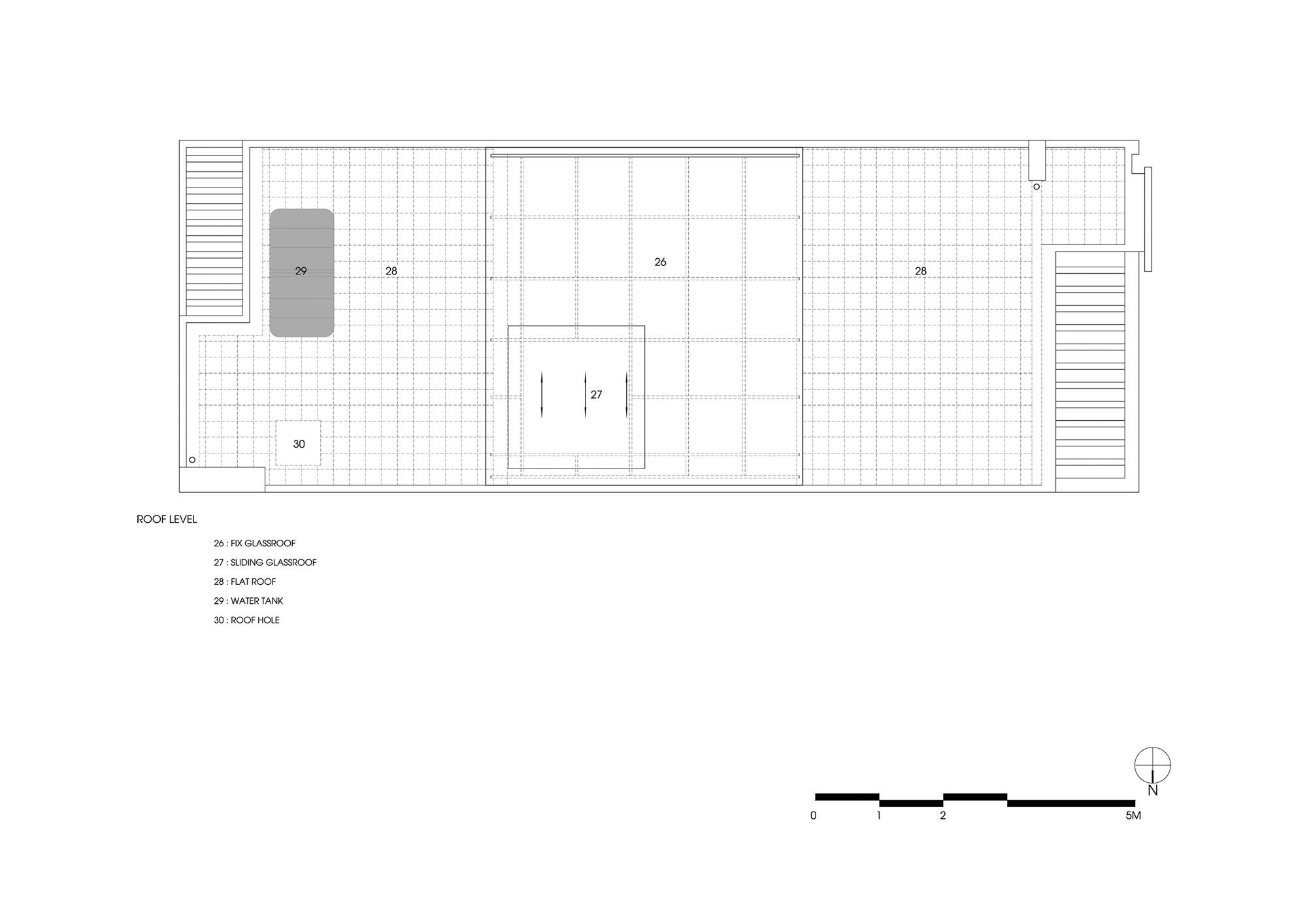
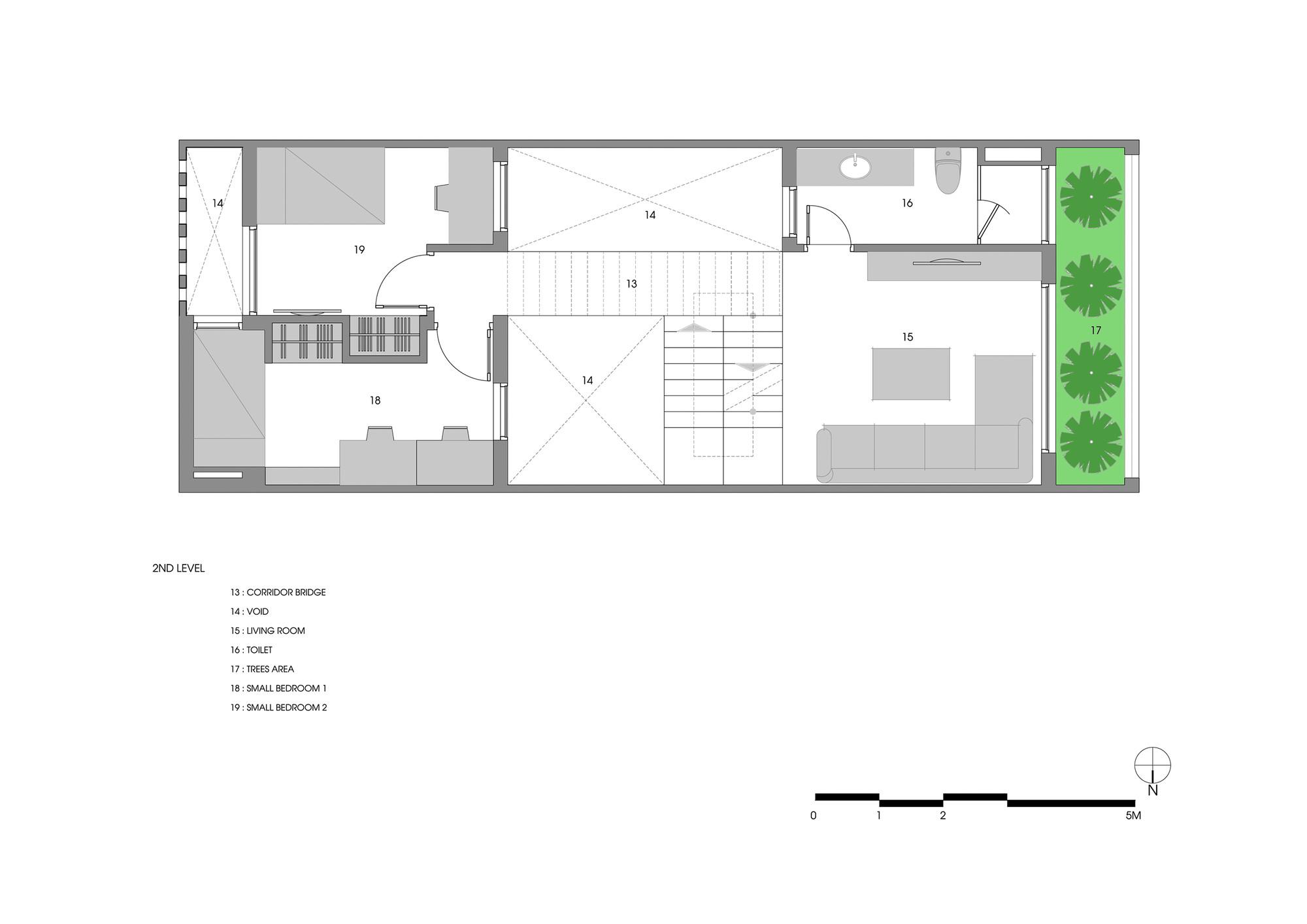
Giải pháp mang ánh sáng và gió từ các không gian chức năng như vườn đệm, mái kính di động, tường bê tông thông thoáng cho phép ngôi nhà được thấm ánh sáng mặt trời, không khí mát mẻ tự nhiên và trên hết, tất cả các phòng đều có hai mặt tiếp xúc với ánh sáng tự nhiên. Các tính toán tinh tế của đội ngũ thiết kế được thể hiện trong từng giai đoạn: trong buổi trưa, ánh sáng mặt trời chiếu trực tiếp vào khu vườn, những không gian còn lại lấy ánh sáng phản xạ qua bức tường bê tông; vào buổi chiều, các bộ lọc ánh sáng thông qua các bức tường gạch thông gió và tạo độ sâu thông qua bóng của vật liệu trên sàn và tường. Nguyên tắc đối lưu và thông gió trực tiếp cũng được áp dụng nghiêm ngặt, giúp không gian trong nhà lấy gió tự nhiên. Do đó, vấn đề thông thoáng ánh sáng đã được giải quyết để cung cấp cho chủ sở hữu một ngôi nhà gần gũi và thân thiện với môi trường và thiên nhiên.
.jpg)
"Bạn biết đấy, đó là cuộc sống đúng và kiến trúc sư sai" (Le Corbusier), kiến trúc sư không thể thách thức lối sống và thói quen sinh hoạt của chủ nhà. Các chủ nhà muốn di chuyển đồ nội thất đã qua sử dụng từ ngôi nhà cũ sang ngôi nhà mới ... Tất nhiên, sẽ khó để tô màu những điểm tương đồng với ngôi nhà chung nếu không có phần "lộn xộn", tuy nhiên, kiến trúc sư luôn tôn trọng mong muốn đó sắp xếp hợp lý hơn, coi như là một nơi để giống với những kỷ niệm và cảm xúc, sự đơn giản và tính xác thực mang lại sự thoải mái và quen thuộc với cảm giác bên trong của chủ sở hữu.

