Ngôi nhà Đàm lộc House
Thông tin dự án
Những ngôi nhà Việt Nam
Khu vực : 52 m²
Năm : 2017
Ảnh: Triệu Chiến
Nhà sản xuất: Nhà sản xuất ECO , THÁI NGUYÊN , ĐÁP CẦU Glasses company
Kiến trúc sư chính: Lê quang Vinh
Cộng tác viên: Nguyên văn Toàn, Nguyên quang Huy
Hình ảnh thuộc bảng quyền của chủ đầu tư, chỉ sử dụng cho mục đích nghiên cứu tham khảo, không sử dụng cho mục đích thương mại xây nhà tương tự. Cảm ơn.
Ngôi nhà Đàm lộc House
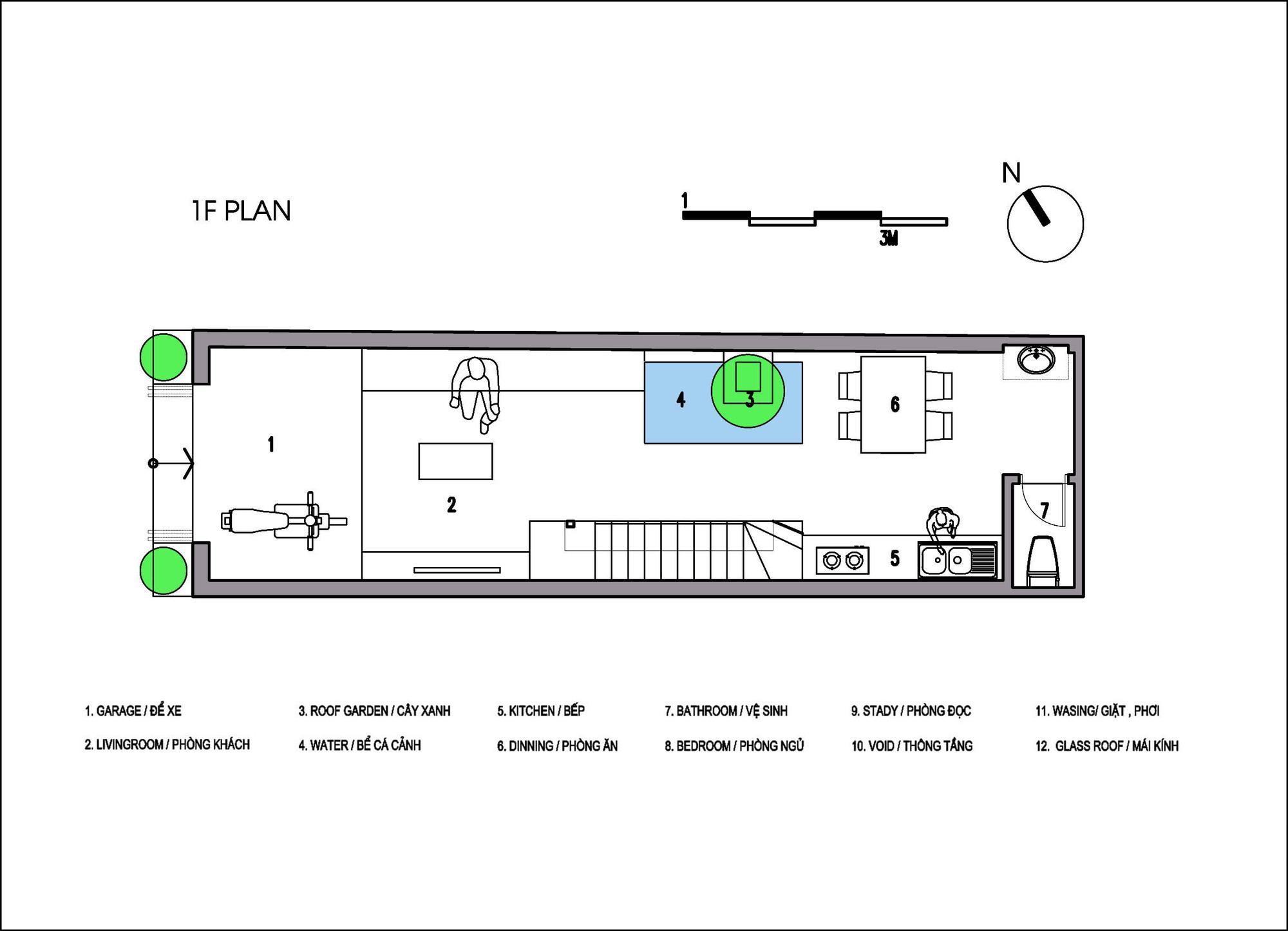
Với diện tích đất 52 m2, nó là điển hình của ngôi nhà ống điển hình ở Việt Nam. Chiều rộng là 4m và chiều dài là 13m. Theo thiết kế địa phương, cầu thang sẽ được đặt ở giữa nhà. Tầng đầu tiên sẽ là một nhà để xe, phòng khách, phòng ăn, nhà bếp và nhà vệ sinh sẽ được đặt dưới cầu thang bên cạnh sàn nhà là phòng ngủ ở hai nhà vệ sinh và nhà vệ sinh ở giữa.

Ưu điểm của loại thiết kế này là dễ áp dụng không gian phòng ngủ thêm. Điểm bất lợi của thiết kế này là không gian không phải là phòng sạch sẽ chia sẻ với nhà để xe ... mất đi sự sang trọng và sạch sẽ.

Bên cạnh cầu thang giữa nhà và nhà vệ sinh dưới cầu thang nhỏ tối mà không có ánh sáng tự nhiên. Các phòng ăn và nhà bếp hẹp thiếu ánh sáng tự nhiên dẫn đến mất vệ sinh.

Vì vậy, với thiết kế này, kiến trúc sư đã thay đổi hướng cầu thang để vắt mặt để tiết kiệm không gian cho cây xanh và bể cá cảnh.

Phòng khách của ngôi nhà được lấy cảm hứng từ khung cảnh yên tĩnh của làng Việt Nam (mỗi làng có một cái cây lớn dưới gốc cây là một quán trà nhỏ, nơi khách dừng chân khi ra khỏi làng và là nơi tụ họp của người dân trong làng khi họ đi làm, nơi trẻ em chơi, chúng ngồi dưới gốc cây để nghỉ ngơi và kể cho nhau nghe về cuộc sống, công việc nông trại).

Bên cạnh nhà bếp và phòng ăn, phòng ăn được thiết kế cho gia đình khoảng 4 người với 2 ghế sau và mặt trước của ghế không có tựa lưng để bạn có thể ngồi thoải mái trên tường đọc sách. cây và cá bơi.

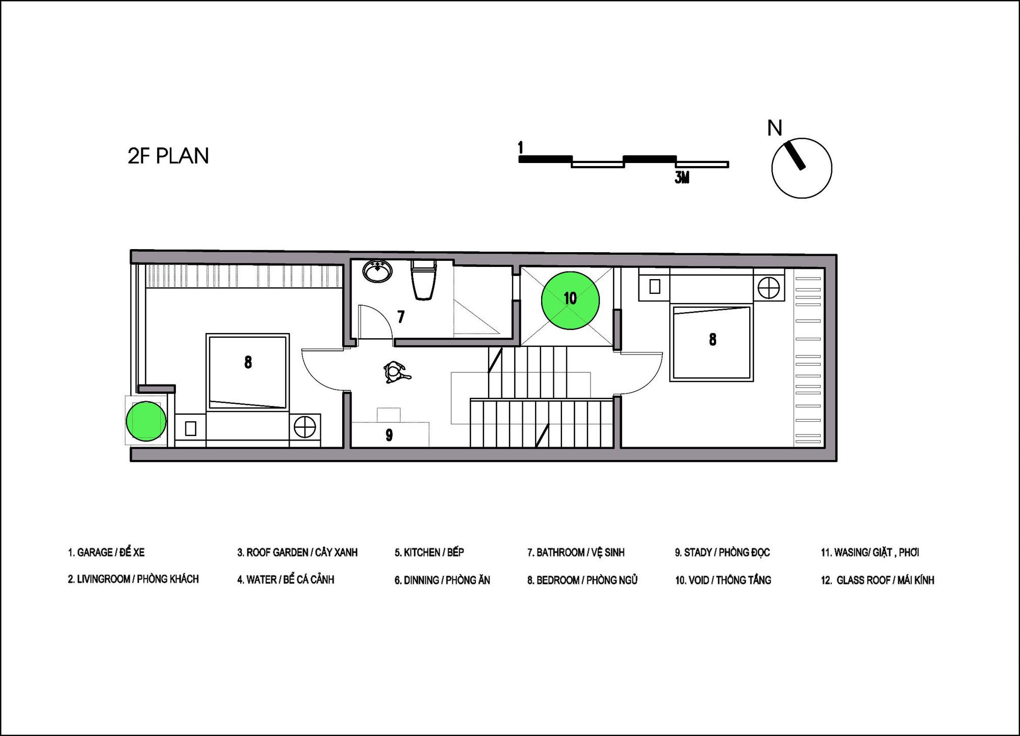
Trên tầng 2 của ngôi nhà, có 2 phòng ngủ với nhiều ánh sáng tự nhiên và các cửa sổ có thể được mở ra để nhìn thấy những cây phía trước.

Tầng 3 là nơi thờ phượng của gia đình và nơi làm việc của ngôi nhà cũng đầy cây cối và ánh sáng tự nhiên. Mặt tiền bên ngoài ngôi nhà được sử dụng là loại gạch thông gió được sử dụng rộng rãi ở Việt Nam trong những năm 1980 và 90. Loại gạch này được làm bằng bê tông.

Bây giờ tái sử dụng vì tính năng hữu ích của nó phù hợp với cuộc sống hiện đại ở khu vực đô thị với các hộ gia đình nhỏ độc lập cũng như an ninh bên ngoài, che mưa nhưng vẫn đảm bảo thông gió tự nhiên. Nhưng lợi thế lớn của nó là ánh sáng xuyên qua khe hở tạo ra những cảm xúc rất đặc biệt.

Vì vậy, với sự thay đổi về kiến trúc, nó đã biến ngôi nhà ống hiện tại của Việt Nam với một khiếm khuyết đen tối thành một ngôi nhà của ánh sáng và cây cối, nhưng cũng tràn đầy cảm xúc khi sống trong đó. quá nhiều không gian để sử dụng so với các ngôi nhà xung quanh và chi phí xây dựng cũng khiêm tốn khoảng $ 35000 USD.
