Ngôi nhà anh sáng DD house
Thông tin dự án
Ngôi nhà Thủ Dầu Một, Việt Nam
• • Diện tích: 119 m²
• • Năm: 2018
• • Hình ảnh: Tô Nguyễn
• • Nhà sản xuất: AutoDesk , TAICERA , AnCuong , TOA
Kiến trúc sư chính: Hoàng Vũ

Hình ảnh thuộc bảng quyền của chủ đầu tư, chỉ sử dụng cho mục đích nghiên cứu tham khảo, không sử dụng cho mục đích thương mại xây nhà tương tự. Cảm ơn.
Ngôi nhà anh sáng DD house

© Tô Nguyễn
Mô tả văn bản do các kiến trúc sư cung cấp. Dự án này là nơi ở của một gia đình ba thế hệ. Nó nằm trong một khu dân cư yên tĩnh. Ngôi nhà cần thông thoáng để tận dụng tối đa không khí xung quanh. Kiến trúc sư luôn mong muốn mang đến cho khách hàng không chỉ là nơi an cư tiện lợi mà còn là trải nghiệm về không gian, ánh sáng và gió trời.


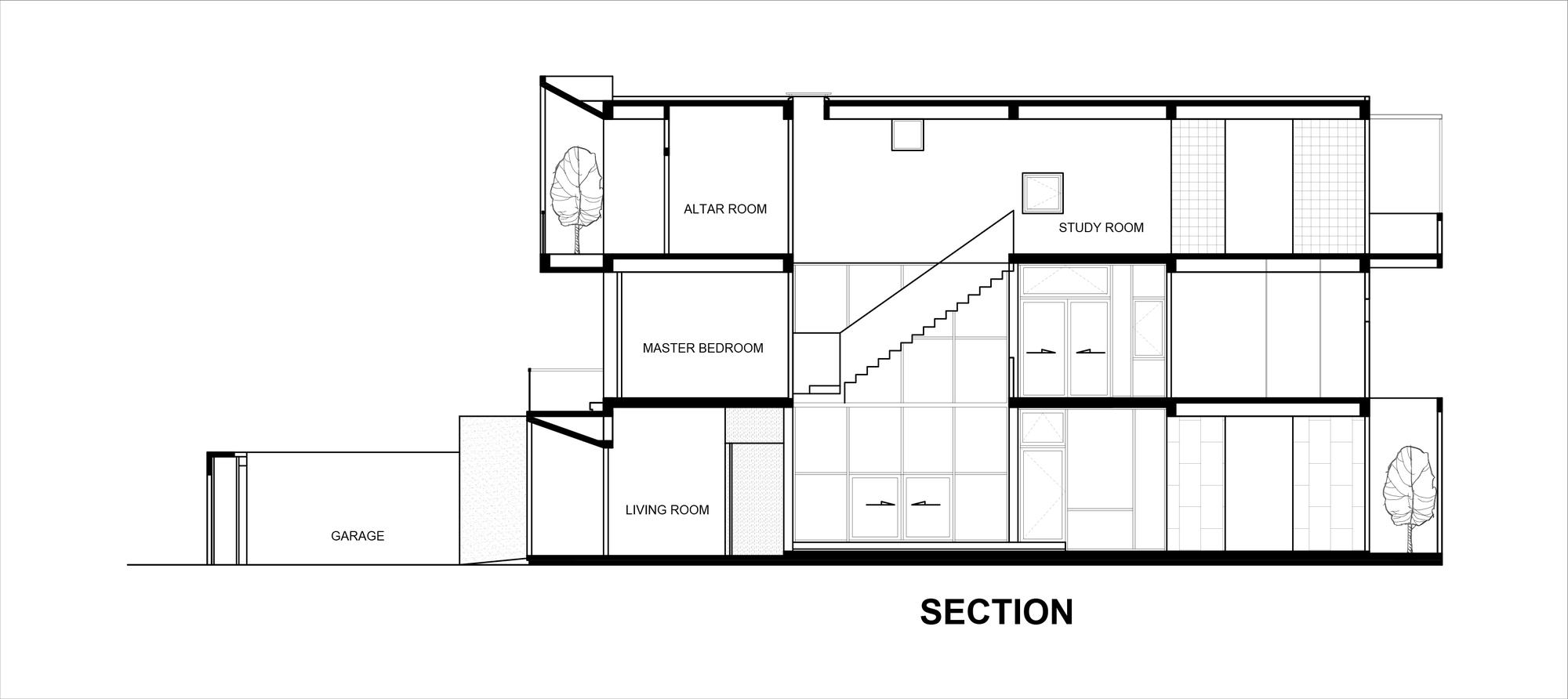
Sơ đồ tầng trệt

© Tô Nguyễn
Qua một hành lang hẹp đi vào trong nhà mở ra một không gian liên hoàn theo trục ngang và trục dọc của lõi công trình, xung quanh là các phòng ngủ riêng ngăn cách trong và ngoài nhà. Để tận dụng điều kiện tự nhiên, chuỗi không gian từ phòng khách đến phòng ăn và phòng bếp được kết nối với một khu vườn nhỏ xen kẽ mở rộng làm hành lang thông gió cung cấp không khí trong lành và ánh sáng mặt trời cho toàn bộ không gian. chỉ là một yếu tố tương đối. Đây là một điểm cần thiết trong bối cảnh các thành phố thuộc đới khí hậu nhiệt đới ẩm.

Không gian lõi trở thành khu vực năng động chứa cùng lúc nhiều hoạt động khác nhau của các thành viên trong gia đình. Họ có thể tự làm việc hoặc giao tiếp với nhau bất cứ khi nào họ muốn. Phòng ăn và phòng giải trí có đầy đủ chức năng để làm việc, vui chơi trong khi tận hưởng khoảng sân xanh mát. Bàn ăn được thiết kế thẳng để tăng tính tương tác giữa không gian chung và khu vườn bên trong gần đó. Nó làm cho mọi người cảm nhận được sự thay đổi của thời tiết thông qua ánh sáng tự nhiên, gió và cả những hạt mưa.

© Tô Nguyễn

Mặt dựng

© Tô Nguyễn
Thiết kế tập trung vào trải nghiệm “Du hành vào vũ trụ”. Do đó, khoảng cách giữa các phòng ngủ được mở rộng để người dùng có thể đi bộ khám phá. Dọc theo lối đi cầu thang và hành lang, có những giác quan khác nhau về kiến trúc và ánh sáng được mở ra. Cuối cùng, với dự án này, chúng tôi muốn thể hiện những ý tưởng mới về cấu hình không gian hài hòa với bối cảnh địa phương.

