Tổ ấm HL house
Project Info
Ngôi nhà P. Long Biên, Việt Nam
• • Diện tích: 350 m²
• • Năm: Năm 2020
• • Hình ảnh: Triệu Chiến
• • Nhà sản xuất: Daikin , Kohler , Osmo , Alis Lighting , Vietceramics
• • Kiến trúc sư chính: Kiên Nhâm Chi

Hình ảnh thuộc bảng quyền của chủ đầu tư, chỉ sử dụng cho mục đích nghiên cứu tham khảo, không sử dụng cho mục đích thương mại xây nhà tương tự. Cảm ơn.
Tổ ấm HL house

© Triều Chiến
Mô tả văn bản do các kiến trúc sư cung cấp. Các vấn đề đô thị. Nhà liền kề trong khu đô thị mới là loại hình nhà ở rất phổ biến ở Việt Nam. Mặc dù hạn chế về thiết kế không theo quy hoạch trong nhà ở chia lô nhưng các khu đô thị mới hiện nay đang trở nên vô hồn với lối kiến trúc cũ kỹ, nghèo nàn, lặp đi lặp lại với cách bố trí “cầu thang giữa chia đôi” đã lạc hậu. Việc xây dựng một ngôi nhà mới trong khu đô thị hiện tại. Bên cạnh đó, ngôi nhà sẽ đạt tiêu chuẩn hiện đại với sự đột phá về cấu trúc không gian, tạo nên một tổng thể kiến trúc hài hòa.

© Triều Chiến

Mặt tiền

© Triều Chiến
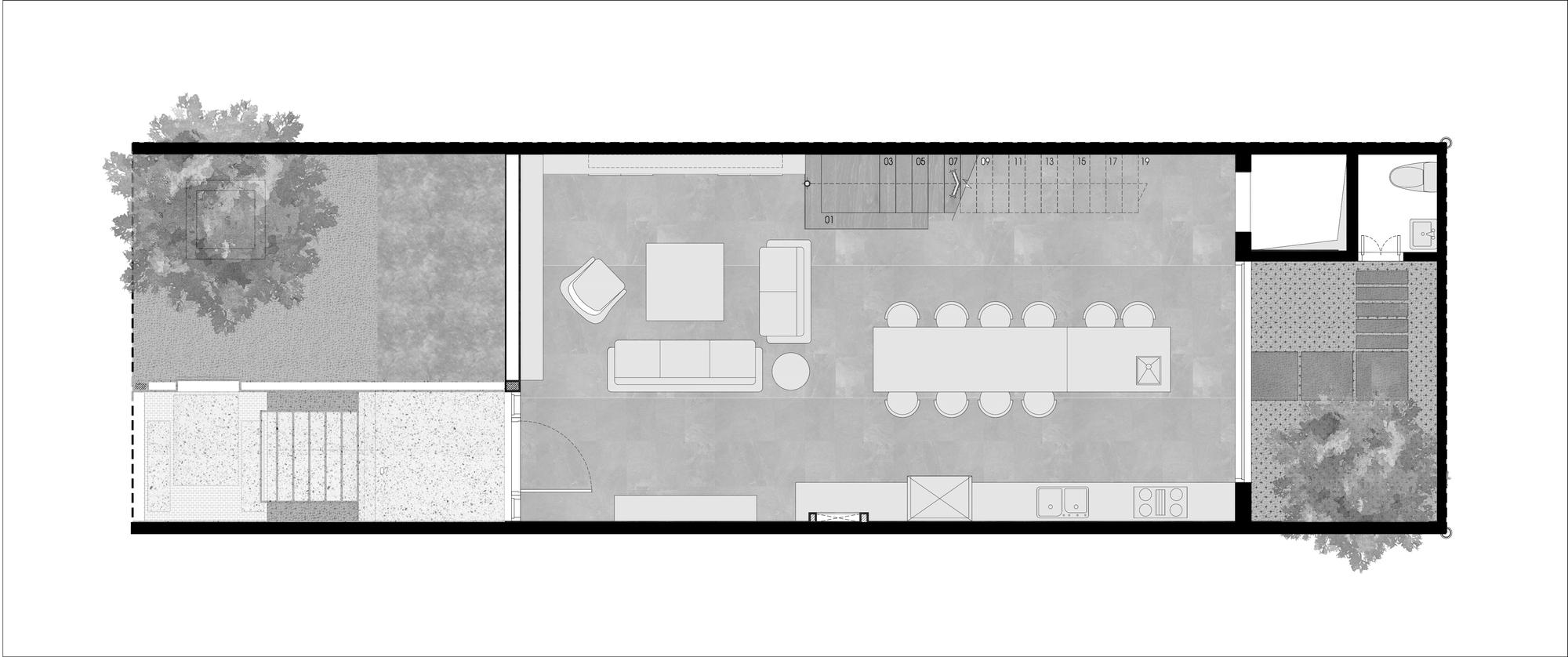
Vị trí Địa điểm Tình hình. Nhà nguyên căn là nhà liền kề, mặt tiền hướng Tây, 2 mặt thoáng đón ánh sáng và gió tự nhiên trước và sau nhà. Giải pháp cải tạo được đưa ra cho công trình là ưu tiên mở ra 2 mặt thoáng, đảm bảo ánh sáng và thông gió tối đa cho ngôi nhà. Các không gian mở đều hướng đến cây xanh. Mặt tiền hướng Tây giáp hệ lam gỗ ngoài tác dụng giảm bức xạ mặt trời còn có vai trò định hình cho công trình. Sân vườn phía trước được nâng lên tạo khoảng trống bên dưới làm gara cho gia đình, có vai trò giảm bức xạ, khói bụi và tiếng ồn đô thị.

© Triều Chiến
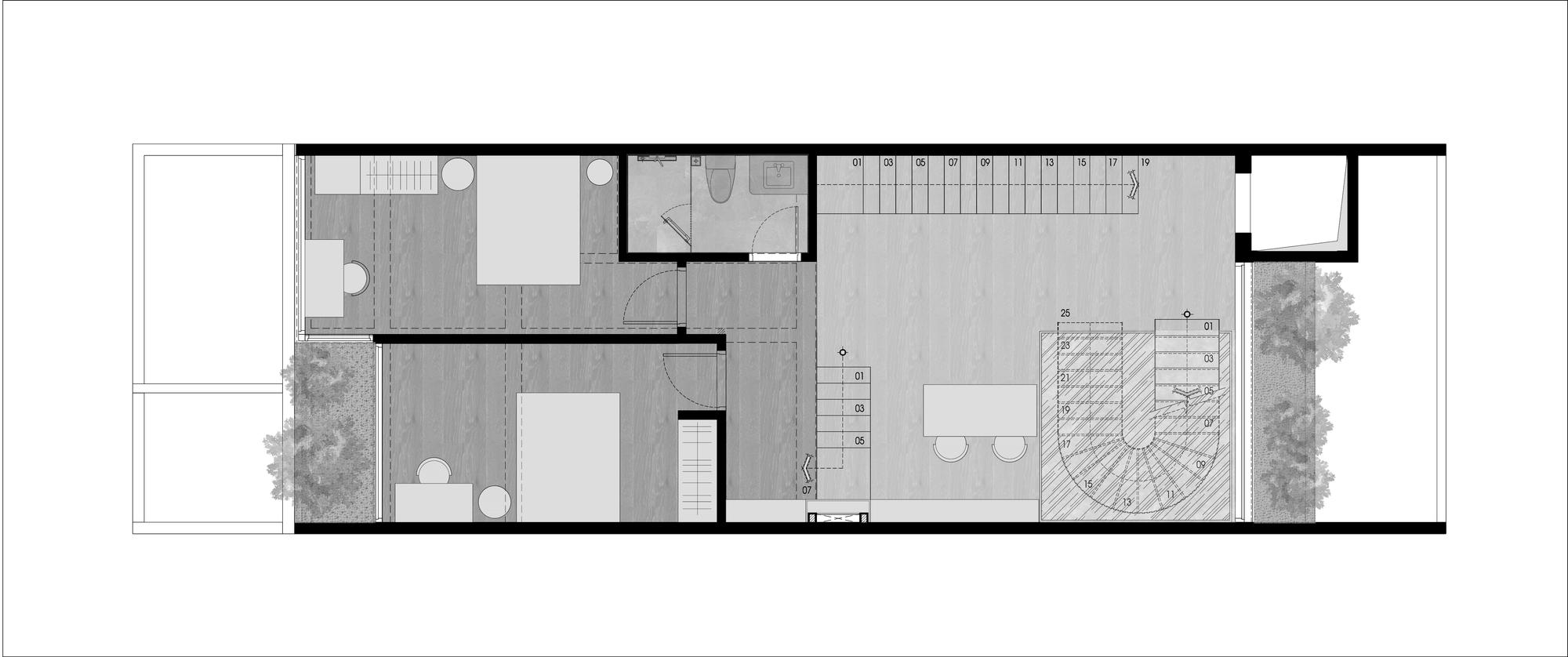
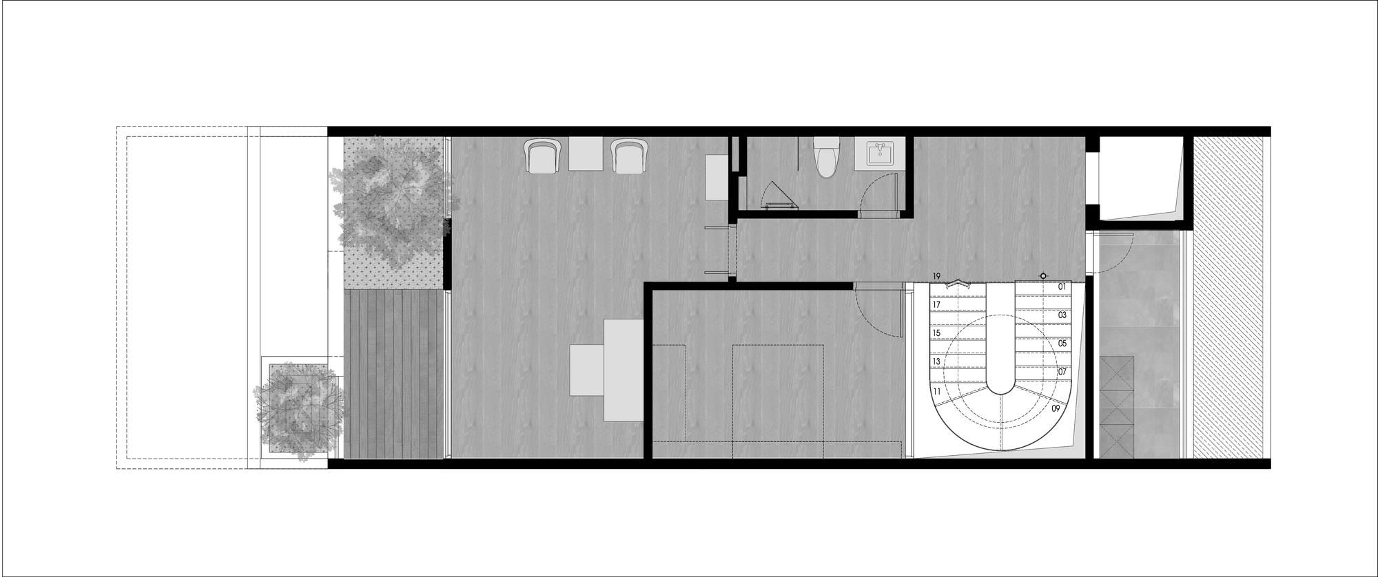
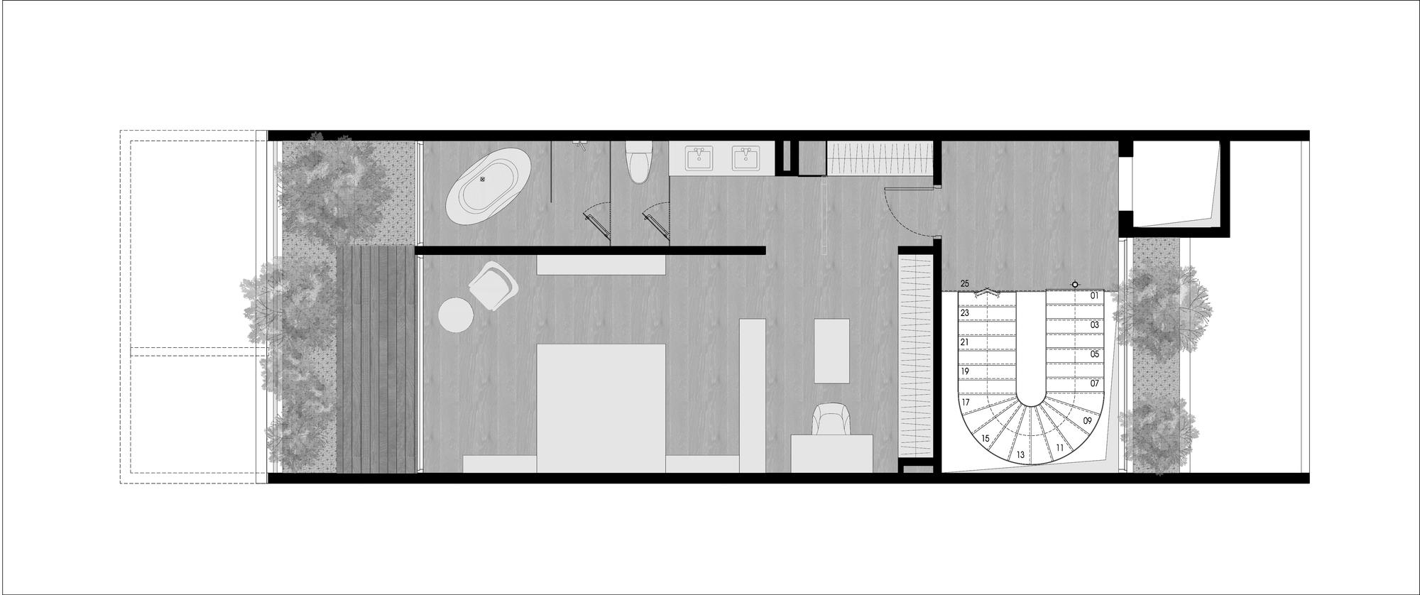
Mở rộng không gian. Cấu trúc không gian cơ bản của nhà ống thông thường thường có dạng: cầu thang đóng vai trò là trục giao thông chính và phần không gian hữu ích còn lại sẽ được phân bổ đều cho phía trước và phía sau nhà. Cấu trúc này tuy đơn giản, dễ trùng lặp nhưng khi đặt vào những tình huống và yêu cầu cụ thể của chủ nhà sẽ không phù hợp do sự nhàm chán của nó. Do cấu trúc nhà ống thường hẹp về chiều ngang nên việc mở rộng hay thu hẹp không gian theo chiều cao sẽ diễn ra để tăng thêm phần thú vị cho ngôi nhà.

© Triều Chiến
