Ngôi nhà thư giãn D9 HOUSE
Project Info
Những ngôi nhà Thành phố Hồ Chí Minh, Việt Nam
• Kiến trúc sư: Nhóm kiến trúc sư
• • Năm: 2017
• • Hình ảnh: Hiroyuki Oki
• • Nhà sản xuất: Acor
Kiến trúc sư trưởng: Lê Thanh Phong

Hình ảnh thuộc bảng quyền của chủ đầu tư, chỉ sử dụng cho mục đích nghiên cứu tham khảo, không sử dụng cho mục đích thương mại xây nhà tương tự. Cảm ơn.
Ngôi nhà thư giãn D9 HOUSE

© Hiroyuki Oki
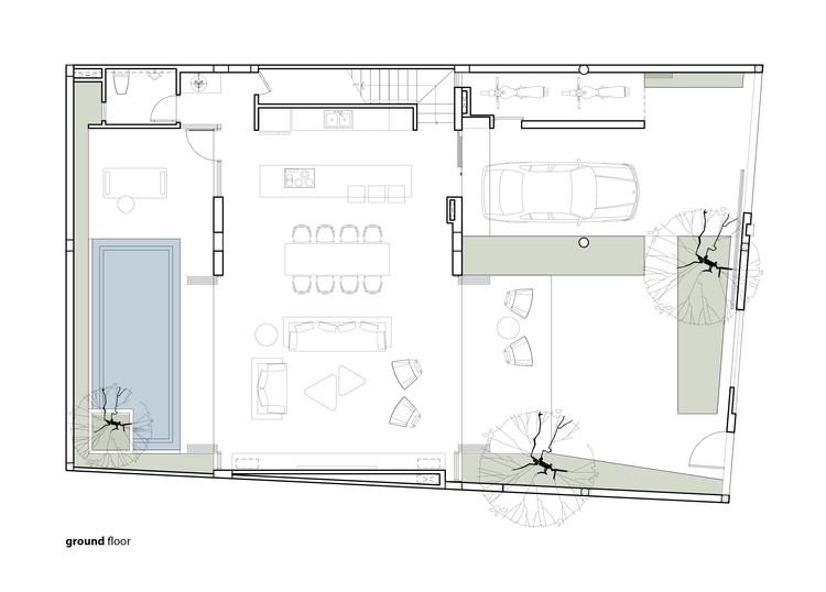
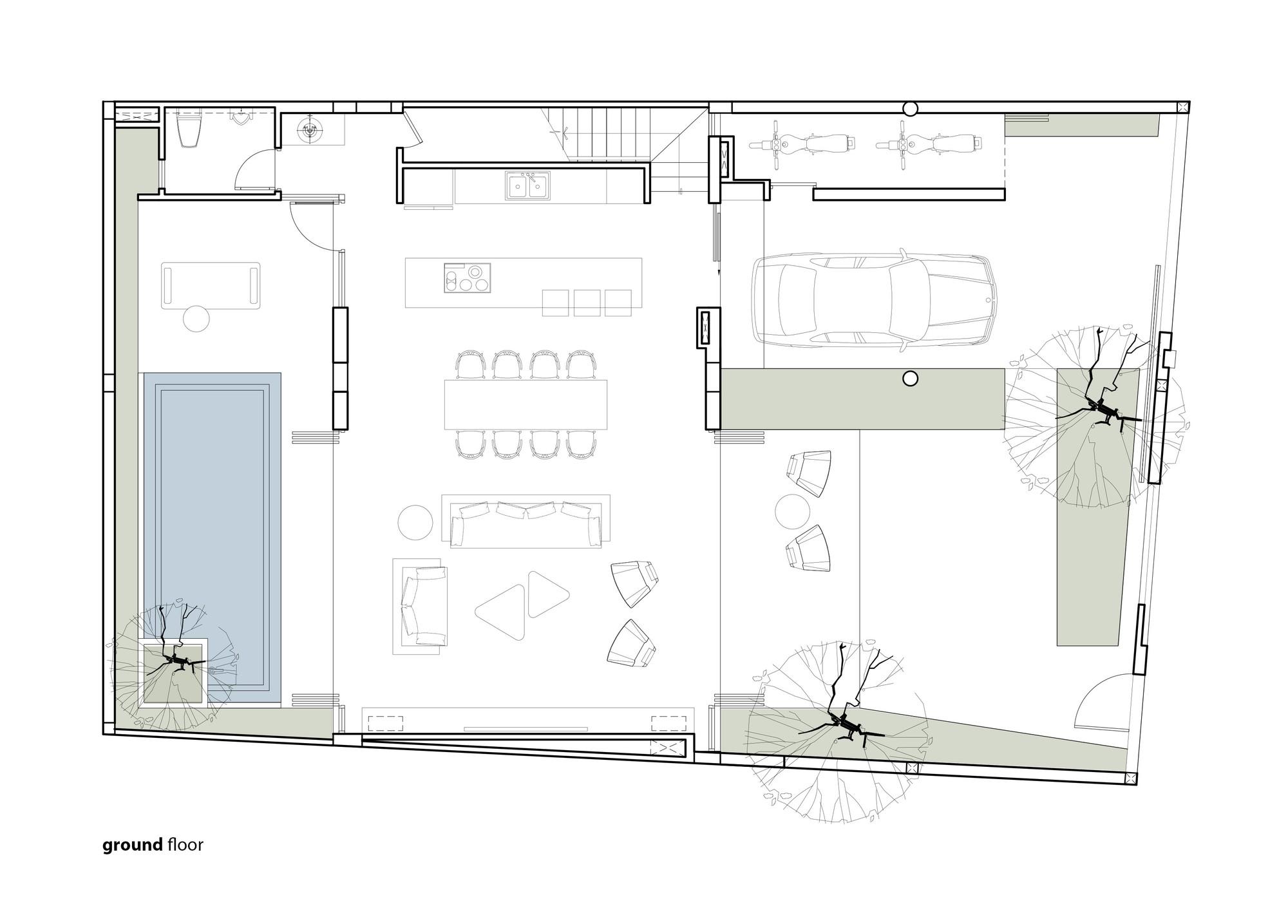
Mô tả văn bản do các kiến trúc sư cung cấp. Ngôi nhà được xây dựng trên diện tích 207m2 gồm 3 tầng, 4 phòng ngủ và các phòng chức năng khác như gara, phòng khách, phòng ăn, bếp ... trên tổng diện tích sàn là 560m2. Khi làm việc với nhà thiết kế, chủ đầu tư chỉ nói về nhu cầu chứ không nói về phong cách kiến trúc - nội thất để kiến trúc sư quyết định. Toàn bộ tầng trệt là không gian sinh hoạt chung của gia đình với công năng phòng khách, bếp, bàn ăn, đây cũng là nơi được khai thác linh hoạt, thường xuyên tổ chức tiệc tùng, tụ tập bạn bè.

© Hiroyuki Oki
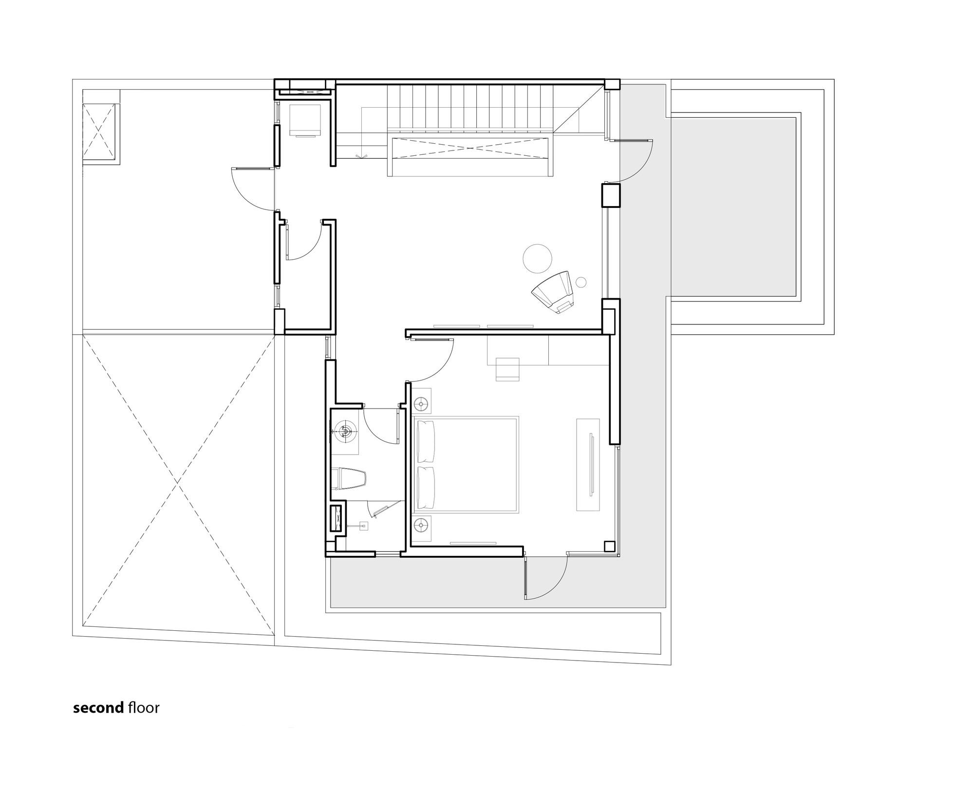
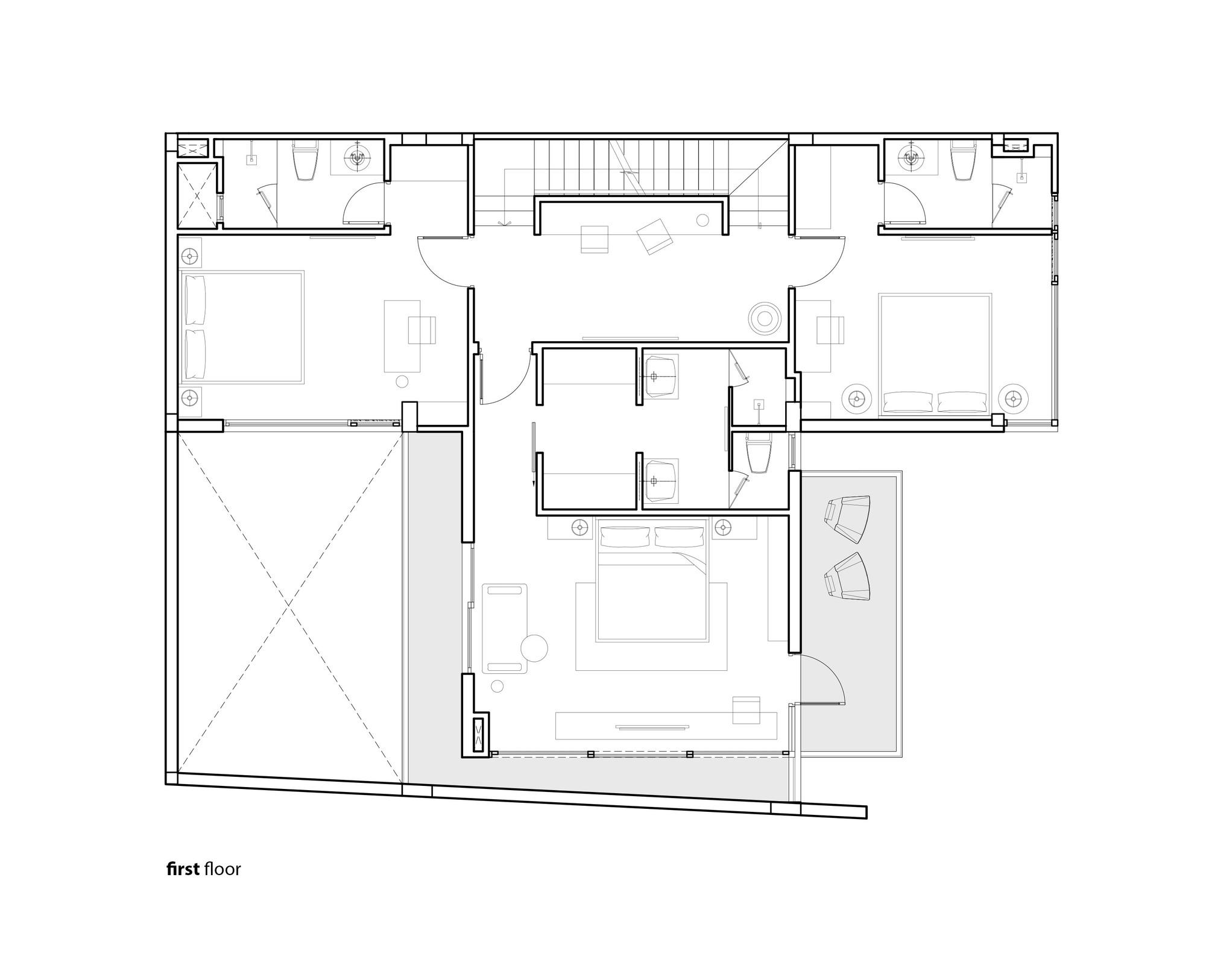
Ngay cả khi cần để xe, nó có thể được kết hợp với các khu vực khác bên trong để trở thành một không gian sống lớn hơn. Tầng hai có ba phòng ngủ, tất cả đều có góc tiếp xúc với thiên nhiên, tùy theo vị trí của từng phòng. Khu vực đệm ngay cầu thang trở thành góc sinh hoạt chung trên lầu. Phòng ngủ được để trên tầng 3, diện tích vừa đủ. Thiết kế trong các phòng ngủ cũng theo tinh thần tối giản như tầng trệt, màu sắc vật liệu cũng rất hoàn hảo.

Nếu như bức tường chính của đầu giường làm bằng chất liệu đá tự nhiên tạo cảm giác hơi lạnh thì ánh sáng là yếu tố cân bằng và mang lại cảm giác ấm áp cần thiết cho không gian ngủ nghỉ. Kiến trúc sư tạo cho ngôi nhà những mảng xanh của cây cối, cùng với hồ nước ngọt là nơi nghỉ ngơi, thư giãn cho gia chủ. Các bức tường được thay bằng cửa kính đẩy giúp ngôi nhà luôn thông thoáng, không khí trong lành và ánh sáng tự nhiên có thể len lỏi vào các phòng chức năng.

© Hiroyuki Oki

Sơ đồ tầng trệt

© Hiroyuki Oki
Khu vườn sau nhà với dây leo trên tường không chỉ mang đến cảm giác gần gũi với thiên nhiên cho không gian sinh hoạt chung ở tầng trệt mà còn tạo tầm nhìn xanh mát cho các phòng ngủ ở tầng trên. Nhà D9 được xây dựng và thiết kế theo tinh thần tối giản với nội thất vừa phải, đường nét thẳng hàng rõ ràng, ít chi tiết.

© Hiroyuki Oki
Nếu toàn bộ tầng trệt dành cho sinh hoạt chung và tiếp khách thì các tầng còn lại là không gian riêng của các thành viên trong gia đình. Không gian “xanh” mát mẻ vừa là điểm nhấn tôn lên vẻ đẹp của ngôi nhà vừa là nơi để gia chủ thư giãn, tận hưởng cuộc sống.

