Ngôi nhà Kiến trúc nhà Anne
Thông tin dự án
• Những ngôi nhà Hòa Quý, Việt Nam
• Kiến trúc sư: Kiến trúc Econs
• • Diện tích: 300 m²
• • Năm: 2019
• • Hình ảnh: Nguyễn Cường
• • Nhà sản xuất: AutoDesk , Hafele , Jotun , Adobe , Caesar , Janmi , MPE , Trimble Navigation

Ngôi nhà Kiến trúc nhà Anne

© Nguyễn Cường
Mô tả văn bản do các kiến trúc sư cung cấp. ANNE House là một ngôi nhà phố 5x20m phổ biến ở Việt Nam. Ngôi nhà có mặt tiền hướng Tây Bắc, đón nắng gắt và nhiệt độ cao vào buổi trưa. Một thách thức đặt ra cho các kiến trúc sư là giải quyết các vấn đề liên quan đến giải pháp chống nắng và giảm nhiệt độ nóng, tất cả đều ảnh hưởng đến không gian sống.

© Nguyễn Cường

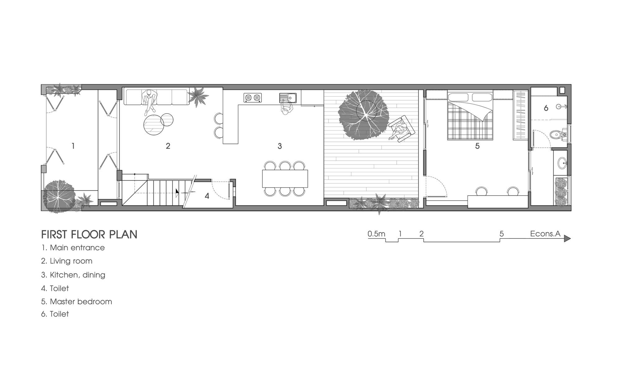
Sơ đồ tầng một

© Nguyễn Cường
Chủ nhân của ngôi nhà là một cặp vợ chồng giáo viên trẻ sống cùng cô con gái nhỏ. Vì vậy, họ mong muốn tạo ra một không gian sống hài hòa giữa sinh hoạt và dạy học. Tất cả các không gian đều phải tận dụng được các yếu tố như thông gió và ánh sáng tự nhiên. Tuy nhiên, sự liên kết giữa các không gian cần được đảm bảo.

© Nguyễn Cường
Về cơ bản, kiến trúc không thể tách rời với khí hậu địa phương. Do đó, các kiến trúc sư đã lựa chọn giải pháp tạo vùng đệm không gian liên hoàn: Vùng đệm giữa trong và ngoài nhà kết hợp với cây xanh giúp giải quyết vấn đề giảm nhiệt từ bên ngoài cũng như vùng đệm giữa các kiến trúc. các không gian trong nhà thông qua các khoảng thông tầng. Điều này giúp tạo lối đi thông thoáng, nhằm truyền ánh sáng, gió tự nhiên và điều hòa nhiệt độ môi trường trong nhà. Do đó, nguồn khí trong nhà luôn được lưu thông như lá phổi.

© Nguyễn Cường

Tiết diện

© Nguyễn Cường
Ngôi nhà được thiết kế theo phong cách tối giản theo những công năng cần thiết nhất của chủ nhà. Bạn sẽ luôn cảm thấy thoải mái khi ở trong ngôi nhà này bởi nguồn năng lượng tự nhiên sẵn có kết hợp với các vật liệu thô mộc thân thiện sẵn có tại địa phương tạo nên nhiệt độ lý tưởng và màu sắc trung bình. Nhờ đó, ánh nắng trực tiếp từ bên ngoài chiếu vào sẽ bị tán xạ thành ánh sáng gián tiếp và tỏa đều vào các không gian mà không tạo cảm giác nóng bức trong những giờ nắng nóng

Độ cao mặt tiền
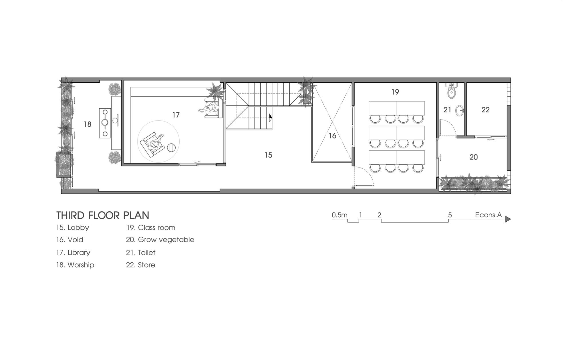
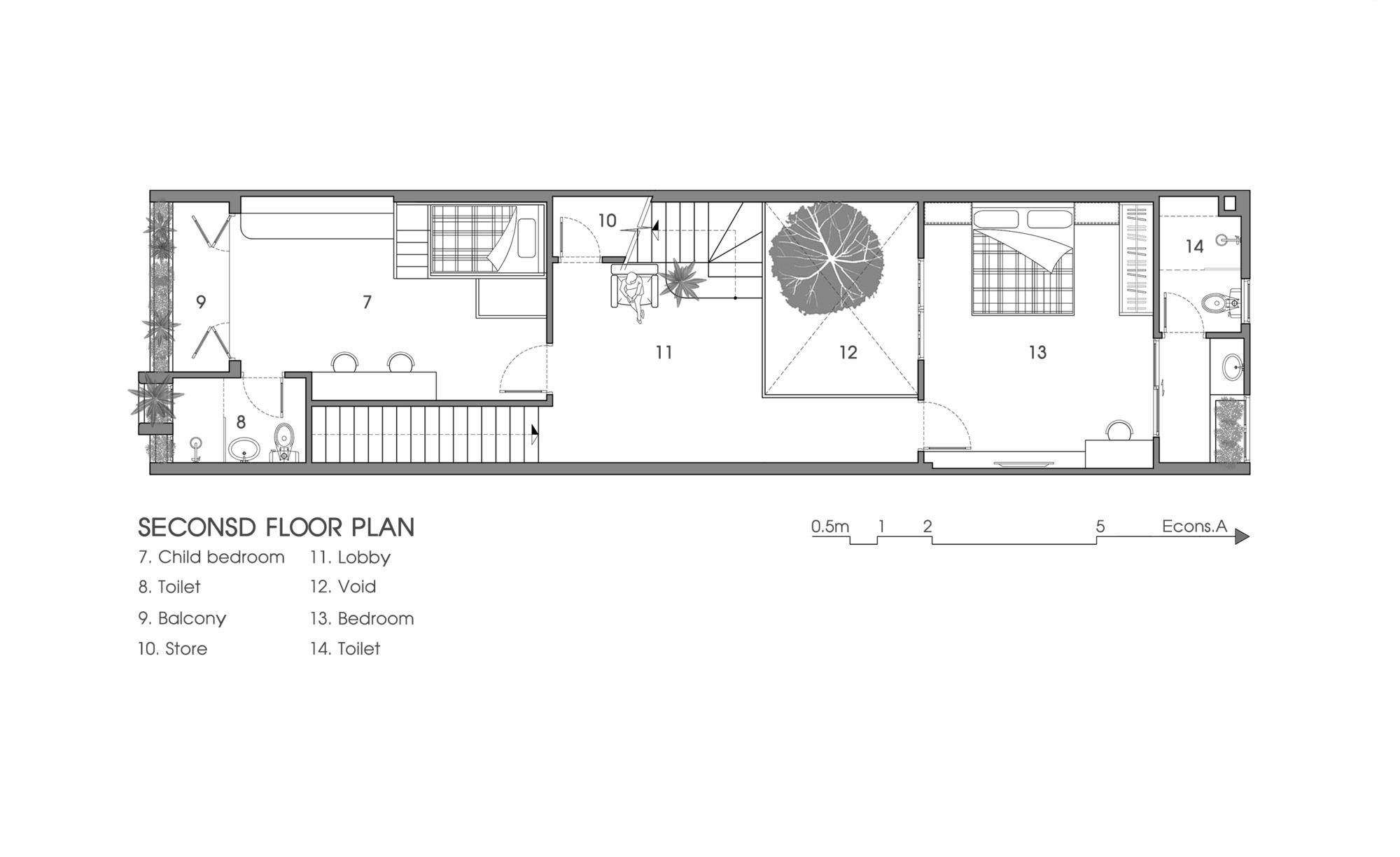
Cây xanh đóng một phần quan trọng trong ngôi nhà. Là điểm nhấn cho công trình mang lại cảm giác thư thái, thông thoáng cho ngôi nhà có diện tích nhỏ. Nói một cách dễ hiểu, cây xanh trong nhà được coi là sợi dây liên kết giữa các tầng và thông qua sự liên kết, các thành viên trong gia đình có thể nhìn thấy nhau và trò chuyện trong một không gian kín và thoáng.

© Nguyễn Cường
