Ngôi nhà HC House
Project Info
Ngôi nhà Hà tĩnh, việt nam
• Kiến trúc sư: Architect Studio
• • Diện tích: 142 m²
• • Năm: 2019
• • Hình ảnh: Hoàng Lê
Nhà sản xuất: AutoDesk , Electrolux , Jotun , Panasonic , Toto , Acor , Samsung , Xingfa Aluminium

Hình ảnh thuộc bảng quyền của chủ đầu tư, chỉ sử dụng cho mục đích nghiên cứu tham khảo, không sử dụng cho mục đích thương mại xây nhà tương tự. Cảm ơn.
Ngôi nhà HC House

© Hoàng Lê
Mô tả văn bản do các kiến trúc sư cung cấp. HC House là một dự án dân cư của một gia đình nhỏ ở khu vực đô thị ở Hà Tĩnh thành phố, Hà Tĩnh tỉnh. Chúng tôi phát triển dự án này bằng cách kết nối các thói quen của gia đình, sở thích, đặc điểm nghề nghiệp và một số kỷ niệm về ngôi nhà cũ, nơi họ đã sống trong nhiều năm trước. Đây là nhà liên kế thuộc loại hình dự án nhà ở tiêu biểu tại Việt Nam. Kích thước của nó là 7,5x19m, mặt tiền là khu vực thông thoáng duy nhất. Bối cảnh độc đáo và hạn chế về mặt bằng tạo ra thách thức cho nhà thiết kế để tạo ra một không gian khiêm tốn và thông gió tự nhiên nhất.

© Hoàng Lê
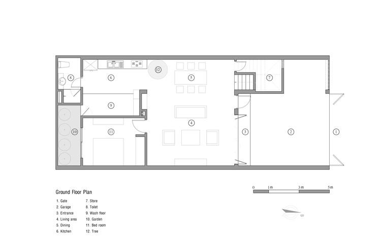
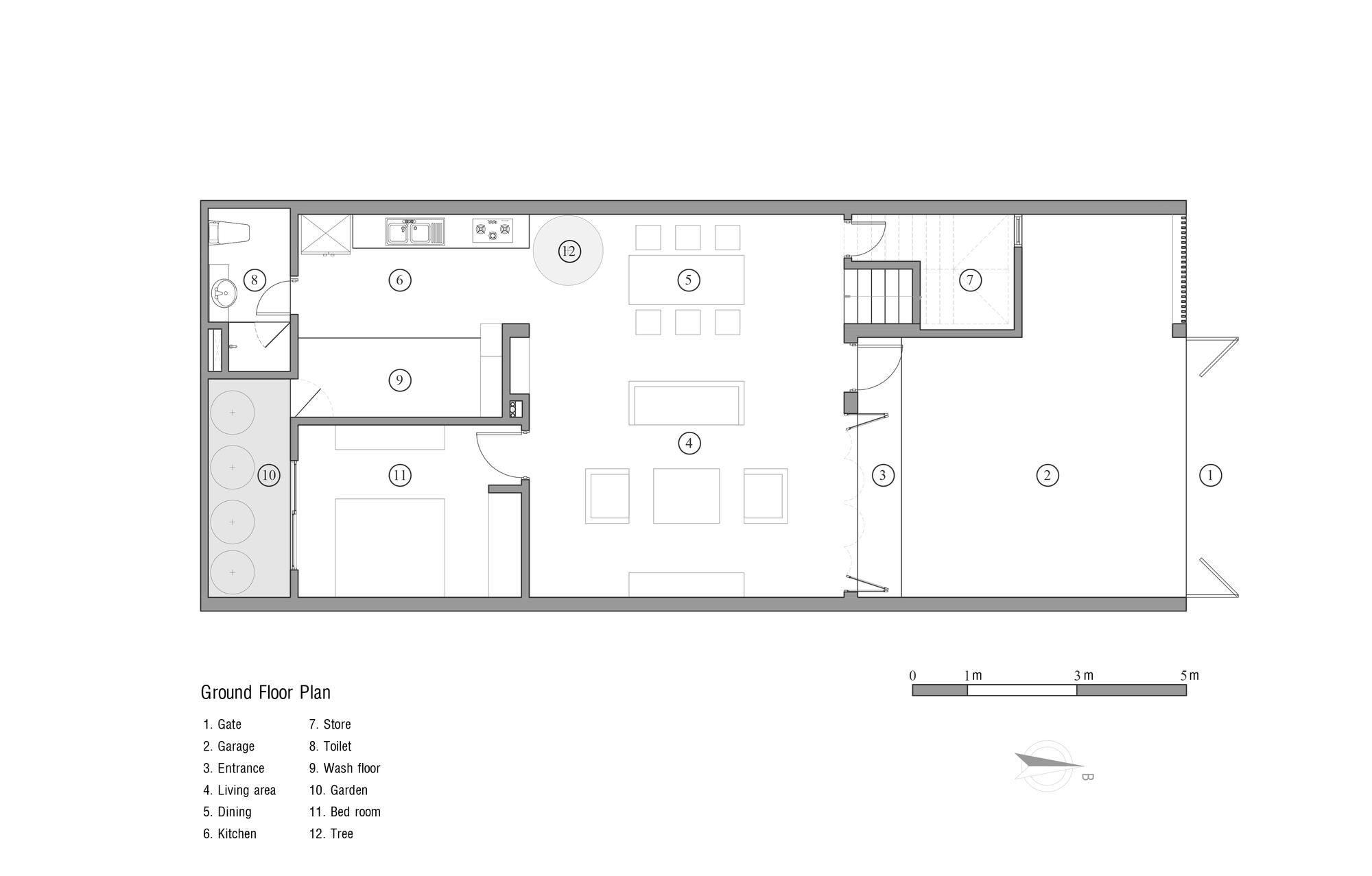
Sơ đồ tầng trệt
Mục 01

© Hoàng Lê
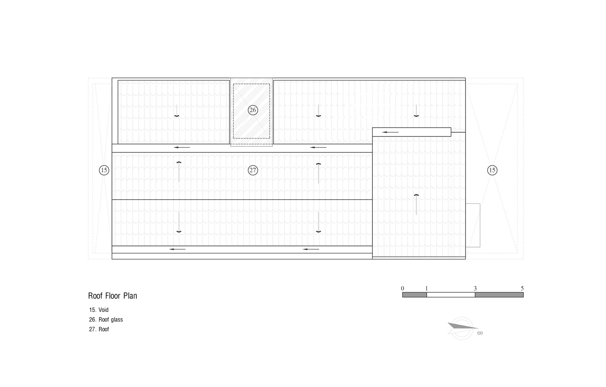
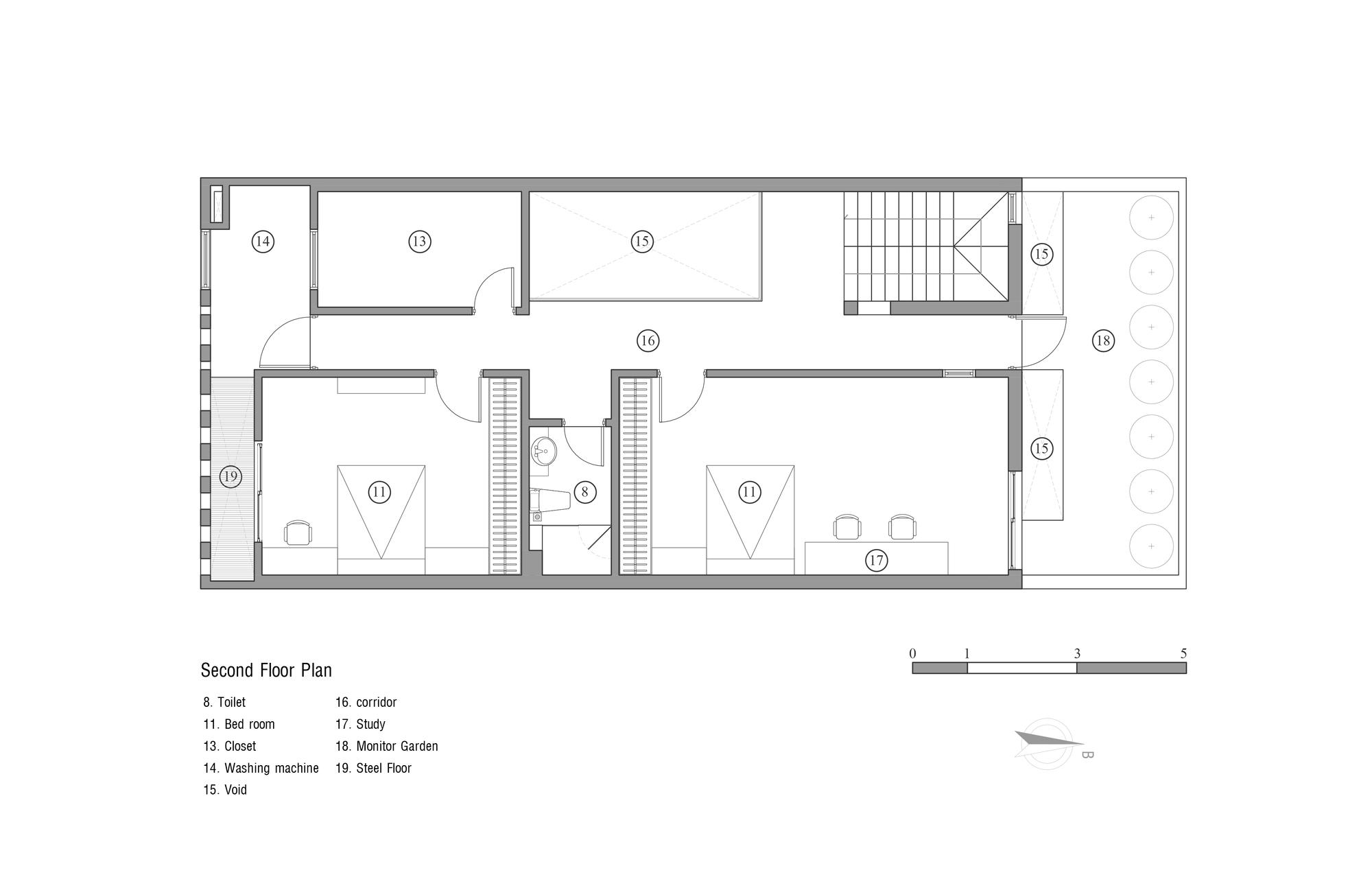
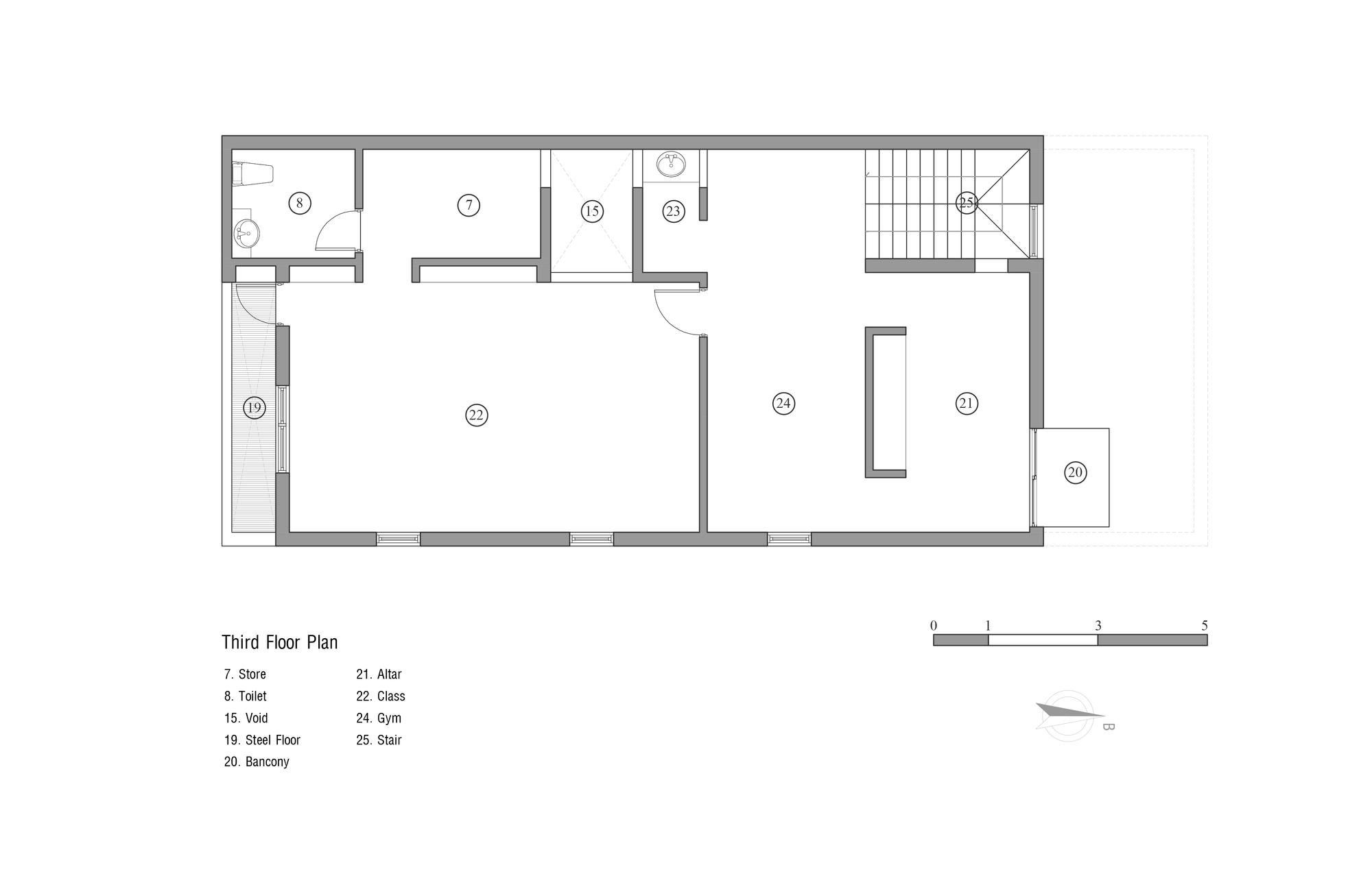
Chúng tôi đưa ánh sáng vào nhà bằng cách tạo ra một trục trung tâm với khoảng trống xuyên qua các tầng, giải pháp này kết nối không gian bên trong và bên ngoài. Ánh sáng được phân bổ đồng đều giữa khu vực công cộng và khu vực riêng tư. Có thể nhìn thấy bầu trời trong trẻo qua giếng trời trên tầng thượng, điều này mang lại cảm giác nhẹ nhõm cho người sử dụng. Chủ nhân là một giáo viên. người cung cấp các lớp học tại nhà. Chúng tôi đã tạo một cầu thang ở phía trước để tạo lối đi dễ dàng và riêng biệt cho học sinh ra vào.

© Hoàng Lê
Bởi vì Khách hàng yêu cầu tiếp tục sử dụng toàn bộ nội thất cơ bản của ngôi nhà hiện tại sau khi cải tạo, điều quan trọng là phải tìm vật liệu hoàn thiện phù hợp có thể phù hợp với đồ nội thất cũ với phong cách hiện đại mở và đơn giản như “vật liệu kết nối”. Vật liệu chủ đạo là sàn đá mài có thể kết nối các yếu tố cũ và mới với nhau. Khách hàng muốn mang cây trong vườn hiện tại sang nhà mới nên cần thiết kế vị trí cho chúng. Chúng ta có thể tạo ra một không gian xanh và ghi lại khu vườn cũ quen thuộc. Cây khế đặt gần bàn ăn.

© Hoàng Lê
HC house là kết quả của sự kết hợp giữa cấu trúc không gian đơn giản, vật liệu xây dựng thân thiện hiện đại, phương pháp xây dựng tinh tế nhưng chú trọng giải quyết các vấn đề về thông gió như chiếu sáng, thông gió tự nhiên cũng như sự thuận tiện trong việc sử dụng các không gian chức năng cả bên trong và bên ngoài, nhưng thiết kế vẫn tạo ra sự riêng tư và bảo mật cần thiết. Theo chúng tôi, ngôi nhà là một điển hình cho không gian sống cởi mở, tự chủ của các gia đình trẻ Việt Nam.

© Hoàng Lê
