Ngôi nhà gió biển hạ long
Project Info
Những ngôi nhà Việt Nam
• Kiến trúc sư: TOOB STUDIO
• • Diện tích: 300 m²
• • Năm: 2019
• • Hình ảnh: Triệu Chiến
Ánh sáng: Alis Lighting

Hình ảnh thuộc bảng quyền của chủ đầu tư, chỉ sử dụng cho mục đích nghiên cứu tham khảo, không sử dụng cho mục đích thương mại xây nhà tương tự. Cảm ơn.
Ngôi nhà gió biển hạ long

© Triệu Chiến
Mô tả văn bản do các kiến trúc sư cung cấp. Hạ Long, một thành phố có địa hình đa dạng bao gồm núi đồi, thung lũng và bờ biển. Vì thế, vừa có lợi thế về du lịch, kinh tế lại vừa có tốc độ đô thị hóa mạnh mẽ.


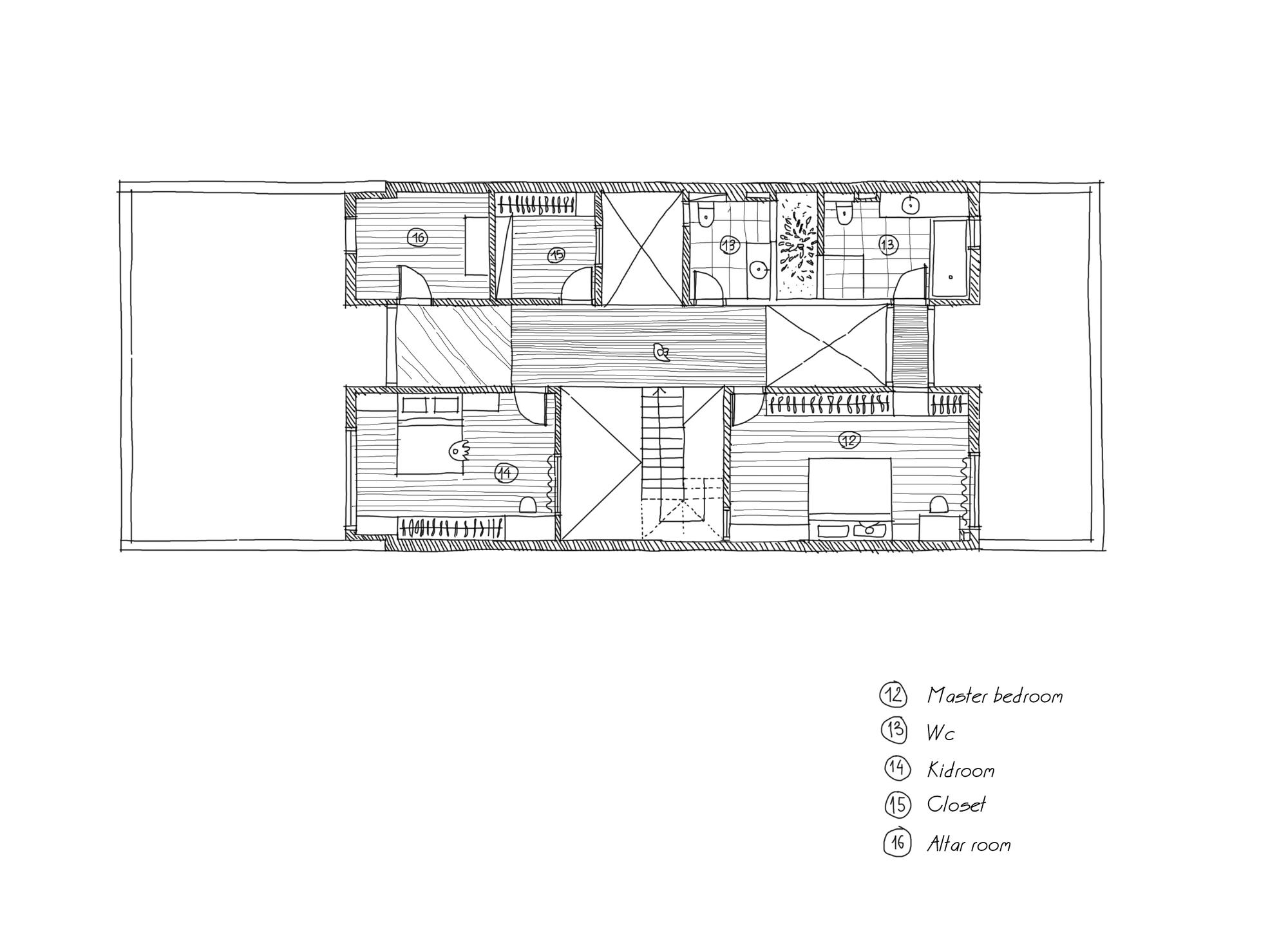
Sơ đồ tầng ba

© Triệu Chiến
Tuy nhiên, chúng tôi nhận thấy Hạ Long đang tập trung quá nhiều vào phát triển xây dựng mới, đó là nguyên nhân chính khiến mật độ xây dựng tăng nhanh và thu hẹp môi trường sống của người dân. Trong bối cảnh đó, giải pháp cho dự án này là tạo ra những không gian thông thoáng đối lập với sự phát triển dày đặc của thành phố, đồng thời giữ cho các thành viên trong gia đình được kết nối với nhau. Mà cần được chú ý trong thời buổi kinh tế phát triển nhanh chóng như hiện nay.
© Triệu Chiến
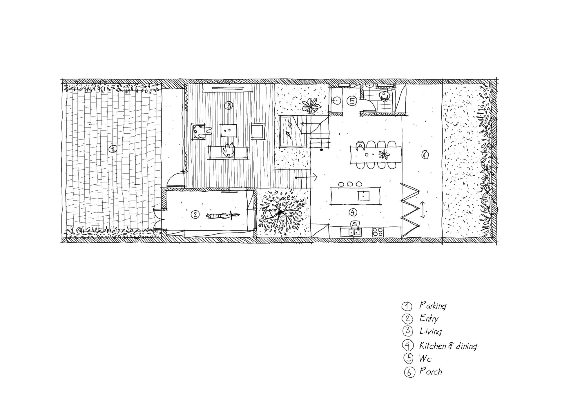
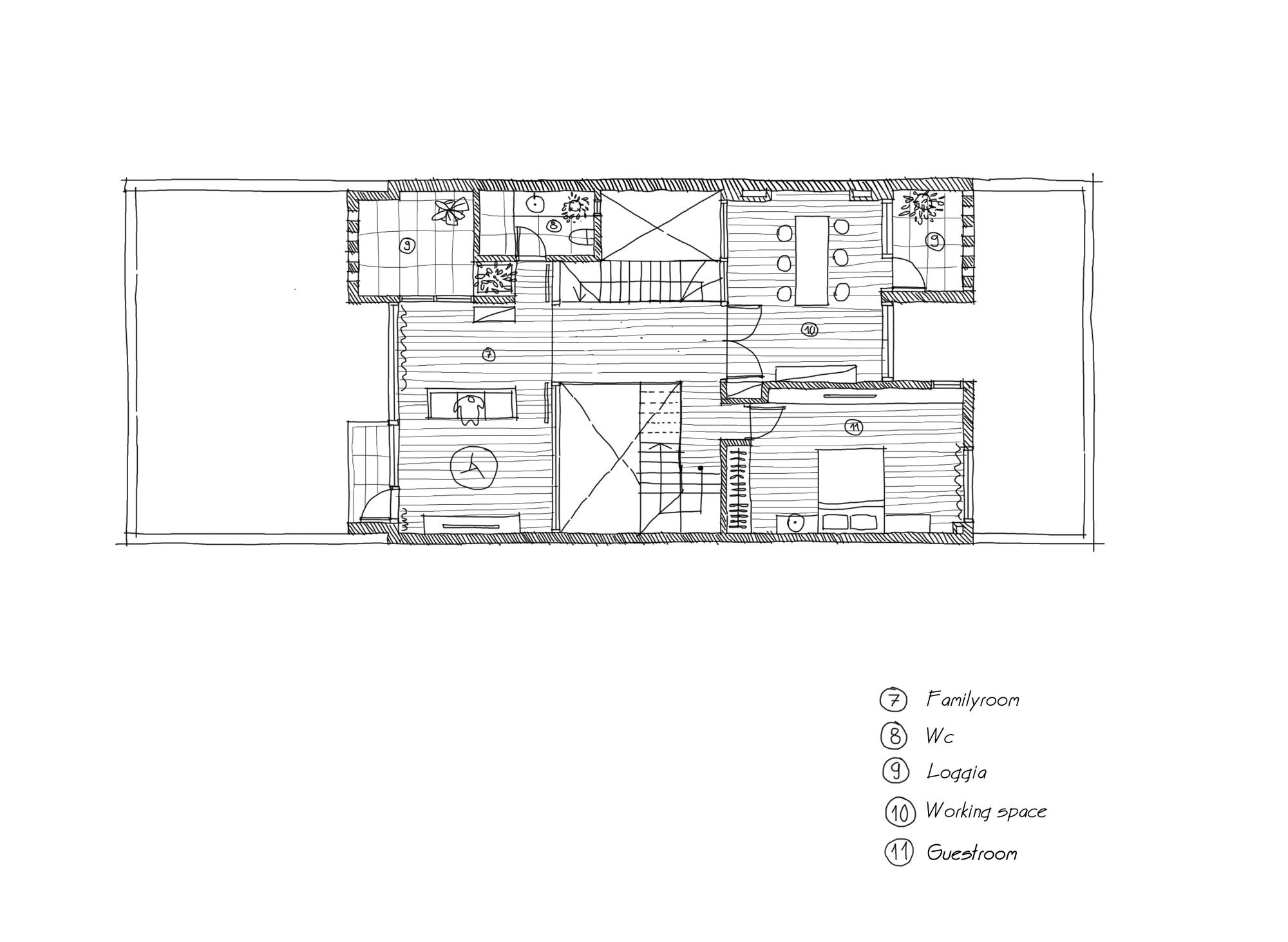
Căn nhà nằm cách bờ biển khoảng 1km, được thiết kế với không gian mở để đón trọn vẹn không khí trong lành từ biển. Ngoại trừ không gian riêng tư, mọi thứ trong nhà đều được kết nối hoàn hảo. Hãy tưởng tượng rằng người vợ đang dọn dẹp ở sân trước có thể dễ dàng trò chuyện với người chồng đang làm vườn ở sân sau. Trẻ em chơi trên lầu có thể nhìn thấy cha mẹ của chúng bất cứ lúc nào chúng muốn.
© Triệu Chiến
Ngôi nhà thực sự dành cho lối sống tự do và hào phóng, giống hệt như tính cách của người dân địa phương.
© Triệu Chiến
