Ngôi nhà Gia Bình
Thông tin dự án
• Cho thuê Tân Thới Nhất, Việt Nam
• Hạng mục Nội thất Nhà ở
• Kiến trúc sư trưởng Nguyễn Nho
• Đội Nguyễn Nho, Nguyễn Tấn Nghĩa, Trần Long Sự
• Diện tích 53,0 m2
• Năm dự án 2018
• Ảnh Quang Trần
• Nhà sản xuất LafargeHolcim, Toto, Tuynel, Vietceramics, Singfa

Hình ảnh thuộc bảng quyền của chủ đầu tư, chỉ sử dụng cho mục đích nghiên cứu tham khảo, không sử dụng cho mục đích thương mại xây nhà tương tự. Cảm ơn.
Ngôi nhà Gia Bình
Giabinh.house là một ngôi nhà có diện tích khá nhỏ, nằm khá xa trung tâm thành phố. Ngôi nhà nằm sâu trong một con hẻm nhỏ chật cứng người, một nét rất đặc trưng của Sài Gòn hiện đại. Đó là không gian sống của 4 người, một cặp vợ chồng và 2 đứa con của họ, tất cả đều ở tuổi trưởng thành.

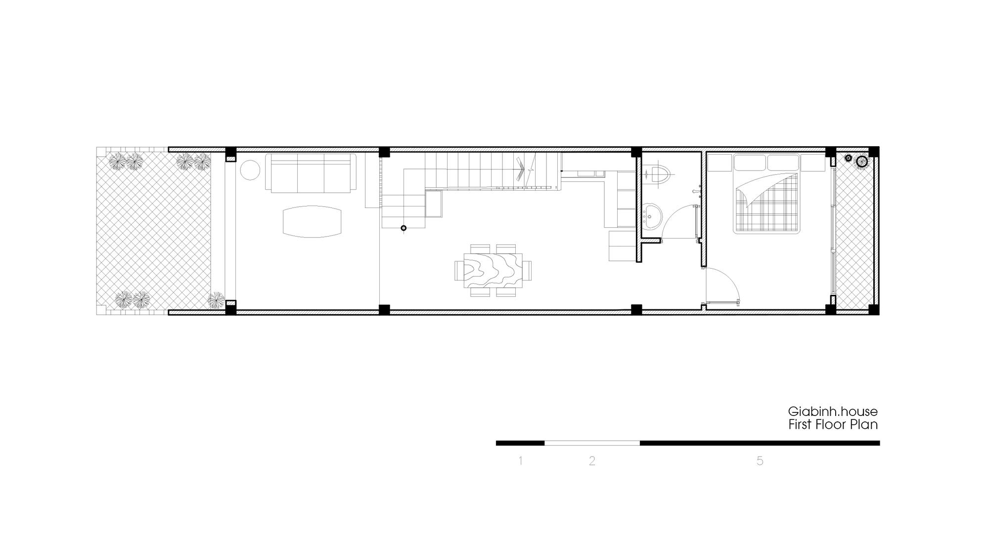
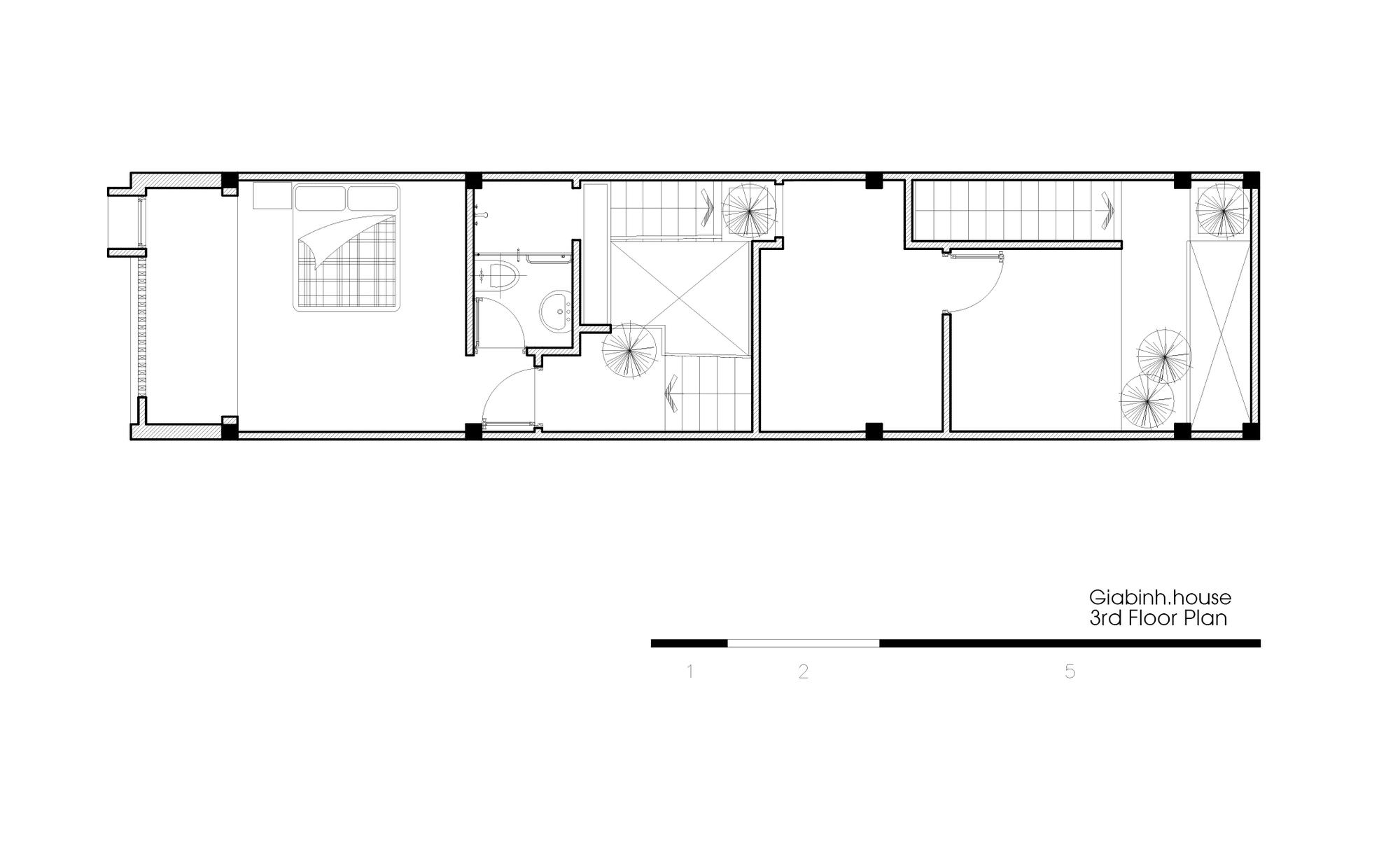
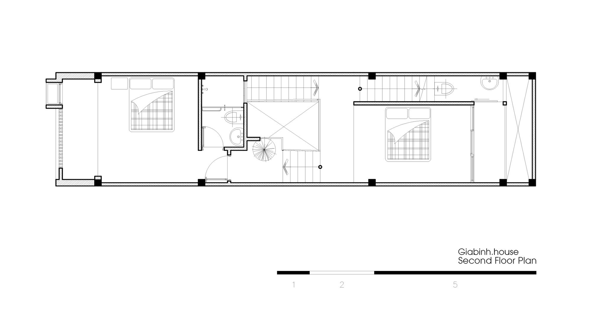
Họ sống trong ngôi nhà cũ của họ trong hơn 30 năm. Những gì chúng tôi muốn đạt được là cung cấp cho mỗi thành viên trong gia đình không gian cá nhân của họ, đồng thời kết nối các hoạt động hàng ngày của họ thông qua nhà bếp, phòng khách và hội nghị. Họ có thể nói chuyện, thảo luận và gặp nhau để duy trì bầu không khí gia đình. Chúng tôi đã thiết kế một phòng ngủ ở tầng trệt kể từ khi cha mẹ, chủ sở hữu của tòa nhà, và chúng tôi muốn giảm thiểu nhu cầu của họ để di chuyển bằng cách sử dụng cầu thang. Ngân sách cho dự án này rất hạn chế, vì vậy chúng tôi đã rất chú ý đến việc tối đa hóa việc sử dụng nội thất từ ngôi nhà cũ của họ.

Chiều rộng của ngôi nhà khá hạn chế, và vì vậy chúng tôi đã thiết kế bếp dưới cầu thang, với bàn ăn được đặt thẳng dưới giếng trời để tối đa hóa ánh sáng và gió lưu thông qua bên trong. Cầu thang là điểm kết nối của các không gian khác nhau. Chúng tôi luôn cố gắng cho một thiết kế tối giản, trong khi tìm nơi để ánh sáng và không gian xanh, để tạo ra một bầu không khí thoải mái cho các hoạt động gia đình.

Chúng tôi muốn ngôi nhà này mang lại cho các thành viên gia đình cảm giác cân bằng bên ngoài cuộc sống xã hội của họ. Toàn bộ tòa nhà được sơn màu trắng để tạo cảm giác thoáng đãng. Chúng tôi đã chọn loại gạch thô, truyền thống để tạo điểm nhấn, và để mang lại sự tương phản và ấm áp cho các không gian mở.

Thông điệp quan trọng nhất mà chúng tôi muốn truyền tải qua Giabinh.house là sự hài hòa giữa con người và thiên nhiên và hạnh phúc hàng ngày của cuộc sống của mỗi thành viên trong gia đình.
