Ngôi nhà cúc họa mi
Thông tin dự án
Những ngôi nhà Việt Nam
• • Diện tích: 60 m²
• • Năm: 2019
• • Hình ảnh: NguyenCuong
Nhà sản xuất: Hafele , Jotun , Caesar , Janmi , MPE

Hình ảnh thuộc bảng quyền của chủ đầu tư, chỉ sử dụng cho mục đích nghiên cứu tham khảo, không sử dụng cho mục đích thương mại xây nhà tương tự. Cảm ơn.
Ngôi nhà cúc họa mi

© NguyenCuong
Mô tả văn bản do các kiến trúc sư cung cấp. Lấy cảm hứng từ sở thích của chủ nhân ngôi nhà - một người phụ nữ yêu cúc và muốn ngắm nhìn nó mỗi khi thức dậy trong ngôi nhà của mình, hình ảnh và màu sắc của loài hoa này được thiết kế và sắp xếp một cách ẩn dụ trong cả tổng thể và chi tiết của ngôi nhà. Với diện tích nhỏ và cách bố trí xéo thì ngôi nhà phải được tận dụng tối đa vì như vậy sẽ làm cho không gian của ngôi nhà cũng trở nên tối đa và tạo cảm giác rộng rãi hơn.

© NguyenCuong
Bên cạnh đó, khi tạo ra một không gian mở, tất cả các phòng trong nhà sẽ được kết nối với nhau bằng hai sân thượng chiếm 1/3 diện tích căn nhà. Không gian này kết hợp với cây xanh vô cùng quý giá vì nó sẽ đóng vai trò là lá phổi tự nhiên hoạt động liên tục cả ngày.

© NguyenCuong

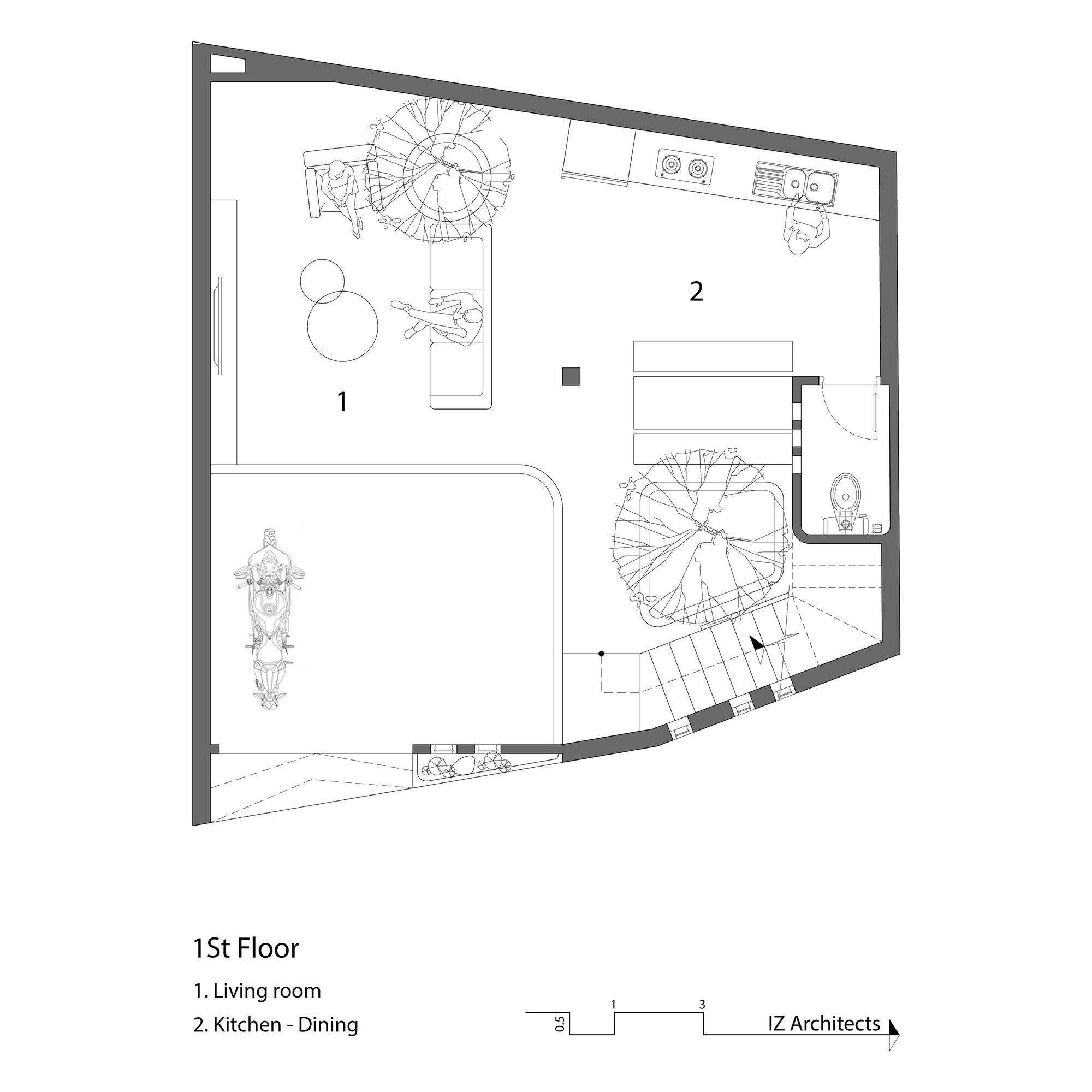
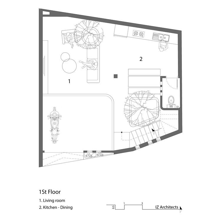
Sơ đồ tầng trệt

© NguyenCuong
Điều kiện khí hậu khắc nghiệt của miền Trung Việt Nam đặt ra thách thức trong việc tiếp xúc tối đa với ánh sáng nhưng hạn chế nhiệt độ mà nó tạo ra. Để giải quyết vấn đề này, ngoài việc sử dụng các vật liệu thô, màu sắc trung tính, ngôi nhà còn được bố trí các ô cửa nhỏ với cây xanh bao quanh khiến nó giống như một hộp điều hòa lớn.

© NguyenCuong

© NguyenCuong
Bạn sẽ vô cùng ngạc nhiên khi sống trong ngôi nhà này vì khả năng tiết kiệm điện của nó. Tất cả những gì mà thiên nhiên ban tặng cho con người như nắng, gió, cây cối đều được đưa vào thiết kế để gia chủ có thể tận hưởng chúng một cách hợp lý và thoải mái nhất.

