Ngôi nhà tổ ấm nhỏ
Thông tin dự án
- Ngôi nhà Hà nội, việt nam
- Khu vực : 46 m²
- Năm : 2016
- Ảnh: Nguyễn Quốc Anh
- Kiến trúc sư dự án: Nguyễn Danh Hoan, Nguyễn Văn Nghĩa, Phan Mạnh Tùng, Phạm Tuấn, Phan Lịch, Nguyễn Trung Kiên, Nguyễn Quốc Anh.
- Chi phí xây dựng: 16.300 USD
- Chi phí nội thất: 5.500 USD
- Kiến trúc sư phụ trách: Nguyễn Hoàng Hiệp
Ngôi nhà tổ ấm nhỏ
Từ kiến trúc sư. Nằm tách biệt khỏi thành phố ồn ào, ngôi nhà được xây dựng một cách khiêm nhường chỉ hơn 46 mét vuông trong một con hẻm nhỏ
Với diện tích chỉ hơn 46 mét vuông, ngôi nhà được yêu cầu để đảm bảo các chức năng thiết yếu và cần thiết của một ngôi nhà cho một cặp vợ chồng trẻ sắp cưới, tuy nhiên bị giới hạn về ngân sách cực kỳ chặt chẽ và thời gian xây dựng càng ngắn càng tốt , đặc biệt là trong tương lai nó có thể dễ dàng được cải tạo và thay thế khi nền kinh tế ổn định và cần thay đổi cuộc sống. Qua nhiều kế hoạch, các kiến trúc sư cuối cùng đã tìm ra kế hoạch tối ưu nhất.

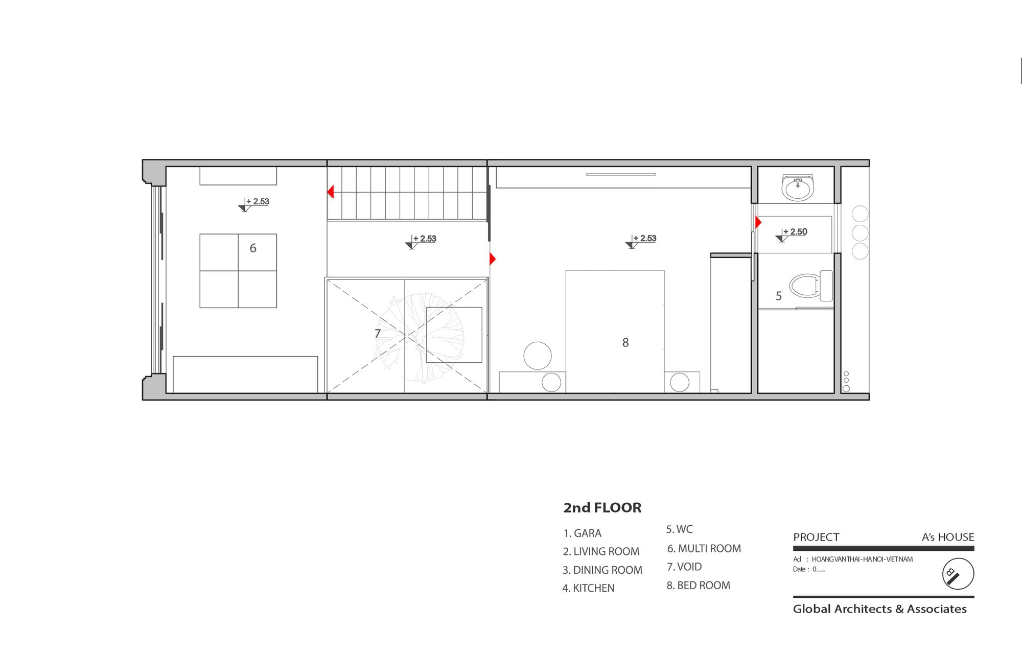
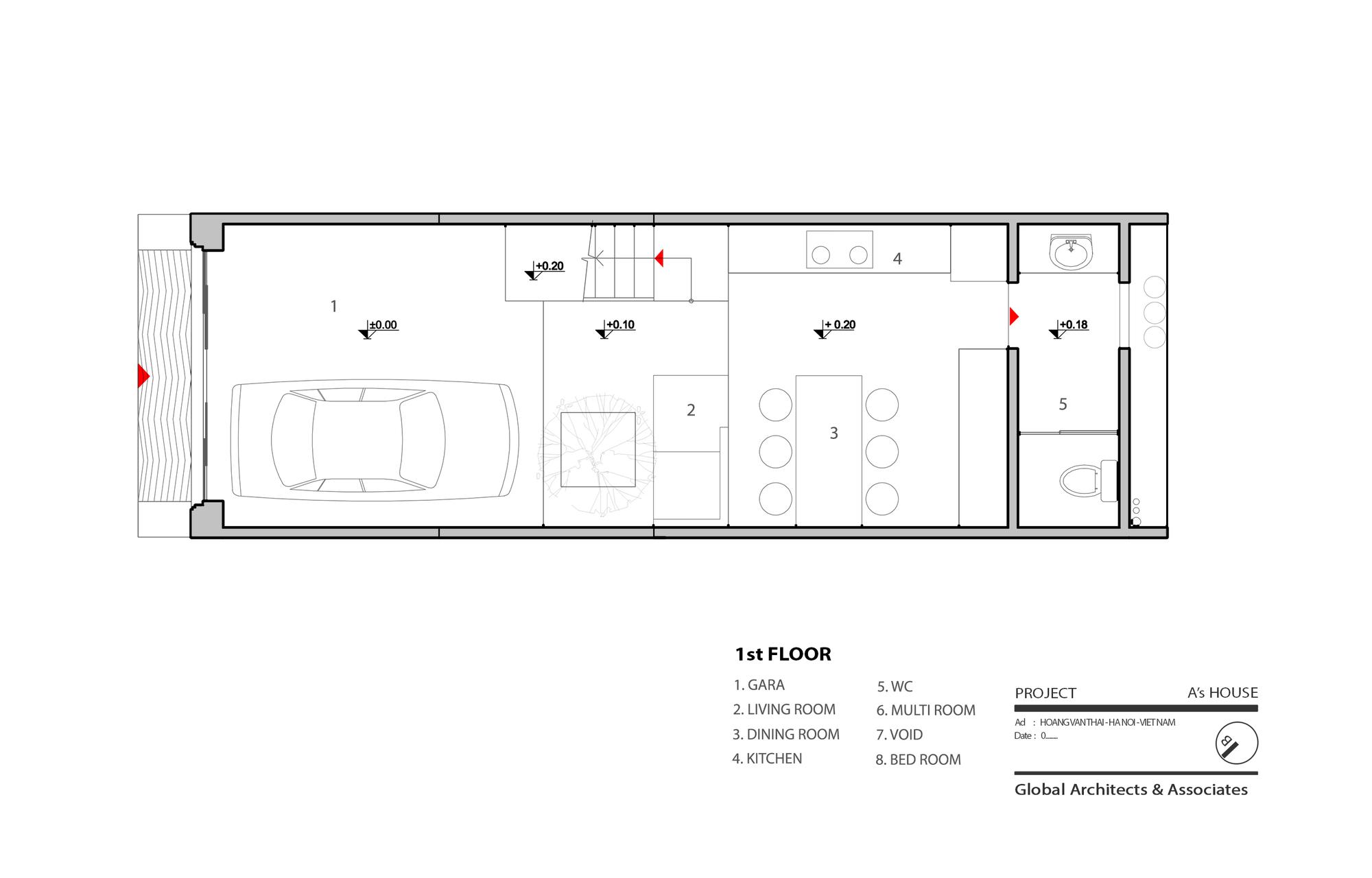
Sơ đồ
Với quan điểm thiết kế liên kết không gian sống với thiên nhiên, không gian nhĩ đóng vai trò trung tâm của ngôi nhà, đó là sự hội tụ của mặt trời, gió và cây cối, của tất cả các yếu tố góp phần vào cuộc sống lành mạnh, luôn được thanh lọc.
Bước vào ngôi nhà, toàn bộ không gian công cộng được sắp xếp thông suốt và thoáng mát, với nhà để xe, phòng khách, nhà bếp và phòng ăn được tách ra theo cách thông thường, tạo cảm giác ngôi nhà thực sự rộng rãi và thoải mái. Có nhiều vấn đề mà nhiều ngôi nhà ống Hà Nội đang phải chịu đựng: không gian bị phân mảnh, thiếu ánh sáng và độ ẩm thấp.

Tầng hai là một không gian dành riêng cho sự riêng tư của chủ nhân, với phòng ngủ có cửa sổ mở trực tiếp vào không gian thông tầng, nơi các chủ nhà có thể hít thở không khí trong lành vào mỗi buổi sáng, và từ đây có thể dễ dàng kết nối với không gian làm việc. . Mục đích chính của nơi này là để làm việc, nhưng nó cũng là một không gian lưu trữ, phục vụ nhu cầu sử dụng trong tương lai khi các cặp vợ chồng trẻ chào đón offsprings của họ.
Đồ nội thất của ngôi nhà sử dụng màu sắc ấm áp và mộc mạc, từ các mảng gạch trần và gỗ thông được xử lý mối, đến các mảng gạch hoa gợi lại quá khứ hoài cổ và các chi tiết trên bàn làm từ khối gỗ không chỉ độc đáo mà còn một điểm nhấn cho ngôi nhà ..., tất cả pha trộn với nhau để tạo nên một không khí mộc mạc, chân thực nhất, nhưng không thiếu sự quan tâm đối với cặp vợ chồng trẻ.

Chi phí xây dựng cũng là một yếu tố hoàn toàn đáng ngạc nhiên mà ngôi nhà mang lại, do nhà tư vấn đã sử dụng linh hoạt kết cấu thép, không chỉ làm giảm tải trọng của ngôi nhà mà còn rút ngắn thời gian thi công và công việc lao động tối đa. Mặt khác, việc tái chế một số chi tiết từ ngôi nhà cũ là cả cách để giữ lại ký ức và cách tiết kiệm chi phí.
Mỗi ngôi nhà được xây dựng đều có câu chuyện thú vị của riêng họ và ngôi nhà này cũng vậy. Chủ nhân, một giảng viên trẻ, với kiến thức nhỏ về đồ nội thất bằng gỗ, đã tự thiết kế và tạo ra đồ nội thất cho ngôi nhà của mình, làm cho ngôi nhà trông như đang che giấu điều gì đó thực sự đặc biệt theo cách của mình!


Kế hoạch tầng 1
