Ngôi nhà góc phố hình khố
Project Info
Nhà ở , Cải tạo , Nội thất trong nhà Hanói, Việt Nam
• • Diện tích: 90 m²
• • Năm: 2019
• • Hình ảnh: Triệu Chiến
• • Nhà sản xuất: JUNG , Swisspearl
•Kiến trúc sư trưởng: Nguyễn Hồng Quang

Hình ảnh thuộc bảng quyền của chủ đầu tư, chỉ sử dụng cho mục đích nghiên cứu tham khảo, không sử dụng cho mục đích thương mại xây nhà tương tự. Cảm ơn.
Ngôi nhà góc phố hình khố

© Triệu Chiến
Mô tả văn bản do các kiến trúc sư cung cấp. Ngôi nhà hiện tại là một ngôi nhà phố 5 tầng được xây dựng từ những năm 2000 tại một ngã tư của những con phố sôi động của Hà Nội . Góc phố là sự giao thoa vô thức của những cuộc hành trình và những cá thể khác nhau tạo nên khung cảnh đáng sống. Chủ nhân ngôi nhà là một phụ nữ trung niên, sinh ra và lớn lên tại Hà Nội . Cô ấy thích cuộc sống hàng ngày diễn ra trong khu vực.

© Triệu Chiến

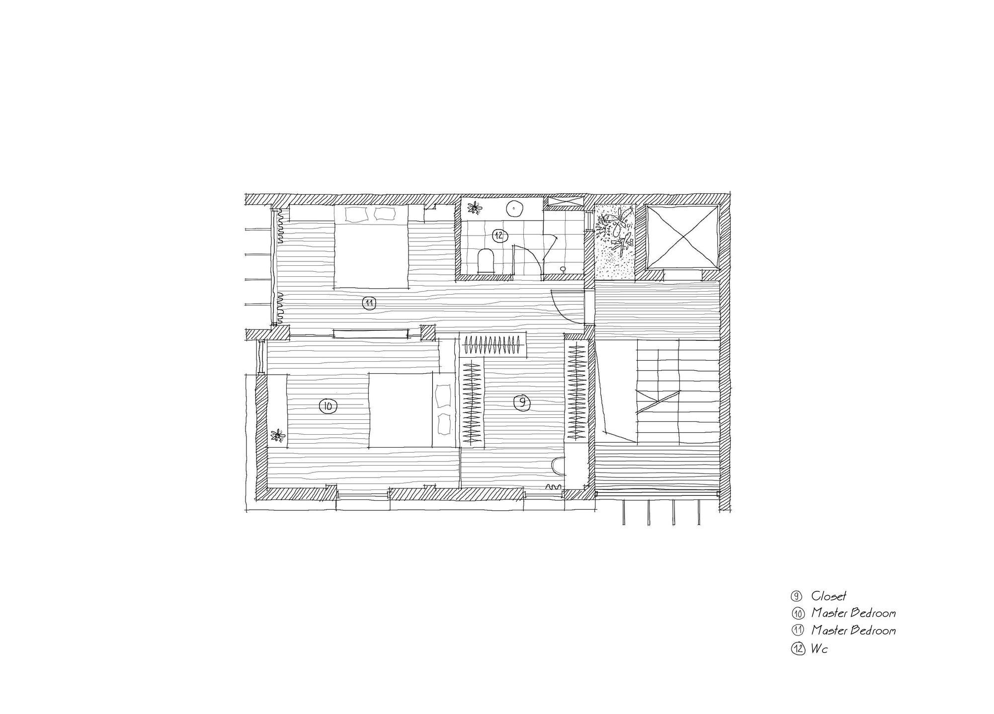
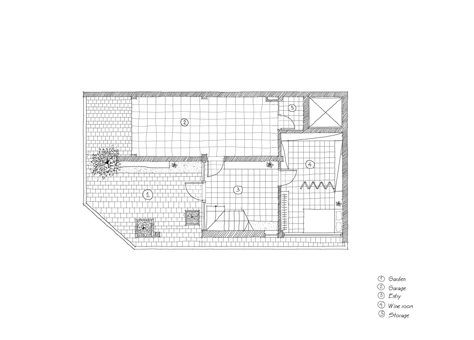
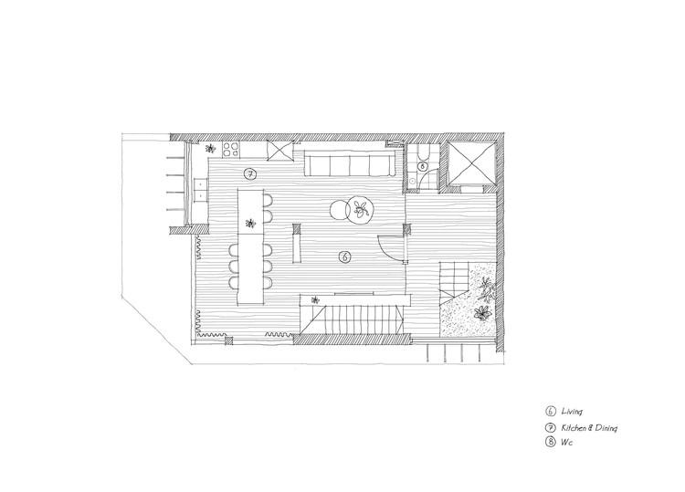
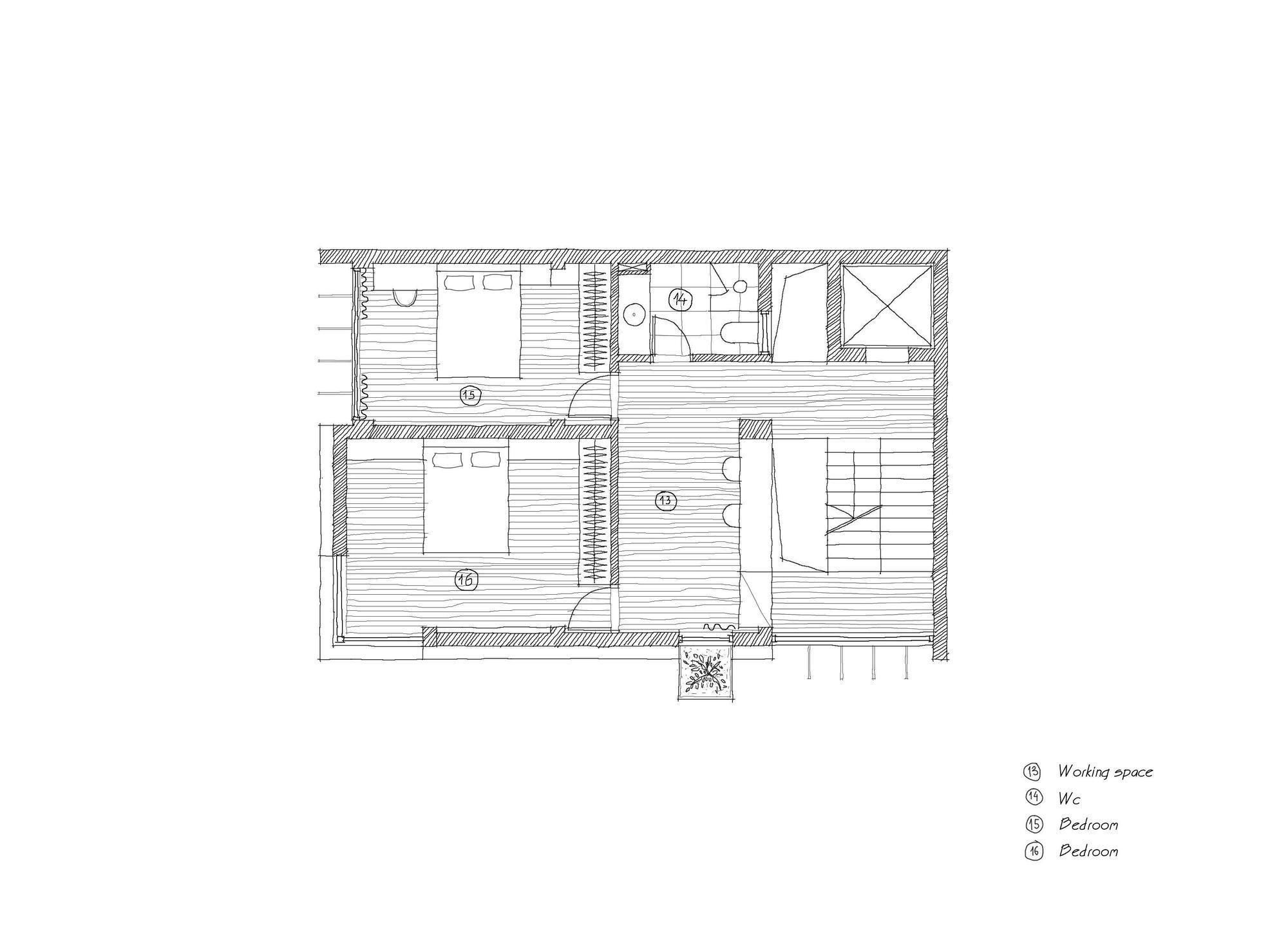
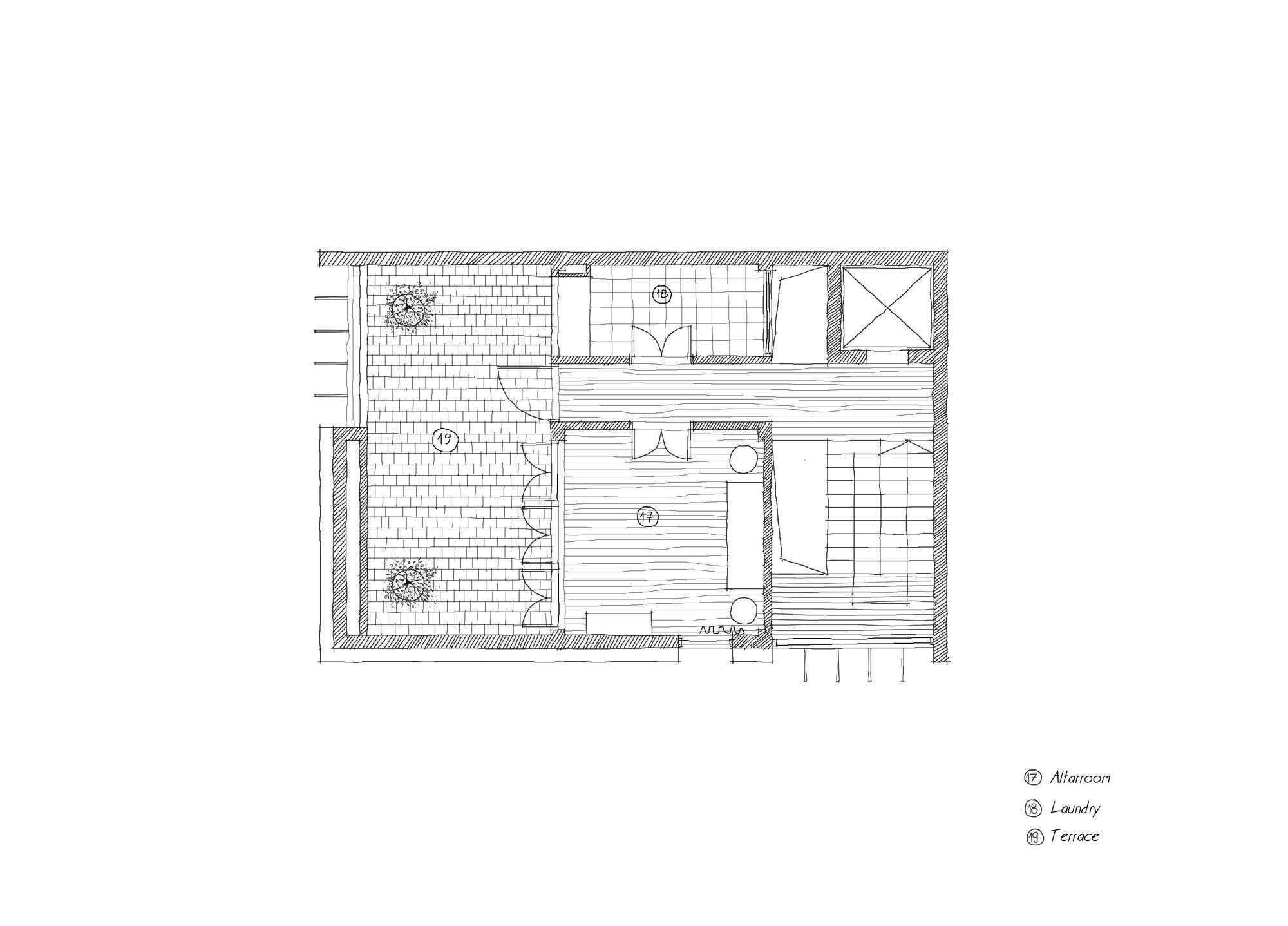
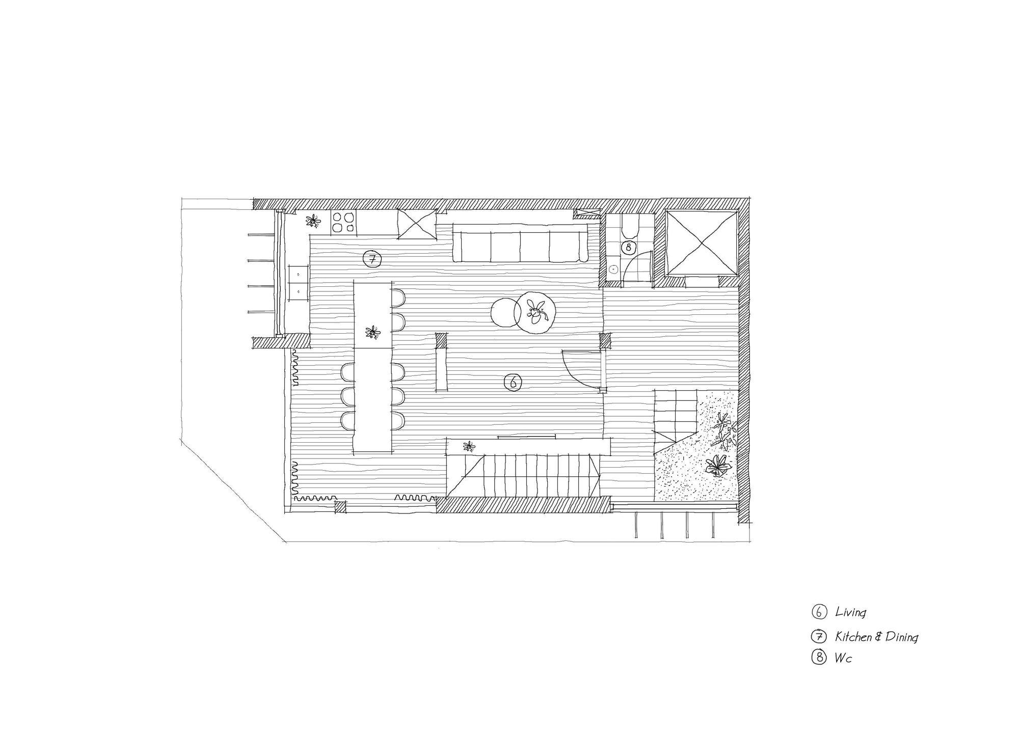
Sơ đồ tầng một

© Triệu Chiến

Chúng tôi mong muốn xây dựng một nơi mà kiến trúc và con người được hòa nhập vào bầu không khí này. Do đó, chúng tôi đã đưa ra một phương án cải tạo kiến trúc với các hình khối đơn giản và linh hoạt. Các chi tiết truyền thống như cửa chớp, cửa gỗ, kết cấu xà gồ mái ngói đã được lồng ghép vào không gian chủ nghĩa hiện đại nhằm tạo ra những cảm nhận khác biệt từ nhiều góc nhìn khác nhau.

© Triệu Chiến
Bề mặt lớn bao phủ bên ngoài đóng vai trò như một ranh giới bảo vệ để đảm bảo sự riêng tư của người cư ngụ. Các cạnh trở nên kém vững chắc hơn do sự thích ứng của các phương pháp thị giác cho phép ánh sáng và âm thanh đi qua. Cư dân luôn có thể duy trì mối quan hệ giữa bên trong và bên ngoài ngôi nhà bởi sự thông thoáng của các phần ranh giới này. Do đó, hành động mở hoặc đóng góp phần làm đa dạng và nhận diện diện mạo của ngôi nhà.

© Triệu Chiến
