Ngôi nhà di sản thiên nhiên
Thông tin dự án
• Ngôi nhà Khu di sản thiên nhiên Trang, Việt Nam
• Khu vực : 280 m²
• Năm : 2014
• Ảnh: Dũng Huỳnh
• Kiến trúc sư phụ trách: Nguyễn Công Toàn
• Các kiến trúc sư cộng sự: Vũ Bảo Ngọc, Lê Minh Đức
• Kỹ sư kết cấu: Đặng Sơn, Nguyễn Dũng
• Thành phố: Khu Di sản Thiên nhiên Trang
Ngôi nhà di sản thiên nhiên
Bắt đầu một ngày mới với một tách cà phê trong ngôi nhà nhỏ, đó là một thói quen mà không bao giờ bỏ cuộc vào mỗi buổi sáng của cặp vợ chồng trẻ.

Cà phê buổi sáng đầu tiên, họ nói về cuộc sống, công việc, trẻ em, thời gian khó khăn để bắt đầu sự nghiệp của mình trong một căn nhà hẹp, sở thích và bản chất tình yêu của mọi thành viên trong gia đình họ.

Cà phê buổi sáng thứ hai, họ nói về mảnh đất mà họ sẽ được xây dựng cho ngôi nhà mới của họ. Vùng đất này nằm ở khu chợ trung tâm trong thành phố, hoạt động từ sáng sớm đến tối muộn.

Cà phê buổi sáng thứ ba, họ nói về ngôi nhà của họ trong tương lai, họ thích chăm sóc chim và cá, con cái của họ như giữ một số con chó đáng yêu, vợ thích nấu ăn và làm hoa bình, họ yêu vườn, rau và thực vật. Họ hy vọng sẽ có một nơi khá gần với thị trường tiếng ồn. Họ không cần bất kỳ thứ gì đặc biệt, họ chỉ hy vọng mọi vật liệu xây dựng là phổ biến nhất, đơn giản nhất để xây dựng và chi phí càng rẻ càng tốt.

Một số cà phê buổi sáng sau đó, chúng tôi vẫn giữ thói quen của mình. Và sau đó chúng ta nói lại về không gian, vật chất, chi tiết…

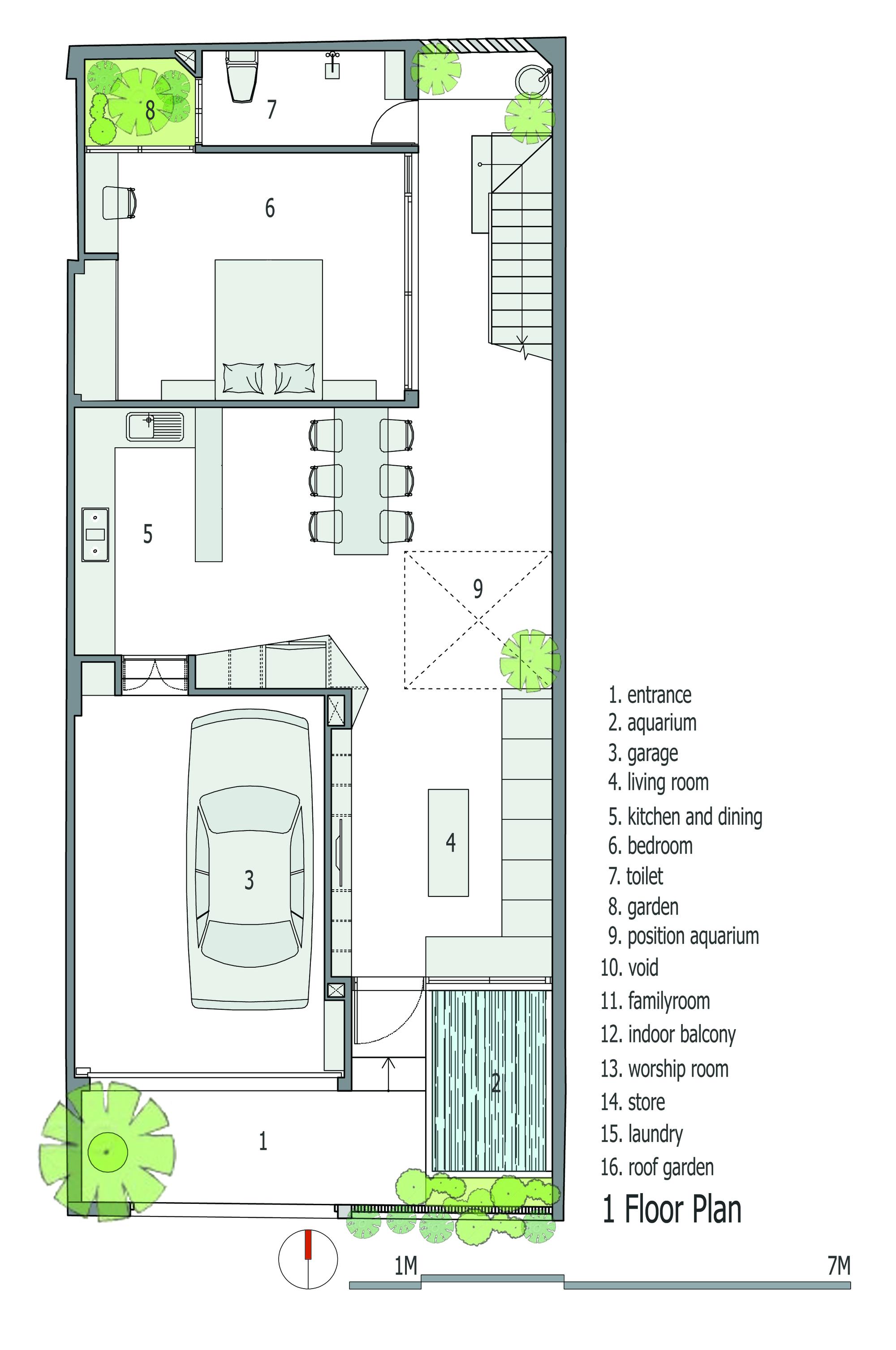
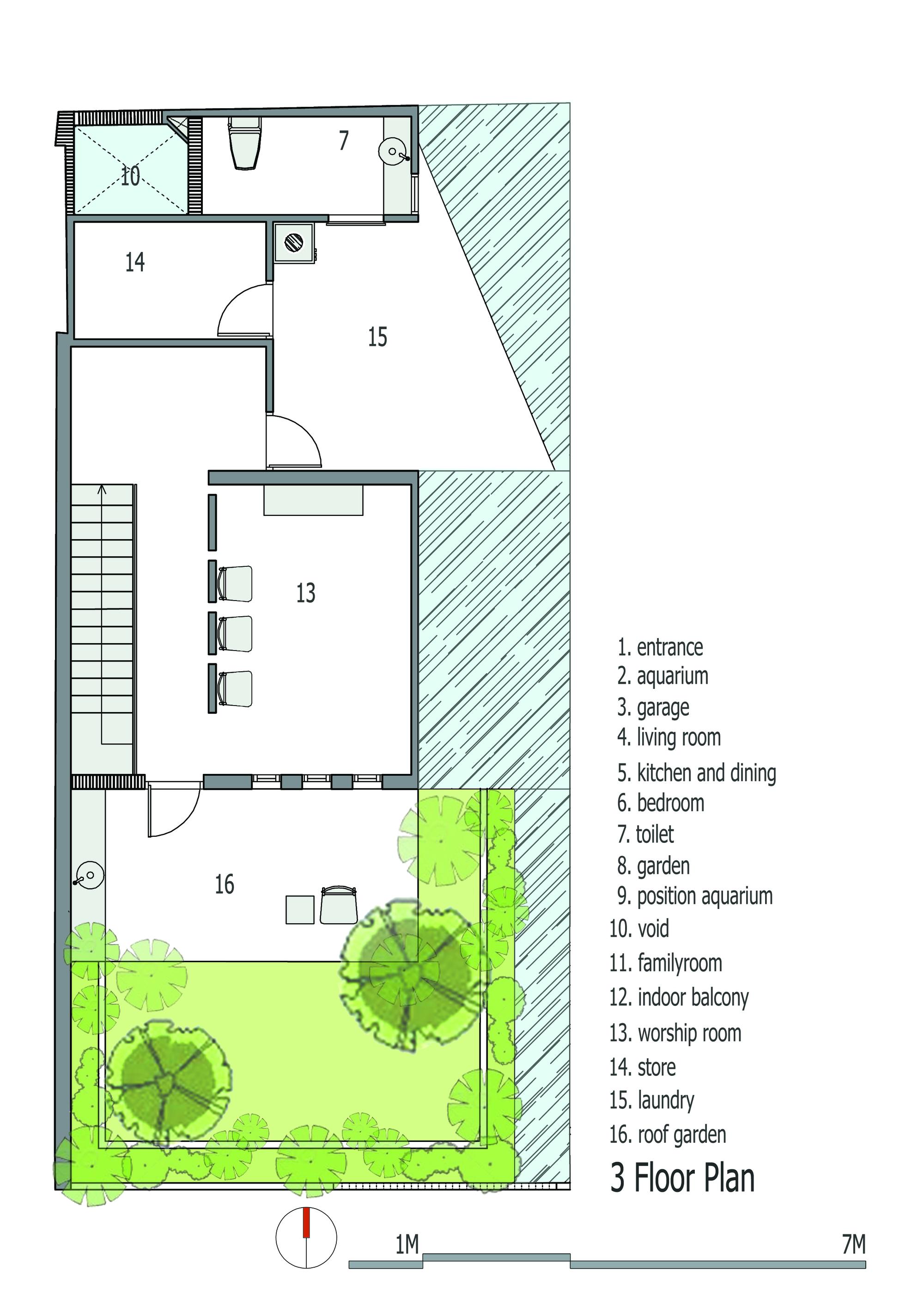
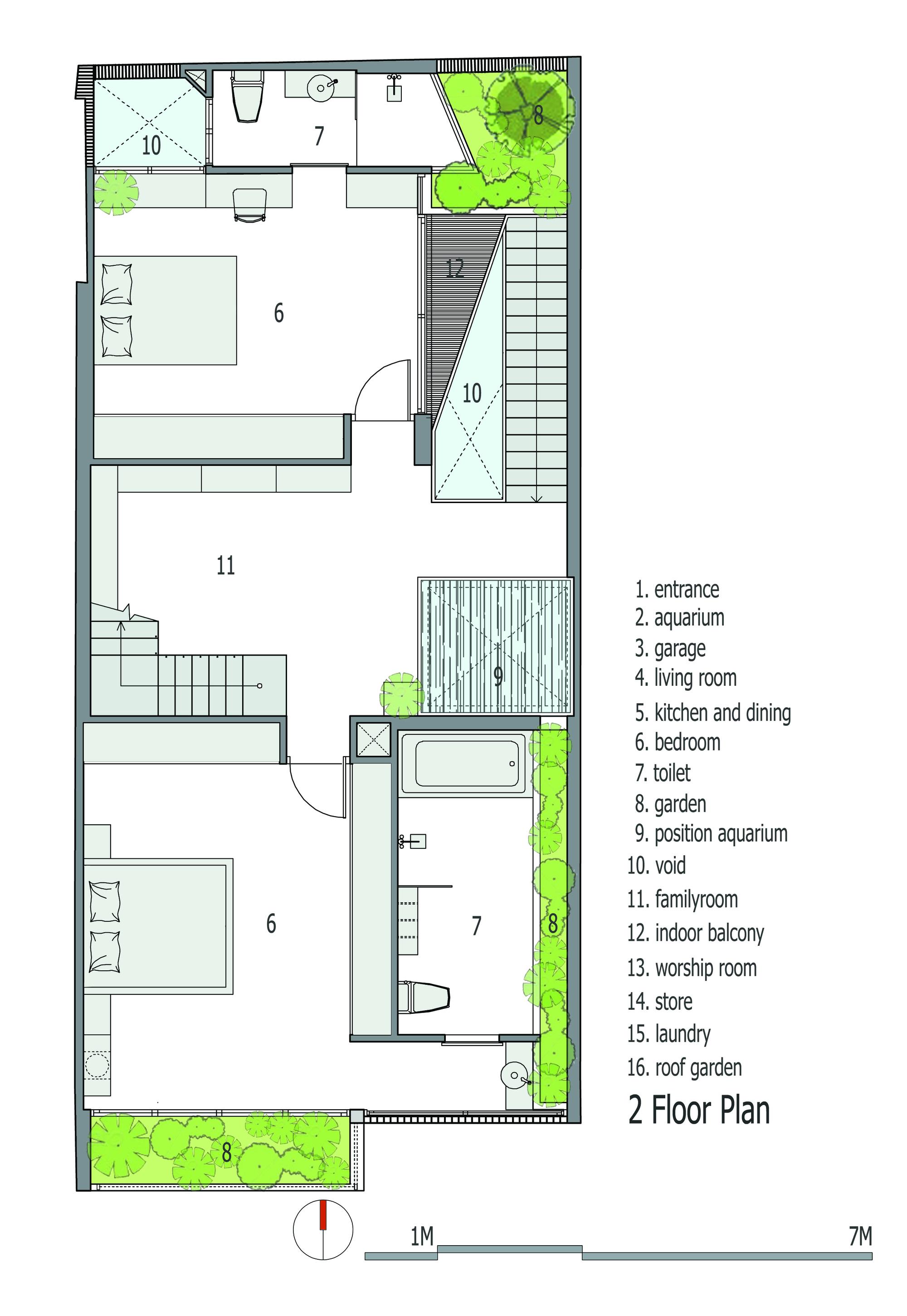
Sáu tháng sau, chúng tôi uống cà phê buổi sáng cùng nhau tại nhà họ nói chuyện. Chúng tôi không cố gắng làm bất cứ điều gì đặc biệt trong không gian này, chúng tôi chỉ cố gắng để cho tất cả các thành viên trong gia đình sống gần gũi với thiên nhiên càng nhiều càng tốt giữa thành phố ồn ào. Với bản chất nói ra bởi hồ cá chép Koi, sân vườn, cây cối, chim hót, vật nuôi nghịch ngợm, ánh sáng tự nhiên và bóng tối, gió, biển thở…

Album này đã được thực hiện sau khi dự án được sử dụng trong khoảng hơn 18 tháng.
