Ngôi nhà Dhouse HOÀNG MAI
Project Info
Ngôi nhà Hoàng Mai, Việt Nam
• • Khu vực : 178 m²
• • Năm : 2018
• • Ảnh: Hoàng Lê
• • Nhà sản xuất: Granit Bình Định , Vietceramics , Nhôm Xingfa
• Kiến trúc sư trưởng: Đặng Minh Trọng

Hình ảnh thuộc bảng quyền của chủ đầu tư, chỉ sử dụng cho mục đích nghiên cứu tham khảo, không sử dụng cho mục đích thương mại xây nhà tương tự. Cảm ơn.
Ngôi nhà Dhouse HOÀNG MAI
Do đô thị hóa nhanh chóng của thành phố, môi trường của thành phố bị ảnh hưởng nghiêm trọng, nhiều nhà phố ở Việt Nam thiếu không gian xanh cần thiết. Quá trình đổ bê tông đô thị ảnh hưởng đến sự hấp thụ nhiệt gây ra nhiệt độ trung bình ở khu vực đô thị tăng lên đáng kể. Ngoài ra, cư dân thành phố đang sống và làm việc với tốc độ mà dường như gây ra sự mất kết nối giữa các thành viên trong gia đình. Ngoài ra, nguồn rau tươi, chất lượng cũng là mối quan tâm của nhiều người dân.

Chứng kiến những tình huống này, ARO studio Kiến trúc sư mong muốn tạo ra một giải pháp để mang lại chất lượng tốt hơn cho người dân đô thị. Ngôi nhà nằm trong khu đô thị cũ của Hà Nội với mật độ rất cao và bảo trì, do vị trí của nó ở phần thấp nhất của thành phố, do đó, ngập lụt quanh năm trong mùa mưa bằng cách vẫy tầng đầu tiên của ngôi nhà được nâng lên cao hơn mức lũ cao nhất hàng năm.

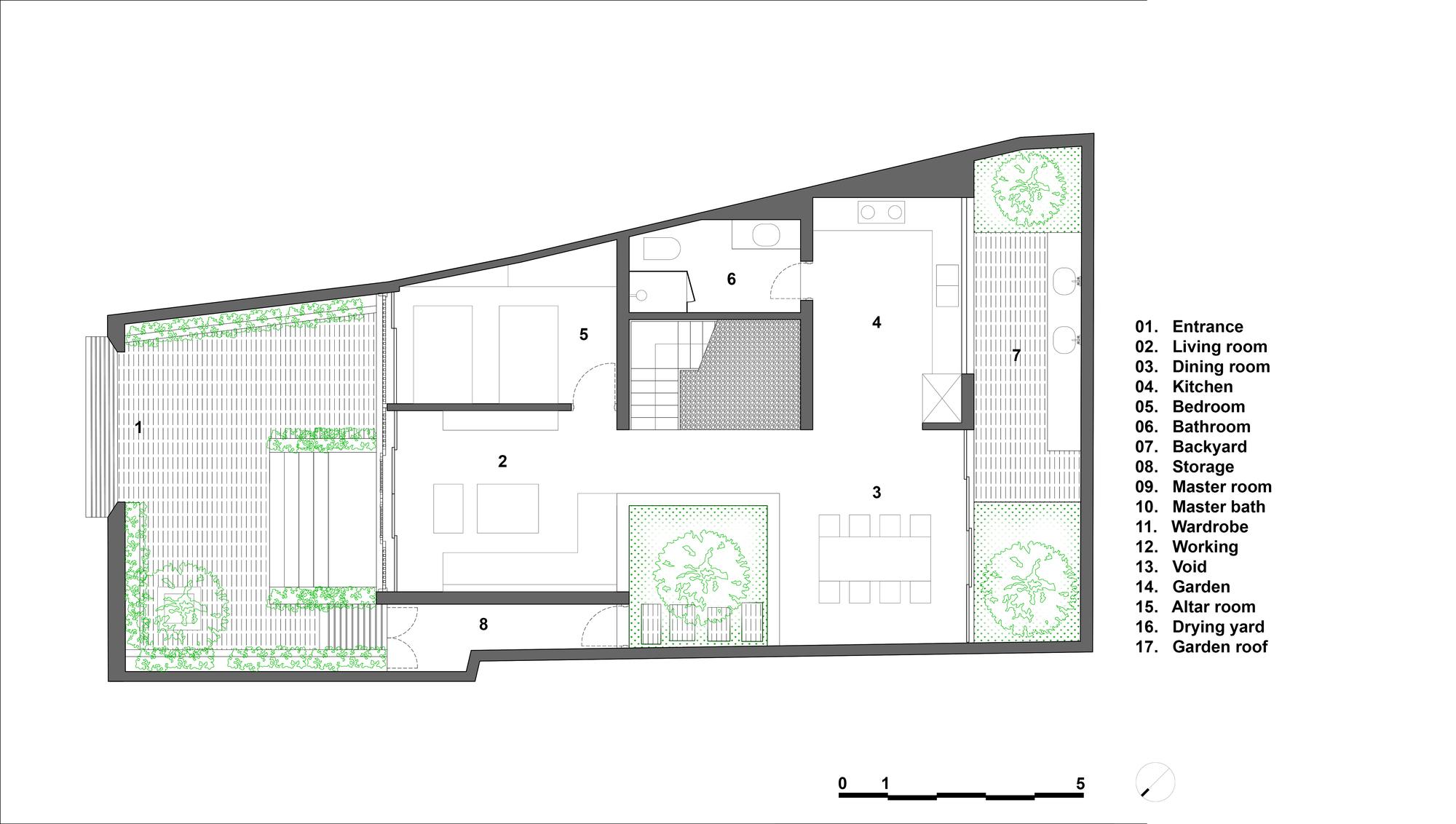
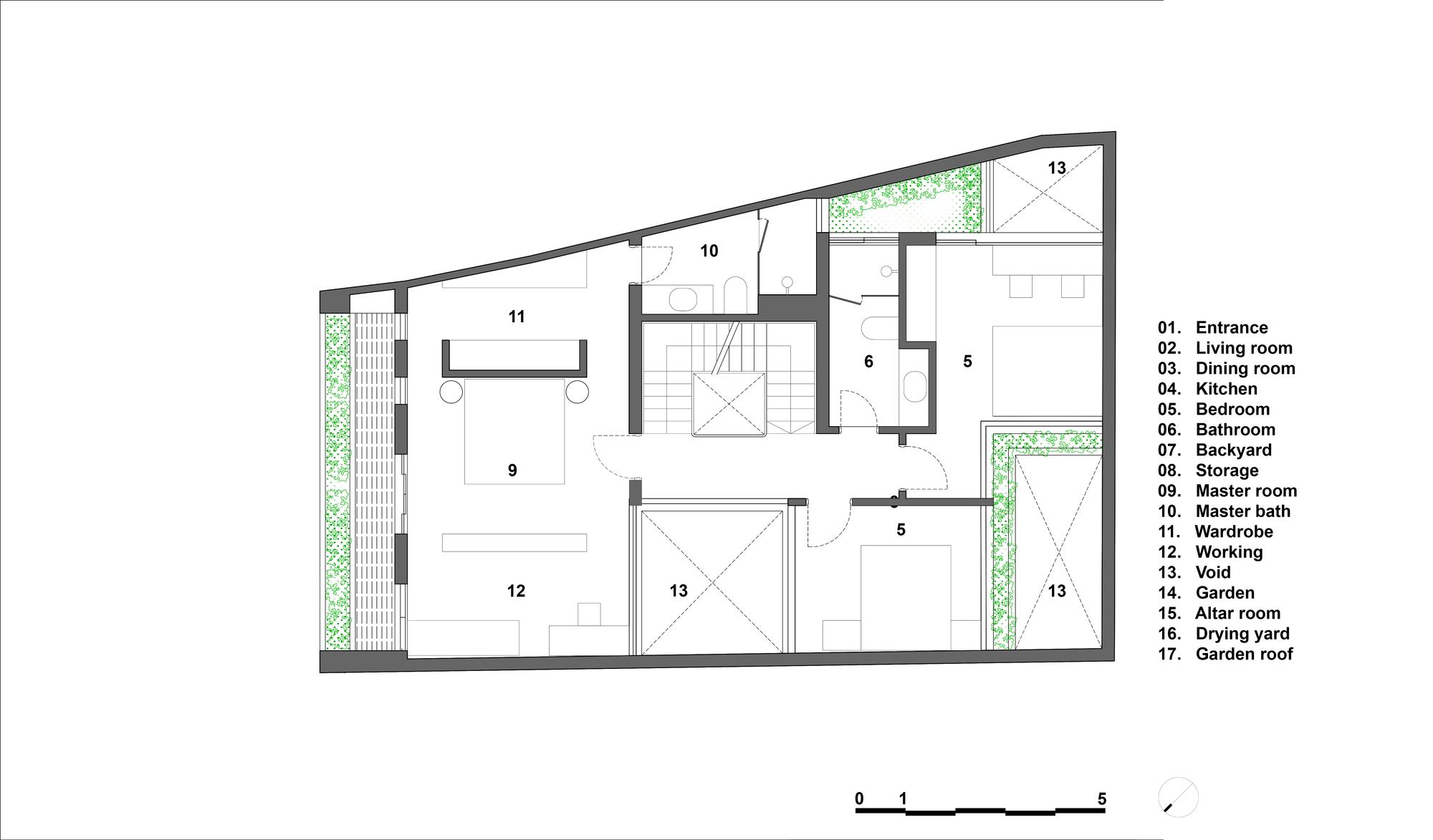
Ngôi nhà được thiết kế cho một gia đình Việt Nam điển hình của ba thế hệ. Mỗi thế hệ có một cách sống và nhu cầu khác nhau. Thế hệ đầu tiên lâu đời nhất đến từ nông dân, do đó, các thực hành nông nghiệp đã được yêu cầu để được thành lập. Thế hệ thứ hai là ở độ tuổi lao động, do đó, nó là cần thiết để có một bầu không khí thoải mái hơn với thiên nhiên. căng thẳng làm việc và cuối cùng là thế hệ thứ ba cần nhất là luôn luôn tiếp xúc với thiên nhiên để được khám phá các hoạt động hàng ngày. Từ đó các khối không gian xuất hiện tự nhiên và hòa trộn với nhau.

Hình dạng của đất là một hình dạng đa hướng với nhiều biến dạng, thường là một bất lợi. Nhưng các kiến trúc sư đã tận dụng lợi thế đó để làm cho không gian vuông hơn và dễ sử dụng hơn, và góc biến dạng được tối đa hóa để tạo ra khoảng trống cho ánh sáng và kết hợp. với không gian xanh. Hầu hết các không gian chức năng chính luôn có hai mặt của nguồn sáng tự nhiên và tiếp giáp với không gian xanh. Kết hợp trong không gian xanh với các vật liệu địa phương và tự nhiên để làm cho dự án trở nên đặc biệt hơn, các bức tường đá granite ghép tiếp xúc với các lớp đá xếp tầng trong tự nhiên.

Mặt trước của ngôi nhà chủ yếu nghiêng về phía đông nên thuận tiện để đón gió trong mùa nóng và bất lợi trong mùa lạnh, do đó, không gian cần thiết để có sự linh hoạt của việc mở và đóng. Những khu vườn trên mái nhà xanh không chỉ bảo vệ người dân khỏi ánh sáng mặt trời trực tiếp, tiếng ồn đường phố và ô nhiễm mà còn sản xuất rau sạch cung cấp nguồn cung cấp dồi dào cho gia đình và hàng xóm. Ngoài ra, thông gió tự nhiên qua mặt tiền cùng với ba khoảng trống cho phép nhà tiết kiệm rất nhiều năng lượng trong khí hậu khắc nghiệt của miền Bắc Việt Nam.

