Tổ ấm garden house
Thông tin dự án
Những ngôi nhà Thanh Khê, Việt Nam
Khu vực : 700 m²
Năm : 2016
Ảnh: Hiroyuki Oki
Nhà sản xuất: Jotun , YKK AP , Tremcon , YKKap3
Thiết kế và xây dựng: ALPES Green Design & Build
Kiến trúc sư phụ trách: Hồ Khuê
Nhóm thiết kế: Huỳnh Thanh Hải, Huỳnh Văn Khánh

Hình ảnh thuộc bảng quyền của chủ đầu tư, chỉ sử dụng cho mục đích nghiên cứu tham khảo, không sử dụng cho mục đích thương mại xây nhà tương tự. Cảm ơn.
Tổ ấm garden house
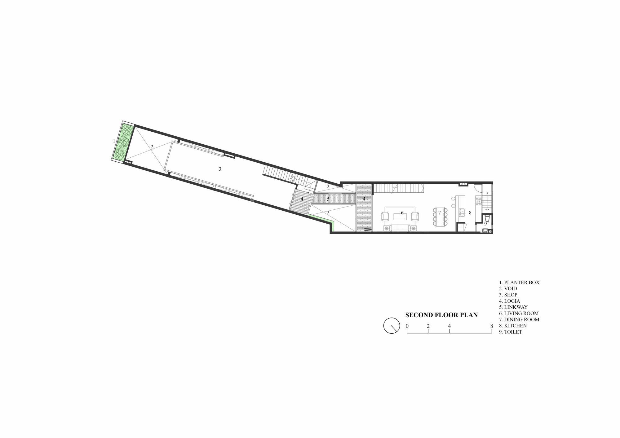
Kích thước nhà đất hẹp 4 mét (w) x 40 mét. Các yếu tố chính và thách thức có liên quan đến tỷ lệ chiều dài đến chiều rộng có hiệu lực chiếu sáng tự nhiên và thông gió. Các giải pháp thiết kế đột phá đã tạo ra hai khối riêng biệt với một khu vườn xanh tự nhiên nằm ở lõi trung tâm.

Những cây cầu đẹp nối hai khối thông qua hành lang với cây và gạch trang trí. Khu vực sân vườn mở tập trung này cho phép thở và thông gió trong nhà ngoài việc cho phép ánh sáng tự nhiên vào tất cả các phòng.

Mặt tiền
Mặt tiền của ngôi nhà 4 tầng này được bao phủ bởi cây cối và những chiếc hộp trồng cây để thu hút trí tưởng tượng của những người đi trên con đường thương mại rất bận rộn này Điện Biên Phủ gần cầu vượt hoàn thành gần đây. Các tấm bê tông và gạch mộc mạc được xếp chồng lên nhau gần nhau với chỉ đủ cây phát triển để giảm bụi và tiếng ồn từ đường phố. Điều này cung cấp sự thanh lọc tự nhiên và liên tục của không khí bên trong ngôi nhà.

Mở lõi trung tâm
Không gian vườn trên tầng 3 nối phòng ngủ chính của cha mẹ và phòng gia đình. Con đường dẫn qua khu vườn trung tâm là yên tĩnh, mát mẻ và yên tĩnh. Không khí làm mát và ánh sáng tự nhiên cung cấp điều kiện sống lý tưởng trong toàn bộ ngôi nhà.

Sơ đồ
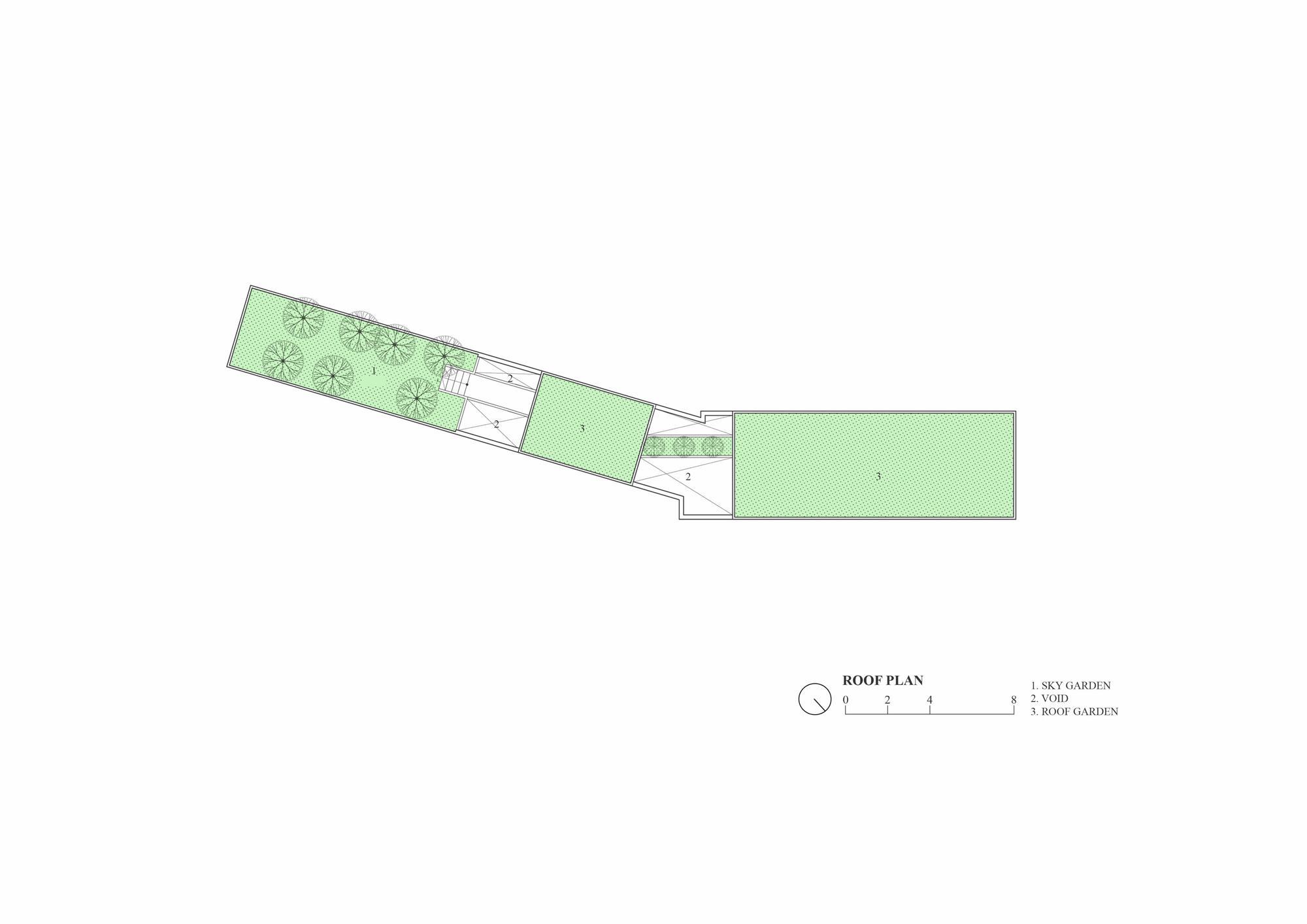
Sky garden: Làm đẹp, giải trí và làm mát
Ý tưởng và giải pháp thiết kế của "Ngôi nhà xanh" bao gồm một không gian tầng 4 với một "khu vườn trên bầu trời" mở với cây cao và cỏ tươi tốt, muốn đặt một không gian xanh vào một ngôi nhà phố nằm trong một khu vực ồn ào và chật chội.

Toàn bộ mái nhà của ngôi nhà cũng sẽ được trồng với rau và hoa sạch sẽ cung cấp cho gia đình thực phẩm và hoa trong suốt cả năm. Khu vườn trên tầng mái được tạo ra để giảm bức xạ nhiệt vào nhà và giảm đáng kể hệ thống sưởi tại nhà. Các giải pháp cho khu vườn trên mái nhà bắt đầu như giai đoạn 1 (đã hoàn thành) của việc xây dựng kỹ thuật. Kế hoạch hoàn thành khu vườn trên tầng mái dự kiến sẽ hoàn thành vào đầu năm tới.

Kế hoạch mái nhà
Thiết kế gạch: Dòng khí tự nhiên
Phía sau của tòa nhà có đường rộng 5,5 m và chịu ảnh hưởng nặng nề của mặt trời nóng và gió mạnh từ phía tây bắc. Bức tường phía sau của cầu thang phía sau được xây dựng bằng cách sử dụng gạch của chúng tôi với lỗ thông hơi nhỏ trên tường. Chúng được thiết kế để ngăn không cho mưa xâm nhập vào nhà trong khi cung cấp thông gió ở mọi cấp độ. Mặt tiền này luôn mát mẻ, khô ráo, và cung cấp ánh sáng tự nhiên mà không có bất kỳ nhiệt điển hình nào của cửa sổ lớn hơn và mở ra.

Vật liệu tự nhiên: Mạnh mẽ và đẹp
Ngôi nhà là "Ngôi nhà xanh" vì các giải pháp thiết kế cho hệ thống thông gió và làm mát tự nhiên, ánh sáng tự nhiên, cây xanh và thực vật bao phủ toàn bộ ngôi nhà và mái nhà. Các vật liệu thân thiện với môi trường như gạch không nung, tấm bê tông, đá tự nhiên và cây trồng tạo ra một bề mặt đẹp và mạnh mẽ.

Cửa sổ và sản phẩm YKK
Cửa sổ và cửa ra vào được chứng nhận YKKap Green được sử dụng trong suốt dự án. Đây là những nhẹ, đẹp, cực kỳ mạnh mẽ, và là những cửa sổ tiên tiến nhất hiện nay.

