Ngôi nhà vườn bình yên
Thông tin dự án
Ngôi nhà ở Nha Trang, Vietnam
• • Diện tích: 400 m²
• • Năm: 2020
• • Ảnh: Quang Chơn
• Nhà sản xuất: Sika, INAX, TAICERA, Toto, Panasonic

Hình ảnh thuộc bảng quyền của chủ đầu tư, chỉ sử dụng cho mục đích nghiên cứu tham khảo, không sử dụng cho mục đích thương mại xây nhà tương tự. Cảm ơn.
Ngôi nhà vườn bình yên

Mô tả văn bản do các kiến trúc sư cung cấp. Mỗi ngôi nhà đều có một tâm hồn đẹp. Những hoàn cảnh chung quanh để bao bọc một ngôi nhà luôn thuận lợi khi mọi người hiểu họ, cảm nhận được trong mình một tâm hồn bình yên và sẻ chia.


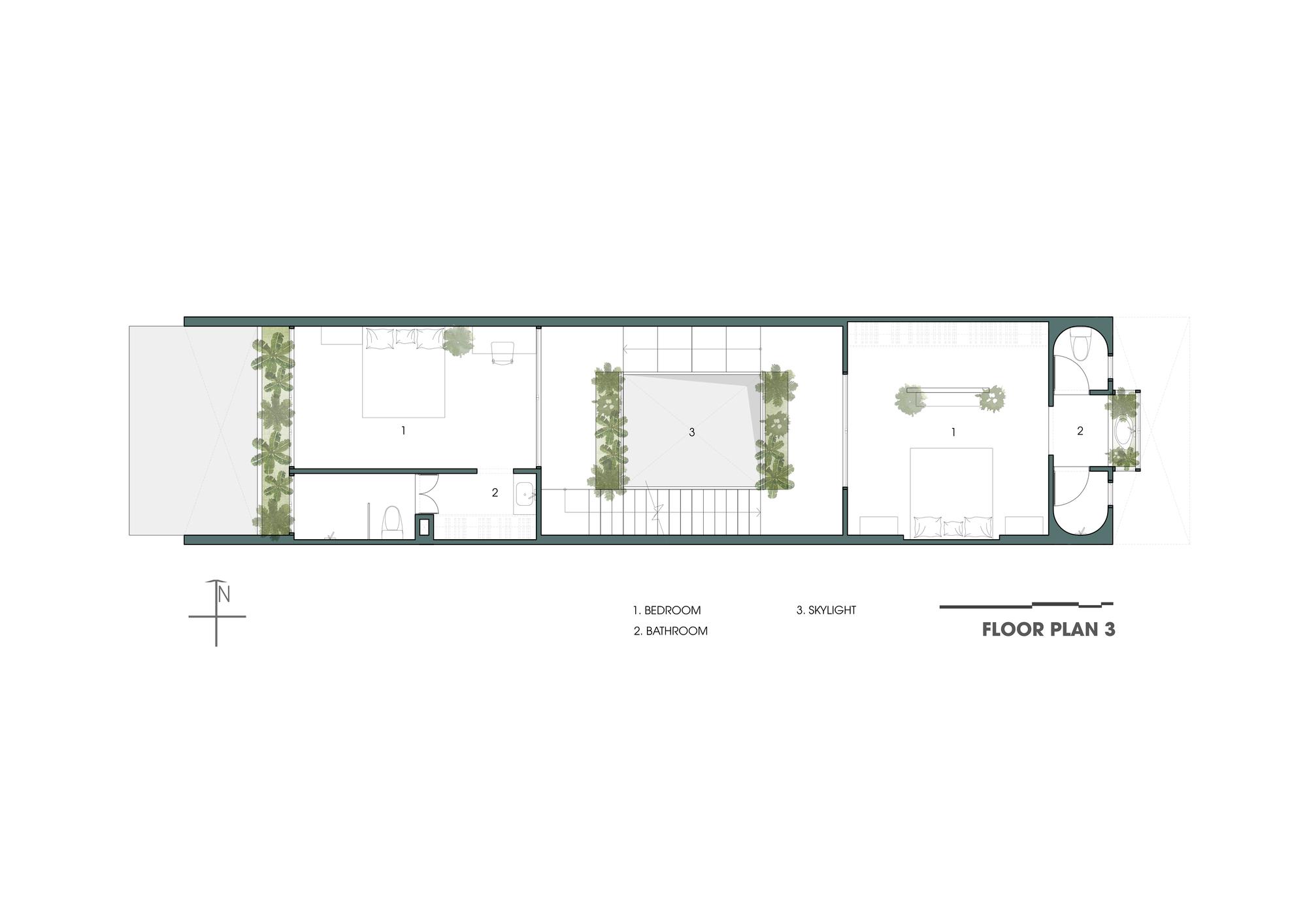
Sơ đồ tầng một
Khu đất phía Tây nằm trên trục đường lớn trung tâm khu đô thị mới hình thành. Bức xạ mặt trời trực tiếp chiếu vào buổi trưa, cùng với tiếng ồn giao thông và khói bụi là tất cả những yếu tố được đề cập khi chúng tôi khảo sát hiện trạng lô đất.

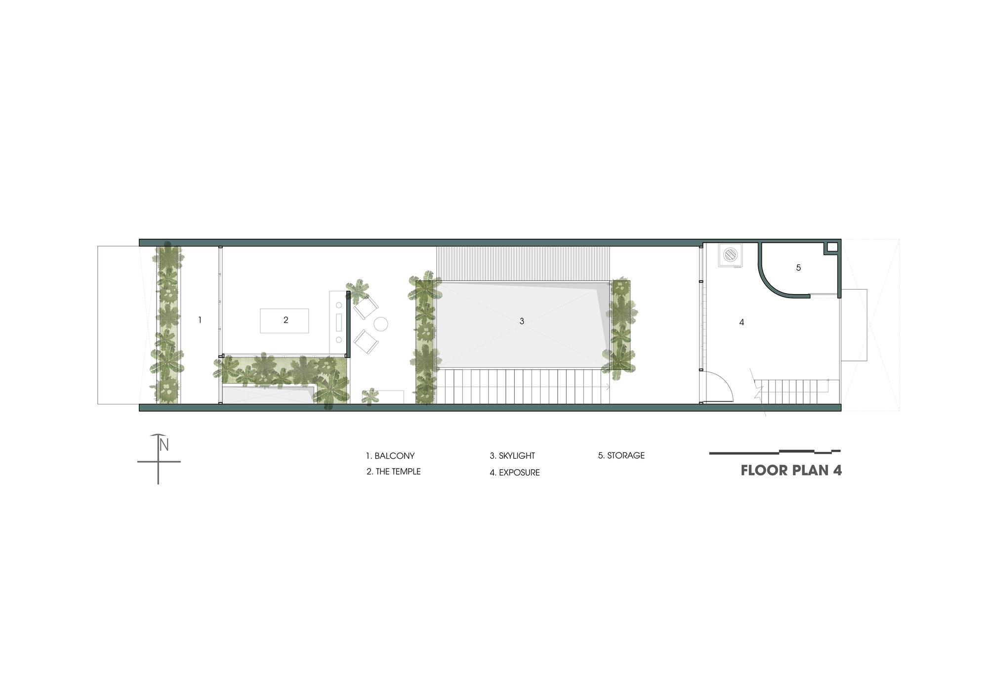
Không gian bậc thang và hệ thống mái thái tạo nên những khu vườn thông tầng liên hoàn, có khoảng lùi sâu che chắn nắng nóng buổi trưa. Từ mỗi phòng ngủ, mọi người cảm nhận được ánh nắng ban mai chiếu qua những tán lá xanh mướt bên những khung cửa lớn. Với hành lang công cộng, ban công, chúng tôi muốn tạo ra một số khoảng thông tầng giữa không gian chung và không gian riêng. Đó là sự chuyển đổi ánh sáng, không gian thiên nhiên, tầm nhìn và sự kết nối của con người trong các không gian vừa mở, vừa bao trùm, vừa riêng tư và nhạy cảm.

Mặt dựng
Với bầu không khí truyền thống và chất liệu hiện đại để tạo nên không gian sống, chúng tôi đã cố gắng dung hòa cuộc sống bên ngoài với cuộc sống tinh thần của mỗi con người, đưa họ trở về với sự bình yên trong tâm hồn. Mặt nước, cây cối, gió nhẹ, mát lành cho con người và thiên nhiên cùng chung sống, chia sẻ những tháng ngày của một đời người.

Thiên nhiên là điều kỳ diệu trị liệu mà tạo hóa đã ban tặng cho con người, cảm nhận sự sống qua từng ánh nắng, chồi non xanh biếc hay từng cơn gió nhẹ; trong từng hơi thở, từng cành lá hay mặt hồ phẳng lặng. Sự tĩnh lặng luôn hiện hữu trong mọi không gian, khiến con người ta cũng cảm nhận được sự bình yên từ sâu trong tâm hồn mỗi người.

