Ngôi nhà tự do freedom house
Thông tin dự án
Những ngôi nhà Nha Trang, Việt Nam
• • Diện tích: 305 m²
• • Năm: 2019
• • Hình ảnh: Kiến trúc Chơn
• • Nhà sản xuất: Hoppe , Sika , Axor
• • Kiến trúc sư trưởng: Quang Chơn
• Thiết kế ánh sáng: LED Linh Quang

Hình ảnh thuộc bảng quyền của chủ đầu tư, chỉ sử dụng cho mục đích nghiên cứu tham khảo, không sử dụng cho mục đích thương mại xây nhà tương tự. Cảm ơn.
Ngôi nhà tự do freedom house

Mô tả văn bản do các kiến trúc sư cung cấp. Chúng tôi luôn cảm thấy thú vị khi thực hiện những bức ảnh kỷ niệm ghi lại tuổi thọ của công trình sau vài năm đưa vào sử dụng, khi không gian đã thể hiện trọn vẹn đời sống con người trong từng nhịp thở.


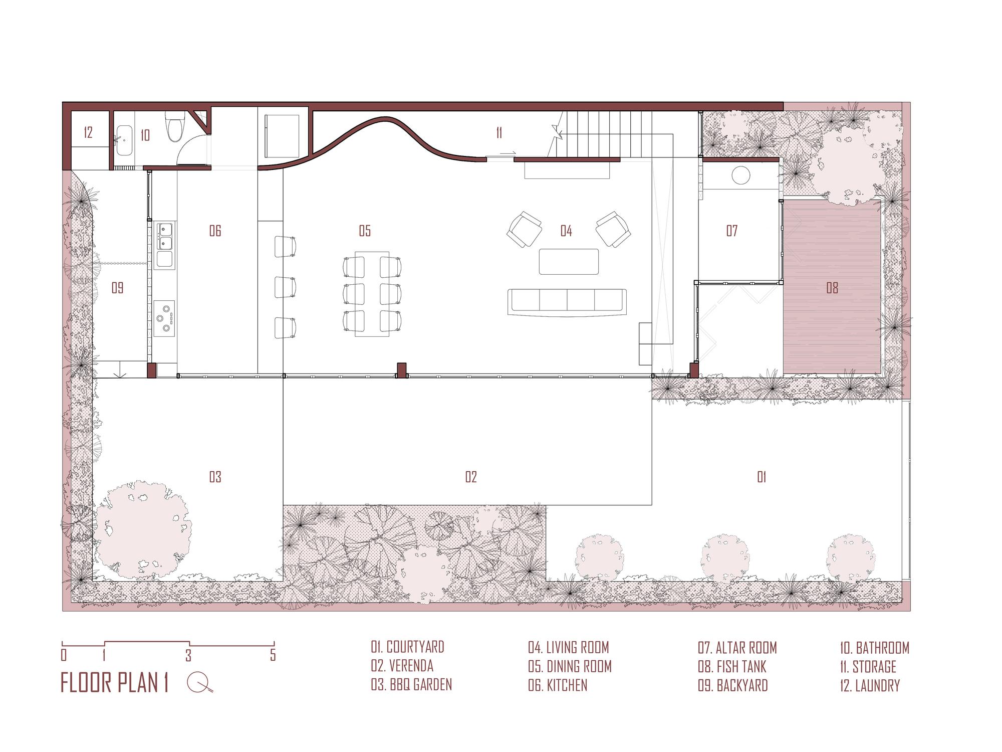
Kế hoạch - Tầng trệt


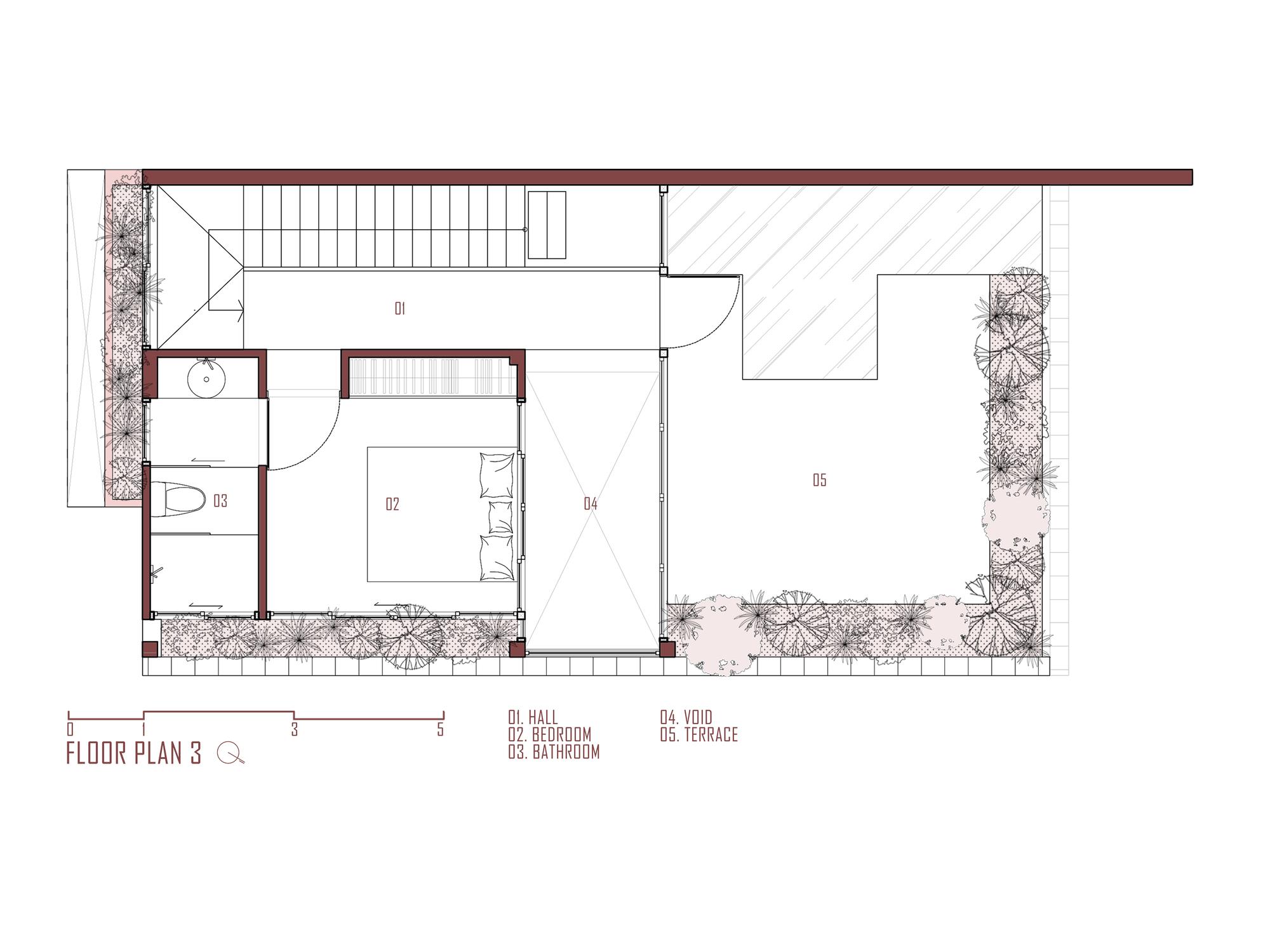
Kế hoạch - Tầng 1

Kiến trúc nhiệt đới đương đại - Ngôi nhà là cách tiếp cận kiến trúc nhiệt đới đương đại tiếp nối từ nền tảng kiến trúc nhiệt đới bản địa truyền thống trong bối cảnh mới của môi trường đô thị, vật chất và văn hóa sống của con người hiện đại. Chúng tôi sử dụng những khoảng không gian lớn để tự do sắp xếp nội thất, sự kết nối giữa các thành viên trong nhà, sự kết nối giữa con người với ánh sáng tự nhiên và thiên nhiên từ bên ngoài và bên trong. Các không gian về chiều cao và không gian trải rộng trên mặt bằng cho phép đối lưu không khí và thông gió tự nhiên tối đa trong môi trường nhiệt đới ẩm, thông qua hệ thống lam gió và các ô cửa mở tối đa.

Song song với việc thông gió, các giải pháp là giải pháp hạn chế bức xạ nhiệt mặt trời khi mặt tiền của ngôi nhà chịu tác động trực tiếp của bức xạ nhiệt quanh năm. Thiết kế sử dụng giàn leo 3d cách điệu từ chi tiết lam chắn nắng trong nhà truyền thống, tạo thành khung giàn cho cây dây leo phát triển như một tấm rèm cây xanh. Vật liệu được lựa chọn để xây dựng phổ biến trên thị trường kết hợp với vật liệu tự nhiên sẵn có tại địa phương như gỗ, đá tự nhiên, hoặc vật liệu thủ công như đá mài.

Mặt dựng

Chúng tôi rất vui và hạnh phúc khi nhận được những dòng chia sẻ rất rõ ràng từ bé Bo, con gái nhỏ của ông bà chủ nhà. Chân thành chia sẻ một trích đoạn nhỏ trong bức thư: “Ngôi nhà nơi chúng tôi đang ở đã mất một năm để hoàn thành. Tôi và gia đình đang tận hưởng một cuộc sống rất yên bình và nhẹ nhàng, tránh xa những xô bồ, ồn ào của thành phố.

Ngôi nhà này là một kỳ quan về kiến trúc. Đây là công trình kiến trúc nhiệt đới mà bố mẹ tôi đã tặng cho tôi, chị gái và chú chó nhỏ của tôi sau nhiều năm làm việc chăm chỉ. Chỉ cần đứng ngoài nhìn vào, ai cũng có thể biết được ngôi nhà này "xanh" đến mức nào. Phòng khách liên thông với phòng ăn và bếp cùng với ánh đèn vàng dịu nhẹ chiếu vào phòng vào mỗi buổi sáng tạo chiều sâu và sự ấm cúng. Căn bếp là nơi yêu thích của mẹ, tôi, chị tôi và cả chú chó tinh nghịch tên Mon.

Bước lên tầng 2 là phòng ngủ của gia đình tôi. Hai phòng ngủ của bố mẹ và chị em chúng tôi được thông nhau bằng lối đi ở giữa để gắn kết từng thành viên trong gia đình. Mỗi sáng sớm khi những tia nắng chiếu vào phòng, tôi thức dậy và sẵn sàng bắt đầu một ngày mới. Đầu tiên, tôi sẽ tưới vườn ở hành lang giữa hai phòng và vườn trên sân thượng. Sau đó, tôi sẽ dọn dẹp nhà cửa và cuối cùng là xuống nhà ăn sáng cùng gia đình thân yêu trong ngôi nhà mà trước đây tôi hằng mơ ước. Tôi thực sự dành tình cảm đặc biệt cho nơi mình đang sống và tin chắc rằng đây sẽ là ngôi nhà mang đến cho tôi một tuổi thơ trọn vẹn nhất, hạnh phúc nhất ”.

