Ngôi nhà tổ nổi
Thông tin dự án
Nhà ở , Nội thất trong nhà Việt Nam
• • Diện tích: 192 m²
• • Năm: Năm 2020
• • Hình ảnh: Quang Đạm
Nhà sản xuất: AutoDesk , Jotun , LG Electronics , Philips , Rhino

Hình ảnh thuộc bảng quyền của chủ đầu tư, chỉ sử dụng cho mục đích nghiên cứu tham khảo, không sử dụng cho mục đích thương mại xây nhà tương tự. Cảm ơn.
Ngôi nhà tổ nổi

© Quang Đàm
Mô tả văn bản do các kiến trúc sư cung cấp. Floating Nest, cũng giống như nhiều ngôi nhà ống khác ở Sài Gòn, tọa lạc trên một lô đất hẹp (4x12m) trong khu dân cư đông đúc của thành phố, bị các công trình lân cận chắn 3 mặt, chỉ có một mặt hướng ra bên ngoài, chưa về hướng. phía tây. Đến với NgNg, cô chủ đam mê làm vườn mong muốn hơn hết là một không gian thoáng đãng, thư thái sau một ngày làm việc mệt mỏi, với những mảng xanh dồi dào để thỏa mãn sở thích về quê.

© Quang Đàm

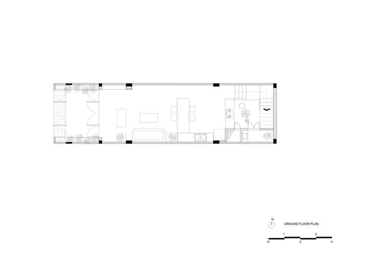
Sơ đồ tầng trệt

© Quang Đàm
Để giải quyết những hạn chế nêu trên, đồng thời tăng cường chiếu sáng và thông gió tự nhiên, chúng tôi quyết định lược bỏ tường ngăn trong nhà, sử dụng "cây xanh" và "khoảng trống" để phân tách các không gian chức năng. Có ba khoảng trống lớn: vườn trước và vườn sau, kéo dài cả ba tầng, ngăn cách giữa đường và nhà; giếng ánh sáng trung tâm, xuyên suốt hai tầng trên, ngăn cách cơ quan gia chủ với khu nghỉ ngơi, sân vườn với nơi thờ tự.

© Quang Đàm
Những khu vườn nhỏ được sử dụng tương tự để ngăn cách nội thất và ngoại thất; nhà vệ sinh và phòng ngủ hoặc nhà bếp; các phòng ngủ và cầu thang. Giải pháp này tạo ra sự chuyển đổi không gian suôn sẻ trong khi đảm bảo tất cả các không gian chức năng đều tiếp xúc với thiên nhiên.

© Quang Đàm
Vật liệu sử dụng là sự kết hợp giữa đương đại và truyền thống, gợi nhớ đến không gian làng quê Việt Nam: tre, gỗ, kết hợp kính, sắt. Tre là nguyên liệu tự nhiên rất dồi dào tại địa phương, vừa thân thiện với môi trường vừa mang lại hiệu quả kinh tế. Những bức bình phong tre chạy dọc theo chiều dài của mặt tiền - “bức tường mây” trong kiến trúc truyền thống ở nông thôn Việt Nam, bảo vệ toàn bộ ngôi nhà khỏi ánh nắng gay gắt của phương Tây và duy trì độ riêng tư cao.

© Quang Đàm

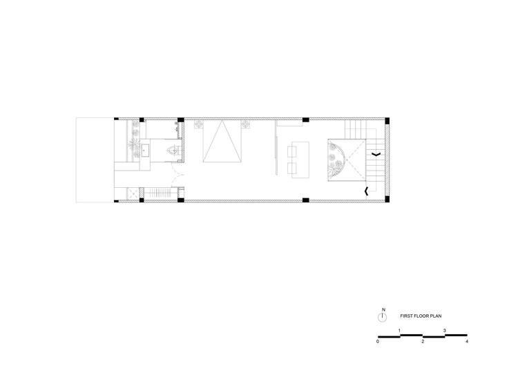
Sơ đồ tầng một

© Quang Đàm
Bên cạnh đó, các nan tre đan cho phép thông gió tự nhiên. Tấm mành tre này cuộn lại để che nắng cho sân thượng. Thanh chắn gió bằng sắt CNC với những hình cắt lá, một phiên bản cách điệu của tấm chắn gió truyền thống (bình phong), có chức năng như một thiết bị đối lưu ánh sáng và không khí. Sắt CNC còn được dùng làm lam che nắng ban công, cửa cổng ra vào. Chúng hoàn toàn tạo ra cảm giác ngôi nhà như một tổng thể mở, kết nối. Trần tre ở giếng trời sân sau, ngay cầu thang, được tạo nên từ những thanh tre thẳng đứng. Điều này cho phép kết nối trực quan với mặt tiền đồng thời đóng vai trò che nắng. Nó cũng cho phép ánh sáng đi qua, không chỉ tạo ra những bóng râm thú vị mà còn tạo ra những âm thanh vui tai như chuông gió treo trong vườn.

© Quang Đàm
Sắt tấm mỏng được sử dụng cho các cấu kiện kiến trúc thường được xây dựng bằng bê tông như cầu thang, chậu cây, ban công, lam che nắng nhằm giảm trọng lượng kết cấu. Hơn nữa, chúng được thiết kế để trông giống như được treo tự do trên không trung. Vật liệu này cũng được sử dụng làm bối cảnh cho khu vực thay thế, thờ cúng - không gian quan trọng nhất trong ngôi nhà, kéo dài xuống tầng dưới và trở thành không gian thiền định.

Độ cao

© Quang Đàm
Những chiến lược khác biệt này khiến toàn bộ ngôi nhà có cảm giác nhẹ nhàng, như đang lơ lửng trong một không gian xanh rộng lớn và ngập tràn ánh sáng. Khi mặt trời lặn, ánh sáng từ trong nhà chiếu qua những kẽ hở giữa những lũy tre và những vết cắt trên vách sắt khiến ngôi nhà như một chiếc đèn lồng giữa xóm.

© Quang Đàm
