Ngôi nhà tổ ấm nhà nông
Thông tin dự án
- Location Mạo Khê, Vietnam
- Category Houses
- Design Team Doan Thanh Ha , Tran Ngoc Phuong, Nguyen Hai Hue, Trinh Thi Thanh Huyen, Nguyen Duc Anh, Ho Manh Cuong
- Area 75.0 m2
- Project Year 2018
- Photographs Nguyen TienThanh
- Manufacturers Viglacera
Ngôi nhà tổ ấm nhà nông
Mô tả văn bản được cung cấp bởi các kiến trúc sư. 75% dân số Việt Nam hiện đang sống chủ yếu bằng sản xuất nông nghiệp ở nông thôn; tuy nhiên, quá trình công nghiệp hóa và đô thị hóa nhanh chóng trong 20 năm qua đã dẫn đến việc mất hàng triệu ha đất nông nghiệp, khiến gần ba triệu công nhân thất nghiệp. Trong khi đó, dân số của đất nước đã tăng hơn 15 triệu người, dẫn đến nhu cầu nhà ở cao. Điều này sau đó đã kéo theo những làn sóng xây dựng và lấn chiếm đất đai rộng lớn ở khu vực nông thôn và từ các cộng đồng dễ bị tổn thương khác. Do đó, môi trường sống và môi trường sống tự nhiên ở những khu vực này đã bị ô nhiễm và suy yếu nghiêm trọng, do đó dần dần phá vỡ mối quan hệ giữa Con người và Con người và giữa Con người và Thiên nhiên trong bối cảnh biến đổi khí hậu ngày càng nghiêm trọng.

Tình trạng hiện tại
Do đó, mục tiêu của dự án là xây dựng một ngôi nhà giúp thúc đẩy Nông nghiệp, đồng thời tạo việc làm cho cư dân địa phương.

DUNG DỊCH
Ngôi nhà được đề xuất giống như một khối đất được cắt ra từ một cánh đồng. Bên trong khối này là nhiều ngóc ngách của tổ được kết nối với một phần của cánh đồng trên mái nhà.

Quy hoạch tổng thể

Bước 1
Được đặt tên là AgriNesture (Nông nghiệp + Nesture), ngôi nhà bao gồm hai phần chính: Khung và Bìa có thể được sử dụng ở nhiều khu vực dễ bị tổn thương khác nhau như khu vực nông thôn, vùng bị ngập lụt và khu tái định cư thu nhập thấp. Các cụm của những ngôi nhà này được sắp xếp theo nhiều cách khác nhau, tạo ra một khu vực dân cư yên bình đặc trưng với Không gian cho tất cả. AgriNesture cũng có thể được sử dụng làm Nhà cho tất cả các dịch vụ Giáo dục, Sức khỏe, Cộng đồng, v.v.

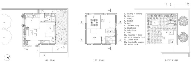
Hai tầng cốt thép (bao gồm móng, cột, sàn, mái, cầu thang) được làm bằng bê tông cốt thép có giá 150 triệu đồng (tương đương 6.500 USD). Trong trường hợp mở rộng diện tích sử dụng, có thể sử dụng các không gian trống có sẵn hoặc tầng thứ ba có thể được xây dựng thành một ngôi nhà ba tầng. Mái che (bao gồm tường, cửa, vách ngăn) sẽ được hoàn thành phù hợp với các khu vực khác nhau với các vật liệu thân thiện có sẵn ở các địa phương như dây leo, đất nung, gạch, v.v ... Mái nhà là nơi dành cho Nông nghiệp, nơi có hệ thống thu gom nước mưa và việc sử dụng cũng như tái sử dụng nước được đặc biệt chú ý.

Sơ đồ
Người dùng sẽ trực tiếp tham gia vào quá trình xây dựng ngôi nhà và họ sẽ chủ động phân chia các không gian theo nhu cầu của riêng họ. Ngoài ra, họ cũng là những người sản xuất vật liệu che phù hợp với điều kiện địa phương của họ. Theo nghĩa này, quá trình xây dựng sẽ giúp tạo ra việc làm và định hình các ngôi nhà thúc đẩy phát triển Nông nghiệp và mang lại sự cân bằng sinh thái cũng như sự ổn định kinh tế cho người dân ở các khu vực dễ bị tổn thương.

Do đó, AgriNesture sẽ là nơi hội tụ, tương tác và thích ứng của nhiều sự tương phản cục bộ khác nhau (tự nhiên so với nhân tạo, cư trú so với nông nghiệp, cá nhân so với cộng đồng, v.v.), do đó cho phép nó không chỉ là Vật lý không gian nhưng cũng là một nơi thực sự của con người.

