Ngôi nhà hướng nội Tứ Liên
Thông tin dự án
- Ngôi nhà Tứ Liên
- Diện tích 7x18
- Kỹ thuật: Sơn Chu
- Nội thất / 3 D Rendering: Hieu Hoang
- Façade / Người mẫu: Hoàng Nguyên
- Nghiên cứu bố cục / Người mẫu: Hải Đào
- Kết cấu: Cường Vũ
- Giám sát công trường: Dương Vũ
- Kiến trúc sư phụ trách: Hưng Đạo
- Mặt tiền & Người mẫu: Hoàng Nguyên
Ngôi nhà hướng nội Tứ Liên
Đội ngũ thiết kế cùng với chủ sở hữu (trẻ và người đàn ông độc thân) đã phác thảo cho dự án này với các tiêu chí sau:
- Tiết kiệm năng lượng
- Tạo không gian hấp dẫn, cởi mở nhưng vẫn riêng tư và an toàn
- Sử dụng vật liệu địa phương
- Tính linh hoạt trong sử dụng
.jpg)
Khi phân tích các đặc điểm của khu vực, "không gian sống hướng nội" đã nhanh chóng được quyết định để phát triển cấu trúc không gian và cách bố trí.
.jpg)
.jpg)
Ngôi nhà hướng về phía đông nam rộng 7m. Hơn nữa, khoảng cách giữa các ngôi nhà tiếp theo là khá hạn chế (một ít hơn 5m). Hai yếu tố này dường như được thử thách với nhiệm vụ thiết kế.
.jpg)
Mặt tiền được xử lý bằng cách sử dụng một hệ thống vây thép thẳng đứng kết hợp với dày 3mm thép lá. Mật độ cũng như sự can thiệp của sóng hai chiều của lá thép phụ thuộc vào mục đích riêng tư của căn phòng bên trong. Toàn bộ mặt tiền bằng kính được đưa vào bên trong để tạo không gian đệm để tránh ánh sáng mặt trời trực tiếp vào mùa hè nhưng cho phép ánh nắng mặt trời mùa đông đi sâu vào không gian.
.jpg)
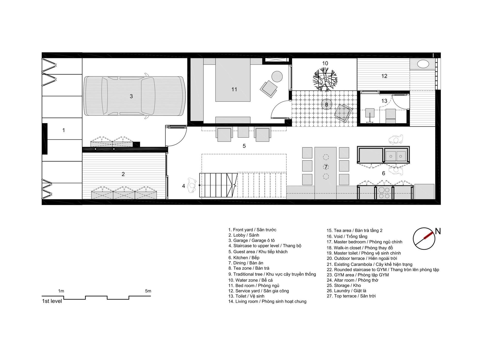
Không gian phòng ngủ chính được kết nối với phòng tập thể dục trên tầng ba bằng cầu thang bằng thép hình tròn, nằm ngoài trời với khu vườn. Tất cả làm cho một số lượng lớn của 343m3 (7x7x7). Cây ăn quả sao già được giữ bởi chủ sở hữu kể từ ngôi nhà cũ của họ. Sau khi ngôi nhà được hoàn thành, cây ăn quả sao sẽ được đưa trở lại và trồng trong vườn trên tầng hai như một vật lưu niệm.
.jpg)
Với vị trí đặc biệt trong khu vực dành cho các cây truyền thống như Peach và Kumquat, nhóm thiết kế đã lưu khu vực trung tâm của ngôi nhà cho những cây này. Cùng với bể cá, chúng tạo nên một không gian thú vị và thư giãn.
.jpg)
Bê tông không nung, gạch men, gạch ốp lát bằng sứ và gỗ nguyên liệu cho đồ nội thất là những vật liệu chính được khai thác trong suốt dự án. Tất cả chúng đều kinh tế nhưng được xử lý cẩn thận và phù hợp với chức năng của chúng, mang lại làn gió mới cho các vật liệu thông thường.
.jpg)
Tóm lại, nhóm thiết kế đã cung cấp cho chủ nhà một không gian riêng biệt, thỏa mãn những yêu cầu ban đầu và đóng góp thêm một giải pháp cho cảnh nhà ở đô thị ở Việt Nam hiện nay khá nhàm chán và lộn xộn.
.jpg)
