Ngôi nhà biển homEstay
Thông tin dự án
Nhà ở, Nội thất nhà ở Vũng Tàu, Việt Nam
• • Diện tích: 450 m²
• • Năm: 2018
• • Hình ảnh: Triệu Chiến
• • Nhà sản xuất: AutoDesk , Dulux , Panasonic , Toto , Adobe Systems Incorporated , Quan Dat , Trimble Navigation , hafale
Kiến trúc sư trưởng: Lê Thanh Tùng
• Nhóm thiết kế: Lê Thanh Tùng, Đặng Thy Mây

Hình ảnh thuộc bảng quyền của chủ đầu tư, chỉ sử dụng cho mục đích nghiên cứu tham khảo, không sử dụng cho mục đích thương mại xây nhà tương tự. Cảm ơn.
Ngôi nhà biển homEstay

Mô tả văn bản do các kiến trúc sư cung cấp. Tọa lạc tại một ngôi làng ven biển nhỏ và yên bình ở Vũng Tàu , Việt Nam, ngôi nhà này được thiết kế cho một gia đình 3 thành viên rời thành phố bận rộn để sinh sống và bắt đầu kinh doanh homestay. Nhờ thiết kế tối giản và cắt giảm những vật dụng không cần thiết, ngôi nhà tạo ra nguồn năng lượng sống nhẹ nhàng khiến chủ nhà hướng về thiên nhiên hoàn toàn.

© Triều Chiến

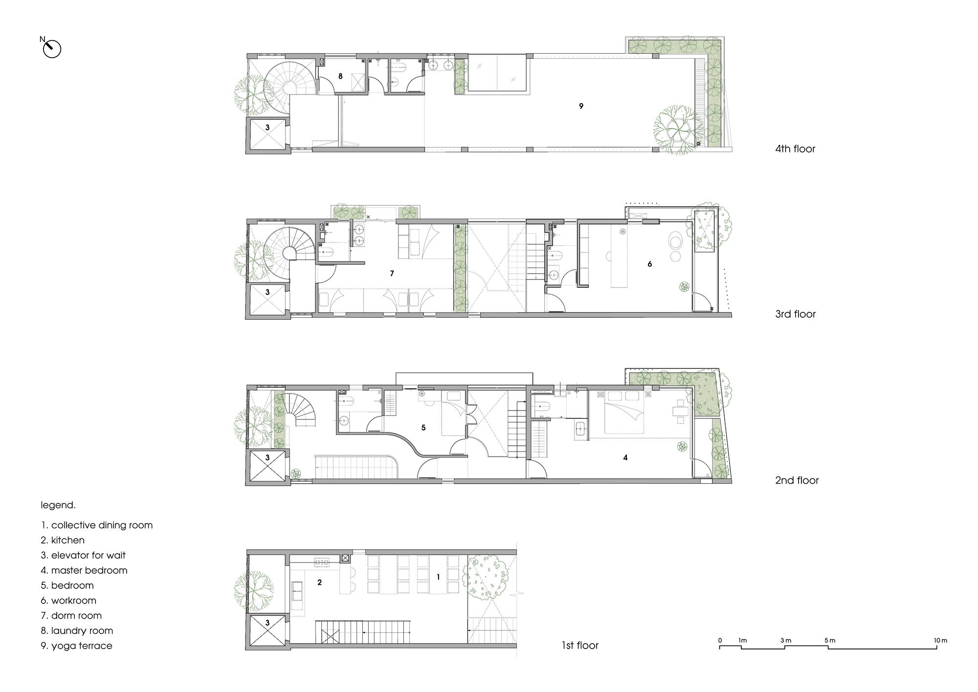
Các kế hoạch

© Triều Chiến

© Triều Chiến
Chiến lược tách tòa nhà thành hai phần với giếng trời và không gian xanh ở trung tâm trong khi tầng trệt được mở hoàn toàn. hạn chế do nhà phố dài và hẹp. Nó cũng cung cấp tầm nhìn thoáng đãng từ các phòng ngủ tập trung xung quanh giếng trời này bao quanh qua một bức tường kính khổng lồ bên cạnh không gian xanh trung tâm, từ đó kết nối cuộc sống trong nhà với cuộc sống ven biển ngoài trời một cách tự nhiên.

© Triều Chiến
Phòng bếp và phòng ăn được bố trí ở tầng lửng để tạo sự riêng tư cho các khu vực này và cho phép mọi người trải nghiệm tầm nhìn tuyệt đẹp ra biển thông qua khoảng trống thể tích gấp đôi và tường & cửa kính cao hết cỡ ở phía trước. Phòng khách ở tầng trệt được tạo thành mặt tiền. Sân tràn ngập cây xanh và ánh sáng, nhằm mục đích mang lại phong cách sống truyền thống của người Việt trong một ngôi nhà hiện đại.

© Triều Chiến
Bên cạnh đó, việc sử dụng chủ yếu vật liệu tự nhiên của địa phương tạo nên sự liên kết chặt chẽ giữa công trình và khu vực, tạo tiền đề cho cuộc sống thân thiện và bền vững.

© Triều Chiến
