Ngôi nhà 8x24 xanh mát
Thông tin dự án
Ngôi nhà Ngọc Thụy, Việt Nam
• • Năm: 2019
• • Hình ảnh: Triệu Chiến
• • Các nhà sản xuất: ACCW , Flexfit & Gia Long , Gia Long , NNM & Q , Vietbeton
Kiến trúc sư trưởng: Nguyễn Mạnh Hùng
Nhà thầu: ACCW , Gia Long , Trọng Hà , Flexfit , BTB , Vietbeton

Hình ảnh thuộc bảng quyền của chủ đầu tư, chỉ sử dụng cho mục đích nghiên cứu tham khảo, không sử dụng cho mục đích thương mại xây nhà tương tự. Cảm ơn.
Ngôi nhà 8x24 xanh mát

Mô tả văn bản do các kiến trúc sư cung cấp. Thiết kế của 8x24house được tiếp cận theo cách đơn giản nhất, cơ bản nhất, khoa học nhất để mang đến giải pháp cho một không gian sống hướng nội, hoàn toàn mở với thiên nhiên và tập trung khai thác trải nghiệm mạnh mẽ về không gian và ánh sáng - đúng như những gì Khách hàng đã đề cập. mong muốn của họ đối với HT. 8x24house được tạo nên bởi sự bố trí 4 khối chức năng được tính toán thể tích (LxWxH) phù hợp với công năng sử dụng và hình thành 3 thước từ sự dịch chuyển của các khối đó trong diện tích xây dựng cho phép.

© Triều Chiến
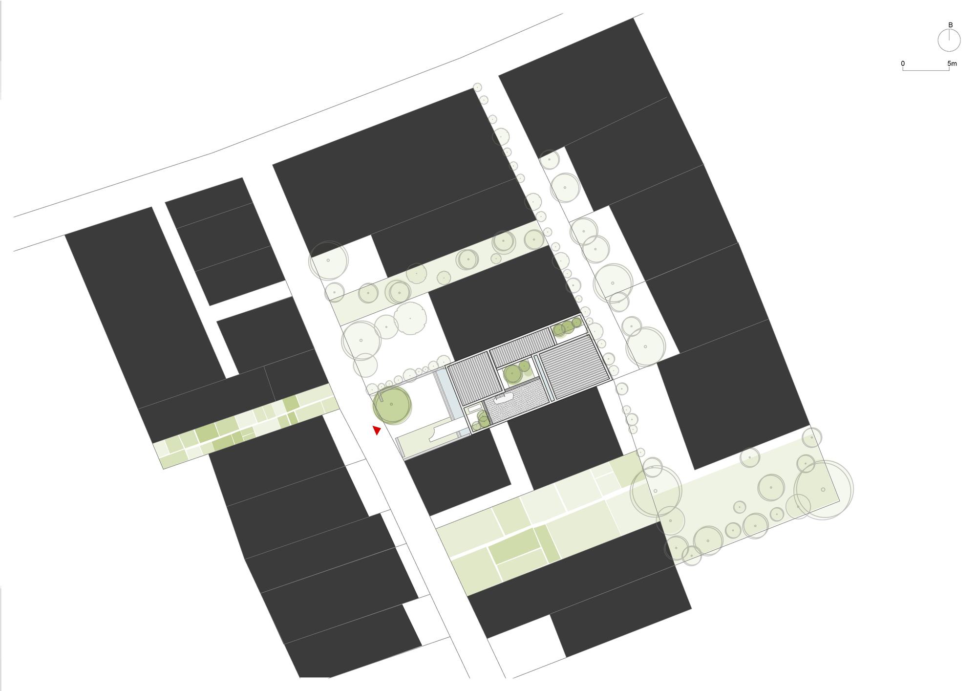
Sân1: bố trí theo lối thông thường (dọc theo trục dài của khu đất) một góc 90 độ, từ đó đặt cửa chính vừa kín đáo, tinh tế, vừa tránh được ánh nắng trực tiếp của hướng Tây. Sân 2: Sân trung tâm với chức năng phân chia ánh sáng, gió cho 4 chức năng bám vào đó là: khách - hành lang - bếp - phòng làm việc. Sân3: sân cảnh quan, thông gió khu bếp, phòng vệ sinh chính và phòng ngủ chính theo trục đứng

Tre xuất hiện ở cả 3 khoảng sân góp phần tạo mảng xanh và những đường nét khỏe khoắn, giản dị của thân tre vào tổng thể kiến trúc của 8x24house. 4 khối công năng và 3 khoảng sân được gói gọn trong hệ thống tường bao cao 9m tối giản với các ô cửa sổ được tính toán kỹ lưỡng, kiểm soát góc nhìn và giảm thiểu ánh nắng trực tiếp từ hướng Tây cho toàn bộ mặt tiền.

© Triều Chiến
Điều thú vị khi tham quan địa điểm là hệ thống leo tự nhiên của những cây dây leo xoắn ốc trên bức tường chu vi đã có từ lâu đời. Ngay lập tức, hệ thống viền xanh này đã được nghiên cứu để giữ lại, chăm sóc, bảo vệ trong quá trình xây dựng và đã góp phần quan trọng tạo nên cảm xúc trên hành lang bê tông thô ráp dẫn vào nhà.

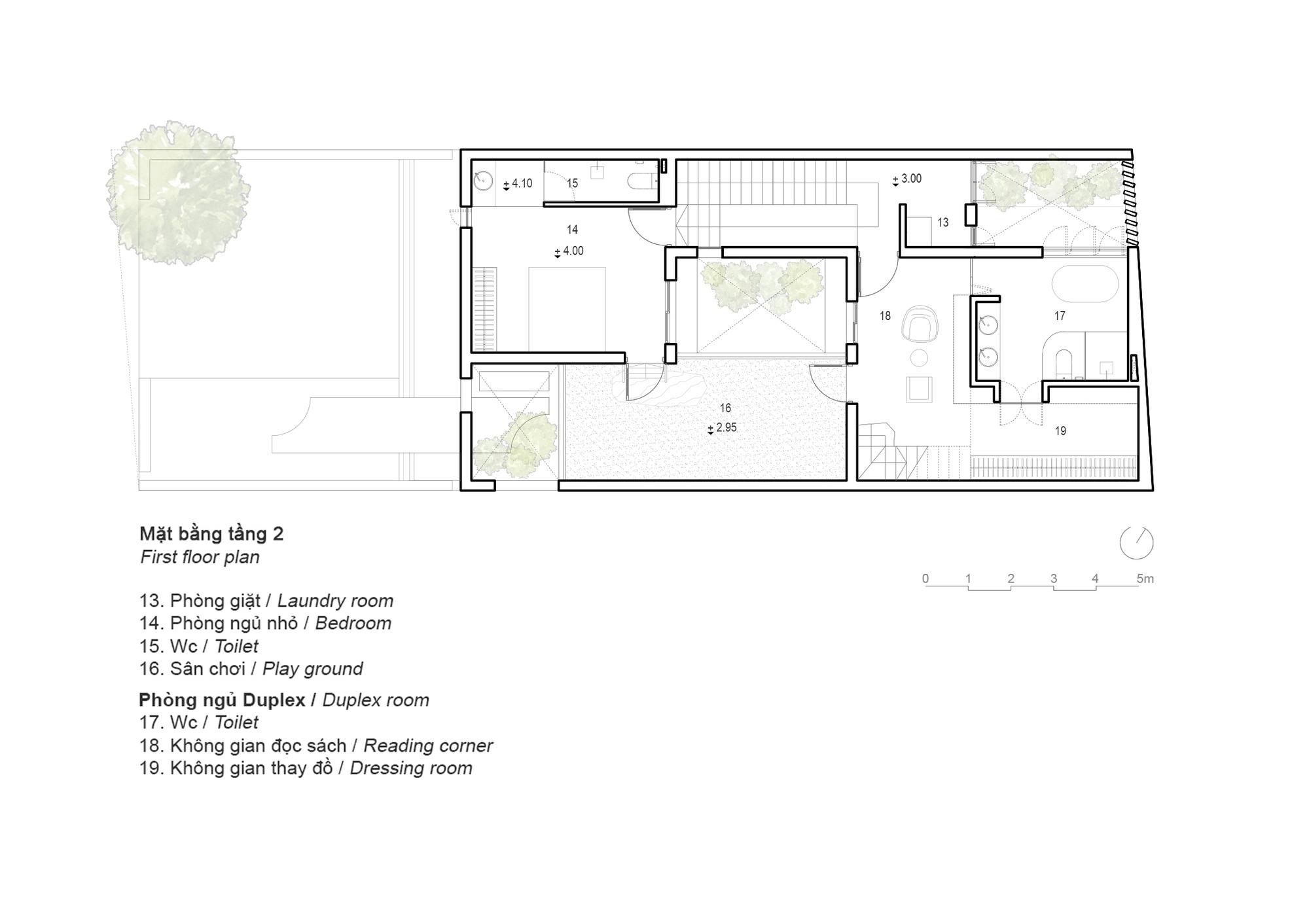
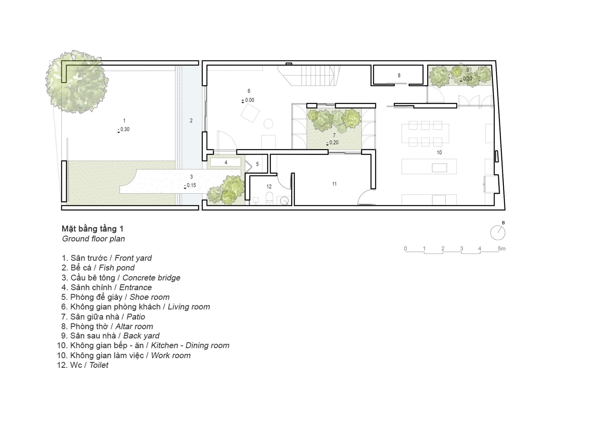
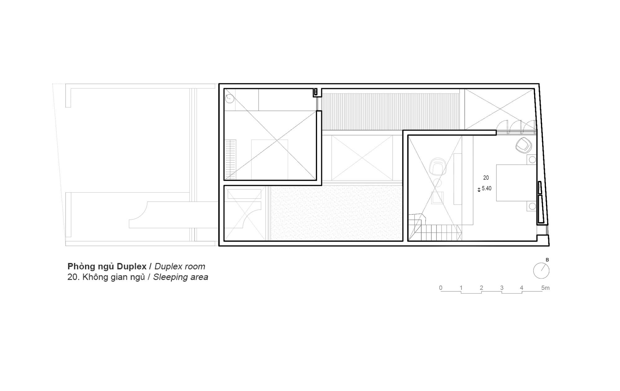
Sơ đồ tầng một


Tiết diện
Như thường lệ, các kiến trúc sư của văn phòng ngoài việc vẽ và làm mẫu, họ còn theo sát công trình trong suốt quá trình thi công để đảm bảo công trình có thể hoàn thành tối đa theo thiết kế mong muốn. Đa số là đội ngũ kiến trúc viên trẻ, đôi khi là công trường thực tế đầu tiên, thiếu kinh nghiệm… Tuy nhiên, sự nỗ lực, chăm chỉ và lòng quyết tâm của tuổi trẻ chính là yếu tố bù đắp và chặng đường 10 tháng xây dựng 8x24house là một nỗ lực rất lớn hay arhchitect Nguyễn Mạnh Hùng và nhà thầu.

