Mẫu Nhà không gian nhiệt đới
Thông tin dự án
- Ngôi nhà Sơn Trà, Việt Nam
- Khu vực : 49 m²
- Năm : 2017
- Ảnh: Quang Đạm
- Kiến trúc sư phụ trách: Lê Vinh, Nguyễn Cường, Sơn Trần
Mẫu Nhà không gian nhiệt đới
Ngôi nhà 7x7 được lấy cảm hứng và tạo ra từ ý tưởng của một không gian nhiệt đới, nơi khí hậu khá nghiêm trọng theo cách thay đổi đáng kể giữa mùa nắng và mùa mưa.Thành phố này cũng bị ảnh hưởng bởi rất nhiều cơn bão nhiệt đới mỗi năm. Bên cạnh đó, người dân địa phương, cũng như lối sống của họ, bị ảnh hưởng bởi tôn giáo chính của họ, được gọi là Phật giáo. Do đó, họ sống một cuộc sống cởi mở và thân thiện.

Ngôi nhà này, nơi mà kiến trúc sư tự lấy cảm hứng từ không gian khiêm tốn zen và từ một số ngôi nhà nhỏ ở vùng nông thôn ven biển miền Trung Việt Nam, được xây dựng cho một người phụ nữ độc thân. Nó được yêu cầu rằng ngôi nhà này nên là một không gian có thể tạo ra một không gian liên kết đầy thân thiện, gần gũi và linh hoạt.

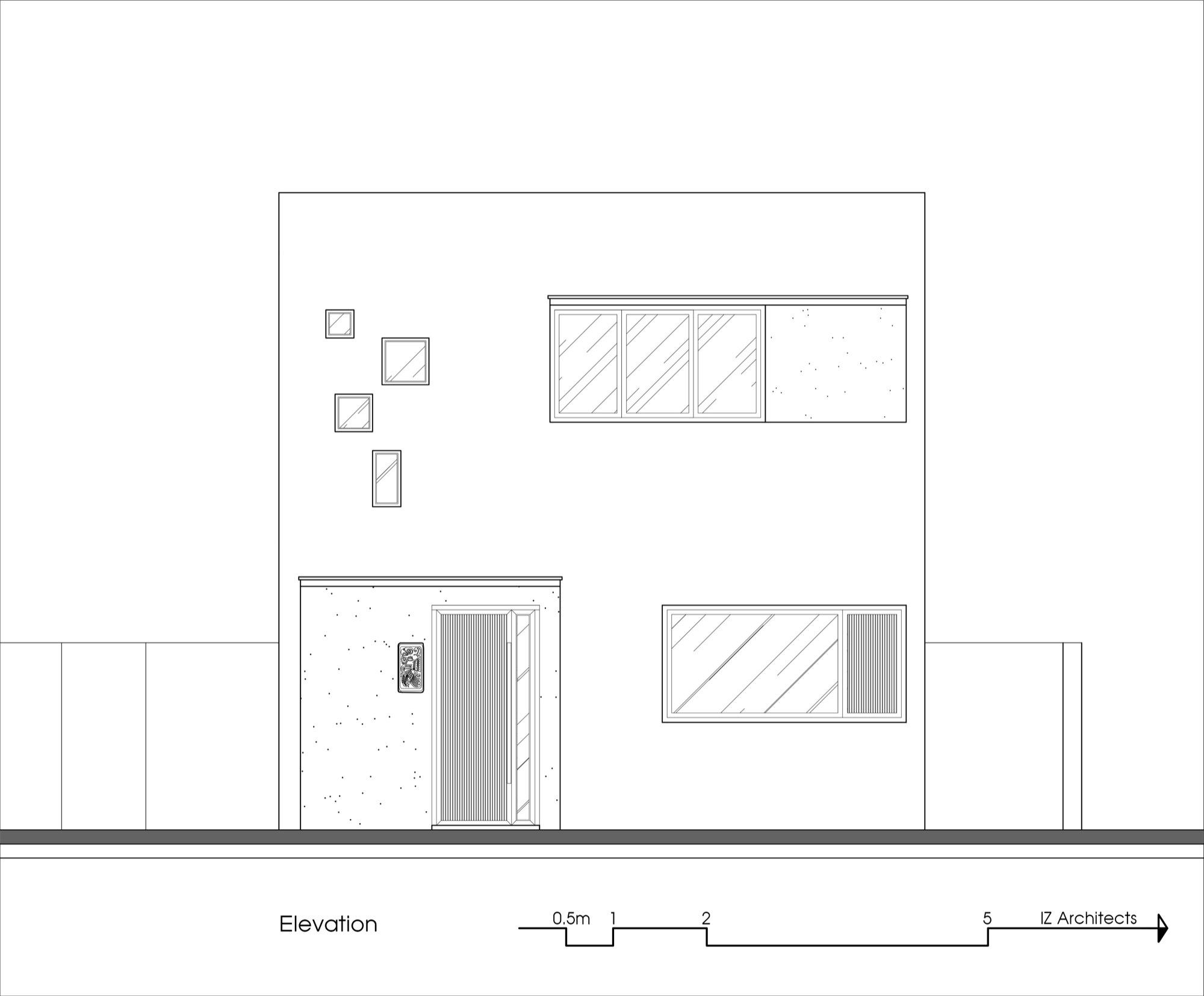
Vấn đề khí hậu đã được xem xét ngay từ đầu. Vì khu vực trang web cực kỳ nhỏ cùng với ba mặt ẩn của ngôi nhà, kế hoạch được chia thành hai giếng ánh sáng cho phép gió và ánh sáng đến được tất cả các góc của ngôi nhà.

Sơ đồ tầng trệt
Cây xanh không thể bỏ qua vì chúng đóng một vai trò quan trọng trong việc làm nổi bật các lỗ sáng, giúp tạo cảm giác thư giãn và thoải mái trong ngôi nhà nhỏ như vậy. Tất cả các cây xanh trong nhà có thể giúp liên kết hai tầng để tất cả các thành viên trong gia đình có thể nhìn thấy và nói chuyện với nhau thông qua không gian mở và gần gũi này.

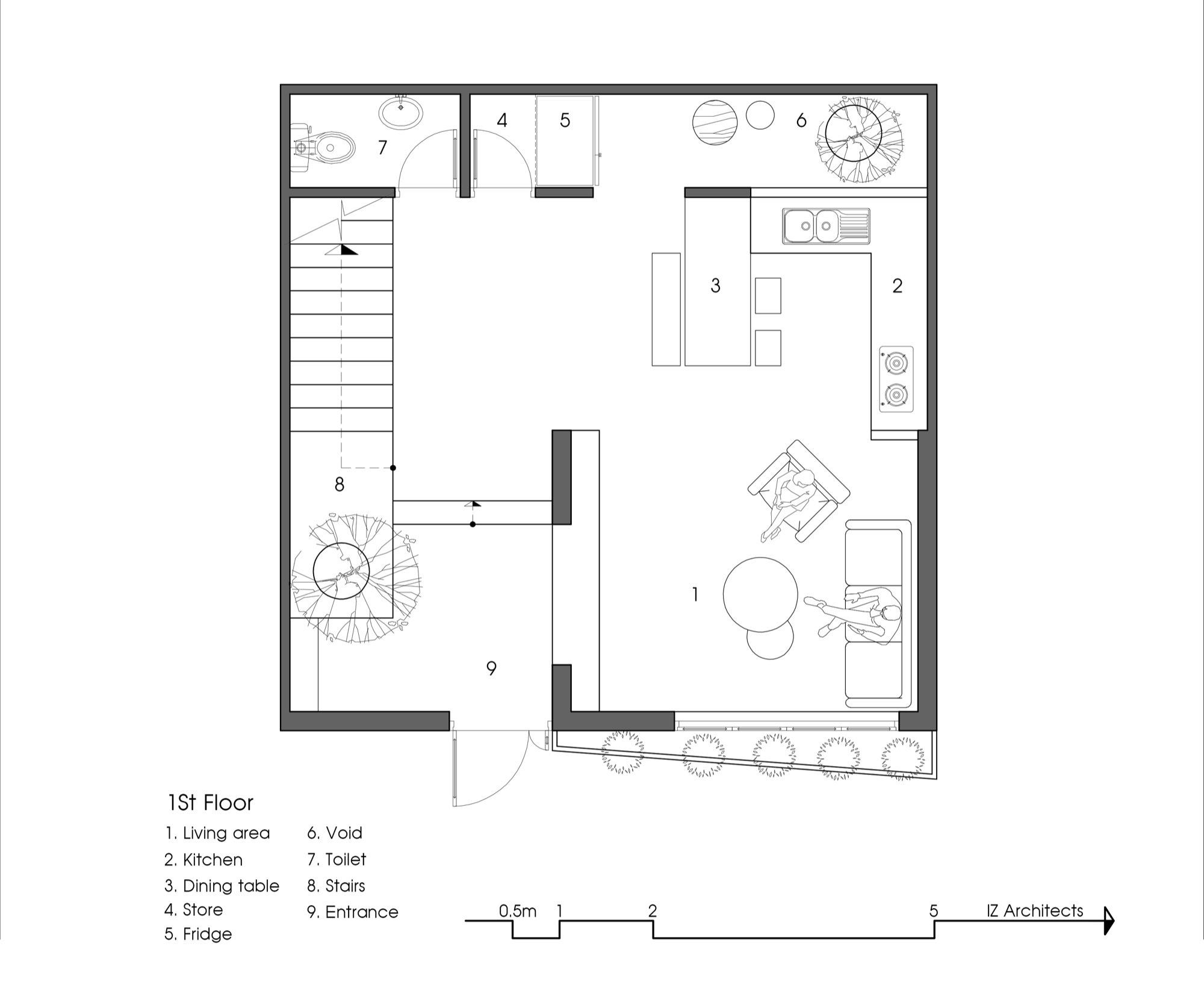
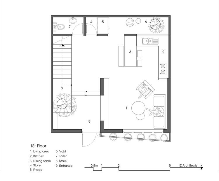
Kiến trúc sư đã thiết kế tầng đầu tiên với một không gian chia sẻ lớn, nơi một phòng khách, một quầy nấu ăn, một bàn ăn được tìm thấy, hạn chế hành lang và thêm không gian với số tiền tối đa.

Sơ đồ tầng một
Trong một từ, cả hai kiến trúc sư và chủ sở hữu của ngôi nhà mong muốn xây dựng một ngôi nhà hiệu quả, tiết kiệm năng lượng và thân thiện, mà sẽ tận dụng lợi thế của các tính năng tự nhiên của khu vực. Chúng tôi gọi nó là "Kiến trúc làm cho hạnh phúc".

