Mẫu nhà Không gian đệm 5x20
Thông tin dự án
Những ngôi Việt tt. Trâu Quỳ, Việt Nam
· · Diện tích: 100 m²
· · Năm: 2018
· · Hình ảnh: Lê Anh Đức
· Nhà sản xuất: Green space , BETONLAB , LAI WOOD , THẢO THÉP
Mẫu nhà Không gian đệm 5x20
Mô tả văn bản do các kiến trúc sư cung cấp. Dự án được xây dựng trên khu đất có diện tích 5mx20m, mặt thoáng.
Sau khi chừa một phần diện tích làm sân trước, sân sau theo quy hoạch của thành phố, phần diện tích xây dựng còn lại là 5mx12m, loại diện tích điển hình cho loại hình “nhà chia lô” ở Việt Nam.

Khi tiếp cận từ các không gian của nhà ở truyền thống, chúng tôi nhận thấy “vùng đệm” là không gian rất quan trọng mà nhiều ngôi nhà hiện đại ngày nay không còn giữ được nữa, đó là hiên, lô gia, sân giữa ...

Mô hình
Trong không gian này, một tác động đổi mới đã được mang lại bởi các yếu tố bên ngoài vào nội thất, điều này đã tích cực thúc đẩy sự chủ động kiểm soát tác động của người sử dụng.

© Lê Anh Đức
Do chiều rộng và chiều sâu hạn chế, cấu trúc của một phần nhà thường phát triển theo chiều cao.
Vì vậy, chúng tôi đặt các không gian đệm xen kẽ giữa các không gian riêng tư, hình thức và vị trí của chúng là khác nhau giữa các tầng. Trong trường hợp này, vùng đệm đóng vai trò là giao thông hoặc khu vực công cộng, nơi các thành viên trong gia đình sẽ kết nối với nhau nhiều hơn trong những không gian này.

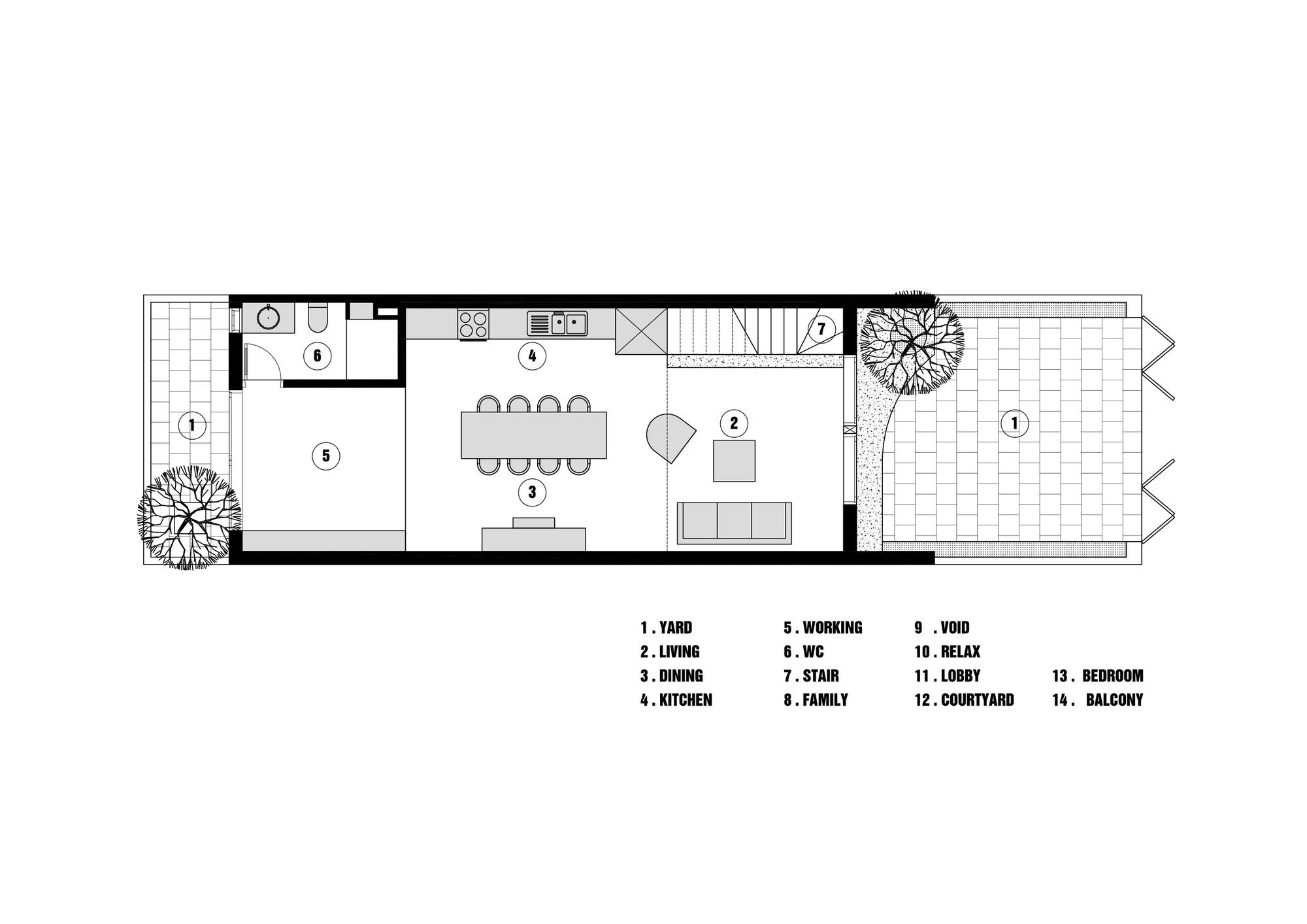
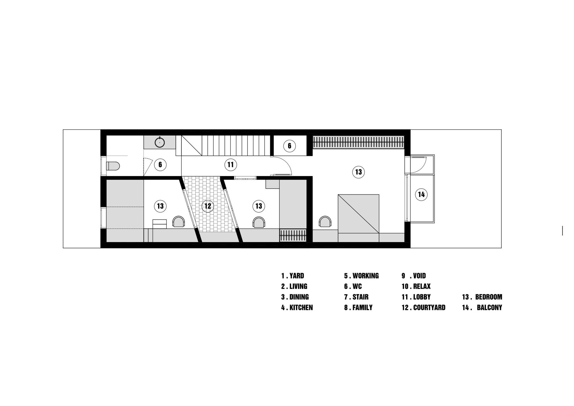
Kế hoạch

Kế hoạch

Kế hoạch
“Không gian đệm” giống như một chuỗi quan trọng liên kết giữa các không gian riêng tư và với cả ngoại thất.

Cuối cùng, chúng tôi kiểm soát các tác động của môi trường bên ngoài đến nội thất tại các không gian đệm này.

© Lê Anh Đức
Ánh sáng tự nhiên được đưa vào không gian đệm nhưng phải hạn chế hiệu ứng nhiệt vào sâu bên trong; lối vào gió được tạo ra trong khi lối ra cũng mở.

Kết quả là, không gian tĩnh, nhưng cơ thể bên trong của nó luôn chuyển động. Bên cạnh đó, chúng tôi luôn tìm kiếm các nguyên liệu tự nhiên trong các vùng đệm đó sao cho phù hợp với các yếu tố ngoại cảnh.

© Lê Anh Đức
Cuối cùng, bản thân sự kết hợp giữa vật liệu, ánh sáng và luồng gió xoáy đã tạo ra cảm giác tươi mới và thoải mái cho người sử dụng mà không cần bất kỳ vật trang trí nào.

