Tổ ấm Hon Xen House
Project Info
Ngôi nhà Nha Trang, Việt Nam
• Kiến trúc sư: + Architects
• • Diện tích: 120 m²
• • Năm: 2019
• • Hình ảnh: Quang Tran
• • Nhà sản xuất: INAX , Bạch Mã
• • Thi công: Công ty Định Tường

Ghi chú: Hình ảnh thuộc bảng quyền của chủ đầu tư, chỉ sử dụng cho mục đích nghiên cứu tham khảo, không sử dụng cho mục đích thương mại xây nhà tương tự. Cảm ơn.
Tổ ấm Hon Xen House

© Quang Tran
Mô tả văn bản do các kiến trúc sư cung cấp. Căn nhà nằm trong khu tái định cư mới Nha Trang , là thành phố biển với bãi cát trắng, nước trong xanh. Ngoài ra, Nha Trang được biết đến với nghề cá đóng vai trò quan trọng trong nền kinh tế Nha Trang sau du lịch, tuy nhiên, nơi đây đang phải đối mặt với những vấn đề của đất nước như mất nghề truyền thống do đô thị hóa ngày càng mạnh.

© Quang Tran

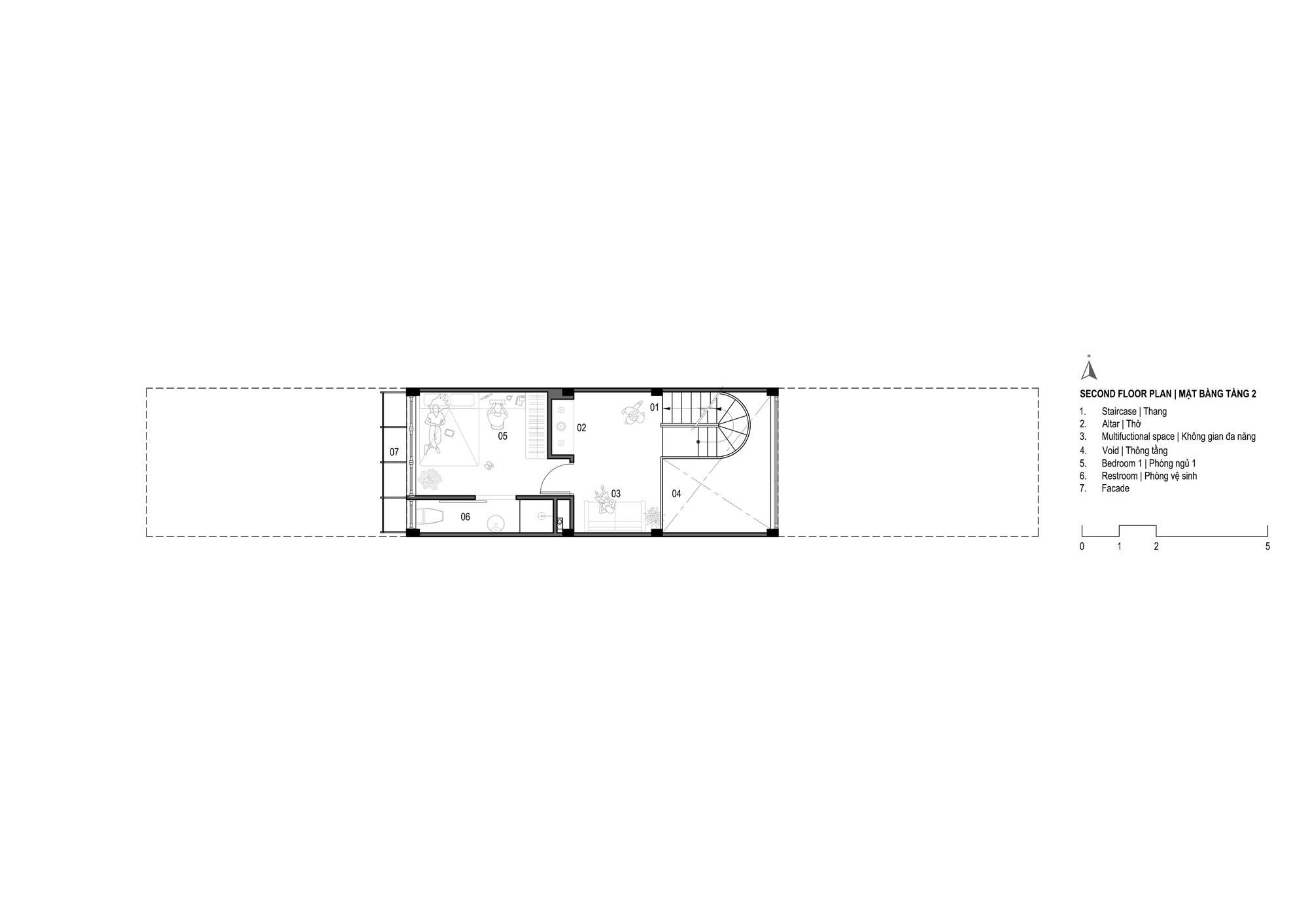
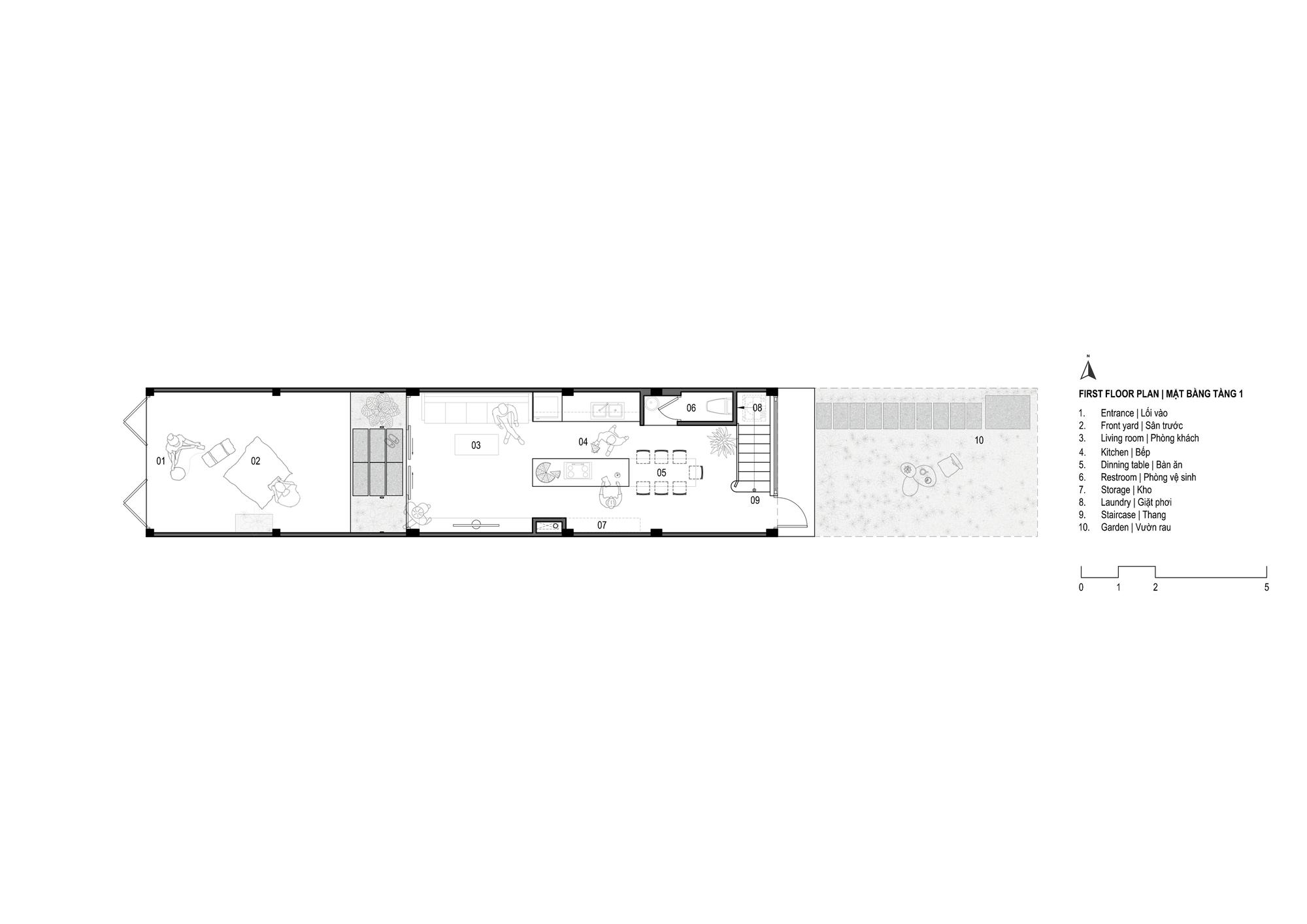
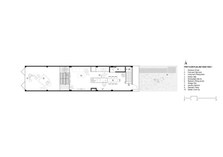
Sơ đồ tầng một

© Quang Tran
Ngày nay, các dự án bất động sản đã và đang xuất hiện ở hầu hết các thành phố của Việt Nam, và điều này sẽ dẫn đến việc chính phủ phải đền bù giải tỏa cho những người dân có số tiền nhỏ để tái định cư. Hơn nữa, việc chính quyền cho phép người dân xây dựng nhà tái định cư không theo công thức hay quy tắc nào nên hầu hết người dân đã tự ý xây nhà bằng những thùng bê tông lớn choán hết diện tích sử dụng, thậm chí lấn chiếm đất sử dụng. Kết quả là, hầu hết cư dân ở đây đang phải đối mặt với việc mất đi nghề cá vì không còn chỗ cho nó.

© Quang Tran
Ngược lại, Hon Xen House đã chọn một cách khác để giải quyết các thách thức và định hướng ngôi nhà theo cách có trách nhiệm với xã hội. Đầu tiên, chúng tôi đề xuất một ngôi nhà nhỏ tối ưu hóa các công năng cơ bản để chừa khoảng không gian cho sân trước và sân sau, nơi các thành viên trong gia đình hoạt động theo nghề truyền thống. Nó không chỉ thể hiện sự khiêm tốn với bối cảnh với mật độ thưa thớt mà còn tạo ra một nơi vui chơi cho các em nhỏ.

Tiết diện
Thứ hai, chúng tôi đề xuất một mặt tiền với cấu trúc linh hoạt để tránh ánh nắng từ phía Tây và người sử dụng có thể sửa đổi góc của nó. Mặt tiền linh hoạt bao gồm mười hai mô-đun với khung thép và cửa chớp bằng gỗ. Đặc thù của một ngôi nhà hướng Tây là không khí mát mẻ trong cả ngày, bởi gió Tây - Nam, một trong những luồng gió chính của Nha Trang , trừ buổi chiều khi ngôi nhà bị thiêu đốt. Mặt tiền tạo không gian đưa người sử dụng đến gần với ngôi nhà truyền thống Việt Nam với hàng hiên, phào chỉ mang tính biểu tượng.

© Quang Tran
Cuối cùng nhưng không kém phần quan trọng, ngân sách thấp cũng là một vấn đề đáng lo ngại với chi phí cuối cùng của ngôi nhà là khoảng 35.000 USD. Có hai giải pháp để giảm chi phí là sử dụng vật liệu tái chế và cho mượn không gian. Về phần hoàn thiện, chúng tôi chọn sử dụng chất liệu của vật liệu mà không sử dụng lớp hoàn thiện, rõ ràng giải pháp này khiến ngôi nhà trở nên mộc mạc và gần gũi hơn.

© Quang Tran
Ngoài ra, chúng tôi thu thập các tấm gỗ từ ngôi nhà cũ để tạo ra các đồ nội thất như bếp, sofa, bàn và các bậc của cầu thang. Vật liệu tái chế không chỉ giảm chi phí hoàn thiện mà còn lưu lại những kỷ niệm của ngôi nhà cũ. Giải pháp cho một ngôi nhà nhỏ là cho mượn mặt bằng thay vì chia ngôi nhà thành những không gian nhỏ, nhờ đó, chi phí xây dựng được tiết kiệm đáng kể.

Biểu đồ
Tóm lại, Hon Xen House là một câu chuyện nhân văn về cách đối xử với môi trường thông qua các giải pháp mà chúng tôi tìm ra sau khi phân tích địa điểm và câu chuyện của khách hàng, và chúng tôi hy vọng nó có thể truyền cảm hứng cho các kiến trúc sư trẻ về kiến trúc khiêm tốn.

© Quang Tran
