Tổ ấm H.A HOUSE
Thông tin dự án
Những ngôi nhà Thành phố Hồ Chí Minh, Việt Nam
• Kiến trúc sư: Hà
• • Diện tích: 140 m²
• • Năm: Năm 2020
• • Hình ảnh: Quang Đạm
• • Nhà sản xuất: AutoDesk , Toto , Mao Trung & Rita Võ , Megaman , Ori Lighting , Trimble Navigation , Walnut , Xingfa
Tư vấn kết cấu: Công ty TNHH Minh Lâm

Hình ảnh thuộc bảng quyền của chủ đầu tư, chỉ sử dụng cho mục đích nghiên cứu tham khảo, không sử dụng cho mục đích thương mại xây nhà tương tự. Cảm ơn.
Tổ ấm H.A HOUSE

© Quang Đàm
Mô tả văn bản do các kiến trúc sư cung cấp. Căn nhà có diện tích 7mx20m vừa đủ để bố trí các phòng theo nhu cầu của gia chủ. Nó nằm ở phía đông nam của thành phố với tầm nhìn ra sông. Chủ đầu tư đã dành thời gian nghiên cứu và đánh giá cao sự tư vấn của kiến trúc sư. Mặc dù vậy, ngôi nhà nằm trong khu vực đang phát triển nhưng tất cả các yếu tố như chiều cao xây dựng, khoảng lùi xây dựng đều phải tuân theo quy định chung.

© Quang Đàm

Mặt bằng - Tầng trệt

© Quang Đàm

© Quang Đàm
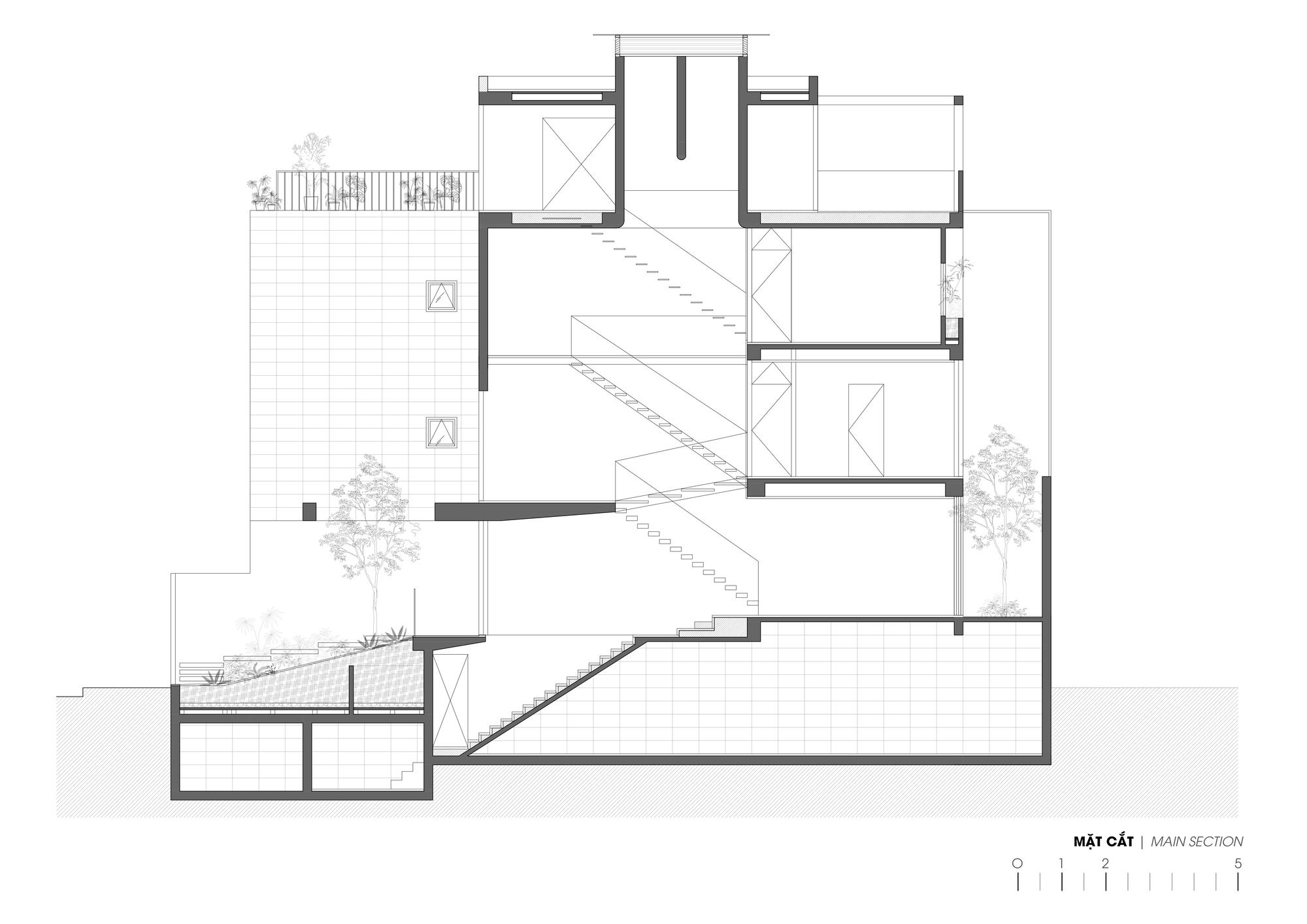
Mặt khác, chủ đầu tư rất tin tưởng và rất coi trọng phong thủy, điều mà các kiến trúc sư đã phải xử lý trong các không gian sống theo phong thủy xác định như phòng ngủ, phòng nghỉ, tủ quần áo…. Với kết cấu gồm 1 tầng hầm, 1 trệt, 2 lầu và sân thượng cùng công năng gồm gara, phòng khách, bếp và 4 phòng ngủ, các không gian chức năng được bố trí xung quanh giếng trời lớn.

© Quang Đàm

Mặt dựng

© Quang Đàm
Các không gian chức năng phía trước và sau được kết nối với nhau bằng các dãy cầu thang và hành lang bằng gỗ. Do nằm ở hướng Đông Nam nên ngôi nhà tránh được ánh nắng có hại và đón được luồng gió nên các phòng ngủ, bếp và phòng khách đều có hướng nhìn ra sông trước nhà.

© Quang Đàm
Độ cao
Với kết cấu của sàn đá mài, trần bê tông, gỗ óc chó, ... cư dân được kết hợp với nhau một cách độc đáo tạo thành một không gian ấm áp, tình cảm nhưng vẫn rất sang trọng.

© Quang Đàm
