Tổ ấm DT HOUSE
Thông tin dự án
Những ngôi nhà Việt Nam
• • Diện tích: 115 m²
• • Năm: 2019
• • Hình ảnh: Quang Đạm
Kiến trúc sư trưởng: Lê Vinh, Nguyễn Cường
Thi công: PAM Interior , IZ Architects

Hình ảnh thuộc bảng quyền của chủ đầu tư, chỉ sử dụng cho mục đích nghiên cứu tham khảo, không sử dụng cho mục đích thương mại xây nhà tương tự. Cảm ơn.
Tổ ấm DT HOUSE

- DT house là kiểu nhà nhỏ diện tích 5x20m khá quen thuộc ở Việt Nam. Nó được hình thành với ý tưởng về một ngôi nhà nhiệt đới, trong đó không gian và cách sử dụng vật liệu có thể chịu được khí hậu khắc nghiệt tại thành phố Đà Nẵng, miền Trung Việt Nam.
- Quan niệm của các Kiến trúc sư trước khi thiết kế ngôi nhà là tạo ra một ngôi nhà nhỏ bên trong ngôi nhà lớn hơn, nghĩa là hình khối lớn hơn sẽ bao bọc và bảo vệ các hình khối nhỏ hơn bên trong và chúng được liên kết với nhau bằng cầu thang và các khoảng thông tầng.
- Vấn đề của tất cả các công trình nhà phố ở Việt Nam là diện tích chật hẹp, công trình liền kề, thiếu ánh sáng và gió tự nhiên. Trong số đó, việc thiếu ánh sáng và gió tự nhiên là vấn đề quan trọng nhất cần được giải quyết. Vì vậy, DT nhà được bố trí khoảng sân trước rộng với hai cầu thang liên kết hai tầng nhằm tạo ra khoảng thông thủy cực lớn bên trong ngôi nhà cũng như tạo nguồn ánh sáng và gió tự nhiên lý tưởng. Không khí bên trong ngôi nhà, nhờ đó, luôn được lưu thông như một lá phổi.

© Quang Đàm

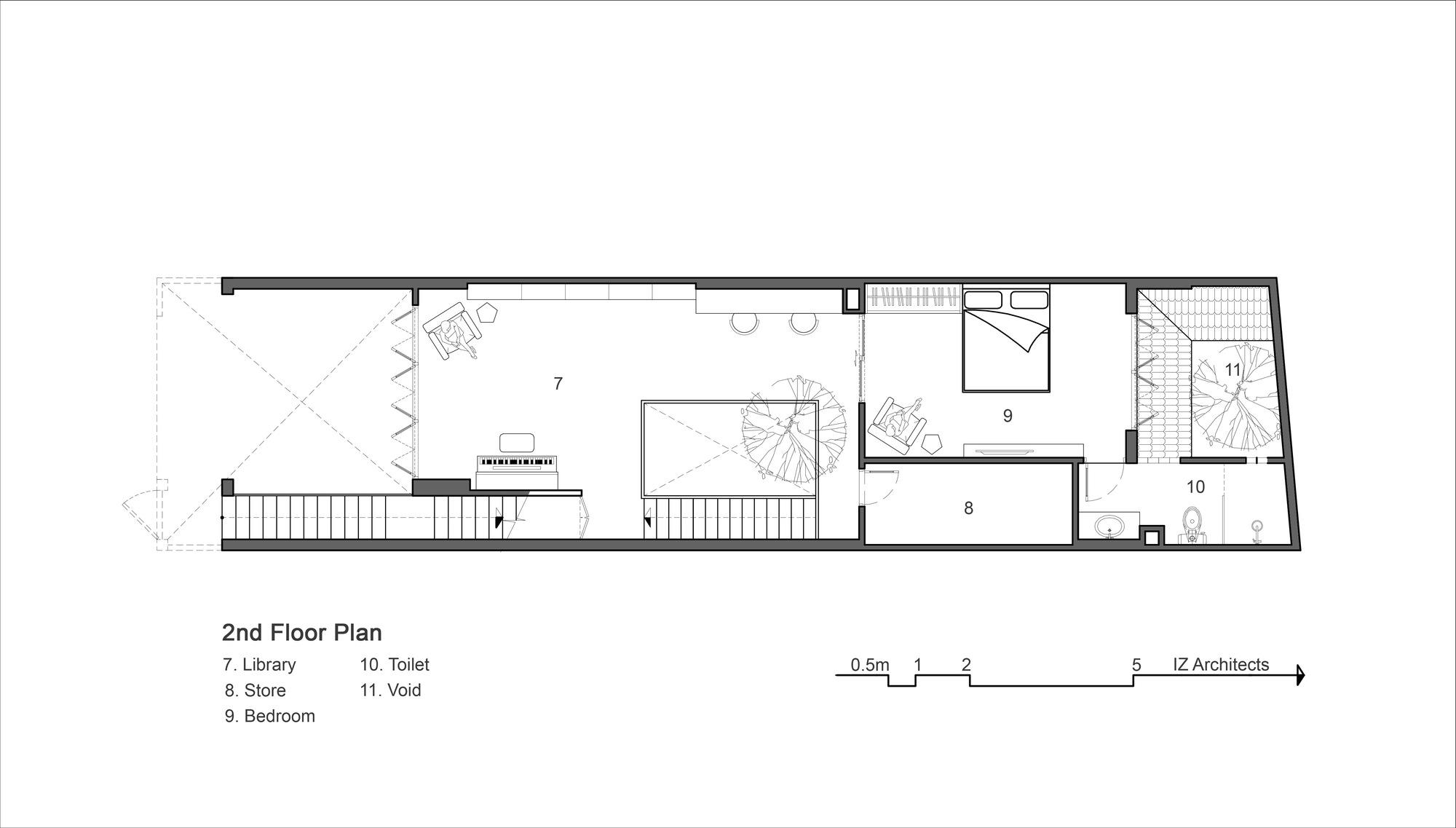
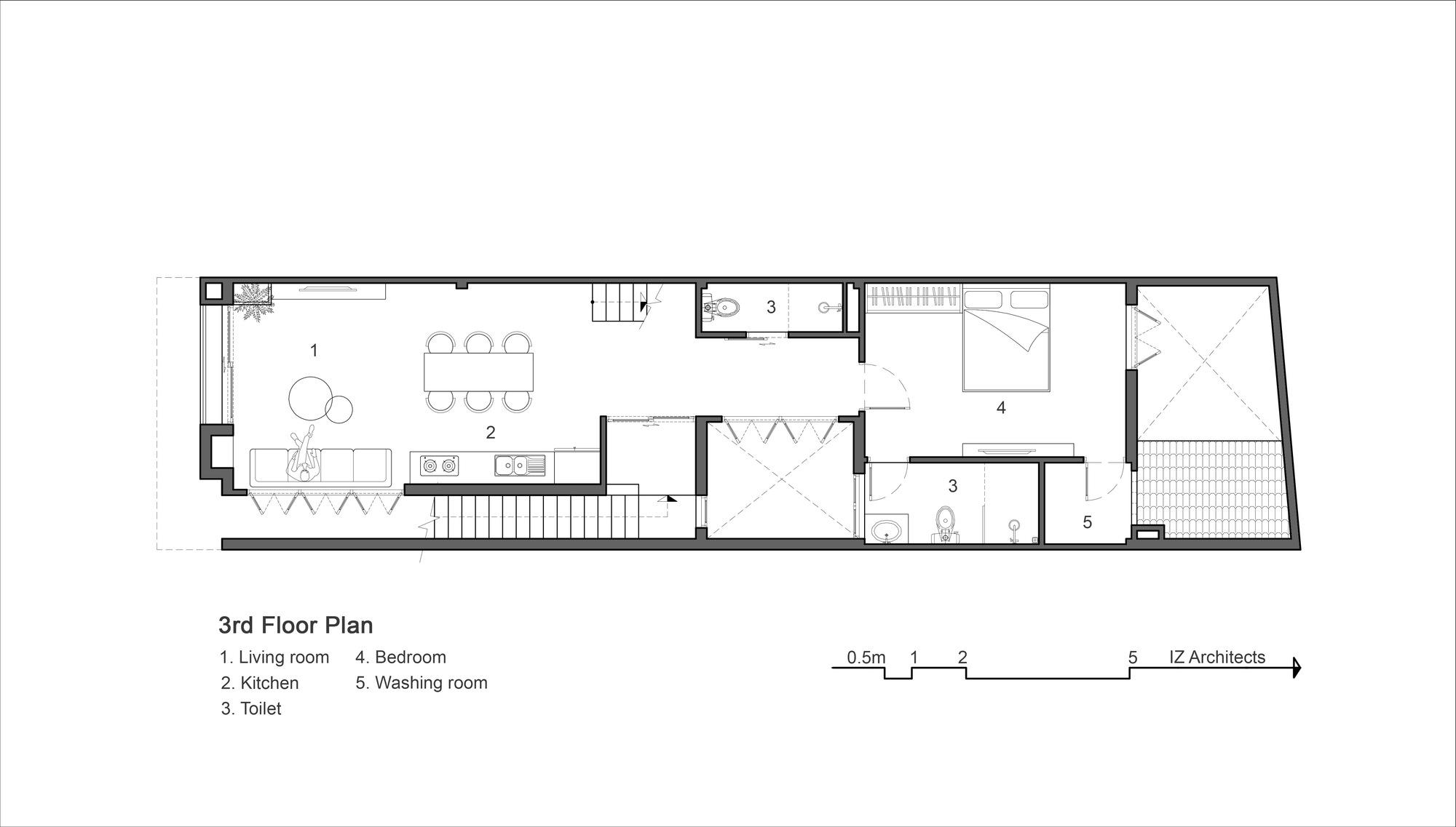
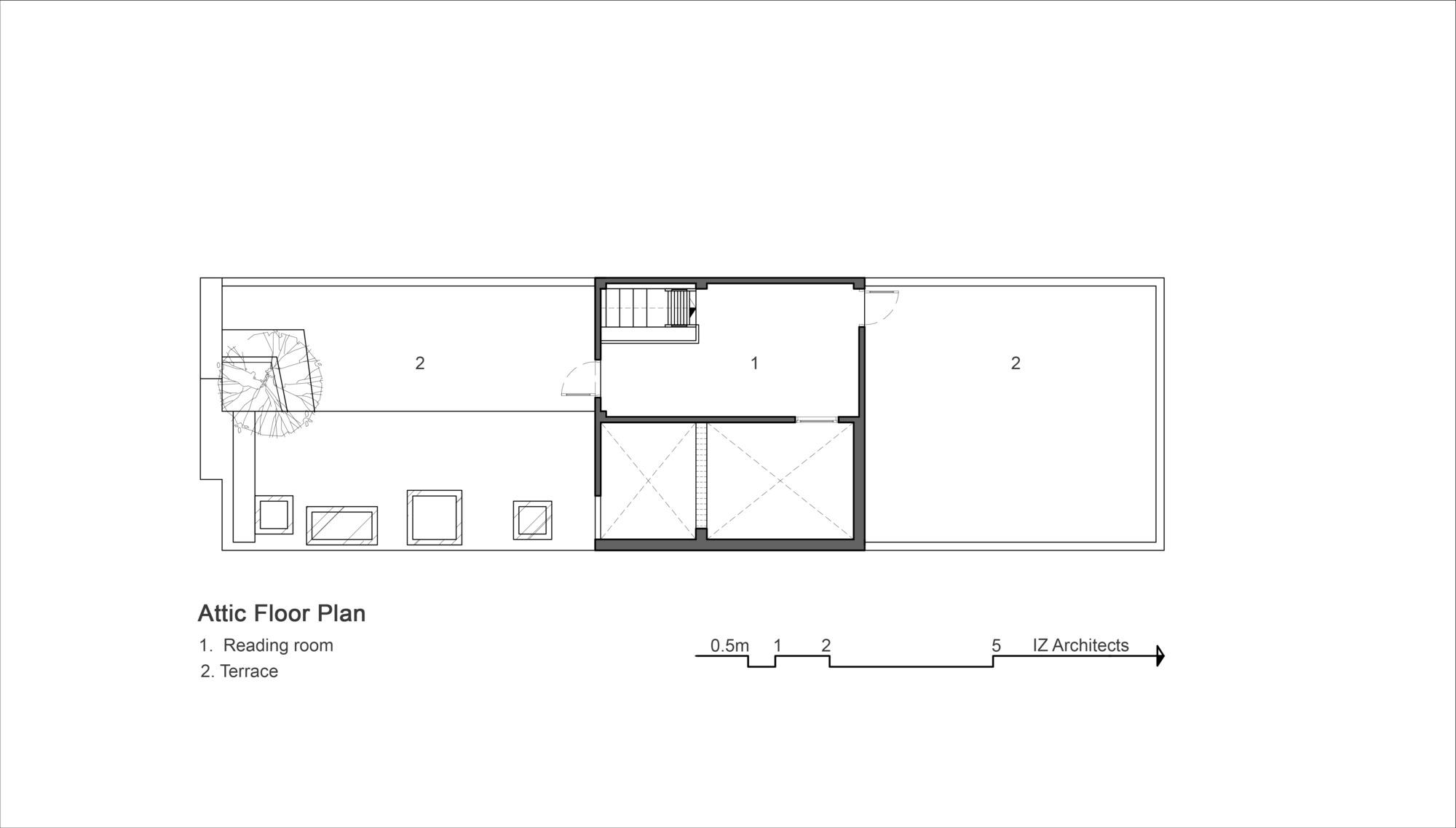
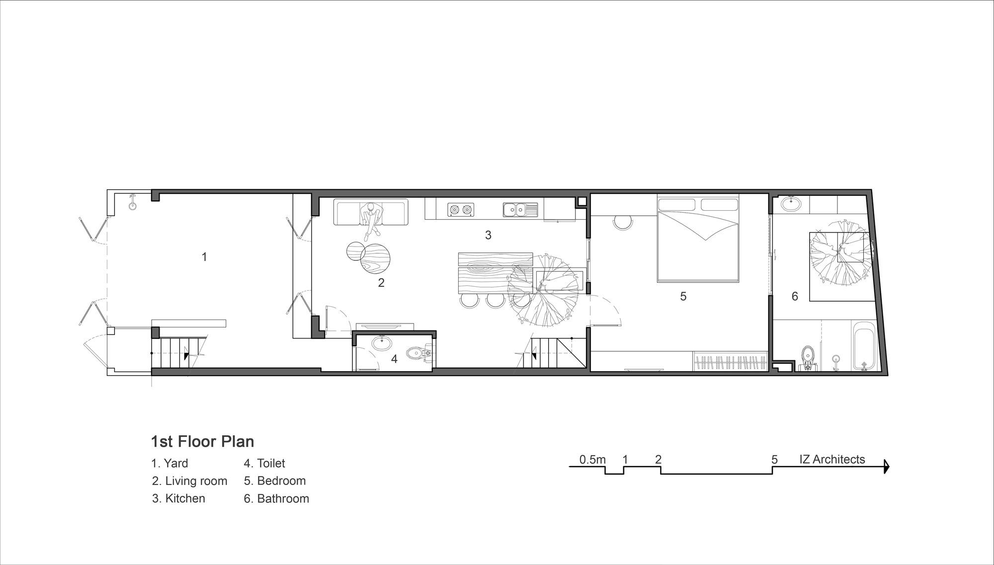
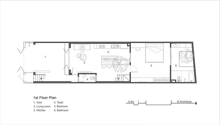
Sơ đồ tầng một

© Quang Đàm
- Cây xanh là một phần không thể thiếu trong ngôi nhà. Nó được coi là điểm nhấn cho các khoảng thông tầng và giúp tạo cảm giác thư thái, thông thoáng trong ngôi nhà có diện tích nhỏ. Hơn hết, cây xanh trong nhà có thể được xem là sợi dây liên kết giữa các tầng nên các thành viên trong gia đình vẫn có thể nhìn thấy nhau và trò chuyện trong một không gian đóng mở như thế này.
- Bạn sẽ luôn cảm thấy thoải mái khi ở trong ngôi nhà này vì các nguồn năng lượng tự nhiên kết hợp với các vật liệu địa phương, thô mộc và thân thiện luôn sẵn có và những thứ đó có thể cung cấp cho ngôi nhà một nhiệt độ lý tưởng và màu sắc trung tính.


Mô hình

- Ngôi nhà là tổ ấm của một gia đình nhỏ, người đã nói chuyện với chúng tôi rất nhiều về dự án trước khi thi công. Họ cho biết, họ muốn sống trong một ngôi nhà có nhiều sinh khí, thân thiện và đặc biệt là một ngôi nhà gắn kết. May mắn thay, sau khi tòa nhà hoàn thành, họ đến gặp chúng tôi với nụ cười trên môi và cảm ơn chúng tôi đã đưa họ trở về ngôi nhà tuổi thơ, nơi tâm hồn của họ được nuôi dưỡng. Mong rằng ngôi nhà mới này sẽ tiếp tục vun đắp niềm hạnh phúc ấy.

