Tổ ấm Anh house phong cách nhật
Thông tin dự án
Ngôi nhà Thành phố Hồ Chí Minh, Việt Nam
· Kiến trúc sư: S + Na. - Các kiến trúc sư Sanuki + Nishizawa
· Diện tích: 332 m²
Hình ảnh: Hiroyuki Oki
Tổ ấm Anh house phong cách nhật

© Hiroyuki Oki
Mô tả văn bản do các kiến trúc sư cung cấp. Ngôi nhà thiết kế dành cho gia đình chị ba mươi tuổi này được xây dựng trên lô đất rộng 4m, sâu 21m ở Thành phố Hồ Chí Minh , rất đặc trưng cho kiểu nhà ống đô thị ở Việt Nam. Yêu cầu chính của khách hàng là hiện thực hóa không gian thoáng sáng, tràn ngập ánh sáng tự nhiên và cây xanh.

© Hiroyuki Oki
Nhà ống, kiểu nhà ở điển hình nhất ở Việt Nam, bản thân nó cũng gặp khó khăn lớn trong việc lấy đủ ánh sáng và thông gió tự nhiên, thứ nhất là do không có khe hở ở hai bên ranh giới dài và thứ hai là do người Việt có xu hướng xây nhiều tường ngăn cố định để ngăn cách nhiều tầng. các phòng ngủ. Vì vậy, chủ đề chính của ngôi nhà này là khám phá khả năng của một phong cách sống mới ở Việt Nam, trong đó không gian tối và ẩm ướt như vậy cần được cải thiện đáng kể thành một không gian thoáng và sáng.

© Hiroyuki Oki
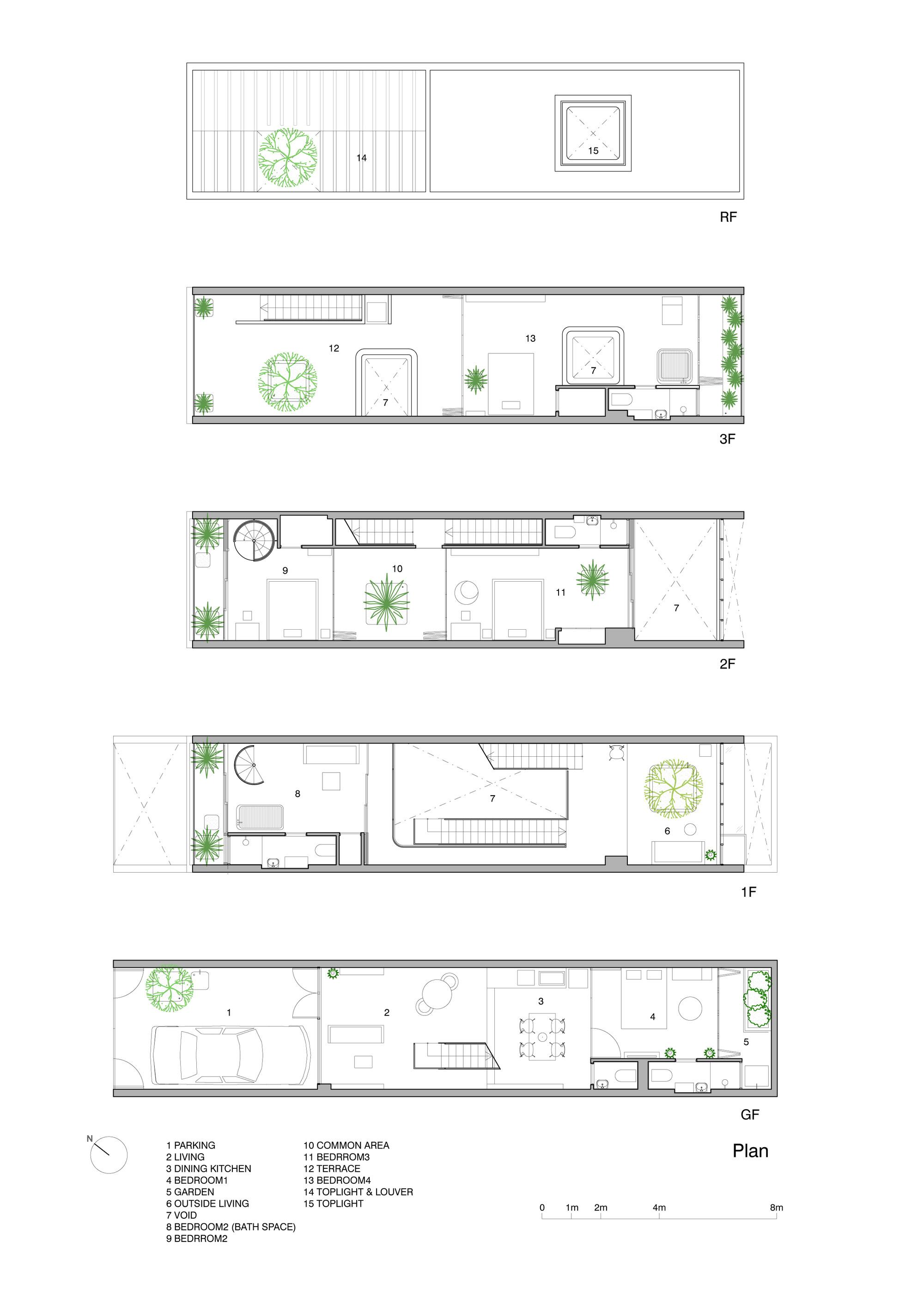
Ngôi nhà được thiết kế với 4 tấm sàn dày chắc chắn và không có tường ngăn cố định thông thường. Mỗi tấm, được dán ở độ cao khác nhau, có một số khoảng trống dẫn ánh sáng phản chiếu tự nhiên từ ánh sáng phía trên, mặt tiền và mặt sau vào nhà. Ngoài ra, mỗi phiến đá đều được bố trí nhiều lỗ bồn tắm bằng đá mài và khoảng để chân để ngồi, đặc biệt là 15 lỗ trồng cây xanh với các loại cây nhiệt đới tạo cho không gian sự hấp dẫn và tươi mát. Hơn nữa, những bức tường ngăn cố định quen thuộc thông thường được thay thế thành vách ngăn nhẹ, có thể di chuyển và mờ để ngăn cách các không gian giường ngủ, điều chỉnh cân bằng giữa sự riêng tư cho từng không gian riêng biệt và sự thông thoáng của toàn bộ không gian lớn theo yêu cầu của phong cách sống.Các vách ngăn này là cửa xếp hoặc cửa trượt bằng tre đan làm bóng râm và hệ thống cửa sổ bằng nan hoa dễ dàng mở ra để gió tự nhiên lưu thông khắp các không gian của ngôi nhà. Tóm lại, tất cả ý đồ thiết kế là hoàn thiện các không gian nhà ống có cây xanh, độ sáng, thông thoáng sau đó biến khu nhà ở thụ động chật hẹp, tối tăm, ẩm thấp thành “không gian kết nối với môi trường tự nhiên bên ngoài” - nơi con người có thể cảm nhận được thực bầu không khí bên ngoài.không gian kết nối với môi trường tự nhiên bên ngoài ”- nơi con người có thể cảm nhận được không khí bên ngoài thực sự.không gian kết nối với môi trường tự nhiên bên ngoài ”- nơi con người có thể cảm nhận được không khí bên ngoài thực sự.

© Hiroyuki Oki
Kết cấu nhà là kết cấu khung BTCT với hệ thống dầm đổi chiều. Bên cạnh đó, việc sử dụng tấm tre đan làm khung bê tông để khắc họa tiết tre trên trần bê tông lộ thiên, không chỉ nhấn mạnh tấm liên tục và hiệu ứng chiếu sáng tự nhiên, mà còn tạo hiệu ứng thẩm mỹ mạnh mẽ hơn cùng với tre đan thật của hệ thống cửa. Tất cả những vật liệu và kỹ thuật được áp dụng vào thiết kế ngôi nhà này đều mang tính địa phương và phổ biến ở Việt Nam.

© Hiroyuki Oki
Chúng ta có thể cảm nhận gió tự nhiên và sống thoải mái không điều hòa trong ngôi nhà có “phong cách sống kết nối với môi trường tự nhiên bên ngoài” này. Bằng cách nào đó, đề xuất bền vững và sinh thái này được coi là tái định nghĩa lối sống truyền thống của Việt Nam kết nối với môi trường bên ngoài trong nhà ở đương đại. Chúng tôi thực sự hy vọng lối sống đơn giản, tươi sáng và cởi mở này có thể là một trong những giải pháp thay thế hiệu quả cho lối sống hiện đại ở Việt Nam.

