Nhà Mái Hiên
Thông tin dự án
· · Houses Tây Ninh, Vietnam
· · Area: 75 m²
· · Year: 2020
· · Photographs: Hiroyuki Oki
· · Manufacturers: Daikin, INAX, Bạch Mã, Panasonic, Philips, Tay Ninh, Viet Nhat Glass, Xingfa

Hình ảnh thuộc bảng quyền của chủ đầu tư, chỉ sử dụng cho mục đích nghiên cứu tham khảo, không sử dụng cho mục đích thương mại xây nhà tương tự. Cảm ơn.
Nhà Mái Hiên

© Hiroyuki Oki
Trong ký ức của nhiều người, mái hiên không chỉ là không gian chuyển tiếp giữa trong và ngoài nhà, che nắng, che mưa, đón gió mát mà còn là nơi con cháu ngồi đợi bánh của bà ngoại. đi chợ về, nơi các bà các mẹ nhặt rau hay cả gia đình quây quần gói bánh chưng đón Tết ở Việt Nam. Trong ngôi nhà ở Tây Ninh này, ngoài hai mái hiên được bố trí ở phía trước và sau nhà, bên trong ngôi nhà còn có hai mái hiên khác, xung quanh là những viên ngói vảy cá cũ được tận dụng lại từ ngôi nhà cũ, tạo nên cảm xúc cho đây. không gian cụ thể.

© Hiroyuki Oki
Đây là ngôi nhà dành cho hai thế hệ. Vợ chồng chủ nhà có chung niềm đam mê với thiên nhiên, yêu thích những gì mộc mạc, giản dị, đặc biệt ông xã cũng là người nghệ thuật và lãng mạn. Họ có hai cô con gái nhỏ rất đáng yêu, rất sợ ma và luôn muốn được gần bố mẹ. Bên cạnh đó là nhiều viên ngói vảy cá cũ được gia đình cất giữ từ ngôi nhà cũ đã tháo dỡ. Nỗi lo về căn nhà dài hẹp và mọi người trong nhà phải chia xa đã được gia chủ chia sẻ.

© Hiroyuki Oki

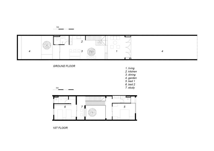
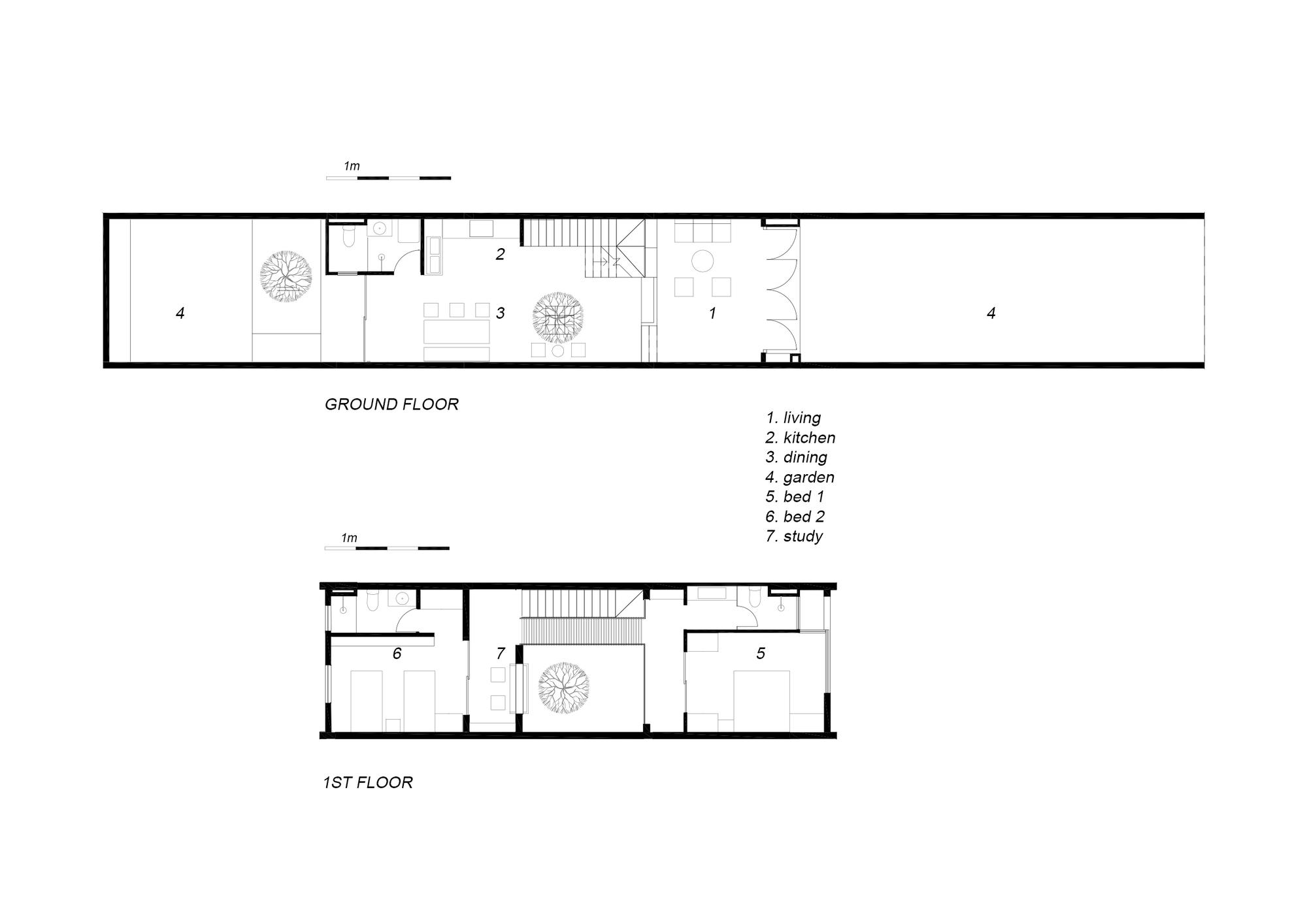
Các kế hoạch

© Hiroyuki Oki
Nó được đề xuất là một ngôi nhà hai tầng, chiếm ít hơn một nửa diện tích đất. Phần đất còn lại làm vườn trước và sau nhà vừa là cảnh quan vừa là không gian tụ tập bạn bè, nơi chồng chăm cây, vợ trồng rau, con cái vui chơi. Khu vườn cung cấp gió và ánh sáng tự nhiên cho ngôi nhà trong một khu đô thị mà các tòa nhà bê tông liên tục mọc lên.

© Hiroyuki Oki
Sự ngăn cách giữa các khối công trình đảm bảo sự thông thoáng, tận dụng tối đa ánh sáng tự nhiên cho mọi không gian, hạn chế năng lượng chiếu sáng và làm mát. Không gian hai hiên bên trong ngôi nhà là nơi sinh hoạt chung của gia đình, gắn kết các thành viên, giúp mọi người có thể dễ dàng nhìn thấy nhau. Đây là nơi cả gia đình cùng nhau dùng bữa, nơi các con học bài, bố nằm võng, mẹ thư giãn, đọc sách hoặc nấu ăn. Mái hiên được hạ thấp, bao bọc lấy không gian học tập của hai bé, tạo nên một không gian vừa có cảm giác ấm áp, an toàn nhưng vẫn thông thoáng, uyển chuyển.

© Hiroyuki Oki

Tiết diện

© Hiroyuki Oki
Về vật liệu, ngôi nhà được xây dựng chủ yếu bằng gạch thường đỏ và ngói vảy cá cũ, gần gũi với thiên nhiên, mang lại cảm giác riêng biệt và phù hợp với tinh thần của công trình. Gạch thô, không trát xi măng đã qua xử lý mang lại cảm giác ấm cúng, giản dị nhưng vẫn tạo được cảm xúc mạnh mẽ, đảm bảo mỹ quan và vệ sinh sử dụng.

© Hiroyuki Oki
Ngoài việc xác định đủ nhu cầu xây dựng, việc sử dụng tường gạch thô còn giúp giảm chi phí hoàn thiện tường hay chi phí bảo dưỡng chống nứt, sơn, sửa tường hàng năm. Ngói vảy cá cũ được tái chế đã mang màu thời gian, cho ta cảm giác mộc mạc, gần gũi mà màu ngói mới khó có được. Hệ thống ngói vảy cá bao bọc bốn mái hiên trong và ngoài nhà tạo nên hình khối hài hòa với công năng sử dụng. Tất cả tạo nên một “hiên ngang bình yên” của riêng mình, một chốn bình yên lưu giữ mọi kỷ niệm của gia đình.
