Ngôi nhà mộc thiên nhiên
Thông tin dự án
Những ngôi nhà Việt Nam
• Kiến trúc sư: KTS Hoàng Vũ
• • Diện tích: 70 m²
• • Năm: 2019
• • Hình ảnh: To Nguyen Photography
• • Nhà sản xuất: AutoDesk , AnCuong , TOA , Taicera Tiles

Hình ảnh thuộc bảng quyền của chủ đầu tư, chỉ sử dụng cho mục đích nghiên cứu tham khảo, không sử dụng cho mục đích thương mại xây nhà tương tự. Cảm ơn.
Ngôi nhà mộc thiên nhiên

© To Nguyen Photography
Mô tả văn bản do các kiến trúc sư cung cấp. Đây là một ngôi nhà nhỏ ấm cúng ở ngoại ô thành phố Hồ Chí Minh, thiết kế dành cho ba thế hệ. Với diện tích hạn chế, ưu tiên quan trọng nhất của dự án là tạo ra một không gian gia đình tạo nên sự gần gũi trong gia đình họ. Bên cạnh đó, vẫn phải dành sự riêng tư hoàn toàn cho từng thành viên. Không chỉ cung cấp một nơi ở đầy đủ tiện nghi, ngôi nhà còn là nơi trải nghiệm của nhiều không gian khác nhau và các yếu tố tự nhiên hấp dẫn bao gồm nhịp điệu ánh sáng và hành trình lộng gió.

© To Nguyen Photography

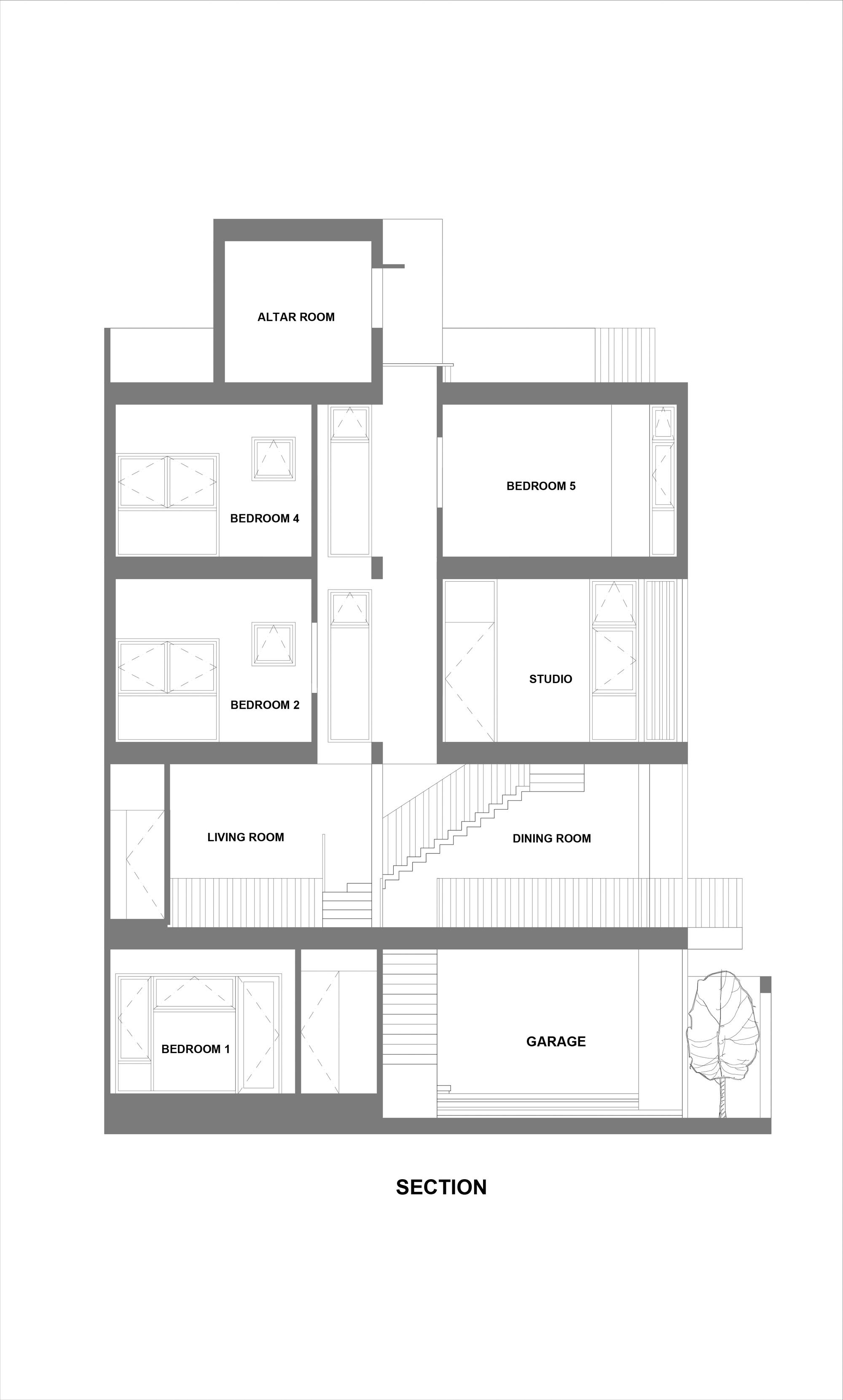
Sơ đồ tầng trệt và tầng một

© To Nguyen Photography
Do ngôi nhà hướng Tây Nam nên kiến trúc sư lựa chọn giải pháp tạo hệ lam gỗ xuyên suốt cao độ mặt tiền để ngăn tác động từ ánh nắng mặt trời mà vẫn có thể mở cửa kính sát trần để tối đa hóa sự tương tác giữa không gian bên trong và bên ngoài.

© To Nguyen Photography
Đối với vấn đề không gian, các không gian chung (phòng khách - bếp) được bố trí ở tầng 1, trở thành không gian mở ở trung tâm tạo sự giao thoa bên ngoài các không gian riêng. Hơn nữa, hành lang thông gió được bố trí theo ranh giới dọc theo chiều dài nhà kết hợp với một số khoảng trống có thể tạo ấn tượng mở rộng không gian và giúp chiếu sáng trong nhà có thể chiếu sáng ban ngày. Điều này rất hữu ích cho những ngôi nhà phố chỉ có một mặt tiền hướng ra bên ngoài trong điều kiện khí hậu nhiệt đới.

© To Nguyen Photography
Chất liệu mộc mạc, điểm nhấn có thể đạt được bằng cách trang trí nhà bằng những sản phẩm gỗ duyên dáng, đơn giản nhưng trang nhã, là sự kết nối tốt đẹp trở về với thiên nhiên. Cuối cùng, với ngôi nhà này, chúng tôi muốn thể hiện tư duy của mình về cách duy trì sự hài hòa với khu vực xung quanh cụ thể của dự án nơi nó tọa lạc.
