Ngôi nhà mang hơi thở truyền thống
Project Info
Ngôi nhà Hà nội, việt nam
• • Diện tích: 220 m²
• • Năm: 2019
Hình ảnh: Nhiếp ảnh hoàng Lê

Hình ảnh thuộc bảng quyền của chủ đầu tư, chỉ sử dụng cho mục đích nghiên cứu tham khảo, không sử dụng cho mục đích thương mại xây nhà tương tự. Cảm ơn.
Ngôi nhà mang hơi thở truyền thống

© nhiếp ảnh Hoàng Lê
Mô tả văn bản do các kiến trúc sư cung cấp. Hà Nội là thành phố thủ đô của Việt Nam với mật độ dân số cao nhất, ùn tắc giao thông nghiêm trọng, thường xuyên phải đối mặt với ô nhiễm không khí, thiếu không gian công cộng và cây xanh nhưng đồng thời cũng là thành phố mang đậm nét văn hóa và truyền thống lâu đời của Việt Nam. Ngôi nhà được thiết kế cho ba thế hệ gia đình muốn tạo ra một không gian hài hòa trong thành phố náo nhiệt nhằm nâng cao đời sống gia đình truyền thống. Vị trí của ngôi nhà là một lô điển hình cho nhà ống dài và hẹp ở địa phương, trong trường hợp nhà CH - chiều rộng 4,2 m x chiều dài 35 m.

© nhiếp ảnh Hoàng Lê
Lấy cảm hứng từ những ngôi nhà cổ truyền của Hà Nội , với không gian tràn ngập ánh sáng và thông gió tự nhiên nhờ các khoảng sân trong. Thiết kế nhằm mang lại hơi thở tinh thần truyền thống cho cuộc sống hiện đại, đồng thời tạo ra những không gian tràn ngập ánh sáng tự nhiên và đảm bảo thông gió tự nhiên bên trong ngôi nhà.

© nhiếp ảnh Hoàng Lê

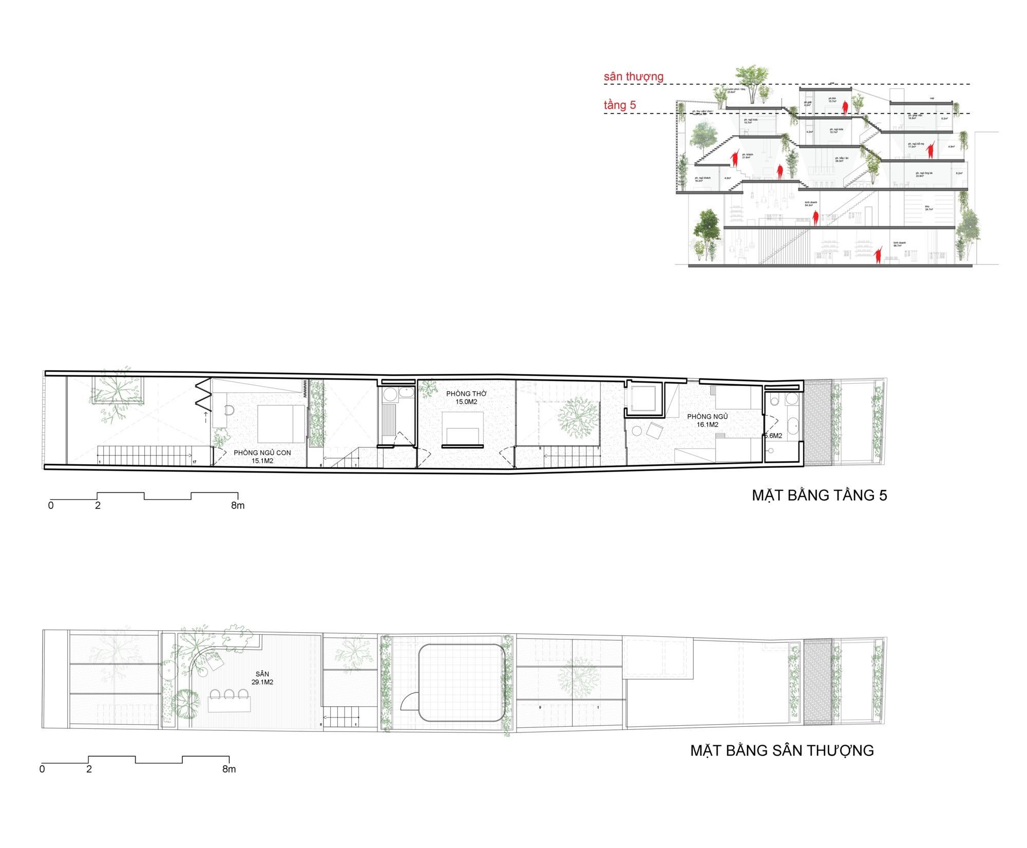
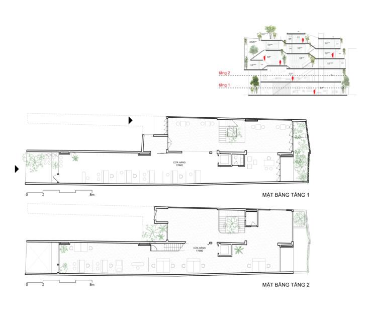
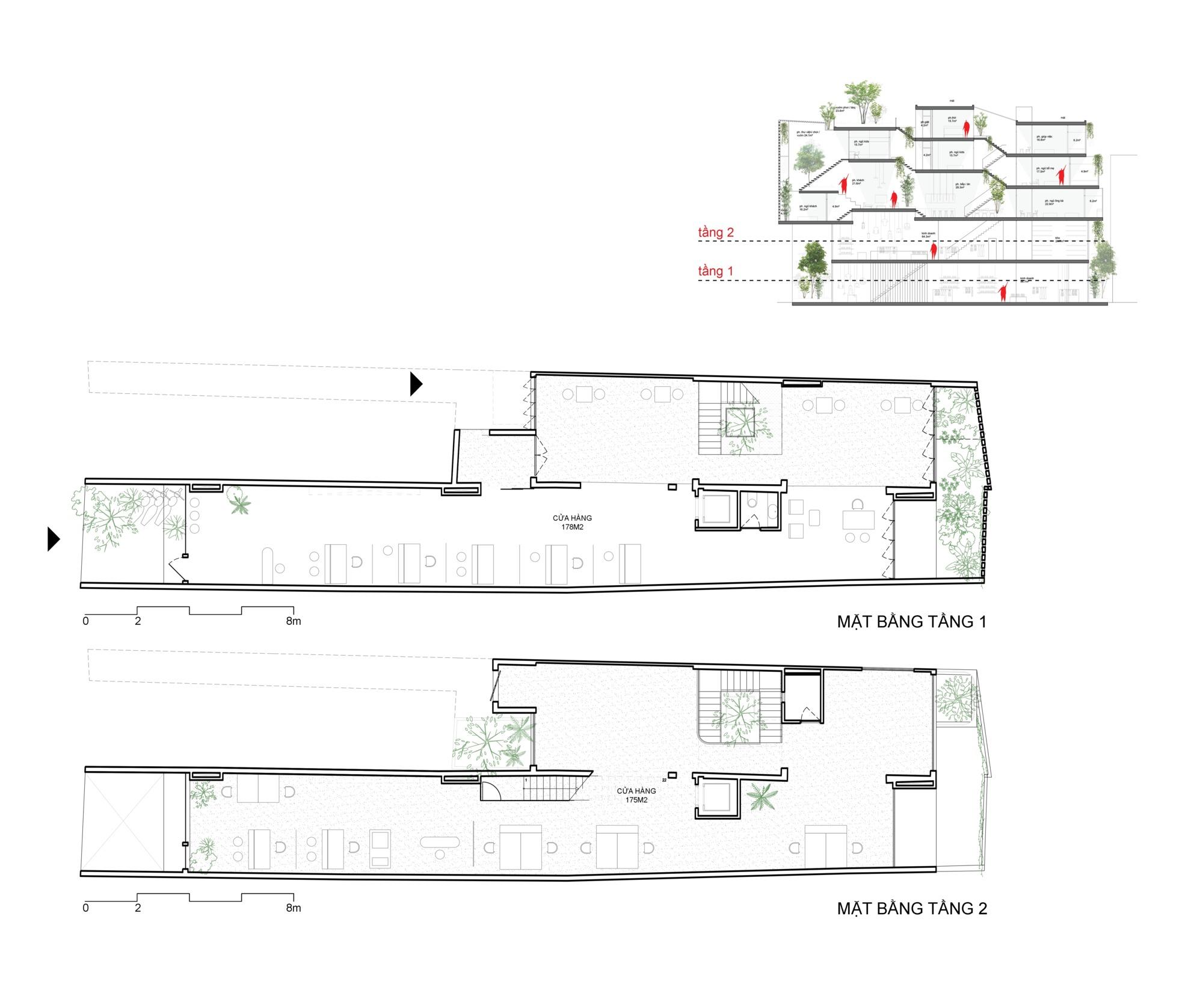
Mặt bằng tầng 01 và 02

© nhiếp ảnh Hoàng Lê
Công năng của ngôi nhà được tách biệt thành 2 khu: khu thương mại hai tầng và khu dành cho gia đình. Các không gian chung của khu vực gia đình như phòng khách, thư viện, phòng ăn và nhà bếp được bố trí ở các tầng khác nhau với độ cao trần khác nhau nhằm tạo ra không gian liên tục mở để duy trì giao tiếp của gia đình với nhau dễ dàng hơn. Thiết kế này giúp cho không gian được mở một cách hợp lý và mang lại cảm giác rộng rãi bất ngờ, mặc dù chiều rộng của ngôi nhà có hạn. Ngoài ra, phòng ngủ của hai con được bố trí phía trên khu vực chung chính, bên cạnh các khoảng không gian trống, cho phép kết nối với các thành viên trong gia đình ở tầng dưới. Khu vực yên tĩnh nằm trong cùng của ngôi nhà, bao gồm phòng ngủ của ông bà và phòng ngủ chính của bố mẹ.Yếu tố quan trọng của các không gian bên trong là ba khoảng trống ngăn cách thể tích ngôi nhà để cung cấp ánh sáng tự nhiên vào các không gian tầng thấp hơn của ngôi nhà.

Độ cao

Phần mô hình
Mối quan hệ gia đình trong gia đình truyền thống Việt Nam rất bền chặt. Thông thường, vài thế hệ sống cùng nhau dưới một mái nhà duy nhất, nơi diễn ra nhiều sự kiện gia đình. Trong thế giới công nghệ hiện đại ngày nay với điện thoại thông minh và tivi, những mối quan hệ này đang bị suy yếu. Thiết kế không gian nhấn mạnh sự kết nối giữa các thành viên trong gia đình, đặc biệt là trong bối cảnh nhịp sống hối hả ngày nay của Việt Nam đang phát triển kinh tế mới.
Thiên nhiên là một yếu tố quan trọng mang lại ảnh hưởng tích cực đến sức khỏe tinh thần của con người. Tuy nhiên, sự phát triển nhanh chóng của các thành phố lớn tạo ra sự thiếu hụt không gian xanh cho người dân thư giãn. Chính vì vậy việc trồng cây xanh, cây cảnh trong nhà là cần thiết và giúp tạo không gian sống yên bình, xả stress. CH house không chỉ là nơi ở của người dân mà còn là nơi cố gắng tạo ra mối liên kết giữa con người và thiên nhiên vốn rất thường bị thiếu ở Hà Nội do nhiều vấn đề về môi trường và không gian xanh hạn chế.

© nhiếp ảnh Hoàng Lê
Mặt tiền của ngôi nhà được thiết kế như một lớp kép với lớp ngoài được làm từ các khối xi măng đục lỗ và lớp bên trong bằng kính khung thép. Mặt tiền hai lớp kết hợp với một lớp cây xanh giúp che chắn nắng, khói bụi và thông gió tự nhiên trong suốt chiều dài của ngôi nhà. Mặt tiền cũng được thiết kế với một cửa sổ lớn, cung cấp nhiều ánh sáng hơn cho ngôi nhà khi cần thiết và tạo cho mặt tiền một cái nhìn hấp dẫn hơn.
Mục đích là thiết kế sự hài hòa về không gian với việc cân nhắc đến truyền thống gia đình, khí hậu địa phương và lối sống đương đại.
