Ngôi Nhà hiệu ứng thiên nhiên xanh
Thông tin dự án
- Ngôi nhà Việt Nam- TPHCM
- Diện tích: 120 M2
- Năm: 2019
- Hình ảnh: Hiroyuki Oki
- Kiến trúc sư chính: Cuong Nguyen (nhabe scholae), Triet Le, Quy Nguyen, Nhung Ho, Trang Truong, Thuy Nguyen
Ngôi Nhà hiệu ứng thiên nhiên xanh

© Hiroyuki Oki
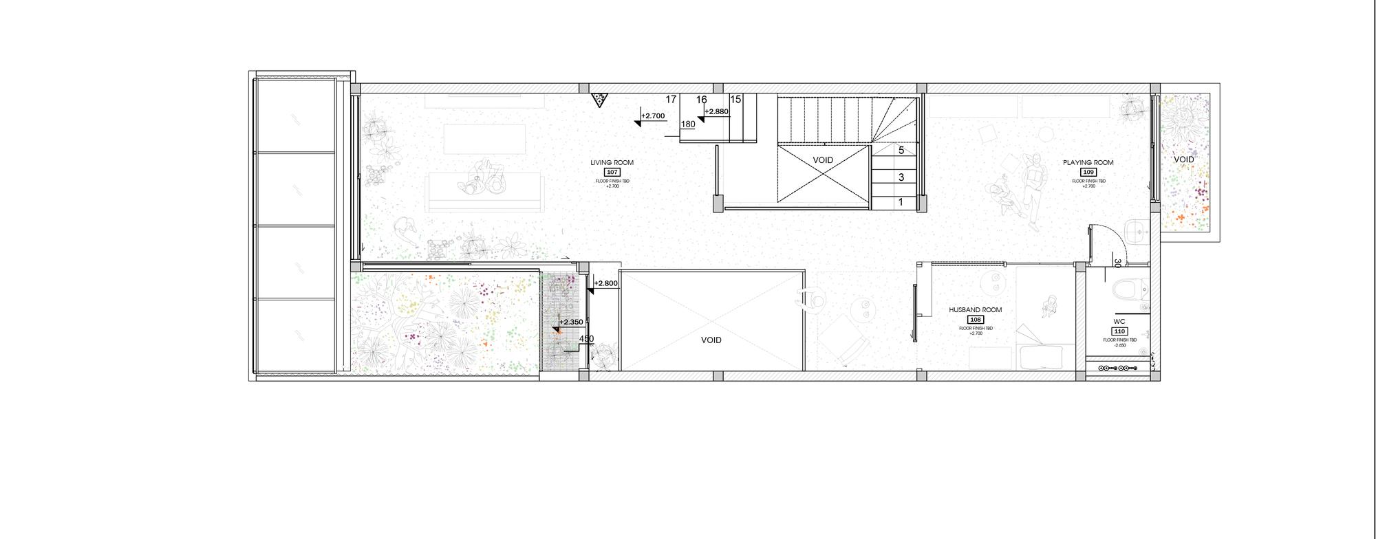
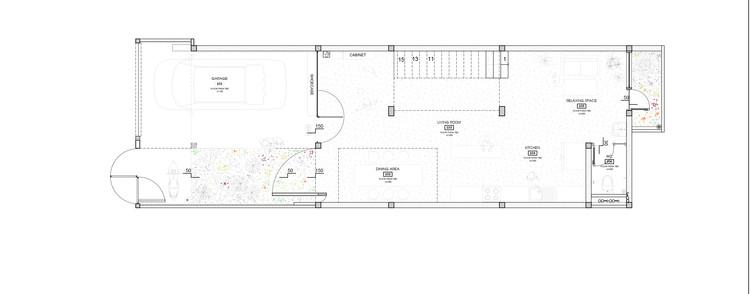
Mô tả văn bản do các kiến trúc sư cung cấp. Ngôi nhà dành cho một gia đình bốn người, bố mẹ và những đứa trẻ. Họ rất tích cực tham gia các hoạt động vui chơi và hiển nhiên sở hữu một bộ sưu tập đồ dùng lớn được sưu tầm qua nhiều năm. Bản tóm tắt kêu gọi cải tạo một ngôi nhà hiện tại, tập trung nhiều vào không gian sống, tức là tầng trệt và tầng lửng.

© Hiroyuki Oki

Kế hoạch - Tầng trệt

© Hiroyuki Oki

© Hiroyuki Oki
Khi đến thăm công trình, chúng tôi nhận thấy điều kiện không gian không thường thấy ở các công trình nhà ống tại TP.HCM. Đó là sự hiện diện của những chiếc cột để điều hòa các không gian và sự lưu thông. Đây là cơ hội để chúng tôi tận dụng điều kiện như vậy và tích hợp nó vào trải nghiệm sống tổng thể.

© Hiroyuki Oki

Tiết diện

© Hiroyuki Oki
Vì ngôi nhà chỉ có mặt tiền phía trước, chúng tôi nghĩ rằng điều quan trọng là phải tổ chức trực quan tất cả các không gian hướng ra phía trước. Khu vườn đóng vai trò như một nút kết nối với thiên nhiên, tiếp nối là không gian chung như nhà ăn và nhà bếp. Tất cả các không gian hỗ trợ được đẩy ra phía sau. Chúng được kết nối với một khu vườn thứ cấp, nhỏ hơn và tồn tại để tạo điều kiện thông gió chéo.

© Hiroyuki Oki
Để làm nổi bật điều kiện không gian hiếm có nói trên, tất cả các cột và tấm sàn gác lửng được tách biệt trực quan để gợi cảm giác bay bổng và hướng tầm nhìn của một người về phía khu vườn trung tâm. Do đó, đặc điểm sơn màu xanh lá cây tươi sáng, cùng với các màu sắc vui tươi khác cho đồ nội thất vừa vặn, hệ thống giá đỡ và vật liệu tự nhiên, hoàn toàn làm sinh động thêm không gian.

© Hiroyuki Oki


© Hiroyuki Oki
Ở một mức độ sâu hơn, ngôi nhà và các không gian sống của nó là những chiếc bình chứa đựng và che chở cho cư dân khỏi bản chất náo động của thành phố, và dần dần loại bỏ họ khỏi cuộc sống bên ngoài hàng ngày của họ. Mỗi vật dụng được đặt trong không gian, với ranh giới vô hình dành riêng của nó, đủ để trở thành một phiên bản nhỏ hơn của “nơi trú ẩn”, dần dần cắt bỏ một khía cạnh nhỏ của sự mất phương hướng mà người ta nhặt được từ bên ngoài và thay thế chúng bằng sự thoải mái của một ngôi nhà. Nhà không sang, lấy gì, không thương lượng, mặc cả. Nó chỉ là một nơi chỉ để ở, và không có gì khác.

© Hiroyuki Oki
