Ngôi nhà biểu tượng mặt trăng
Thông tin dự án
Những ngôi nhà Hòa Xuân, Việt Nam
• • Diện tích: 305 m²
• • Năm: Năm 2021
• • Hình ảnh: Nguyễn Cường
• • Nhà sản xuất: AutoDesk , Hafele , Jotun , Adobe , Caesar , Janmi , MPE , Trimble Navigation
Kiến trúc sư trưởng: Huỳnh Công Hữu, Võ Thái Huy

Hình ảnh thuộc bảng quyền của chủ đầu tư, chỉ sử dụng cho mục đích nghiên cứu tham khảo, không sử dụng cho mục đích thương mại xây nhà tương tự. Cảm ơn.
Ngôi nhà biểu tượng mặt trăng

© Nguyễn Cường
Mô tả văn bản do các kiến trúc sư cung cấp. Dzmoon là dự án nhà ở được thiết kế trên một khu đất phổ biến tại Việt Nam. Ngôi nhà được thiết kế cho một cặp vợ chồng trẻ và ba em bé. Trong một khu vực đang phát triển, không gian xanh dần biến mất do quá trình đô thị hóa. Sau một thời gian dài ở bên ngoài, họ yêu cầu một không gian sống đầy nắng, gió và yên bình để tận hưởng thời gian ở nhà.

© Nguyễn Cường

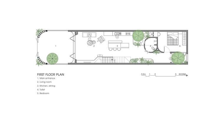
Kế hoạch - Tầng một

© Nguyễn Cường
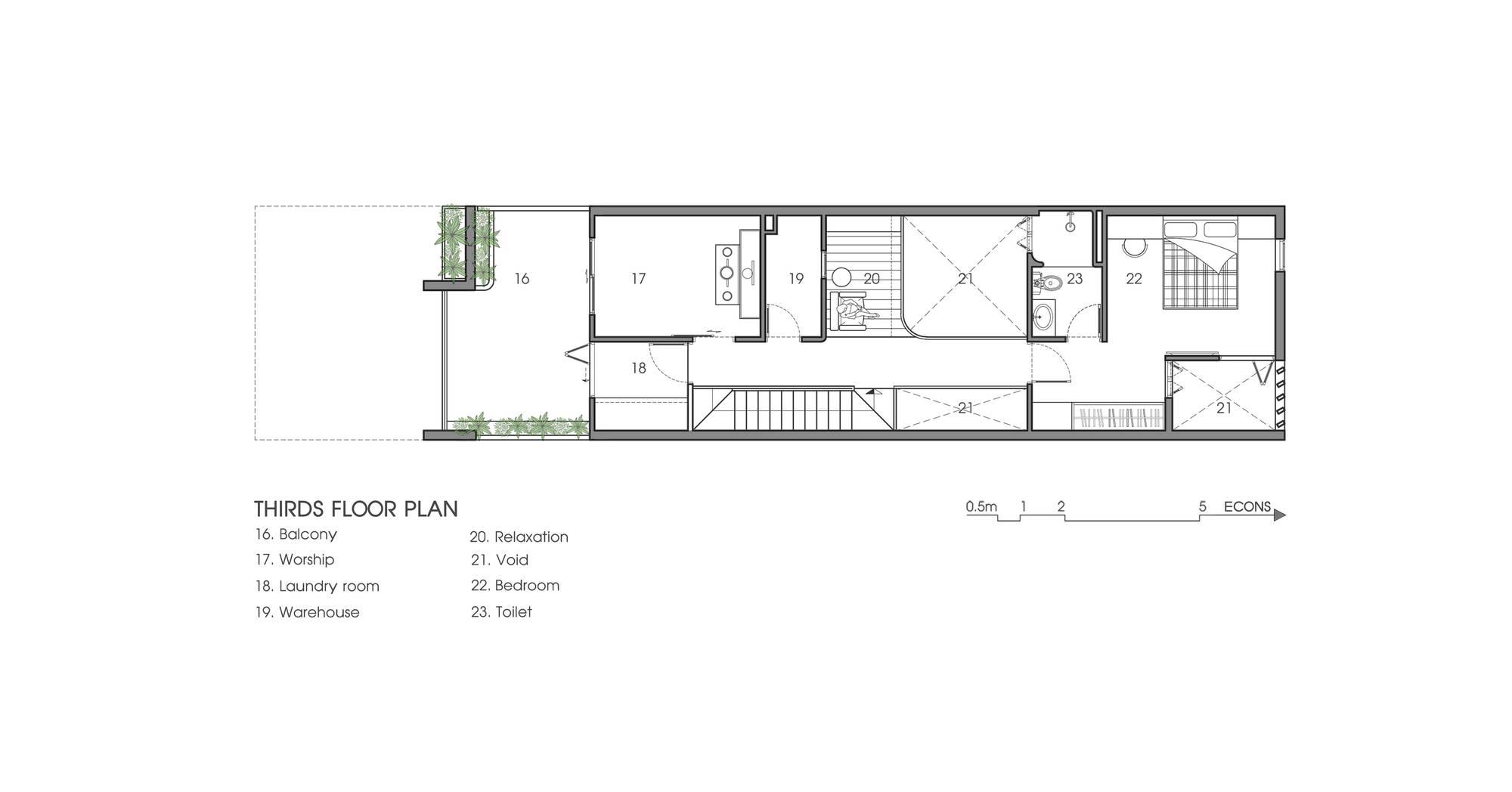
Với việc bố trí không gian chung ở tầng 1 và các không gian sân vườn, các KTS của chúng tôi mong muốn đẩy mạnh sự giao lưu, kết nối giữa những người sống trong nhà, tại các khoảng thông tầng mọi người có thể giao lưu với các không gian khác trong nhà. Từ đó khuyến khích các hoạt động chung của gia đình.

© Nguyễn Cường
Ngoài ra, đan xen yếu tố cây xanh và thêm diện tích sân vườn vào từng khu vực lân cận của từng không gian sống, ngôi nhà như một sự kết nối liền mạch, không giới hạn giữa nhà và vườn - cảm giác bình yên.

Axo

© Nguyễn Cường
Về không gian nội thất, gỗ được sử dụng làm chất liệu nội thất chính tạo cảm giác ấm cúng cho ngôi nhà. Bên cạnh đó, kết hợp các gam màu trung tính xung quanh thông tầng để giảm nhiệt độ cao và điều hòa nhiệt độ bên trong ngôi nhà một cách đáng kể. Từ những yếu tố trên mới có một “Dzmoon” đủ riêng tư - đủ kết nối - không gian sống chan hòa nắng gió.

© Nguyễn Cường
