Ngôi nhà an dưỡng semba
Thông tin dự án
Những ngôi nhà Ciudad Hồ Chí Minh (Saigón), Việt Nam
• • Diện tích: 260 m²
• • Năm: Năm 2021
Hình ảnh: DeconPhotoStudio

Hình ảnh thuộc bảng quyền của chủ đầu tư, chỉ sử dụng cho mục đích nghiên cứu tham khảo, không sử dụng cho mục đích thương mại xây nhà tương tự. Cảm ơn.
Ngôi nhà an dưỡng semba

© DeconPhotoStudio
Mô tả văn bản do các kiến trúc sư cung cấp. Trước khi tu sửa, chỉ có một khe hở ở ven đường. Do đó, bên trong rất tối. Nó tối và kém thoáng khí, vì vậy tôi nghĩ rằng tôi không thể sống một cuộc sống thoải mái. Và ngôi nhà này là một gia đình bốn người, một người chủ, một người mẹ, một người cô và một cậu con trai.

© DeconPhotoStudio
Ngoài ra, mẹ và dì của tôi đã khoảng 85 tuổi. Vì vậy, hy vọng của chủ sở hữu là [Tôi muốn mẹ và dì của tôi tận hưởng phần còn lại của cuộc đời họ ở đây! Tôi đã nghĩ. Tôi đã lên kế hoạch cho dự án này với suy nghĩ “Tôi muốn biến điều ước đó thành hiện thực!”. Việt Nam vẫn bị ảnh hưởng mạnh mẽ bởi những lời nhận xét của Phong Thủy, vì vậy tôi đã lên nhiều kế hoạch và bắt đầu lại. Ngoài ra, tôi đã nghi ngờ về phương pháp gia cố kết cấu và đã tổ chức nhiều cuộc họp với công ty xây dựng. Đó là một dự án rất khó khăn. Tuy nhiên, khi nó được hoàn thành, tôi đã được cứu bởi gia đình chủ sở hữu nói rằng “Tôi đã hỏi bạn về dự án này và đó là câu trả lời chính xác”.

© DeconPhotoStudio

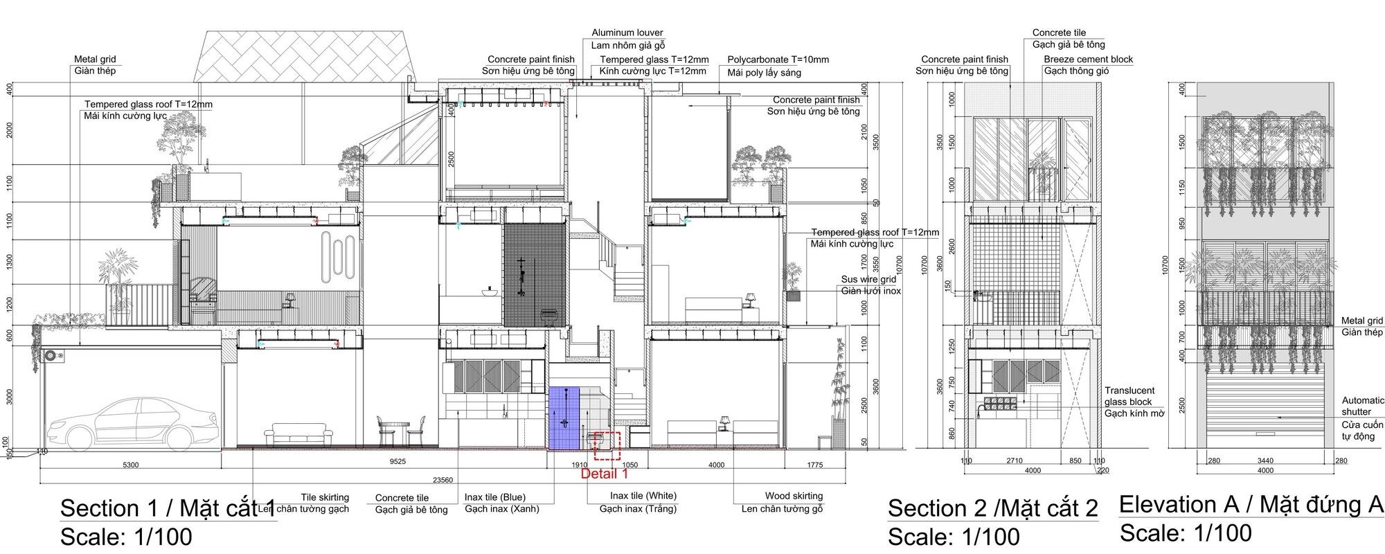
Kế hoạch


© DeconPhotoStudio
Bằng cách kết nối các tòa nhà từ tầng 1 đến tầng 3 thành một không gian, tôi nghĩ rằng tôi luôn có thể cảm nhận được gia đình. Tôi nghĩ rằng tâm nhĩ cải thiện khả năng thở cả về thể chất lẫn tinh thần và kết nối không khí trong lành với một trái tim hạnh phúc. Ngoài ra, tôi nghĩ rằng khi ánh sáng mặt trời từ bầu trời chiếu vào, độ sáng và độ thoáng sẽ phát ra

© DeconPhotoStudio
